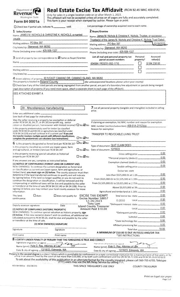
Property
Account |
| Property ID: | 604064 | Abbreviated Legal Description: | 82 - IN SE SW:BG INTER COVE RD & MEADOW ST N1*E30' W30 .01' S1*W800.14'TPB S1*W100 .02' W781.38'ALG CUR/R 102 .65'TP W FR TPB E760.24'TPB TGW: BG INTER COVE RD & MEADOW ST N1*E30' W30.01' S1*W700.12'TPB S1*W100.01' W760.24'ALG CUR/R 18.13' N15*E85.81'TP W |
| Geographic ID: | R33231-052-1710 | Agent Code: | |
| Type: | Real | | |
| Tax Area: | 592 - APPRAISER-Stan/Cam Schl Dist, Special Dist, improved, greater than 1 acre | Land Use Code | 39 |
| Open Space: | N | DFL | N |
| Historic Property: | N | Remodel Property: | N |
| Multi-Family Redevelopment: | N | | |
| Township: | 32 | Section: | 31 |
| Range: | R3 |
Location |
| Address: | 40 N EAST CAMANO DR CAMANO ISLAND, WA 98282 | Mapsco: | |
| Neighborhood: | 53cRR-necamano rd | Map ID: | 992 |
| Neighborhood CD: | 53cRRnecam |
Owner |
| Name: | NICHOLS TTEE, JAMES M | Owner ID: | 311031 |
| Mailing Address: | CHRISTINE K NICHOLS TTEE PO BOX 397 STANWOOD, WA 98292 | % Ownership: | 100.0000000000% |
| | | Exemptions: | |
Taxes and Assessment Details
Values
| (+) Improvement Homesite Value: | + | $0 | |
| (+) Improvement Non-Homesite Value: | + | $271,676 | |
| (+) Land Homesite Value: | + | $0 | |
| (+) Land Non-Homesite Value: | + | $330,000 | |
| (+) Curr Use (HS): | + | $0 | $0 |
| (+) Curr Use (NHS): | + | $0 | $0 |
| | | -------------------------- | |
| (=) Market Value: | = | $601,676 | |
| (–) Productivity Loss: | – | $0 | |
| | | -------------------------- | |
| (=) Subtotal: | = | $601,676 | |
| (+) Senior Appraised Value: | + | $0 | |
| (+) Non-Senior Appraised Value: | + | $601,676 | |
| | | -------------------------- | |
| (=) Total Appraised Value: | = | $601,676 | |
| (–) Senior Exemption Loss: | – | $0 | |
| (–) Exemption Loss: | – | $0 | |
| | | -------------------------- | |
| (=) Taxable Value: | = | $601,676 | |
Taxing Jurisdiction
| Owner: | NICHOLS TTEE, JAMES M | | |
| % Ownership: | 100.0000000000% | | |
| Total Value: | $601,676 | | |
| Tax Area: | 592 - APPRAISER-Stan/Cam Schl Dist, Special Dist, improved, greater than 1 acre |
| CF | Conservation Futures | 0.0313996660 | $601,676 | $601,676 | $18.89 | | |
| EMS1 | Fire & Rescue Dist #1 Camano GEN (EMS) | 0.4998471806 | $601,676 | $601,676 | $300.75 | | |
| FIRE1 | Fire & Rescue Dist #1 Camano GEN | 1.2496603404 | $601,676 | $601,676 | $751.89 | | |
| FIRE1BOND | Fire & Rescue Dist #1 Camano BOND | 0.1630371212 | $601,676 | $601,676 | $98.10 | | |
| CE | County Current Expense | 0.3674210519 | $601,676 | $601,676 | $221.07 | | |
| CR | County Roads | 0.4614296361 | $601,676 | $601,676 | $277.63 | | |
| LIB | Library Sno-Isle GEN | 0.3039084203 | $601,676 | $601,676 | $182.85 | | |
| SCH205_401 | School 205-401 Enrichment | 1.3697998934 | $601,676 | $601,676 | $824.18 | | |
| SCH205BOND | School 205-401 BOND | 0.9354199323 | $601,676 | $601,676 | $562.82 | | |
| ST | State School | 1.4761226122 | $601,676 | $601,676 | $888.15 | | |
| ST2 | State School Part 2 | 0.7953803475 | $601,676 | $601,676 | $478.56 | | |
| | Total Tax Rate: | 7.6534262019 | | | | | |
| | | | | Taxes w/Current Exemptions: | $4,604.89 | | |
| | | | | Taxes w/o Exemptions: | $4,604.89 | | |
Improvement / Building
| Improvement #1: | COMMERCIAL | State Code: | F1 | 5660.0 sqft | Value: | $271,676 |
| Bathrooms: | 0 | Bedrooms: | 0 | | Ceiling: | DRYWALL PAINTED | Exterior Wall/Cover: | PLYWD/WD OR ST STUDS | | Floor Covering: | CONCRETE SEALER | Floor Structure: | CONCRETE ON GROUND | | Foundation: | SLAB | Heating: | SPACE HEATERS | | Interior Finish: | MANUFACTURING (LIGHT) | Plumbing Fixture Cnt: | 1 | | Roof Structure/Cover: | COMP OPEN WOOD |   |   |
|
| | Type | Description | Class CD | Sub Class CD | Year Built | Area |
| | BAS | BASE/MAIN FLOOR | 3 | 0 | 1979 | 2940.0 |
| | OP3 | OPEN PORCH W/ROOF | 3 | 0 | 1979 | 96.0 |
| | OP4 | OPEN PORCH W/CEILING-ROOF | 3 | 0 | 1979 | 64.0 |
| | STG | STORAGE | 3 | 0 | 1979 | 2720.0 |
Sketch
Property Image
Land
| 1 | 71 | INDUSTRIAL MANUFACTURING | 3.4800 | 151588.80 | 0.00 | 0.00 | 1.00 | $330,000 | $0 |
Roll Value History
| 2026 | N/A | N/A | N/A | N/A | N/A |
| 2025 | $271,676 | $330,000 | $0 | $601,676 | $601,676 |
| 2024 | $291,201 | $300,000 | $0 | $591,201 | $591,201 |
| 2023 | $304,238 | $290,000 | $0 | $594,238 | $594,238 |
| 2022 | $241,059 | $240,000 | $0 | $481,059 | $481,059 |
| 2021 | $108,191 | $200,000 | $0 | $308,191 | $308,191 |
| 2020 | $108,164 | $200,000 | $0 | $308,164 | $308,164 |
| 2019 | $129,077 | $220,000 | $0 | $349,077 | $349,077 |
| 2018 | $129,084 | $180,000 | $0 | $309,084 | $309,084 |
| 2017 | $129,099 | $160,722 | $0 | $289,821 | $289,821 |
| 2016 | $129,128 | $160,722 | $0 | $289,850 | $289,850 |
| 2015 | $120,840 | $120,502 | $0 | $241,342 | $241,342 |
| 2014 | $120,840 | $120,502 | $0 | $241,342 | $241,342 |
| 2013 | $120,840 | $120,502 | $0 | $241,342 | $241,342 |
| 2012 | $120,840 | $120,502 | $0 | $241,342 | $241,342 |
| 2011 | $120,840 | $120,502 | $0 | $241,342 | $241,342 |
| 2010 | $129,045 | $120,502 | $0 | $249,547 | $249,547 |
| 2009 | $132,256 | $120,502 | $0 | $252,758 | $252,758 |
| 2008 | $137,343 | $126,844 | $0 | $264,187 | $264,187 |
| 2007 | $88,021 | $178,709 | $0 | $266,730 | $266,730 |
Deed and Sales History
| 1 | 12/18/2023 | QCD | Quit Claim Deed | NICHOLS, JAMES M | NICHOLS TTEE, JAMES M | | | $0.00 | 58857 | 4567979 |
| 2 | 08/08/2016 | WD | Warranty Deed | HUNDLEY, DONALD L | NICHOLS, JAMES M | | | $285,000.00 | 25653 | 4405029 |
| 3 | 04/01/1986 | OTHER | Other - Misc. Documents | HUNDLEY, DONALD | HUNDLEY, DONALD | | | $0.00 | 61589 | 85007092 |
Payout Agreement
| No payout information available.. |