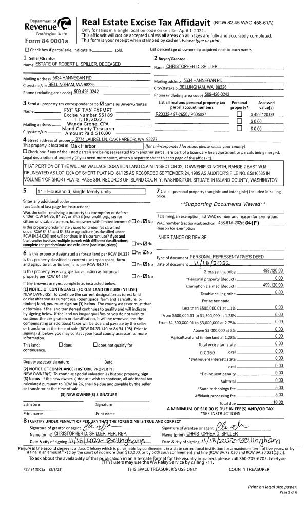
Property
Account |
| Property ID: | 605027 | Abbreviated Legal Description: | LOT 14-A SP 84-125.23332.497-2880 V1 SP P384 AF#85010585 |
| Geographic ID: | R23332-497-2650 | Agent Code: | |
| Type: | Real | | |
| Tax Area: | 112 - APPRAISER-OH Schl Dist, outside OH, improved, greater than 1 acre | Land Use Code | 11 |
| Open Space: | N | DFL | N |
| Historic Property: | N | Remodel Property: | N |
| Multi-Family Redevelopment: | N | | |
| Township: | 33 | Section: | 32 |
| Range: | R2 |
Location |
| Address: | 2774 LAUREL LN OAK HARBOR, WA 98277 | Mapsco: | |
| Neighborhood: | Cycle 6 | Map ID: | 650 |
| Neighborhood CD: | 6 |
Owner |
| Name: | SPILLER, CHRISTOPHER D | Owner ID: | 306712 |
| Mailing Address: | 5634 HANNEGAN RD BELLINGHAM, WA 98226 | % Ownership: | 100.0000000000% |
| | | Exemptions: | |
Taxes and Assessment Details
Values
| (+) Improvement Homesite Value: | + | $0 | |
| (+) Improvement Non-Homesite Value: | + | $366,707 | |
| (+) Land Homesite Value: | + | $0 | |
| (+) Land Non-Homesite Value: | + | $250,000 | |
| (+) Curr Use (HS): | + | $0 | $0 |
| (+) Curr Use (NHS): | + | $0 | $0 |
| | | -------------------------- | |
| (=) Market Value: | = | $616,707 | |
| (–) Productivity Loss: | – | $0 | |
| | | -------------------------- | |
| (=) Subtotal: | = | $616,707 | |
| (+) Senior Appraised Value: | + | $0 | |
| (+) Non-Senior Appraised Value: | + | $616,707 | |
| | | -------------------------- | |
| (=) Total Appraised Value: | = | $616,707 | |
| (–) Senior Exemption Loss: | – | $0 | |
| (–) Exemption Loss: | – | $0 | |
| | | -------------------------- | |
| (=) Taxable Value: | = | $616,707 | |
Taxing Jurisdiction
| Owner: | SPILLER, CHRISTOPHER D | | |
| % Ownership: | 100.0000000000% | | |
| Total Value: | $616,707 | | |
| Tax Area: | 112 - APPRAISER-OH Schl Dist, outside OH, improved, greater than 1 acre |
| CF | Conservation Futures | 0.0313996660 | $616,707 | $616,707 | $19.36 | | |
| CEM1 | Cemetery #1 | 0.0040018856 | $616,707 | $616,707 | $2.47 | | |
| FIRE2 | Fire & Rescue Dist #2 N Whidbey GEN | 0.5381486274 | $616,707 | $616,707 | $331.88 | | |
| HOBOND | Hospital BOND | 0.1893405597 | $616,707 | $616,707 | $116.77 | | |
| HOGEN | Hospital GEN | 0.3848777722 | $616,707 | $616,707 | $237.36 | | |
| CE | County Current Expense | 0.3674210519 | $616,707 | $616,707 | $226.59 | | |
| CR | County Roads | 0.4614296361 | $616,707 | $616,707 | $284.57 | | |
| ISLANDEMS | Hospital GEN (EMS) | 0.4952018576 | $616,707 | $616,707 | $305.39 | | |
| LIB | Library Sno-Isle GEN | 0.3039084203 | $616,707 | $616,707 | $187.42 | | |
| NWHIDPRMT | P & R N Whidbey GEN | 0.1990272349 | $616,707 | $616,707 | $122.74 | | |
| SCH201MO | School 201 Enrichment | 2.3851112745 | $616,707 | $616,707 | $1,470.91 | | |
| ST | State School | 1.4761226122 | $616,707 | $616,707 | $910.34 | | |
| ST2 | State School Part 2 | 0.7953803475 | $616,707 | $616,707 | $490.52 | | |
| | Total Tax Rate: | 7.6313709459 | | | | | |
| | | | | Taxes w/Current Exemptions: | $4,706.32 | | |
| | | | | Taxes w/o Exemptions: | $4,706.32 | | |
Improvement / Building
| Improvement #1: | RESIDENTIAL | State Code: | Y | 1080.0 sqft | Value: | $366,707 |
| Bathrooms: | 2 | Bedrooms: | 2 | | Ceiling: | DRY WALL SPRAYED | Exterior Wall/Cover: | LOG TO 10" | | Floor Covering: | HARDWOOD 100% | Floor Structure: | WOOD W/SUBFLOOR | | Foundation: | CONCRETE | Heating: | FHA GAS | | Interior Finish: | DRYWALL PAINT | Plumbing Fixture Cnt: | 9 | | Roof Slope: | 4" IN 12" | Roof Structure/Cover: | CJ ALUMINIUM HEAVY |
|
| | Type | Description | Class CD | Sub Class CD | Year Built | Area |
| | BAS | BASE/MAIN FLOOR | 4 | 0 | 2001 | 1080.0 |
| | AGR | ATTACHED GARAGE | 4 | 0 | 2001 | 400.0 |
| | OWP | OPEN WOOD PORCH W/STEPS | 4 | 0 | 2001 | 236.0 |
| | DGR | DETACHED GARAGE | 4 | 0 | 2001 | 936.0 |
| | OWR | OPEN WOOD PORCH W/STEPS/ROOF | 4 | 0 | 2001 | 121.8 |
| | ENP | ENCLOSED PORCH | 4 | 0 | 2001 | 100.0 |
| | CPD | OPEN CARPORT DIRT FLOOR | 4 | 0 | 2001 | 576.0 |
Sketch
Property Image
Land
| 1 | 18 | AC (02.01-03.00) | 2.5100 | 109335.60 | 0.00 | 0.00 | 1.00 | $250,000 | $0 |
Roll Value History
| 2026 | N/A | N/A | N/A | N/A | N/A |
| 2025 | $366,707 | $250,000 | $0 | $616,707 | $616,707 |
| 2024 | $389,190 | $230,000 | $0 | $619,190 | $619,190 |
| 2023 | $393,464 | $220,000 | $0 | $613,464 | $613,464 |
| 2022 | $289,120 | $210,000 | $0 | $499,120 | $499,120 |
| 2021 | $258,061 | $160,000 | $0 | $418,061 | $418,061 |
| 2020 | $252,109 | $140,000 | $0 | $392,109 | $392,109 |
| 2019 | $188,698 | $200,000 | $0 | $388,698 | $388,698 |
| 2018 | $189,182 | $170,000 | $0 | $359,182 | $359,182 |
| 2017 | $190,131 | $150,000 | $0 | $340,131 | $340,131 |
| 2016 | $192,525 | $120,000 | $0 | $312,525 | $312,525 |
| 2015 | $194,483 | $100,000 | $0 | $294,483 | $294,483 |
| 2014 | $196,442 | $100,000 | $0 | $296,442 | $296,442 |
| 2013 | $198,400 | $90,000 | $0 | $288,400 | $288,400 |
| 2012 | $200,361 | $108,000 | $0 | $308,361 | $308,361 |
| 2011 | $202,318 | $120,000 | $0 | $322,318 | $322,318 |
| 2010 | $175,350 | $120,000 | $0 | $295,350 | $295,350 |
| 2009 | $182,778 | $155,000 | $0 | $337,778 | $337,778 |
| 2008 | $186,832 | $145,000 | $0 | $331,832 | $331,832 |
| 2007 | $160,104 | $153,825 | $0 | $313,929 | $313,929 |
Deed and Sales History
| 1 | 11/18/2022 | PRD | Personal Representatives Deed | SPILLER, ROBERT L / DEEANN E | SPILLER, CHRISTOPHER D | | | $0.00 | 55189 | 4553987 |
| 2 | 11/18/2022 | PRD | Personal Representatives Deed | SPILLER, ROBERT L / DEEANN E | SPILLER, CHRISTOPHER D | | | $0.00 | 55188 | 4553986 |
| 3 | 10/01/1997 | REC | Real Estate Contract | KROTZ, CHARLES K | SPILLER, ROBERT L | | | $45,000.00 | 73637 | 97017130 |
| 4 | 01/01/1900 | OTHER | Other - Misc. Documents | Unknown | KROTZ, CHARLES K | | | $0.00 | 0 | 0 |
Payout Agreement
| No payout information available.. |