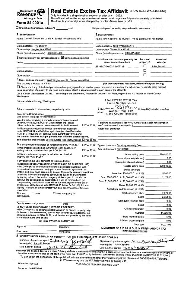
Property
Account |
| Property ID: | 605232 | Abbreviated Legal Description: | CLINTON VIEW EST #1 LOT 2 |
| Geographic ID: | S6397-00-00002-0 | Agent Code: | |
| Type: | Real | | |
| Tax Area: | 720 - APPRAISER-S Whid Schl Dist, Special District, improved & less than 1 acre | Land Use Code | 11 |
| Open Space: | N | DFL | N |
| Historic Property: | N | Remodel Property: | N |
| Multi-Family Redevelopment: | N | | |
| Township: | | Section: | |
| Range: | |
Location |
| Address: | 4683 WRIGHTSMAN PLACE CLINTON, WA 98236 | Mapsco: | |
| Neighborhood: | Cycle 4 | Map ID: | 810 |
| Neighborhood CD: | 4 |
Owner |
| Name: | CAPUANO TTEE, JOHN | Owner ID: | 306458 |
| Mailing Address: | KAREN BROCHU TTEE 4683 WRIGHTSMAN PL CLINTON, WA 98236 | % Ownership: | 100.0000000000% |
| | | Exemptions: | |
Taxes and Assessment Details
Values
| (+) Improvement Homesite Value: | + | $0 | |
| (+) Improvement Non-Homesite Value: | + | $281,693 | |
| (+) Land Homesite Value: | + | $0 | |
| (+) Land Non-Homesite Value: | + | $350,000 | |
| (+) Curr Use (HS): | + | $0 | $0 |
| (+) Curr Use (NHS): | + | $0 | $0 |
| | | -------------------------- | |
| (=) Market Value: | = | $631,693 | |
| (–) Productivity Loss: | – | $0 | |
| | | -------------------------- | |
| (=) Subtotal: | = | $631,693 | |
| (+) Senior Appraised Value: | + | $0 | |
| (+) Non-Senior Appraised Value: | + | $631,693 | |
| | | -------------------------- | |
| (=) Total Appraised Value: | = | $631,693 | |
| (–) Senior Exemption Loss: | – | $0 | |
| (–) Exemption Loss: | – | $0 | |
| | | -------------------------- | |
| (=) Taxable Value: | = | $631,693 | |
Taxing Jurisdiction
| Owner: | CAPUANO TTEE, JOHN | | |
| % Ownership: | 100.0000000000% | | |
| Total Value: | $631,693 | | |
| Tax Area: | 720 - APPRAISER-S Whid Schl Dist, Special District, improved & less than 1 acre |
| CF | Conservation Futures | 0.0313996660 | $631,693 | $631,693 | $19.83 | | |
| FIRE3 | Fire & Rescue Dist #3 S Whidbey GEN | 1.2130821753 | $631,693 | $631,693 | $766.30 | | |
| HOBOND | Hospital BOND | 0.1893405597 | $631,693 | $631,693 | $119.61 | | |
| HOGEN | Hospital GEN | 0.3848777722 | $631,693 | $631,693 | $243.12 | | |
| CE | County Current Expense | 0.3674210519 | $631,693 | $631,693 | $232.10 | | |
| CR | County Roads | 0.4614296361 | $631,693 | $631,693 | $291.48 | | |
| ISLANDEMS | Hospital GEN (EMS) | 0.4952018576 | $631,693 | $631,693 | $312.82 | | |
| LIB | Library Sno-Isle GEN | 0.3039084203 | $631,693 | $631,693 | $191.98 | | |
| PORTWHID | Port of S Whidbey GEN | 0.1086004714 | $631,693 | $631,693 | $68.60 | | |
| SCH206BOND | School 206 BOND | 0.5960237832 | $631,693 | $631,693 | $376.50 | | |
| SCH206CAP | School 206 CP | 0.3066144020 | $631,693 | $631,693 | $193.69 | | |
| SCH206MO | School 206 Enrichment | 0.4808755445 | $631,693 | $631,693 | $303.77 | | |
| ST | State School | 1.4761226122 | $631,693 | $631,693 | $932.46 | | |
| ST2 | State School Part 2 | 0.7953803475 | $631,693 | $631,693 | $502.44 | | |
| SWHIDPRBD | P & R S Whidbey BOND | 0.0144185398 | $631,693 | $631,693 | $9.11 | | |
| SWHIDPRBD3 | P & R S Whidbey BOND3 | 0.1483535547 | $631,693 | $631,693 | $93.71 | | |
| SWHIDPRMT | P & R S Whidbey GEN | 0.4600000000 | $631,693 | $631,693 | $290.58 | | |
| | Total Tax Rate: | 7.8330503944 | | | | | |
| | | | | Taxes w/Current Exemptions: | $4,948.10 | | |
| | | | | Taxes w/o Exemptions: | $4,948.10 | | |
Improvement / Building
| Improvement #1: | RESIDENTIAL | State Code: | Y | 1375.0 sqft | Value: | $281,693 |
| Bathrooms: | 2 | Bedrooms: | 3 | | Ceiling: | DRYWALL PAINTED | Exterior Wall/Cover: | PLY/HARDBOARD T-111 | | Floor Covering: | CARPET/VINYL 60-40 | Floor Structure: | WOOD W/SUBFLOOR | | Foundation: | CONCRETE | Heating: | FHA GAS | | Interior Finish: | DRYWALL PAINT | Plumbing Fixture Cnt: | 10 | | Roof Slope: | 4" IN 12" | Roof Structure/Cover: | CJ ASPHALT |
|
| | Type | Description | Class CD | Sub Class CD | Year Built | Area |
| | BAS | BASE/MAIN FLOOR | 3 | 0 | 1990 | 1375.0 |
| | AGR | ATTACHED GARAGE | 3 | 0 | 1990 | 441.0 |
| | OWP | OPEN WOOD PORCH W/STEPS | 3 | 0 | 1990 | 330.0 |
| | OWP | OPEN WOOD PORCH W/STEPS | 3 | 0 | 1990 | 128.8 |
Sketch
Property Image
Land
| 1 | 15 | SQ (12001-21780) | 0.0000 | 0.00 | 0.00 | 0.00 | 1.00 | $350,000 | $0 |
Roll Value History
| 2026 | N/A | N/A | N/A | N/A | N/A |
| 2025 | $281,693 | $350,000 | $0 | $631,693 | $631,693 |
| 2024 | $285,161 | $330,000 | $0 | $615,161 | $615,161 |
| 2023 | $288,626 | $310,000 | $0 | $598,626 | $598,626 |
| 2022 | $264,501 | $280,000 | $0 | $544,501 | $544,501 |
| 2021 | $232,723 | $230,000 | $0 | $462,723 | $462,723 |
| 2020 | $211,211 | $180,000 | $0 | $391,211 | $391,211 |
| 2019 | $151,434 | $240,000 | $0 | $391,434 | $391,434 |
| 2018 | $151,898 | $200,000 | $0 | $351,898 | $351,898 |
| 2017 | $152,831 | $200,000 | $0 | $352,831 | $352,831 |
| 2016 | $154,695 | $150,000 | $0 | $304,695 | $304,695 |
| 2015 | $156,558 | $150,000 | $0 | $306,558 | $306,558 |
| 2014 | $165,903 | $125,000 | $0 | $290,903 | $290,903 |
| 2013 | $168,003 | $125,000 | $0 | $293,003 | $293,003 |
| 2012 | $170,104 | $114,750 | $0 | $284,854 | $284,854 |
| 2011 | $172,203 | $135,000 | $0 | $307,203 | $307,203 |
| 2010 | $181,395 | $135,000 | $0 | $316,395 | $316,395 |
| 2009 | $189,186 | $150,000 | $0 | $339,186 | $339,186 |
| 2008 | $179,724 | $175,000 | $0 | $354,724 | $354,724 |
| 2007 | $182,094 | $175,000 | $0 | $357,094 | $357,094 |
Deed and Sales History
| 1 | 10/13/2022 | WD | Warranty Deed | ZUNDEL, LARRY | CAPUANO TTEE, JOHN | | | $670,000.00 | 54993 | 4553079 |
| 2 | 04/10/2001 | QCD | Quit Claim Deed | ZUNDEL, FLORENCE A | ZUNDEL, LARRY | | | $0.00 | 11213 | 20029622 |
| 3 | 12/01/1996 | WD | Warranty Deed | D'AVANZO, PAUL A | ZUNDEL, FLORENCE A | | | $200,000.00 | 70027 | 97000074 |
| 4 | 12/01/1996 | ESTSEPPROP | Establish Separate Property | ZUNDEL, FLORENCE A | ZUNDEL, FLORENCE A | | | $0.00 | 70028 | 97000075 |
| 5 | 02/01/1990 | QCD | Quit Claim Deed | PERKINS, ROBERT W | D'AVANZO, PAUL A | | | $0.00 | 902 | 90002928 |
| 6 | 02/01/1988 | WD | Warranty Deed | WRIGHTSMAN, HENRY J | PERKINS, ROBERT W | | | $22,000.00 | 80532 | 88002238 |
| 7 | 04/01/1983 | OTHER | Other - Misc. Documents | Unknown | WRIGHTSMAN, HENRY J | | | $0.00 | 59948 | 0 |
Payout Agreement
| No payout information available.. |