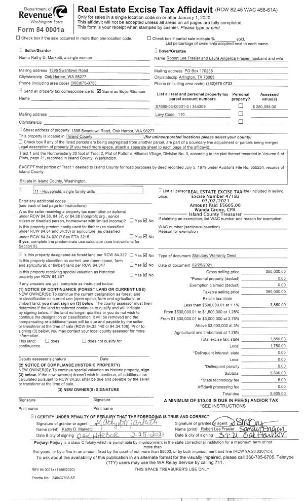
Property
Account |
| Property ID: | 605241 | Abbreviated Legal Description: | CLINTON VIEW EST #1 LOT 3 |
| Geographic ID: | S6397-00-00003-0 | Agent Code: | |
| Type: | Real | | |
| Tax Area: | 720 - APPRAISER-S Whid Schl Dist, Special District, improved & less than 1 acre | Land Use Code | 11 |
| Open Space: | N | DFL | N |
| Historic Property: | N | Remodel Property: | N |
| Multi-Family Redevelopment: | N | | |
| Township: | | Section: | |
| Range: | |
Location |
| Address: | 4685 WRIGHTSMAN PLACE CLINTON, WA 98236 | Mapsco: | |
| Neighborhood: | Cycle 4 | Map ID: | 810 |
| Neighborhood CD: | 4 |
Owner |
| Name: | FILSON, ALEX | Owner ID: | 281273 |
| Mailing Address: | 544 E ANGELA ST PLEASANTON, CA 94566 | % Ownership: | 100.0000000000% |
| | | Exemptions: | |
Taxes and Assessment Details
Values
| (+) Improvement Homesite Value: | + | $0 | |
| (+) Improvement Non-Homesite Value: | + | $418,593 | |
| (+) Land Homesite Value: | + | $0 | |
| (+) Land Non-Homesite Value: | + | $400,000 | |
| (+) Curr Use (HS): | + | $0 | $0 |
| (+) Curr Use (NHS): | + | $0 | $0 |
| | | -------------------------- | |
| (=) Market Value: | = | $818,593 | |
| (–) Productivity Loss: | – | $0 | |
| | | -------------------------- | |
| (=) Subtotal: | = | $818,593 | |
| (+) Senior Appraised Value: | + | $0 | |
| (+) Non-Senior Appraised Value: | + | $818,593 | |
| | | -------------------------- | |
| (=) Total Appraised Value: | = | $818,593 | |
| (–) Senior Exemption Loss: | – | $0 | |
| (–) Exemption Loss: | – | $0 | |
| | | -------------------------- | |
| (=) Taxable Value: | = | $818,593 | |
Taxing Jurisdiction
| Owner: | FILSON, ALEX | | |
| % Ownership: | 100.0000000000% | | |
| Total Value: | $818,593 | | |
| Tax Area: | 720 - APPRAISER-S Whid Schl Dist, Special District, improved & less than 1 acre |
| CF | Conservation Futures | 0.0313996660 | $818,593 | $818,593 | $25.70 | | |
| FIRE3 | Fire & Rescue Dist #3 S Whidbey GEN | 1.2130821753 | $818,593 | $818,593 | $993.02 | | |
| HOBOND | Hospital BOND | 0.1893405597 | $818,593 | $818,593 | $154.99 | | |
| HOGEN | Hospital GEN | 0.3848777722 | $818,593 | $818,593 | $315.06 | | |
| CE | County Current Expense | 0.3674210519 | $818,593 | $818,593 | $300.77 | | |
| CR | County Roads | 0.4614296361 | $818,593 | $818,593 | $377.72 | | |
| ISLANDEMS | Hospital GEN (EMS) | 0.4952018576 | $818,593 | $818,593 | $405.37 | | |
| LIB | Library Sno-Isle GEN | 0.3039084203 | $818,593 | $818,593 | $248.78 | | |
| PORTWHID | Port of S Whidbey GEN | 0.1086004714 | $818,593 | $818,593 | $88.90 | | |
| SCH206BOND | School 206 BOND | 0.5960237832 | $818,593 | $818,593 | $487.90 | | |
| SCH206CAP | School 206 CP | 0.3066144020 | $818,593 | $818,593 | $250.99 | | |
| SCH206MO | School 206 Enrichment | 0.4808755445 | $818,593 | $818,593 | $393.64 | | |
| ST | State School | 1.4761226122 | $818,593 | $818,593 | $1,208.34 | | |
| ST2 | State School Part 2 | 0.7953803475 | $818,593 | $818,593 | $651.09 | | |
| SWHIDPRBD | P & R S Whidbey BOND | 0.0144185398 | $818,593 | $818,593 | $11.80 | | |
| SWHIDPRBD3 | P & R S Whidbey BOND3 | 0.1483535547 | $818,593 | $818,593 | $121.44 | | |
| SWHIDPRMT | P & R S Whidbey GEN | 0.4600000000 | $818,593 | $818,593 | $376.55 | | |
| | Total Tax Rate: | 7.8330503944 | | | | | |
| | | | | Taxes w/Current Exemptions: | $6,412.06 | | |
| | | | | Taxes w/o Exemptions: | $6,412.06 | | |
Improvement / Building
| Improvement #1: | RESIDENTIAL | State Code: | Y | 2452.0 sqft | Value: | $418,593 |
| Bathrooms: | 2.5 | Bedrooms: | 3 | | Ceiling: | DRYWALL PAINTED | Exterior Wall/Cover: | SHINGLE | | Floor Covering: | HARDWOOD/CARP 60-40 | Floor Structure: | WOOD W/SUBFLOOR | | Foundation: | CONCRETE | Heating: | RADIANT FLOOR | | Interior Finish: | DRYWALL PAINT | Plumbing Fixture Cnt: | 14 | | Roof Slope: | 6" IN 12" | Roof Structure/Cover: | BEAM ALUMINUM HEAVY |
|
| | Type | Description | Class CD | Sub Class CD | Year Built | Area |
| | BAS | BASE/MAIN FLOOR | 3 | 0 | 2001 | 1222.0 |
| | OP1 | OPEN PORCH SLAB | 3 | 0 | 2001 | 640.0 |
| | AGR | ATTACHED GARAGE | 3 | 0 | 2001 | 483.0 |
| | OWP | OPEN WOOD PORCH W/STEPS | 3 | 0 | 2001 | 629.0 |
| | OWP | OPEN WOOD PORCH W/STEPS | 3 | 0 | 2001 | 54.0 |
| | OWC | OPEN WOOD PORCH W/STEPS/ROOF/C | 3 | 0 | 2001 | 44.0 |
| | DWN | DOWNSTAIRS LIVING AREA | 3 | 0 | 2001 | 1230.0 |
Sketch
Property Image
Land
| 1 | 16 | AC (00.51-01.00) | 0.0000 | 0.00 | 0.00 | 0.00 | 1.00 | $400,000 | $0 |
Roll Value History
| 2026 | N/A | N/A | N/A | N/A | N/A |
| 2025 | $418,593 | $400,000 | $0 | $818,593 | $818,593 |
| 2024 | $423,682 | $350,000 | $0 | $773,682 | $773,682 |
| 2023 | $428,772 | $330,000 | $0 | $758,772 | $758,772 |
| 2022 | $392,867 | $310,000 | $0 | $702,867 | $702,867 |
| 2021 | $345,648 | $250,000 | $0 | $595,648 | $595,648 |
| 2020 | $313,920 | $230,000 | $0 | $543,920 | $543,920 |
| 2019 | $242,863 | $300,000 | $0 | $542,863 | $542,863 |
| 2018 | $243,601 | $250,000 | $0 | $493,601 | $493,601 |
| 2017 | $245,079 | $250,000 | $0 | $495,079 | $495,079 |
| 2016 | $248,031 | $250,000 | $0 | $498,031 | $498,031 |
| 2015 | $250,983 | $200,000 | $0 | $450,983 | $450,983 |
| 2014 | $332,370 | $200,000 | $0 | $532,370 | $532,370 |
| 2013 | $336,234 | $200,000 | $0 | $536,234 | $536,234 |
| 2012 | $340,099 | $185,000 | $0 | $525,099 | $525,099 |
| 2011 | $343,964 | $200,000 | $0 | $543,964 | $543,964 |
| 2010 | $360,661 | $200,000 | $0 | $560,661 | $560,661 |
| 2009 | $375,970 | $250,000 | $0 | $625,970 | $625,970 |
| 2008 | $317,483 | $175,000 | $0 | $492,483 | $492,483 |
| 2007 | $320,974 | $175,000 | $0 | $495,974 | $495,974 |
Deed and Sales History
| 1 | 08/01/2017 | QCD | Quit Claim Deed | FILSON, ALEX | FILSON, ALEX | | | $0.00 | 30484 | 4427522 |
| 2 | 07/31/2017 | WD | Warranty Deed | HOLMAN, EDWARD K | FILSON, ALEX | | | $695,000.00 | 30483 | 4427521 |
| 3 | 02/25/2014 | SPWARDEED | Special Warranty Deed | WELLS FARGO BANK NA | HOLMAN, EDWARD K | | | $387,000.00 | 14380 | 4355690 |
| 4 | 12/04/2012 | TRUSTEED | Trustee's Deed | SCOTT, ROBERT J | WELLS FARGO BANK NA | | | $686,895.00 | 9701 | 4328907 |
| 5 | 03/07/2001 | WD | Warranty Deed | PERKINS, ROBERT W | SCOTT, ROBERT J | | | $115,000.00 | 10754 | 20026944 |
| 6 | 09/01/1985 | OTHER | Other - Misc. Documents | WRIGHTSMAN, HENRY J | PERKINS, ROBERT W | | | $26,000.00 | 52699 | 85010680 |
| 7 | 04/01/1983 | OTHER | Other - Misc. Documents | Unknown | WRIGHTSMAN, HENRY J | | | $0.00 | 59948 | 0 |
Payout Agreement
| No payout information available.. |