Property
Account |
| Property ID: | 606151 | Abbreviated Legal Description: | BAYVIEW MEADOWS #1 LOT 2 |
| Geographic ID: | S6088-00-00002-0 | Agent Code: | |
| Type: | Real | | |
| Tax Area: | 712 - APPRAISER-S Whid Schl Dist, outside Langley, improved, greater than 1 acre | Land Use Code | 11 |
| Open Space: | N | DFL | N |
| Historic Property: | N | Remodel Property: | N |
| Multi-Family Redevelopment: | N | | |
| Township: | | Section: | |
| Range: | |
Location |
| Address: | 1975 HILLVISTA PLACE FREELAND, WA 98249 | Mapsco: | |
| Neighborhood: | Cycle 3 | Map ID: | 326 |
| Neighborhood CD: | 3 |
Owner |
| Name: | WILSON, CLYDE H | Owner ID: | 264829 |
| Mailing Address: | KATHLEEN M WILSON 1975 HILL VISTA PLACE FREELAND, WA 98249 | % Ownership: | 100.0000000000% |
| | | Exemptions: | |
Taxes and Assessment Details
Values
| (+) Improvement Homesite Value: | + | $0 | |
| (+) Improvement Non-Homesite Value: | + | $869,325 | |
| (+) Land Homesite Value: | + | $0 | |
| (+) Land Non-Homesite Value: | + | $700,000 | |
| (+) Curr Use (HS): | + | $0 | $0 |
| (+) Curr Use (NHS): | + | $0 | $0 |
| | | -------------------------- | |
| (=) Market Value: | = | $1,569,325 | |
| (–) Productivity Loss: | – | $0 | |
| | | -------------------------- | |
| (=) Subtotal: | = | $1,569,325 | |
| (+) Senior Appraised Value: | + | $0 | |
| (+) Non-Senior Appraised Value: | + | $1,569,325 | |
| | | -------------------------- | |
| (=) Total Appraised Value: | = | $1,569,325 | |
| (–) Senior Exemption Loss: | – | $0 | |
| (–) Exemption Loss: | – | $0 | |
| | | -------------------------- | |
| (=) Taxable Value: | = | $1,569,325 | |
Taxing Jurisdiction
| Owner: | WILSON, CLYDE H | | |
| % Ownership: | 100.0000000000% | | |
| Total Value: | $1,569,325 | | |
| Tax Area: | 712 - APPRAISER-S Whid Schl Dist, outside Langley, improved, greater than 1 acre |
| CF | Conservation Futures | 0.0313996660 | $1,569,325 | $1,569,325 | $49.28 | | |
| FIRE3 | Fire & Rescue Dist #3 S Whidbey GEN | 1.2130821753 | $1,569,325 | $1,569,325 | $1,903.72 | | |
| HOBOND | Hospital BOND | 0.1893405597 | $1,569,325 | $1,569,325 | $297.14 | | |
| HOGEN | Hospital GEN | 0.3848777722 | $1,569,325 | $1,569,325 | $604.00 | | |
| CE | County Current Expense | 0.3674210519 | $1,569,325 | $1,569,325 | $576.60 | | |
| CR | County Roads | 0.4614296361 | $1,569,325 | $1,569,325 | $724.13 | | |
| ISLANDEMS | Hospital GEN (EMS) | 0.4952018576 | $1,569,325 | $1,569,325 | $777.13 | | |
| LIB | Library Sno-Isle GEN | 0.3039084203 | $1,569,325 | $1,569,325 | $476.93 | | |
| PORTWHID | Port of S Whidbey GEN | 0.1086004714 | $1,569,325 | $1,569,325 | $170.43 | | |
| SCH206BOND | School 206 BOND | 0.5960237832 | $1,569,325 | $1,569,325 | $935.36 | | |
| SCH206CAP | School 206 CP | 0.3066144020 | $1,569,325 | $1,569,325 | $481.18 | | |
| SCH206MO | School 206 Enrichment | 0.4808755445 | $1,569,325 | $1,569,325 | $754.65 | | |
| ST | State School | 1.4761226122 | $1,569,325 | $1,569,325 | $2,316.52 | | |
| ST2 | State School Part 2 | 0.7953803475 | $1,569,325 | $1,569,325 | $1,248.21 | | |
| SWHIDPRBD | P & R S Whidbey BOND | 0.0144185398 | $1,569,325 | $1,569,325 | $22.63 | | |
| SWHIDPRBD3 | P & R S Whidbey BOND3 | 0.1483535547 | $1,569,325 | $1,569,325 | $232.81 | | |
| SWHIDPRMT | P & R S Whidbey GEN | 0.4600000000 | $1,569,325 | $1,569,325 | $721.89 | | |
| | Total Tax Rate: | 7.8330503944 | | | | | |
| | | | | Taxes w/Current Exemptions: | $12,292.61 | | |
| | | | | Taxes w/o Exemptions: | $12,292.61 | | |
Improvement / Building
| Improvement #1: | RESIDENTIAL | State Code: | Y | 3696.0 sqft | Value: | $869,325 |
| Bathrooms: | 2.75 | Bedrooms: | 3 | | Ceiling: | TONGUE & GROOVE | Exterior Wall/Cover: | SHINGLE | | Floor Covering: | HARDWOOD/CARP 80-20 | Floor Structure: | WOOD W/SUBFLOOR | | Foundation: | CONCRETE | Heating: | RADIANT FLOOR | | Interior Finish: | DRYWALL PAINT | Plumbing Fixture Cnt: | 15 | | Roof Slope: | 8" IN 12" | Roof Structure/Cover: | BEAM ASPHALT |
|
| | Type | Description | Class CD | Sub Class CD | Year Built | Area |
| | BAS | BASE/MAIN FLOOR | 5 | 0 | 2005 | 2448.0 |
| | BAS | BASE/MAIN FLOOR | 5 | 0 | 2005 | 528.0 |
| | DGR | DETACHED GARAGE | 5 | 0 | 2005 | 576.0 |
| | UPS | UPPER STORY | 5 | 0 | 2005 | 720.0 |
| | OWP | OPEN WOOD PORCH W/STEPS | 5 | 0 | 2005 | 313.0 |
| | OWC | OPEN WOOD PORCH W/STEPS/ROOF/C | 5 | 0 | 2005 | 845.4 |
| | OWC | OPEN WOOD PORCH W/STEPS/ROOF/C | 5 | 0 | 2005 | 247.5 |
| | OWC | OPEN WOOD PORCH W/STEPS/ROOF/C | 5 | 0 | 2005 | 128.0 |
| | OP1 | OPEN PORCH SLAB | 5 | 0 | 2005 | 418.0 |
| | BIG | BUILT IN GARAGE | 5 | 0 | 2005 | 504.0 |
Sketch
Property Image
Land
| 1 | 18 | AC (02.01-03.00) | 0.0000 | 0.00 | 0.00 | 0.00 | 1.00 | $700,000 | $0 |
Roll Value History
| 2026 | N/A | N/A | N/A | N/A | N/A |
| 2025 | $869,325 | $700,000 | $0 | $1,569,325 | $1,569,325 |
| 2024 | $879,289 | $700,000 | $0 | $1,579,289 | $1,579,289 |
| 2023 | $889,251 | $700,000 | $0 | $1,589,251 | $1,589,251 |
| 2022 | $811,986 | $700,000 | $0 | $1,511,986 | $1,511,986 |
| 2021 | $700,193 | $410,000 | $0 | $1,110,193 | $1,110,193 |
| 2020 | $681,442 | $380,000 | $0 | $1,061,442 | $1,061,442 |
| 2019 | $627,427 | $350,000 | $0 | $977,427 | $977,427 |
| 2018 | $629,145 | $250,000 | $0 | $879,145 | $879,145 |
| 2017 | $632,581 | $250,000 | $0 | $882,581 | $882,581 |
| 2016 | $614,051 | $250,000 | $0 | $864,051 | $864,051 |
| 2015 | $620,654 | $190,000 | $0 | $810,654 | $810,654 |
| 2014 | $702,431 | $190,000 | $0 | $892,431 | $892,431 |
| 2013 | $748,417 | $190,000 | $0 | $938,417 | $938,417 |
| 2012 | $756,474 | $182,750 | $0 | $939,224 | $939,224 |
| 2011 | $764,529 | $215,000 | $0 | $979,529 | $979,529 |
| 2010 | $805,561 | $215,000 | $0 | $1,020,561 | $1,020,561 |
| 2009 | $831,232 | $275,000 | $0 | $1,106,232 | $1,106,232 |
| 2008 | $841,250 | $366,000 | $0 | $1,207,250 | $1,207,250 |
| 2007 | $815,887 | $346,000 | $0 | $1,161,887 | $1,161,887 |
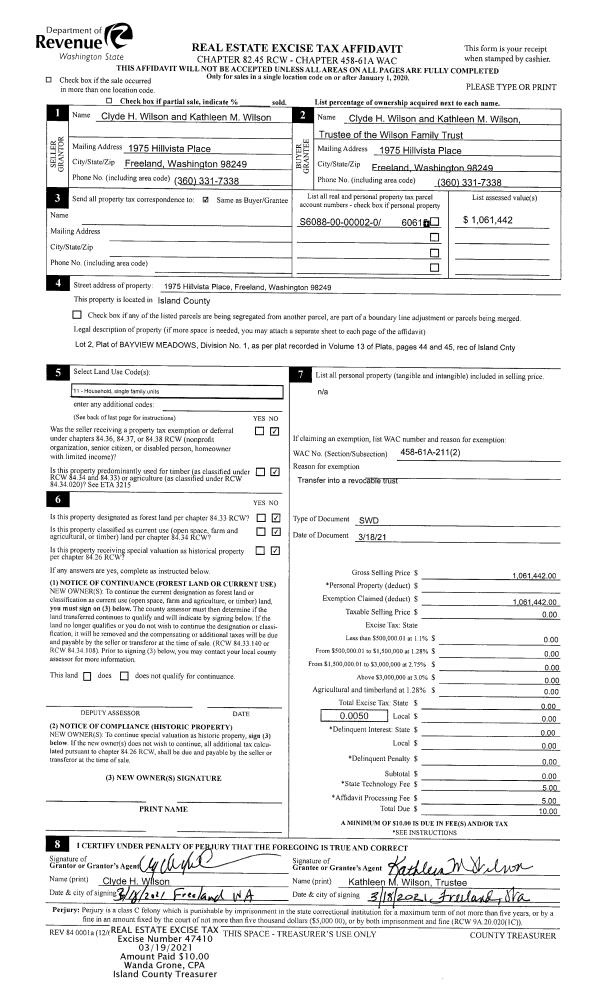
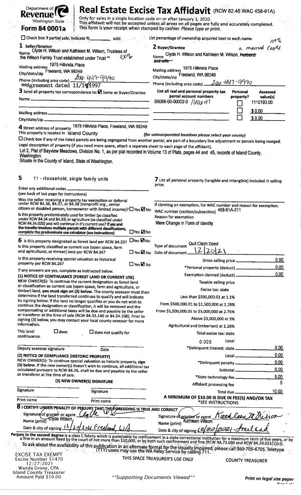
Deed and Sales History
| 1 | 12/20/2021 | QCD | Quit Claim Deed | WILSON TTEE, CLYDE H | WILSON, CLYDE H | | | $0.00 | 51470 | 4536639 |
| 2 | 03/18/2021 | WD | Warranty Deed | WILSON, CLYDE H | WILSON TTEE, CLYDE H | | | $0.00 | 47410 | |
| 3 | 01/07/2014 | WD | Warranty Deed | KNOWLTON, MARTHA S | WILSON, CLYDE H | | | $815,000.00 | 13975 | 4353705 |
| 4 | 08/26/2003 | WD | Warranty Deed | HUCKELL, DUANE A | KNOWLTON, MARTHA S | | | $212,000.00 | 3463 | 4074676 |
| 5 | 05/01/1992 | WD | Warranty Deed | COX, ARTHUR W | HUCKELL, DUANE A | | | $80,500.00 | 21757 | 92008343 |
| 6 | 10/01/1987 | QCD | Quit Claim Deed | GALE-COX, RUTH G | COX, ARTHUR W | | | $0.00 | 73412 | 87014969 |
| 7 | 10/01/1987 | WD | Warranty Deed | BURRIER, WARREN | GALE-COX, RUTH G | | | $32,000.00 | 73062 | 87013543 |
| 8 | 08/01/1987 | QCD | Quit Claim Deed | BURRIER, CHRISTINE | BURRIER, WARREN | | | $0.00 | 72593 | 87011773 |
| 9 | 07/01/1987 | QCD | Quit Claim Deed | PRAIRIE, MANAGEMENT I | BURRIER, CHRISTINE | | | $0.00 | 72288 | 87010362 |
| 10 | 01/01/1900 | OTHER | Other - Misc. Documents | Unknown | PRAIRIE, MANAGEMENT I | | | $0.00 | 11461 | 382999 |
Payout Agreement
| No payout information available.. |