Property
Account |
| Property ID: | 606641 | Abbreviated Legal Description: | LOT 3 SP 84-34.13103.033-4770 V1 SP P404 AF#85012822 REVISED SP 390-96 V3 SP P128 AF#96021873 |
| Geographic ID: | R13103-052-4480 | Agent Code: | |
| Type: | Real | | |
| Tax Area: | 312 - APPRAISER-Cpvl Schl Dist, outside Cpvl, improved, greater than 1 acre | Land Use Code | 11 |
| Open Space: | N | DFL | N |
| Historic Property: | N | Remodel Property: | N |
| Multi-Family Redevelopment: | N | | |
| Township: | 31 | Section: | 03 |
| Range: | R1 |
Location |
| Address: | 372 JACOBS RD COUPEVILLE, WA 98239 | Mapsco: | |
| Neighborhood: | Cycle 2 | Map ID: | 26 |
| Neighborhood CD: | 2 |
Owner |
| Name: | CARDINAL, JAMES H | Owner ID: | 317487 |
| Mailing Address: | COURTNIE M DECKWA CLARK 372 JACOBS RD COUPEVILLE, WA 98239 | % Ownership: | 100.0000000000% |
| | | Exemptions: | |
Taxes and Assessment Details
Values
| (+) Improvement Homesite Value: | + | $0 | |
| (+) Improvement Non-Homesite Value: | + | $86,416 | |
| (+) Land Homesite Value: | + | $0 | |
| (+) Land Non-Homesite Value: | + | $308,125 | |
| (+) Curr Use (HS): | + | $0 | $0 |
| (+) Curr Use (NHS): | + | $0 | $0 |
| | | -------------------------- | |
| (=) Market Value: | = | $394,541 | |
| (–) Productivity Loss: | – | $0 | |
| | | -------------------------- | |
| (=) Subtotal: | = | $394,541 | |
| (+) Senior Appraised Value: | + | $0 | |
| (+) Non-Senior Appraised Value: | + | $394,541 | |
| | | -------------------------- | |
| (=) Total Appraised Value: | = | $394,541 | |
| (–) Senior Exemption Loss: | – | $0 | |
| (–) Exemption Loss: | – | $0 | |
| | | -------------------------- | |
| (=) Taxable Value: | = | $394,541 | |
Taxing Jurisdiction
| Owner: | CARDINAL, JAMES H | | |
| % Ownership: | 100.0000000000% | | |
| Total Value: | $394,541 | | |
| Tax Area: | 312 - APPRAISER-Cpvl Schl Dist, outside Cpvl, improved, greater than 1 acre |
| CF | Conservation Futures | 0.0313996660 | $394,541 | $394,541 | $12.39 | | |
| CEM2 | Cemetery #2 | 0.0092609791 | $394,541 | $394,541 | $3.65 | | |
| FIRE5 | Fire & Rescue Dist #5 C Whidbey GEN | 1.1892169230 | $394,541 | $394,541 | $469.19 | | |
| FIRE5BOND | Fire & Rescue Dist #5 C Whidbey BOND | 0.1394359503 | $394,541 | $394,541 | $55.01 | | |
| HOBOND | Hospital BOND | 0.1893405597 | $394,541 | $394,541 | $74.70 | | |
| HOGEN | Hospital GEN | 0.3848777722 | $394,541 | $394,541 | $151.85 | | |
| CE | County Current Expense | 0.3674210519 | $394,541 | $394,541 | $144.96 | | |
| CR | County Roads | 0.4614296361 | $394,541 | $394,541 | $182.05 | | |
| ISLANDEMS | Hospital GEN (EMS) | 0.4952018576 | $394,541 | $394,541 | $195.38 | | |
| LIB | Library Sno-Isle GEN | 0.3039084203 | $394,541 | $394,541 | $119.90 | | |
| LIBCAP | Library Sno-Isle BOND (Cap Fac Imp Area) | 0.0528562629 | $394,541 | $394,541 | $20.85 | | |
| POCOUP | Port of Coupeville GEN | 0.1065226063 | $394,541 | $394,541 | $42.03 | | |
| POCOUPIDD | Port of Coupeville IDD | 0.3353038577 | $394,541 | $394,541 | $132.29 | | |
| COUPSDTECH | School 204 CP (TECH) | 0.1215123397 | $394,541 | $394,541 | $47.94 | | |
| SCH204MO | School 204 Enrichment | 0.6416662518 | $394,541 | $394,541 | $253.16 | | |
| ST | State School | 1.4761226122 | $394,541 | $394,541 | $582.39 | | |
| ST2 | State School Part 2 | 0.7953803475 | $394,541 | $394,541 | $313.81 | | |
| | Total Tax Rate: | 7.1008570943 | | | | | |
| | | | | Taxes w/Current Exemptions: | $2,801.55 | | |
| | | | | Taxes w/o Exemptions: | $2,801.55 | | |
Improvement / Building
| Improvement #1: | MANUFACTURED HOME | State Code: | Y | 1514.9 sqft | Value: | $86,416 |
| Bathrooms: | 2 | Bedrooms: | 3 | | Ceiling: | PLASTER PAINTED | Cooling: | EVAP NO DUCT | | Exterior Wall/Cover: | VINYL | Floor Covering: | CARPET 100% | | Floor Structure: | SLAB ON GRADE | Foundation: | SLAB | | Heating: | FHA ELECTRIC | Interior Finish: | PLASTER | | Plumbing Fixture Cnt: | 1 | Roof Slope: | FLAT | | Roof Structure/Cover: | CJ ALUMINIUM HEAVY |   |   |
|
| | Type | Description | Class CD | Sub Class CD | Year Built | Area |
| | BAS | BASE/MAIN FLOOR | 4 | 0 | 1989 | 1514.9 |
| | OP3 | OPEN PORCH W/ROOF | 4 | 0 | 1989 | 192.0 |
Sketch
Property Image
Land
| 1 | HS | HOMESITE | 1.0000 | 43560.00 | 0.00 | 0.00 | 1.00 | $220,000 | $0 |
| 2 | 91 | UNDEVELOPED LAND-METES AND BOUNDS | 1.5000 | 65340.00 | 0.00 | 0.00 | 1.00 | $88,125 | $0 |
Roll Value History
| 2026 | N/A | N/A | N/A | N/A | N/A |
| 2025 | $86,416 | $308,125 | $0 | $394,541 | $394,541 |
| 2024 | $86,416 | $280,000 | $0 | $366,416 | $366,416 |
| 2023 | $77,979 | $270,000 | $0 | $347,979 | $347,979 |
| 2022 | $73,183 | $250,000 | $0 | $323,183 | $323,183 |
| 2021 | $66,982 | $150,000 | $0 | $216,982 | $216,982 |
| 2020 | $67,195 | $150,000 | $0 | $217,195 | $217,195 |
| 2019 | $54,639 | $180,000 | $0 | $234,639 | $234,639 |
| 2018 | $39,590 | $160,000 | $0 | $199,590 | $199,590 |
| 2017 | $41,069 | $130,000 | $0 | $171,069 | $171,069 |
| 2016 | $44,874 | $120,000 | $0 | $164,874 | $164,874 |
| 2015 | $46,371 | $114,750 | $0 | $161,121 | $161,121 |
| 2014 | $48,616 | $114,750 | $0 | $163,366 | $163,366 |
| 2013 | $50,114 | $80,750 | $0 | $130,864 | $130,864 |
| 2012 | $63,791 | $80,750 | $0 | $144,541 | $144,541 |
| 2011 | $65,076 | $95,000 | $0 | $160,076 | $160,076 |
| 2010 | $47,713 | $95,000 | $0 | $142,713 | $142,713 |
| 2009 | $49,643 | $124,000 | $0 | $173,643 | $173,643 |
| 2008 | $50,771 | $124,000 | $0 | $174,771 | $174,771 |
| 2007 | $52,069 | $124,000 | $0 | $176,069 | $176,069 |
Deed and Sales History
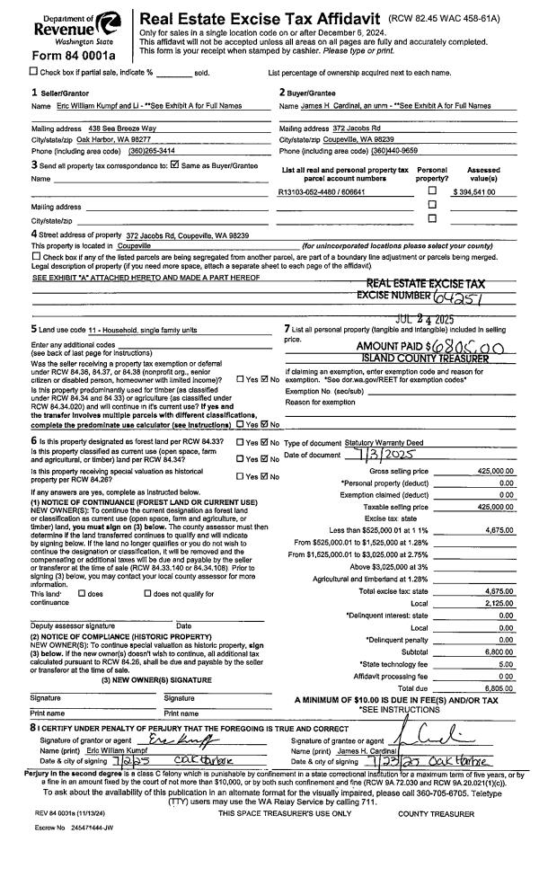
| 1 | 07/03/2025 | WD | Warranty Deed | KUMPF JTWROS, ERIC WILLIAM | CARDINAL, JAMES H | | | $425,000.00 | 64251 | 4588708 |
| 2 | 11/28/2018 | QCD | Quit Claim Deed | KUMPF, ERIC WILLIAM | KUMPF JTWROS, ERIC WILLIAM | | | $0.00 | 36885 | 4456049 |
| 3 | 08/03/2016 | WD | Warranty Deed | STUURMANS, CECIL E | KUMPF, ERIC WILLIAM | | | $154,000.00 | 25693 | 4405201 |
| 4 | 06/01/1997 | OTHER | Other - Misc. Documents | Unknown | STUURMANS, CECIL E | | | $0.00 | 67443 | 96021873 |
Payout Agreement
| No payout information available.. |