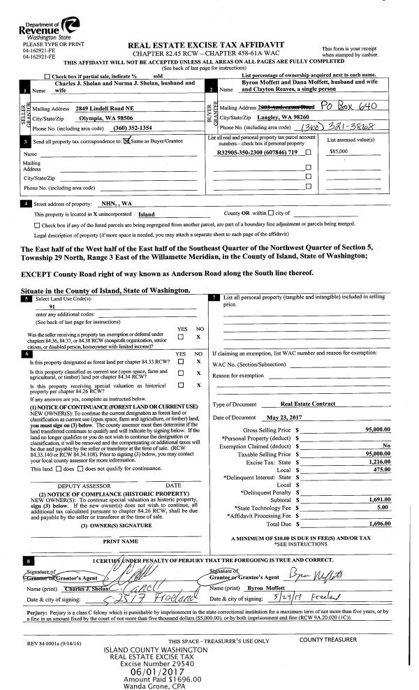
Property
Account |
| Property ID: | 607846 | Abbreviated Legal Description: | E/2 W/2 E/2 SE NW EX CO RD FR 351-2210 & 274-2330 |
| Geographic ID: | R32905-350-2300 | Agent Code: | |
| Type: | Real | | |
| Tax Area: | 712 - APPRAISER-S Whid Schl Dist, outside Langley, improved, greater than 1 acre | Land Use Code | 11 |
| Open Space: | N | DFL | N |
| Historic Property: | N | Remodel Property: | N |
| Multi-Family Redevelopment: | N | | |
| Township: | 29 | Section: | 05 |
| Range: | R3 |
Location |
| Address: | 2983 ANDERSON RD LANGLEY, WA 98260 | Mapsco: | |
| Neighborhood: | Cycle 4 | Map ID: | 734 |
| Neighborhood CD: | 4 |
Owner |
| Name: | MOFFETT, BYRON | Owner ID: | 280184 |
| Mailing Address: | DANA MOFFETT PO BOX 640 LANGLEY, WA 98260 | % Ownership: | 100.0000000000% |
| | | Exemptions: | |
Taxes and Assessment Details
Values
| (+) Improvement Homesite Value: | + | $0 | |
| (+) Improvement Non-Homesite Value: | + | $281,808 | |
| (+) Land Homesite Value: | + | $0 | |
| (+) Land Non-Homesite Value: | + | $370,000 | |
| (+) Curr Use (HS): | + | $0 | $0 |
| (+) Curr Use (NHS): | + | $0 | $0 |
| | | -------------------------- | |
| (=) Market Value: | = | $651,808 | |
| (–) Productivity Loss: | – | $0 | |
| | | -------------------------- | |
| (=) Subtotal: | = | $651,808 | |
| (+) Senior Appraised Value: | + | $0 | |
| (+) Non-Senior Appraised Value: | + | $651,808 | |
| | | -------------------------- | |
| (=) Total Appraised Value: | = | $651,808 | |
| (–) Senior Exemption Loss: | – | $0 | |
| (–) Exemption Loss: | – | $0 | |
| | | -------------------------- | |
| (=) Taxable Value: | = | $651,808 | |
Taxing Jurisdiction
| Owner: | MOFFETT, BYRON | | |
| % Ownership: | 100.0000000000% | | |
| Total Value: | $651,808 | | |
| Tax Area: | 712 - APPRAISER-S Whid Schl Dist, outside Langley, improved, greater than 1 acre |
| CF | Conservation Futures | 0.0313996660 | $651,808 | $651,808 | $20.47 | | |
| FIRE3 | Fire & Rescue Dist #3 S Whidbey GEN | 1.2130821753 | $651,808 | $651,808 | $790.70 | | |
| HOBOND | Hospital BOND | 0.1893405597 | $651,808 | $651,808 | $123.41 | | |
| HOGEN | Hospital GEN | 0.3848777722 | $651,808 | $651,808 | $250.87 | | |
| CE | County Current Expense | 0.3674210519 | $651,808 | $651,808 | $239.49 | | |
| CR | County Roads | 0.4614296361 | $651,808 | $651,808 | $300.76 | | |
| ISLANDEMS | Hospital GEN (EMS) | 0.4952018576 | $651,808 | $651,808 | $322.78 | | |
| LIB | Library Sno-Isle GEN | 0.3039084203 | $651,808 | $651,808 | $198.09 | | |
| PORTWHID | Port of S Whidbey GEN | 0.1086004714 | $651,808 | $651,808 | $70.79 | | |
| SCH206BOND | School 206 BOND | 0.5960237832 | $651,808 | $651,808 | $388.49 | | |
| SCH206CAP | School 206 CP | 0.3066144020 | $651,808 | $651,808 | $199.85 | | |
| SCH206MO | School 206 Enrichment | 0.4808755445 | $651,808 | $651,808 | $313.44 | | |
| ST | State School | 1.4761226122 | $651,808 | $651,808 | $962.15 | | |
| ST2 | State School Part 2 | 0.7953803475 | $651,808 | $651,808 | $518.44 | | |
| SWHIDPRBD | P & R S Whidbey BOND | 0.0144185398 | $651,808 | $651,808 | $9.40 | | |
| SWHIDPRBD3 | P & R S Whidbey BOND3 | 0.1483535547 | $651,808 | $651,808 | $96.70 | | |
| SWHIDPRMT | P & R S Whidbey GEN | 0.4600000000 | $651,808 | $651,808 | $299.83 | | |
| | Total Tax Rate: | 7.8330503944 | | | | | |
| | | | | Taxes w/Current Exemptions: | $5,105.66 | | |
| | | | | Taxes w/o Exemptions: | $5,105.66 | | |
Improvement / Building
| Improvement #1: | RESIDENTIAL | State Code: | Y | 1226.0 sqft | Value: | $281,808 |
| Bathrooms: | 1 | Bedrooms: | 2 | | Ceiling: | DRYWALL PAINTED | Cooling: | HEAT PUMP/CONV/V | | Exterior Wall/Cover: | WOOD SIDING | Floor Covering: | CARPET/VINYL 60-40 | | Floor Structure: | WOOD W/SUBFLOOR | Foundation: | CONCRETE | | Interior Finish: | DRYWALL PAINT | Plumbing Fixture Cnt: | 6 | | Roof Slope: | 5" IN 12" | Roof Structure/Cover: | CJ ASPHALT |
|
| | Type | Description | Class CD | Sub Class CD | Year Built | Area |
| | BAS | BASE/MAIN FLOOR | 3 | 0 | 2021 | 1226.0 |
| | OWC | OPEN WOOD PORCH W/STEPS/ROOF/C | 3 | 0 | 2021 | 300.0 |
| | OWP | OPEN WOOD PORCH W/STEPS | 3 | 0 | 2021 | 142.0 |
| | CPD | OPEN CARPORT DIRT FLOOR | 3 | 0 | 2021 | 156.0 |
| | UTY | STORAGE/UTILITY | 3 | 0 | 2021 | 160.0 |
| | OWR | OPEN WOOD PORCH W/STEPS/ROOF | 3 | 0 | 2021 | 32.0 |
Sketch
Property Image
Land
| 1 | 32 | AC (03.01-09.99) | 5.8700 | 0.00 | 0.00 | 0.00 | 1.00 | $370,000 | $0 |
Roll Value History
| 2026 | N/A | N/A | N/A | N/A | N/A |
| 2025 | $281,808 | $370,000 | $0 | $651,808 | $651,808 |
| 2024 | $284,044 | $350,000 | $0 | $634,044 | $634,044 |
| 2023 | $287,024 | $330,000 | $0 | $617,024 | $617,024 |
| 2022 | $264,638 | $290,000 | $0 | $554,638 | $554,638 |
| 2021 | $234,811 | $230,000 | $0 | $464,811 | $464,811 |
| 2020 | $0 | $150,000 | $0 | $150,000 | $150,000 |
| 2019 | $0 | $135,000 | $0 | $135,000 | $135,000 |
| 2018 | $0 | $120,000 | $0 | $120,000 | $120,000 |
| 2017 | $0 | $120,000 | $0 | $120,000 | $120,000 |
| 2016 | $0 | $85,000 | $0 | $85,000 | $85,000 |
| 2015 | $0 | $100,000 | $0 | $100,000 | $100,000 |
| 2014 | $0 | $146,750 | $0 | $146,750 | $146,750 |
| 2013 | $0 | $146,750 | $0 | $146,750 | $146,750 |
| 2012 | $0 | $146,750 | $0 | $146,750 | $146,750 |
| 2011 | $0 | $146,750 | $0 | $146,750 | $146,750 |
| 2010 | $0 | $146,750 | $0 | $146,750 | $146,750 |
| 2009 | $0 | $199,580 | $0 | $199,580 | $199,580 |
| 2008 | $0 | $171,592 | $0 | $171,592 | $171,592 |
| 2007 | $0 | $171,592 | $0 | $171,592 | $171,592 |
Deed and Sales History
| 1 | 05/23/2017 | REC | Real Estate Contract | SHELAN, CHARLES J | MOFFETT, BYRON | | | $95,000.00 | 29540 | 4423498 |
| 2 | 09/01/1986 | QCD | Quit Claim Deed | SHELAN, CHAS & | SHELAN, CHARLES J | | | $0.00 | 62638 | 86011961 |
| 3 | 06/01/1986 | OTHER | Other - Misc. Documents | SHELAN, CHAS & | SHELAN, CHAS & | | | $0.00 | 61666 | 86005671 |
| 4 | 01/01/1900 | OTHER | Other - Misc. Documents | Unknown | SHELAN, CHAS & | | | $0.00 | 0 | 0 |
Payout Agreement
| No payout information available.. |