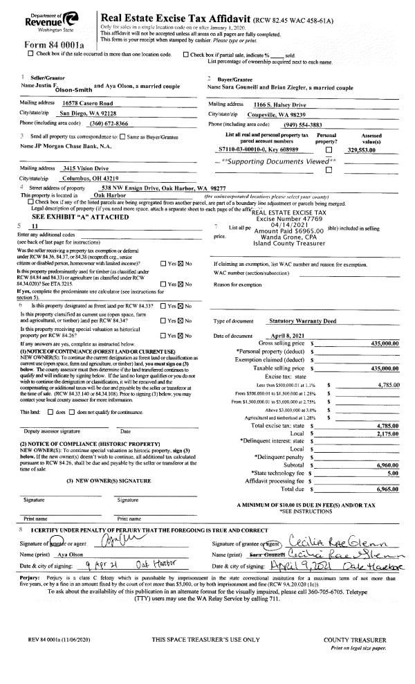
Property
Account |
| Property ID: | 608989 | Abbreviated Legal Description: | HERITAGE NORTH #3 LOT 10 |
| Geographic ID: | S7110-03-00010-0 | Agent Code: | |
| Type: | Real | | |
| Tax Area: | 100 - APPRAISER-OH Schl Dist, in OH | Land Use Code | 11 |
| Open Space: | N | DFL | N |
| Historic Property: | N | Remodel Property: | N |
| Multi-Family Redevelopment: | N | | |
| Township: | | Section: | |
| Range: | |
Location |
| Address: | 538 NW ENSIGN DR OAK HARBOR, WA 98277 | Mapsco: | |
| Neighborhood: | Cycle 1 | Map ID: | 253 |
| Neighborhood CD: | 1 |
Owner |
| Name: | ZIEGLER, BRIAN | Owner ID: | 298880 |
| Mailing Address: | SARA GOUNEILI 538 NW ENSIGN DR OAK HARBOR, WA 98277-5626 | % Ownership: | 100.0000000000% |
| | | Exemptions: | |
Taxes and Assessment Details
Values
| (+) Improvement Homesite Value: | + | $0 | |
| (+) Improvement Non-Homesite Value: | + | $314,654 | |
| (+) Land Homesite Value: | + | $0 | |
| (+) Land Non-Homesite Value: | + | $190,000 | |
| (+) Curr Use (HS): | + | $0 | $0 |
| (+) Curr Use (NHS): | + | $0 | $0 |
| | | -------------------------- | |
| (=) Market Value: | = | $504,654 | |
| (–) Productivity Loss: | – | $0 | |
| | | -------------------------- | |
| (=) Subtotal: | = | $504,654 | |
| (+) Senior Appraised Value: | + | $0 | |
| (+) Non-Senior Appraised Value: | + | $504,654 | |
| | | -------------------------- | |
| (=) Total Appraised Value: | = | $504,654 | |
| (–) Senior Exemption Loss: | – | $0 | |
| (–) Exemption Loss: | – | $0 | |
| | | -------------------------- | |
| (=) Taxable Value: | = | $504,654 | |
Taxing Jurisdiction
| Owner: | ZIEGLER, BRIAN | | |
| % Ownership: | 100.0000000000% | | |
| Total Value: | $504,654 | | |
| Tax Area: | 100 - APPRAISER-OH Schl Dist, in OH |
| CF | Conservation Futures | 0.0313996660 | $504,654 | $504,654 | $15.85 | | |
| CEM1 | Cemetery #1 | 0.0040018856 | $504,654 | $504,654 | $2.02 | | |
| COH | City of Oak Harbor | 2.3090730572 | $504,654 | $504,654 | $1,165.28 | | |
| OAKBOND | City of Oak Harbor BOND | 0.1902260131 | $504,654 | $504,654 | $96.00 | | |
| HOBOND | Hospital BOND | 0.1893405597 | $504,654 | $504,654 | $95.55 | | |
| HOGEN | Hospital GEN | 0.3848777722 | $504,654 | $504,654 | $194.23 | | |
| CE | County Current Expense | 0.3674210519 | $504,654 | $504,654 | $185.42 | | |
| ISLANDEMS | Hospital GEN (EMS) | 0.4952018576 | $504,654 | $504,654 | $249.91 | | |
| LIB | Library Sno-Isle GEN | 0.3039084203 | $504,654 | $504,654 | $153.37 | | |
| NWHIDPRMT | P & R N Whidbey GEN | 0.1990272349 | $504,654 | $504,654 | $100.44 | | |
| SCH201MO | School 201 Enrichment | 2.3851112745 | $504,654 | $504,654 | $1,203.66 | | |
| ST | State School | 1.4761226122 | $504,654 | $504,654 | $744.93 | | |
| ST2 | State School Part 2 | 0.7953803475 | $504,654 | $504,654 | $401.39 | | |
| | Total Tax Rate: | 9.1310917527 | | | | | |
| | | | | Taxes w/Current Exemptions: | $4,608.05 | | |
| | | | | Taxes w/o Exemptions: | $4,608.05 | | |
Improvement / Building
| Improvement #1: | RESIDENTIAL | State Code: | Y | 1468.0 sqft | Value: | $314,654 |
| Bathrooms: | 2 | Bedrooms: | 3 | | Ceiling: | DRYWALL PAINTED | Exterior Wall/Cover: | WOOD SIDING | | Floor Covering: | HARDWOOD 100% | Floor Structure: | WOOD W/SUBFLOOR | | Foundation: | CONCRETE | Heating: | FHA GAS | | Interior Finish: | DRYWALL PAINT | Plumbing Fixture Cnt: | 12 | | Roof Slope: | 5" IN 12" | Roof Structure/Cover: | CJ ASPHALT |
|
| | Type | Description | Class CD | Sub Class CD | Year Built | Area |
| | BAS | BASE/MAIN FLOOR | 3 | 0 | 1987 | 1468.0 |
| | AGR | ATTACHED GARAGE | 3 | 0 | 1987 | 440.0 |
| | OWP | OPEN WOOD PORCH W/STEPS | 3 | 0 | 1987 | 36.0 |
| | OWP | OPEN WOOD PORCH W/STEPS | 3 | 0 | 1987 | 198.0 |
Sketch
Property Image
Land
| 1 | 14 | SQ (08001-12000) | 0.0000 | 0.00 | 0.00 | 0.00 | 1.00 | $190,000 | $0 |
Roll Value History
| 2026 | N/A | N/A | N/A | N/A | N/A |
| 2025 | $314,654 | $190,000 | $0 | $504,654 | $504,654 |
| 2024 | $318,433 | $180,000 | $0 | $498,433 | $498,433 |
| 2023 | $314,654 | $190,000 | $0 | $504,654 | $504,654 |
| 2022 | $288,338 | $180,000 | $0 | $468,338 | $468,338 |
| 2021 | $235,853 | $120,000 | $0 | $355,853 | $355,853 |
| 2020 | $229,553 | $100,000 | $0 | $329,553 | $329,553 |
| 2019 | $164,930 | $150,000 | $0 | $314,930 | $314,930 |
| 2018 | $165,438 | $130,000 | $0 | $295,438 | $295,438 |
| 2017 | $163,366 | $110,000 | $0 | $273,366 | $273,366 |
| 2016 | $165,357 | $90,000 | $0 | $255,357 | $255,357 |
| 2015 | $138,663 | $70,000 | $0 | $208,663 | $208,663 |
| 2014 | $140,487 | $55,000 | $0 | $195,487 | $195,487 |
| 2013 | $142,312 | $55,000 | $0 | $197,312 | $197,312 |
| 2012 | $144,137 | $65,000 | $0 | $209,137 | $209,137 |
| 2011 | $146,586 | $65,000 | $0 | $211,586 | $211,586 |
| 2010 | $150,850 | $65,000 | $0 | $215,850 | $215,850 |
| 2009 | $157,239 | $87,150 | $0 | $244,389 | $244,389 |
| 2008 | $159,086 | $105,000 | $0 | $264,086 | $264,086 |
| 2007 | $160,934 | $105,000 | $0 | $265,934 | $265,934 |
Deed and Sales History
| 1 | 04/08/2021 | WD | Warranty Deed | OLSON-SMITH, JUSTIN F | ZIEGLER, BRIAN | | | $435,000.00 | 47769 | 4516462 |
| 2 | 01/26/2016 | WD | Warranty Deed | HORN, ALEXANDER F | OLSON-SMITH, JUSTIN F | | | $253,500.00 | 22990 | 4393341 |
| 3 | 07/27/2010 | TRUSTEED | Trustee's Deed | FEDERAL HOME LOAN MORTGAGE COR | COLLIN, ALEXANDER F | | | $230,000.00 | 1867 | 4277964 |
| 4 | 05/20/2010 | TRUSTEED | Trustee's Deed | KINCAID, JENNIFER S | FEDERAL HOME LOAN MORTGAGE COR | | | $192,131.00 | 1250 | 4274398 |
| 5 | 11/08/2005 | WD | Warranty Deed | NEUMANN, ANDREW F | KINCAID, JENNIFER S | | | $255,000.00 | 55718 | 4154618 |
| 6 | 04/19/2004 | WD | Warranty Deed | CANARIA, DANILO B | NEUMANN, ANDREW F | | | $184,900.00 | 41602 | 4097882 |
| 7 | 02/01/1988 | WD | Warranty Deed | HARRINGTON, DAVID | CANARIA, DANILO B | | | $85,950.00 | 80334 | 88001411 |
| 8 | 09/01/1987 | QCD | Quit Claim Deed | BESTWAY, CONSTRUCTION I | HARRINGTON, DAVID | | | $0.00 | 72785 | 87012513 |
| 9 | 04/01/1987 | WD | Warranty Deed | ISLAND, SAVINGS & | BESTWAY, CONSTRUCTION I | | | $8,000.00 | 71128 | 87005653 |
| 10 | 03/01/1982 | WD | Warranty Deed | Unknown | ISLAND, SAVINGS & | | | $0.00 | 20585 | 394062 |
Payout Agreement
| No payout information available.. |