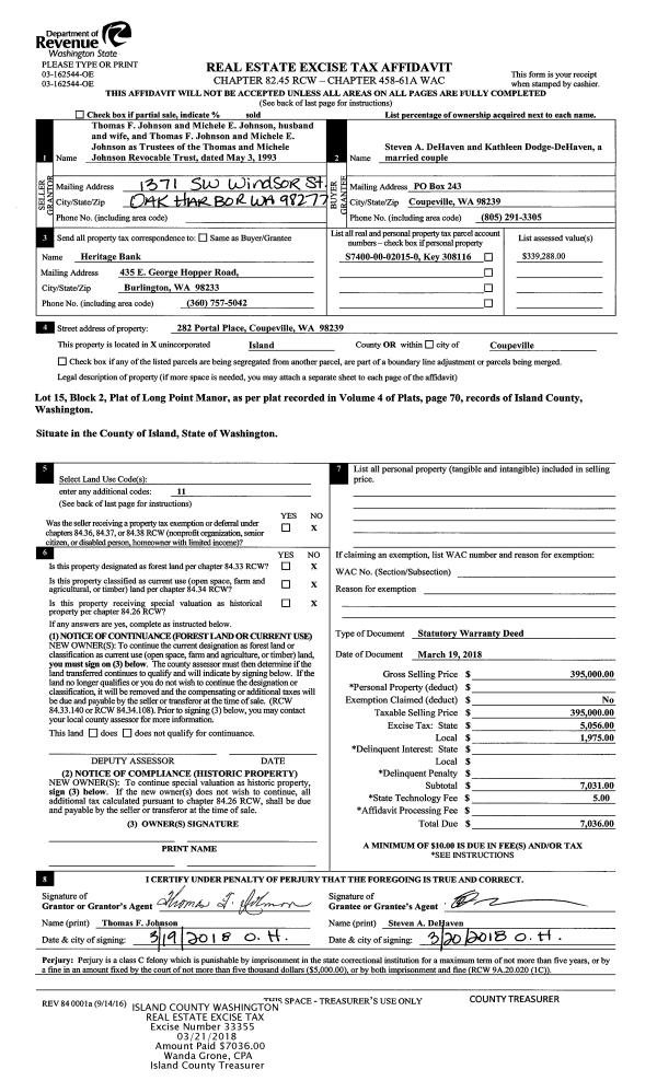
Property
Account |
| Property ID: | 609050 | Abbreviated Legal Description: | HERITAGE NORTH #3 LOT 18 |
| Geographic ID: | S7110-03-00018-0 | Agent Code: | |
| Type: | Real | | |
| Tax Area: | 100 - APPRAISER-OH Schl Dist, in OH | Land Use Code | 11 |
| Open Space: | N | DFL | N |
| Historic Property: | N | Remodel Property: | N |
| Multi-Family Redevelopment: | N | | |
| Township: | | Section: | |
| Range: | |
Location |
| Address: | 468 NW 3RD AVE OAK HARBOR, WA 98277 | Mapsco: | |
| Neighborhood: | Cycle 1 | Map ID: | 253 |
| Neighborhood CD: | 1 |
Owner |
| Name: | GOODMAN, MARIA | Owner ID: | 299652 |
| Mailing Address: | 468 NW 3RD AVE OAK HARBOR, WA 98277 | % Ownership: | 100.0000000000% |
| | | Exemptions: | |
Taxes and Assessment Details
Values
| (+) Improvement Homesite Value: | + | $0 | |
| (+) Improvement Non-Homesite Value: | + | $243,560 | |
| (+) Land Homesite Value: | + | $0 | |
| (+) Land Non-Homesite Value: | + | $190,000 | |
| (+) Curr Use (HS): | + | $0 | $0 |
| (+) Curr Use (NHS): | + | $0 | $0 |
| | | -------------------------- | |
| (=) Market Value: | = | $433,560 | |
| (–) Productivity Loss: | – | $0 | |
| | | -------------------------- | |
| (=) Subtotal: | = | $433,560 | |
| (+) Senior Appraised Value: | + | $0 | |
| (+) Non-Senior Appraised Value: | + | $433,560 | |
| | | -------------------------- | |
| (=) Total Appraised Value: | = | $433,560 | |
| (–) Senior Exemption Loss: | – | $0 | |
| (–) Exemption Loss: | – | $0 | |
| | | -------------------------- | |
| (=) Taxable Value: | = | $433,560 | |
Taxing Jurisdiction
| Owner: | GOODMAN, MARIA | | |
| % Ownership: | 100.0000000000% | | |
| Total Value: | $433,560 | | |
| Tax Area: | 100 - APPRAISER-OH Schl Dist, in OH |
| CF | Conservation Futures | 0.0313996660 | $433,560 | $433,560 | $13.61 | | |
| CEM1 | Cemetery #1 | 0.0040018856 | $433,560 | $433,560 | $1.74 | | |
| COH | City of Oak Harbor | 2.3090730572 | $433,560 | $433,560 | $1,001.12 | | |
| OAKBOND | City of Oak Harbor BOND | 0.1902260131 | $433,560 | $433,560 | $82.47 | | |
| HOBOND | Hospital BOND | 0.1893405597 | $433,560 | $433,560 | $82.09 | | |
| HOGEN | Hospital GEN | 0.3848777722 | $433,560 | $433,560 | $166.87 | | |
| CE | County Current Expense | 0.3674210519 | $433,560 | $433,560 | $159.30 | | |
| ISLANDEMS | Hospital GEN (EMS) | 0.4952018576 | $433,560 | $433,560 | $214.70 | | |
| LIB | Library Sno-Isle GEN | 0.3039084203 | $433,560 | $433,560 | $131.76 | | |
| NWHIDPRMT | P & R N Whidbey GEN | 0.1990272349 | $433,560 | $433,560 | $86.29 | | |
| SCH201MO | School 201 Enrichment | 2.3851112745 | $433,560 | $433,560 | $1,034.09 | | |
| ST | State School | 1.4761226122 | $433,560 | $433,560 | $639.99 | | |
| ST2 | State School Part 2 | 0.7953803475 | $433,560 | $433,560 | $344.85 | | |
| | Total Tax Rate: | 9.1310917527 | | | | | |
| | | | | Taxes w/Current Exemptions: | $3,958.88 | | |
| | | | | Taxes w/o Exemptions: | $3,958.88 | | |
Improvement / Building
| Improvement #1: | RESIDENTIAL | State Code: | Y | 1438.0 sqft | Value: | $243,560 |
| Bathrooms: | 2 | Bedrooms: | 3 | | Ceiling: | DRYWALL PAINTED | Exterior Wall/Cover: | WOOD SIDING | | Floor Covering: | CARPET/VINYL 80-20 | Floor Structure: | WOOD W/SUBFLOOR | | Foundation: | CONCRETE | Heating: | FHA ELECTRIC | | Interior Finish: | DRYWALL PAINT | Plumbing Fixture Cnt: | 9 | | Roof Slope: | 5" IN 12" | Roof Structure/Cover: | CJ ASPHALT |
|
| | Type | Description | Class CD | Sub Class CD | Year Built | Area |
| | BAS | BASE/MAIN FLOOR | 3 | 0 | 1987 | 1438.0 |
| | AGR | ATTACHED GARAGE | 3 | 0 | 1987 | 528.0 |
| | OWC | OPEN WOOD PORCH W/STEPS/ROOF/C | 3 | 0 | 1987 | 60.0 |
Sketch
Property Image
Land
| 1 | 14 | SQ (08001-12000) | 0.0000 | 0.00 | 0.00 | 0.00 | 1.00 | $190,000 | $0 |
Roll Value History
| 2026 | N/A | N/A | N/A | N/A | N/A |
| 2025 | $243,560 | $190,000 | $0 | $433,560 | $433,560 |
| 2024 | $246,797 | $180,000 | $0 | $426,797 | $426,797 |
| 2023 | $237,088 | $190,000 | $0 | $427,088 | $427,088 |
| 2022 | $217,618 | $180,000 | $0 | $397,618 | $397,618 |
| 2021 | $191,780 | $120,000 | $0 | $311,780 | $311,780 |
| 2020 | $187,038 | $100,000 | $0 | $287,038 | $287,038 |
| 2019 | $135,596 | $150,000 | $0 | $285,596 | $285,596 |
| 2018 | $136,034 | $130,000 | $0 | $266,034 | $266,034 |
| 2017 | $125,640 | $110,000 | $0 | $235,640 | $235,640 |
| 2016 | $127,411 | $90,000 | $0 | $217,411 | $217,411 |
| 2015 | $129,179 | $70,000 | $0 | $199,179 | $199,179 |
| 2014 | $130,948 | $55,000 | $0 | $185,948 | $185,948 |
| 2013 | $132,719 | $55,000 | $0 | $187,719 | $187,719 |
| 2012 | $134,488 | $65,000 | $0 | $199,488 | $199,488 |
| 2011 | $133,918 | $65,000 | $0 | $198,918 | $198,918 |
| 2010 | $137,308 | $65,000 | $0 | $202,308 | $202,308 |
| 2009 | $143,189 | $87,150 | $0 | $230,339 | $230,339 |
| 2008 | $144,961 | $105,000 | $0 | $249,961 | $249,961 |
| 2007 | $146,749 | $105,000 | $0 | $251,749 | $251,749 |
Deed and Sales History
| 1 | 05/27/2021 | WD | Warranty Deed | MASON, MITCHELL K | GOODMAN, MARIA | | | $426,000.00 | 48533 | 4520913 |
| 2 | 02/06/2018 | WD | Warranty Deed | LUMBO, JESSIE L | MASON, MITCHELL K | | | $295,000.00 | 32918 | 4439061 |
| 3 | 06/07/2002 | WD | Warranty Deed | FISCHER, STEVEN P | LUMBO, JESSIE L | | | $160,000.00 | 22309 | 4023104 |
| 4 | 06/01/1987 | WD | Warranty Deed | ISLAND, SAVINGS & | FISCHER, STEVEN P | | | $20,425.00 | 71695 | 87007929 |
| 5 | 03/01/1982 | WD | Warranty Deed | Unknown | ISLAND, SAVINGS & | | | $0.00 | 20585 | 394062 |
Payout Agreement
| No payout information available.. |