Property
Account |
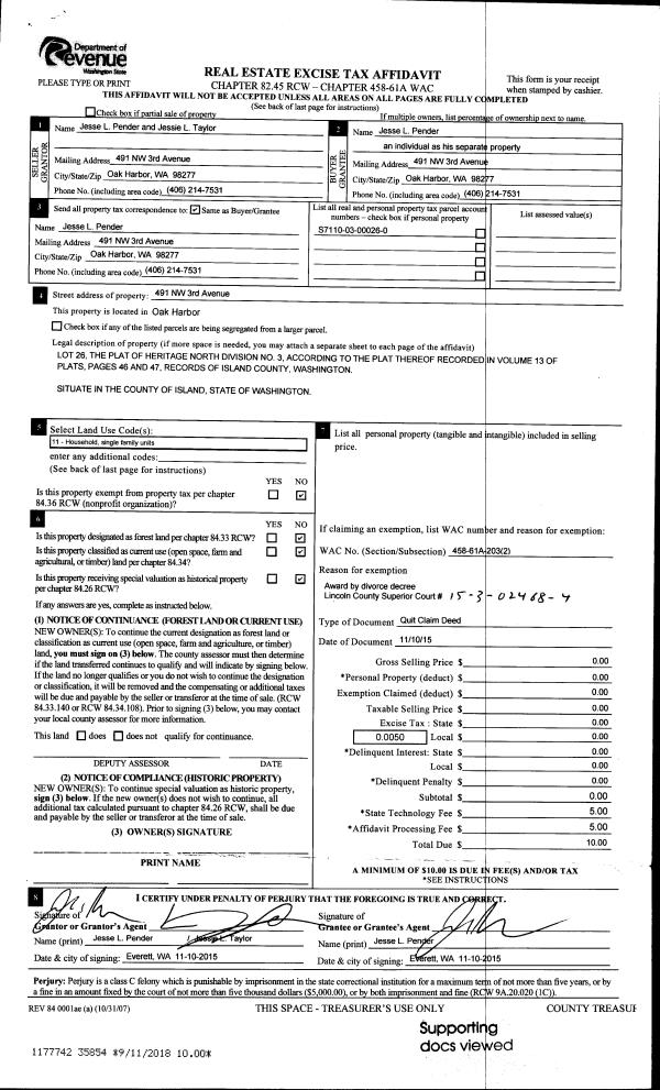
| Property ID: | 609130 | Abbreviated Legal Description: | HERITAGE NORTH #3 LOT 26 |
| Geographic ID: | S7110-03-00026-0 | Agent Code: | |
| Type: | Real | | |
| Tax Area: | 100 - APPRAISER-OH Schl Dist, in OH | Land Use Code | 11 |
| Open Space: | N | DFL | N |
| Historic Property: | N | Remodel Property: | N |
| Multi-Family Redevelopment: | N | | |
| Township: | | Section: | |
| Range: | |
Location |
| Address: | 491 NW 3RD AVE OAK HARBOR, WA 98277 | Mapsco: | |
| Neighborhood: | Cycle 1 | Map ID: | 253 |
| Neighborhood CD: | 1 |
Owner |
| Name: | MATTHEWS, TIMOTHY | Owner ID: | 311400 |
| Mailing Address: | 491 NW 3RD AVE OAK HARBOR, WA 98277 | % Ownership: | 100.0000000000% |
| | | Exemptions: | |
Taxes and Assessment Details
Values
| (+) Improvement Homesite Value: | + | $0 | |
| (+) Improvement Non-Homesite Value: | + | $247,053 | |
| (+) Land Homesite Value: | + | $0 | |
| (+) Land Non-Homesite Value: | + | $190,000 | |
| (+) Curr Use (HS): | + | $0 | $0 |
| (+) Curr Use (NHS): | + | $0 | $0 |
| | | -------------------------- | |
| (=) Market Value: | = | $437,053 | |
| (–) Productivity Loss: | – | $0 | |
| | | -------------------------- | |
| (=) Subtotal: | = | $437,053 | |
| (+) Senior Appraised Value: | + | $0 | |
| (+) Non-Senior Appraised Value: | + | $437,053 | |
| | | -------------------------- | |
| (=) Total Appraised Value: | = | $437,053 | |
| (–) Senior Exemption Loss: | – | $0 | |
| (–) Exemption Loss: | – | $0 | |
| | | -------------------------- | |
| (=) Taxable Value: | = | $437,053 | |
Taxing Jurisdiction
| Owner: | MATTHEWS, TIMOTHY | | |
| % Ownership: | 100.0000000000% | | |
| Total Value: | $437,053 | | |
| Tax Area: | 100 - APPRAISER-OH Schl Dist, in OH |
| CF | Conservation Futures | 0.0313996660 | $437,053 | $437,053 | $13.72 | | |
| CEM1 | Cemetery #1 | 0.0040018856 | $437,053 | $437,053 | $1.75 | | |
| COH | City of Oak Harbor | 2.3090730572 | $437,053 | $437,053 | $1,009.19 | | |
| OAKBOND | City of Oak Harbor BOND | 0.1902260131 | $437,053 | $437,053 | $83.14 | | |
| HOBOND | Hospital BOND | 0.1893405597 | $437,053 | $437,053 | $82.75 | | |
| HOGEN | Hospital GEN | 0.3848777722 | $437,053 | $437,053 | $168.21 | | |
| CE | County Current Expense | 0.3674210519 | $437,053 | $437,053 | $160.58 | | |
| ISLANDEMS | Hospital GEN (EMS) | 0.4952018576 | $437,053 | $437,053 | $216.43 | | |
| LIB | Library Sno-Isle GEN | 0.3039084203 | $437,053 | $437,053 | $132.82 | | |
| NWHIDPRMT | P & R N Whidbey GEN | 0.1990272349 | $437,053 | $437,053 | $86.99 | | |
| SCH201MO | School 201 Enrichment | 2.3851112745 | $437,053 | $437,053 | $1,042.42 | | |
| ST | State School | 1.4761226122 | $437,053 | $437,053 | $645.14 | | |
| ST2 | State School Part 2 | 0.7953803475 | $437,053 | $437,053 | $347.62 | | |
| | Total Tax Rate: | 9.1310917527 | | | | | |
| | | | | Taxes w/Current Exemptions: | $3,990.76 | | |
| | | | | Taxes w/o Exemptions: | $3,990.76 | | |
Improvement / Building
| Improvement #1: | RESIDENTIAL | State Code: | Y | 1432.8 sqft | Value: | $247,053 |
| Bathrooms: | 2.5 | Bedrooms: | 3 | | Ceiling: | DRYWALL PAINTED | Exterior Wall/Cover: | WOOD SIDING | | Floor Covering: | CARPET/VINYL 80-20 | Floor Structure: | WOOD W/SUBFLOOR | | Foundation: | CONCRETE | Heating: | WALL HEAT ELECTRIC | | Interior Finish: | DRYWALL PAINT | Plumbing Fixture Cnt: | 11 | | Roof Slope: | 6" IN 12" | Roof Structure/Cover: | CJ ASPHALT |
|
| | Type | Description | Class CD | Sub Class CD | Year Built | Area |
| | BAS | BASE/MAIN FLOOR | 3 | 0 | 1987 | 732.8 |
| | AGR | ATTACHED GARAGE | 3 | 0 | 1987 | 528.0 |
| | UPS | UPPER STORY | 3 | 0 | 1987 | 700.0 |
| | OWP | OPEN WOOD PORCH W/STEPS | 3 | 0 | 1987 | 96.0 |
| | OWC | OPEN WOOD PORCH W/STEPS/ROOF/C | 3 | 0 | 1987 | 60.0 |
Sketch
Property Image
Land
| 1 | 14 | SQ (08001-12000) | 0.0000 | 0.00 | 0.00 | 0.00 | 1.00 | $190,000 | $0 |
Roll Value History
| 2026 | N/A | N/A | N/A | N/A | N/A |
| 2025 | $247,053 | $190,000 | $0 | $437,053 | $437,053 |
| 2024 | $250,171 | $180,000 | $0 | $430,171 | $430,171 |
| 2023 | $240,819 | $190,000 | $0 | $430,819 | $430,819 |
| 2022 | $220,885 | $180,000 | $0 | $400,885 | $400,885 |
| 2021 | $194,522 | $120,000 | $0 | $314,522 | $314,522 |
| 2020 | $189,247 | $100,000 | $0 | $289,247 | $289,247 |
| 2019 | $135,378 | $150,000 | $0 | $285,378 | $285,378 |
| 2018 | $132,461 | $130,000 | $0 | $262,461 | $262,461 |
| 2017 | $125,557 | $110,000 | $0 | $235,557 | $235,557 |
| 2016 | $127,230 | $90,000 | $0 | $217,230 | $217,230 |
| 2015 | $128,904 | $70,000 | $0 | $198,904 | $198,904 |
| 2014 | $130,578 | $55,000 | $0 | $185,578 | $185,578 |
| 2013 | $132,252 | $55,000 | $0 | $187,252 | $187,252 |
| 2012 | $133,927 | $65,000 | $0 | $198,927 | $198,927 |
| 2011 | $128,782 | $65,000 | $0 | $193,782 | $193,782 |
| 2010 | $130,678 | $65,000 | $0 | $195,678 | $195,678 |
| 2009 | $136,367 | $87,150 | $0 | $223,517 | $223,517 |
| 2008 | $138,086 | $105,000 | $0 | $243,086 | $243,086 |
| 2007 | $139,805 | $105,000 | $0 | $244,805 | $244,805 |
Deed and Sales History
| 1 | 02/01/2024 | WD | Warranty Deed | WALLACE, SUMMER D | MATTHEWS, TIMOTHY | | | $433,000.00 | 59177 | 4569272 |
| 2 | 11/24/2020 | WD | Warranty Deed | FRAPPIER, ANTHONY D | WALLACE, SUMMER D | | | $340,000.00 | 45987 | 4504220 |
| 3 | 02/01/2019 | QCD | Quit Claim Deed | FRAPPIER, ANTHONY D | FRAPPIER, ANTHONY D | | | $0.00 | 37486 | 4458721 |
| 4 | 01/23/2019 | WD | Warranty Deed | PENDER, JESSE L | FRAPPIER, ANTHONY D | | | $292,000.00 | 37485 | 4458720 |
| 5 | 11/10/2015 | QCD | Quit Claim Deed | PENDER, JESSE L | PENDER, JESSE L | | | $0.00 | 35854 | 4451520 |
| 6 | 09/12/2018 | DECREE | Divorce Decree/Legal Separation | PENDER, JESSE L | PENDER, JESSE L | | | | 87848 | |
| 7 | 07/30/2008 | WD | Warranty Deed | ROBERSON, JOSEPH H | PENDER, JESSE L | | | $234,000.00 | 82085 | 4234630 |
| 8 | 11/29/1998 | WD | Warranty Deed | DOWLING, BRIAN M | ROBERSON, JOSEPH H | | | $139,000.00 | 84829 | 98023214 |
| 9 | 05/01/1995 | WD | Warranty Deed | ROLLINS, CHRISTOPHER A | DOWLING, BRIAN M | | | $132,500.00 | 51704 | 95008029 |
| 10 | 12/01/1991 | WD | Warranty Deed | BORG, MARK A | ROLLINS, CHRISTOPHER A | | | $117,500.00 | 14476 | 91019550 |
| 11 | 07/01/1987 | WD | Warranty Deed | ISLAND, SAVINGS & | BORG, MARK A | | | $83,000.00 | 72186 | 87009874 |
| 12 | 03/01/1982 | WD | Warranty Deed | Unknown | ISLAND, SAVINGS & | | | $0.00 | 20585 | 394062 |
Payout Agreement
| No payout information available.. |