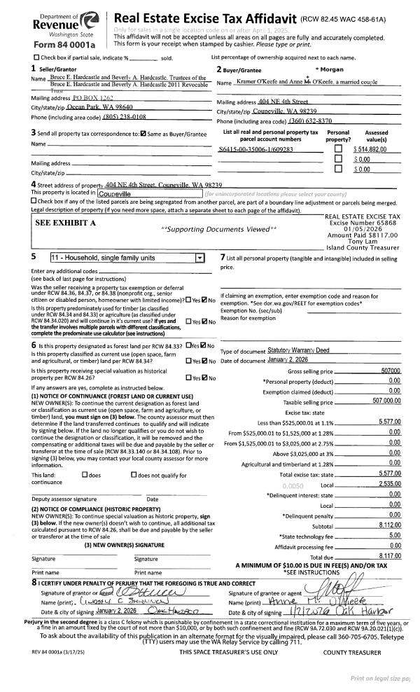
Property
Account |
| Property ID: | 609283 | Abbreviated Legal Description: | COUPEVILLE W33.33' OF LOT 6 & E33.33' OF LOT 7 BLK 35 TGW S16.50 OF E33.33' OF LOT 2 BLK 35 & S16.50' OF W33.33' OF LOT 3 BLK 35 LOT E V6 SURVEYS P112 AF#85013072 FR 35000 |
| Geographic ID: | S6415-00-35006-1 | Agent Code: | |
| Type: | Real | | |
| Tax Area: | 300 - APPRAISER-Cpvl Schl Dist, in Cpvl | Land Use Code | 11 |
| Open Space: | N | DFL | N |
| Historic Property: | N | Remodel Property: | N |
| Multi-Family Redevelopment: | N | | |
| Township: | | Section: | |
| Range: | |
Location |
| Address: | 404 NE 4TH ST COUPEVILLE, WA 98239 | Mapsco: | |
| Neighborhood: | Cycle 2 | Map ID: | 173 |
| Neighborhood CD: | 2 |
Owner |
| Name: | HARDCASTLE TRUSTEE, BRUCE E | Owner ID: | 271777 |
| Mailing Address: | BEVERLY A HARDCASTLE PO BOX 1262 OCEAN PARK, WA 98640 | % Ownership: | 100.0000000000% |
| | | Exemptions: | |
Taxes and Assessment Details
Values
| (+) Improvement Homesite Value: | + | $0 | |
| (+) Improvement Non-Homesite Value: | + | $194,892 | |
| (+) Land Homesite Value: | + | $0 | |
| (+) Land Non-Homesite Value: | + | $320,000 | |
| (+) Curr Use (HS): | + | $0 | $0 |
| (+) Curr Use (NHS): | + | $0 | $0 |
| | | -------------------------- | |
| (=) Market Value: | = | $514,892 | |
| (–) Productivity Loss: | – | $0 | |
| | | -------------------------- | |
| (=) Subtotal: | = | $514,892 | |
| (+) Senior Appraised Value: | + | $0 | |
| (+) Non-Senior Appraised Value: | + | $514,892 | |
| | | -------------------------- | |
| (=) Total Appraised Value: | = | $514,892 | |
| (–) Senior Exemption Loss: | – | $0 | |
| (–) Exemption Loss: | – | $0 | |
| | | -------------------------- | |
| (=) Taxable Value: | = | $514,892 | |
Taxing Jurisdiction
| Owner: | HARDCASTLE TRUSTEE, BRUCE E | | |
| % Ownership: | 100.0000000000% | | |
| Total Value: | $514,892 | | |
| Tax Area: | 300 - APPRAISER-Cpvl Schl Dist, in Cpvl |
| CF | Conservation Futures | 0.0313996660 | $514,892 | $514,892 | $16.17 | | |
| CEM2 | Cemetery #2 | 0.0092609791 | $514,892 | $514,892 | $4.77 | | |
| COUP | City: Town of Coupeville | 0.8188663519 | $514,892 | $514,892 | $421.63 | | |
| FIRE5 | Fire & Rescue Dist #5 C Whidbey GEN | 1.1892169230 | $514,892 | $514,892 | $612.32 | | |
| FIRE5BOND | Fire & Rescue Dist #5 C Whidbey BOND | 0.1394359503 | $514,892 | $514,892 | $71.79 | | |
| HOBOND | Hospital BOND | 0.1893405597 | $514,892 | $514,892 | $97.49 | | |
| HOGEN | Hospital GEN | 0.3848777722 | $514,892 | $514,892 | $198.17 | | |
| CE | County Current Expense | 0.3674210519 | $514,892 | $514,892 | $189.18 | | |
| ISLANDEMS | Hospital GEN (EMS) | 0.4952018576 | $514,892 | $514,892 | $254.98 | | |
| LIB | Library Sno-Isle GEN | 0.3039084203 | $514,892 | $514,892 | $156.48 | | |
| LIBCAP | Library Sno-Isle BOND (Cap Fac Imp Area) | 0.0528562629 | $514,892 | $514,892 | $27.22 | | |
| POCOUP | Port of Coupeville GEN | 0.1065226063 | $514,892 | $514,892 | $54.85 | | |
| POCOUPIDD | Port of Coupeville IDD | 0.3353038577 | $514,892 | $514,892 | $172.65 | | |
| COUPSDTECH | School 204 CP (TECH) | 0.1215123397 | $514,892 | $514,892 | $62.57 | | |
| SCH204MO | School 204 Enrichment | 0.6416662518 | $514,892 | $514,892 | $330.39 | | |
| ST | State School | 1.4761226122 | $514,892 | $514,892 | $760.04 | | |
| ST2 | State School Part 2 | 0.7953803475 | $514,892 | $514,892 | $409.53 | | |
| | Total Tax Rate: | 7.4582938101 | | | | | |
| | | | | Taxes w/Current Exemptions: | $3,840.23 | | |
| | | | | Taxes w/o Exemptions: | $3,840.23 | | |
Improvement / Building
| Improvement #1: | RESIDENTIAL | State Code: | Y | 1408.4 sqft | Value: | $194,892 |
| Bathrooms: | 2 | Bedrooms: | 3 | | Ceiling: | DRYWALL PAINTED | Exterior Wall/Cover: | PLY/HARDBOARD T-111 | | Floor Covering: | CARPET/VINYL 80-20 | Floor Structure: | WOOD W/SUBFLOOR | | Foundation: | CONCRETE | Heating: | WALL HEAT ELECTRIC | | Interior Finish: | DRYWALL PAINT | Plumbing Fixture Cnt: | 9 | | Roof Slope: | 4" IN 12" | Roof Structure/Cover: | CJ ASPHALT |
|
| | Type | Description | Class CD | Sub Class CD | Year Built | Area |
| | BAS | BASE/MAIN FLOOR | 3 | 0 | 1987 | 724.0 |
| | OWP | OPEN WOOD PORCH W/STEPS | 3 | 0 | 1987 | 160.0 |
| | OWP | OPEN WOOD PORCH W/STEPS | 3 | 0 | 1987 | 236.9 |
| | DWN | DOWNSTAIRS LIVING AREA | 3 | 0 | 1987 | 684.4 |
| | UTY | STORAGE/UTILITY | 3 | 0 | 1987 | 192.0 |
Sketch
| No sketches available for this property. |
Property Image
Land
| 1 | HS | HOMESITE | 0.1773 | 7723.19 | 0.00 | 0.00 | 1.00 | $320,000 | $0 |
Roll Value History
| 2026 | N/A | N/A | N/A | N/A | N/A |
| 2025 | $194,892 | $320,000 | $0 | $514,892 | $514,892 |
| 2024 | $192,844 | $300,000 | $0 | $492,844 | $492,844 |
| 2023 | $195,513 | $300,000 | $0 | $495,513 | $495,513 |
| 2022 | $179,457 | $230,000 | $0 | $409,457 | $409,457 |
| 2021 | $158,149 | $180,000 | $0 | $338,149 | $338,149 |
| 2020 | $154,147 | $160,000 | $0 | $314,147 | $314,147 |
| 2019 | $111,213 | $200,000 | $0 | $311,213 | $311,213 |
| 2018 | $96,419 | $180,000 | $0 | $276,419 | $276,419 |
| 2017 | $97,075 | $155,000 | $0 | $252,075 | $78,929 |
| 2016 | $98,388 | $135,000 | $0 | $233,388 | $78,929 |
| 2015 | $99,700 | $100,000 | $0 | $199,700 | $78,929 |
| 2014 | $101,010 | $95,000 | $0 | $196,010 | $196,010 |
| 2013 | $102,323 | $95,000 | $0 | $197,323 | $197,323 |
| 2012 | $99,807 | $140,250 | $0 | $240,057 | $240,057 |
| 2011 | $101,119 | $165,000 | $0 | $266,119 | $266,119 |
| 2010 | $128,404 | $165,000 | $0 | $293,404 | $293,404 |
| 2009 | $134,079 | $179,000 | $0 | $313,079 | $313,079 |
| 2008 | $135,883 | $169,000 | $0 | $304,883 | $304,883 |
| 2007 | $135,526 | $150,000 | $0 | $285,526 | $285,526 |
Deed and Sales History
| 1 | 01/02/2026 | WD | Warranty Deed | HARDCASTLE TRUSTEE, BRUCE E | O'KEEFE, KRAMER | | | $507,000.00 | 65868 | 4595318 |
| 2 | 12/06/2018 | WD | Warranty Deed | DURAND, MARY JO | HARDCASTLE TRUSTEE, BRUCE E | | | $317,000.00 | 36919 | 4456184 |
| 3 | 09/18/2015 | QCD | Quit Claim Deed | DURAND, MARY JO | DURAND, MARY JO | | | $0.00 | 21427 | 4386273 |
| 4 | 10/28/2006 | WD | Warranty Deed | GAULT, TRACY L | DURAND, MARY JO | | | $289,500.00 | 64731 | 4186047 |
| 5 | 08/18/2003 | WD | Warranty Deed | SMITH, BARBARA RYERSON | GAULT, TRACY L | | | $150,100.00 | 33720 | 4072253 |
| 6 | 06/06/2003 | DECREE | Divorce Decree/Legal Separation | SMITH, HENRY A | SMITH, BARBARA RYERSON | | | $0.00 | 33435 | 4069873 |
| 7 | 04/01/1988 | WD | Warranty Deed | EDENHOLM, BARBARA | SMITH, HENRY A | | | $55,000.00 | 81184 | 88004450 |
| 8 | 02/01/1986 | QCD | Quit Claim Deed | KONEK, STEPHEN E | KONEK, STEPHEN E | | | $0.00 | 60250 | 86001339 |
| 9 | 02/01/1986 | QCD | Quit Claim Deed | KONEK, STEPHEN E | KONEK, STEPHEN E | | | $0.00 | 60252 | 86001342 |
| 10 | 02/01/1986 | WD | Warranty Deed | KONEK, STEPHEN E | EDENHOLM, BARBARA | | | $13,000.00 | 60251 | 86001340 |
| 11 | 01/01/1900 | OTHER | Other - Misc. Documents | Unknown | KONEK, STEPHEN E | | | $0.00 | 52594 | 85010249 |
Payout Agreement
| No payout information available.. |