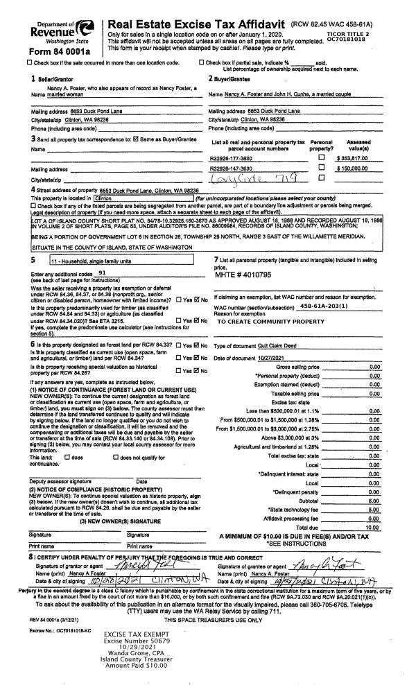
Property
Account |
| Property ID: | 610495 | Abbreviated Legal Description: | LOT A SP 84-78.32926.160-3670 V2 SP P63 AF#86009984 |
| Geographic ID: | R32926-177-3630 | Agent Code: | |
| Type: | Real | | |
| Tax Area: | 712 - APPRAISER-S Whid Schl Dist, outside Langley, improved, greater than 1 acre | Land Use Code | 11 |
| Open Space: | N | DFL | N |
| Historic Property: | N | Remodel Property: | N |
| Multi-Family Redevelopment: | N | | |
| Township: | 29 | Section: | 26 |
| Range: | R3 |
Location |
| Address: | 6653 DUCK POND LN CLINTON, WA 98236 | Mapsco: | |
| Neighborhood: | Cycle 4 | Map ID: | 817 |
| Neighborhood CD: | 4 |
Owner |
| Name: | KLOSS, LEVI | Owner ID: | 308463 |
| Mailing Address: | MICAELAH NICOLE LEE 6653 DUCK POND LAKE RD CLINTON, WA 98236 | % Ownership: | 100.0000000000% |
| | | Exemptions: | |
Taxes and Assessment Details
Values
| (+) Improvement Homesite Value: | + | $0 | |
| (+) Improvement Non-Homesite Value: | + | $164,393 | |
| (+) Land Homesite Value: | + | $0 | |
| (+) Land Non-Homesite Value: | + | $360,000 | |
| (+) Curr Use (HS): | + | $0 | $0 |
| (+) Curr Use (NHS): | + | $0 | $0 |
| | | -------------------------- | |
| (=) Market Value: | = | $524,393 | |
| (–) Productivity Loss: | – | $0 | |
| | | -------------------------- | |
| (=) Subtotal: | = | $524,393 | |
| (+) Senior Appraised Value: | + | $0 | |
| (+) Non-Senior Appraised Value: | + | $524,393 | |
| | | -------------------------- | |
| (=) Total Appraised Value: | = | $524,393 | |
| (–) Senior Exemption Loss: | – | $0 | |
| (–) Exemption Loss: | – | $0 | |
| | | -------------------------- | |
| (=) Taxable Value: | = | $524,393 | |
Taxing Jurisdiction
| Owner: | KLOSS, LEVI | | |
| % Ownership: | 100.0000000000% | | |
| Total Value: | $524,393 | | |
| Tax Area: | 712 - APPRAISER-S Whid Schl Dist, outside Langley, improved, greater than 1 acre |
| CF | Conservation Futures | 0.0313996660 | $524,393 | $524,393 | $16.47 | | |
| FIRE3 | Fire & Rescue Dist #3 S Whidbey GEN | 1.2130821753 | $524,393 | $524,393 | $636.13 | | |
| HOBOND | Hospital BOND | 0.1893405597 | $524,393 | $524,393 | $99.29 | | |
| HOGEN | Hospital GEN | 0.3848777722 | $524,393 | $524,393 | $201.83 | | |
| CE | County Current Expense | 0.3674210519 | $524,393 | $524,393 | $192.67 | | |
| CR | County Roads | 0.4614296361 | $524,393 | $524,393 | $241.97 | | |
| ISLANDEMS | Hospital GEN (EMS) | 0.4952018576 | $524,393 | $524,393 | $259.68 | | |
| LIB | Library Sno-Isle GEN | 0.3039084203 | $524,393 | $524,393 | $159.37 | | |
| PORTWHID | Port of S Whidbey GEN | 0.1086004714 | $524,393 | $524,393 | $56.95 | | |
| SCH206BOND | School 206 BOND | 0.5960237832 | $524,393 | $524,393 | $312.55 | | |
| SCH206CAP | School 206 CP | 0.3066144020 | $524,393 | $524,393 | $160.79 | | |
| SCH206MO | School 206 Enrichment | 0.4808755445 | $524,393 | $524,393 | $252.17 | | |
| ST | State School | 1.4761226122 | $524,393 | $524,393 | $774.07 | | |
| ST2 | State School Part 2 | 0.7953803475 | $524,393 | $524,393 | $417.09 | | |
| SWHIDPRBD | P & R S Whidbey BOND | 0.0144185398 | $524,393 | $524,393 | $7.56 | | |
| SWHIDPRBD3 | P & R S Whidbey BOND3 | 0.1483535547 | $524,393 | $524,393 | $77.80 | | |
| SWHIDPRMT | P & R S Whidbey GEN | 0.4600000000 | $524,393 | $524,393 | $241.22 | | |
| | Total Tax Rate: | 7.8330503944 | | | | | |
| | | | | Taxes w/Current Exemptions: | $4,107.61 | | |
| | | | | Taxes w/o Exemptions: | $4,107.61 | | |
Improvement / Building
| Improvement #1: | MANUFACTURED HOME | State Code: | Y | 1672.0 sqft | Value: | $164,393 |
| Bathrooms: | 0 | Bedrooms: | 0 | | Ceiling: | PLASTER PAINTED | Cooling: | EVAP NO DUCT | | Exterior Wall/Cover: | VINYL | Floor Covering: | CARPET 100% | | Floor Structure: | SLAB ON GRADE | Foundation: | SLAB | | Heating: | FHA ELECTRIC | Interior Finish: | PLASTER | | Plumbing Fixture Cnt: | 1 | Roof Slope: | FLAT | | Roof Structure/Cover: | CJ ALUMINIUM HEAVY |   |   |
|
| | Type | Description | Class CD | Sub Class CD | Year Built | Area |
| | BAS | BASE/MAIN FLOOR | 4 | 0 | 1995 | 1672.0 |
| | UTY | STORAGE/UTILITY | 3 | 0 | 1995 | 576.0 |
| | OWP | OPEN WOOD PORCH W/STEPS | 3 | 0 | 1995 | 1228.0 |
Sketch
| No sketches available for this property. |
Property Image
Land
| 1 | 32 | AC (03.01-09.99) | 3.9500 | 0.00 | 0.00 | 0.00 | 1.00 | $360,000 | $0 |
Roll Value History
| 2026 | N/A | N/A | N/A | N/A | N/A |
| 2025 | $164,393 | $360,000 | $0 | $524,393 | $524,393 |
| 2024 | $169,089 | $340,000 | $0 | $509,089 | $509,089 |
| 2023 | $149,078 | $330,000 | $0 | $479,078 | $479,078 |
| 2022 | $138,690 | $280,000 | $0 | $418,690 | $418,690 |
| 2021 | $123,817 | $230,000 | $0 | $353,817 | $353,817 |
| 2020 | $114,726 | $190,000 | $0 | $304,726 | $304,726 |
| 2019 | $88,661 | $220,000 | $0 | $308,661 | $308,661 |
| 2018 | $90,791 | $210,000 | $0 | $300,791 | $300,791 |
| 2017 | $92,920 | $165,000 | $0 | $257,920 | $257,920 |
| 2016 | $95,049 | $165,000 | $0 | $260,049 | $260,049 |
| 2015 | $96,113 | $150,000 | $0 | $246,113 | $246,113 |
| 2014 | $104,943 | $150,000 | $0 | $254,943 | $254,943 |
| 2013 | $105,937 | $134,300 | $0 | $240,237 | $240,237 |
| 2012 | $107,926 | $134,300 | $0 | $242,226 | $242,226 |
| 2011 | $123,059 | $134,300 | $0 | $257,359 | $257,359 |
| 2010 | $131,166 | $134,300 | $0 | $265,466 | $265,466 |
| 2009 | $137,786 | $173,800 | $0 | $311,586 | $311,586 |
Deed and Sales History
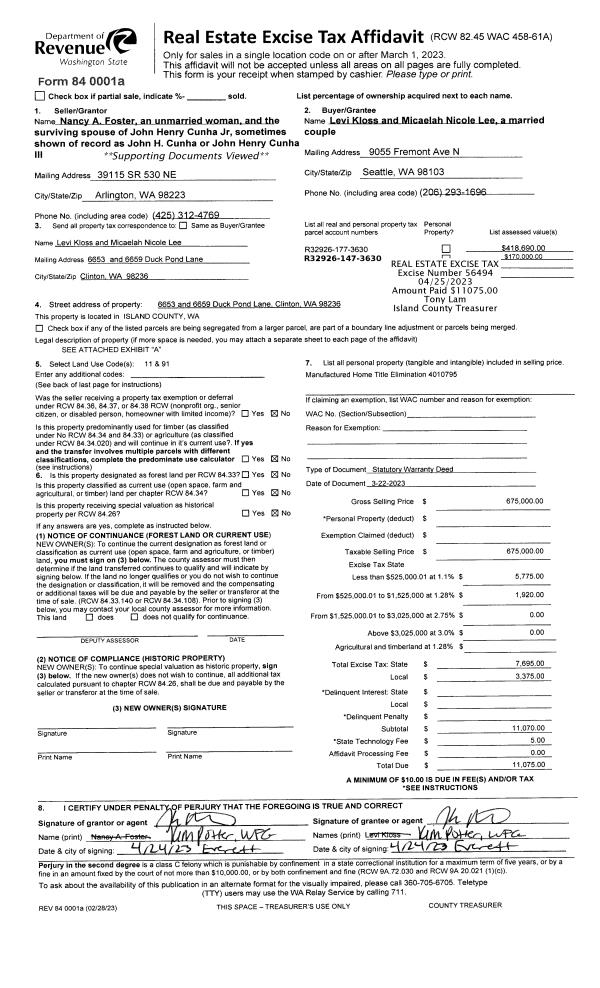
| 1 | 03/22/2023 | WD | Warranty Deed | FOSTER, NANCY A | KLOSS, LEVI | | | $675,000.00 | 56494 | 4559184 |
|   | |
| 2 | 10/27/2021 | QCD | Quit Claim Deed | FOSTER, NANCY | FOSTER, NANCY A | | | $0.00 | 50679 | 4532625 |
| 3 | 09/25/2019 | QCD | Quit Claim Deed | CUNHA, JOHN H | FOSTER, NANCY | | | $0.00 | 40462 | 4472291 |
| 4 | 09/26/2019 | WD | Warranty Deed | PRICE, LAURA C | FOSTER, NANCY | | | $410,000.00 | 40459 | 4472290 |
| 5 | 01/28/2009 | OTHER | Other - Misc. Documents | WHITE, MARC H | PRICE, LAURA C | | | $0.00 | 81104 | 0 |
| 6 | 12/14/2001 | WD | Warranty Deed | SIBERT, CHARLES C | WHITE, MARC H | | | $229,900.00 | 20077 | 4006879 |
| 7 | 04/14/2001 | WD | Warranty Deed | WHITE, MARC H | WHITE, MARC H | | | $0.00 | 33869 | 4073161 |
| 8 | 10/26/1998 | DECREE | Divorce Decree/Legal Separation | SIBERT, CHARLES C | SIBERT, CHARLES C | | | $0.00 | 85181 | 98082856 |
| 9 | 08/01/1995 | OTHER | Other - Misc. Documents | SIBERT, CHARLES C | SIBERT, CHARLES C | | | $70,620.00 | 11111111 | 0 |
| 10 | 12/01/1993 | WD | Warranty Deed | GILROY, KENNETH E | SIBERT, CHARLES C | | | $58,000.00 | 35142 | 93026748 |
| 11 | 06/01/1990 | WD | Warranty Deed | JANES, STEVEN C | GILROY, KENNETH E | | | $48,400.00 | 3370 | 90010941 |
| 12 | 01/01/1900 | OTHER | Other - Misc. Documents | Unknown | JANES, STEVEN C | | | $0.00 | 32850 | 415591 |
Payout Agreement
| No payout information available.. |