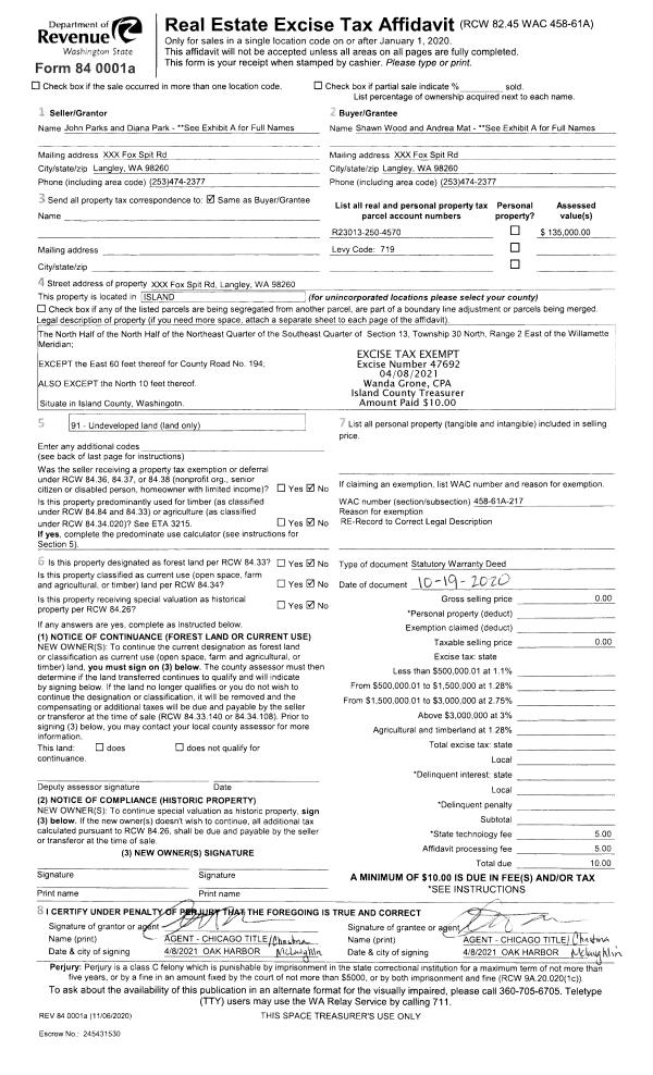
Property
Account |
| Property ID: | 61051 | Abbreviated Legal Description: | 24 - N/2 N/2 NE SE EX RD |
| Geographic ID: | R23013-250-4570 | Agent Code: | |
| Type: | Real | | |
| Tax Area: | 712 - APPRAISER-S Whid Schl Dist, outside Langley, improved, greater than 1 acre | Land Use Code | 11 |
| Open Space: | N | DFL | N |
| Historic Property: | N | Remodel Property: | N |
| Multi-Family Redevelopment: | N | | |
| Township: | 30 | Section: | 13 |
| Range: | R2 |
Location |
| Address: | 3426 FOX SPIT RD LANGLEY, WA 98260 | Mapsco: | |
| Neighborhood: | Cycle 3 | Map ID: | 374 |
| Neighborhood CD: | 3 |
Owner |
| Name: | WOOD, SHAWN | Owner ID: | 300958 |
| Mailing Address: | ANDREA MATSUMOTO 115 2ND ST #411 LANGLEY, WA 98260 | % Ownership: | 100.0000000000% |
| | | Exemptions: | |
Taxes and Assessment Details
Values
| (+) Improvement Homesite Value: | + | $0 | |
| (+) Improvement Non-Homesite Value: | + | $392,773 | |
| (+) Land Homesite Value: | + | $0 | |
| (+) Land Non-Homesite Value: | + | $390,000 | |
| (+) Curr Use (HS): | + | $0 | $0 |
| (+) Curr Use (NHS): | + | $0 | $0 |
| | | -------------------------- | |
| (=) Market Value: | = | $782,773 | |
| (–) Productivity Loss: | – | $0 | |
| | | -------------------------- | |
| (=) Subtotal: | = | $782,773 | |
| (+) Senior Appraised Value: | + | $0 | |
| (+) Non-Senior Appraised Value: | + | $782,773 | |
| | | -------------------------- | |
| (=) Total Appraised Value: | = | $782,773 | |
| (–) Senior Exemption Loss: | – | $0 | |
| (–) Exemption Loss: | – | $0 | |
| | | -------------------------- | |
| (=) Taxable Value: | = | $782,773 | |
Taxing Jurisdiction
| Owner: | WOOD, SHAWN | | |
| % Ownership: | 100.0000000000% | | |
| Total Value: | $782,773 | | |
| Tax Area: | 712 - APPRAISER-S Whid Schl Dist, outside Langley, improved, greater than 1 acre |
| CF | Conservation Futures | 0.0313996660 | $782,773 | $782,773 | $24.58 | | |
| FIRE3 | Fire & Rescue Dist #3 S Whidbey GEN | 1.2130821753 | $782,773 | $782,773 | $949.57 | | |
| HOBOND | Hospital BOND | 0.1893405597 | $782,773 | $782,773 | $148.21 | | |
| HOGEN | Hospital GEN | 0.3848777722 | $782,773 | $782,773 | $301.27 | | |
| CE | County Current Expense | 0.3674210519 | $782,773 | $782,773 | $287.61 | | |
| CR | County Roads | 0.4614296361 | $782,773 | $782,773 | $361.19 | | |
| ISLANDEMS | Hospital GEN (EMS) | 0.4952018576 | $782,773 | $782,773 | $387.63 | | |
| LIB | Library Sno-Isle GEN | 0.3039084203 | $782,773 | $782,773 | $237.89 | | |
| PORTWHID | Port of S Whidbey GEN | 0.1086004714 | $782,773 | $782,773 | $85.01 | | |
| SCH206BOND | School 206 BOND | 0.5960237832 | $782,773 | $782,773 | $466.55 | | |
| SCH206CAP | School 206 CP | 0.3066144020 | $782,773 | $782,773 | $240.01 | | |
| SCH206MO | School 206 Enrichment | 0.4808755445 | $782,773 | $782,773 | $376.42 | | |
| ST | State School | 1.4761226122 | $782,773 | $782,773 | $1,155.47 | | |
| ST2 | State School Part 2 | 0.7953803475 | $782,773 | $782,773 | $622.60 | | |
| SWHIDPRBD | P & R S Whidbey BOND | 0.0144185398 | $782,773 | $782,773 | $11.29 | | |
| SWHIDPRBD3 | P & R S Whidbey BOND3 | 0.1483535547 | $782,773 | $782,773 | $116.13 | | |
| SWHIDPRMT | P & R S Whidbey GEN | 0.4600000000 | $782,773 | $782,773 | $360.08 | | |
| | Total Tax Rate: | 7.8330503944 | | | | | |
| | | | | Taxes w/Current Exemptions: | $6,131.51 | | |
| | | | | Taxes w/o Exemptions: | $6,131.51 | | |
Improvement / Building
| Improvement #1: | RESIDENTIAL | State Code: | Y | 1472.5 sqft | Value: | $392,773 |
| Bathrooms: | 1.5 | Bedrooms: | 2 | | Ceiling: | DRYWALL PAINTED | Cooling: | HEAT PUMP/CONV/V | | Exterior Wall/Cover: | WOOD SIDING | Floor Covering: | CERAMIC TILE/CPT 40-60 | | Floor Structure: | WOOD W/SUBFLOOR | Foundation: | CONCRETE | | Interior Finish: | DRYWALL PAINT | Plumbing Fixture Cnt: | 9 | | Roof Slope: | 3" IN 12" | Roof Structure/Cover: | CJ ALUMINIUM HEAVY |
|
| | Type | Description | Class CD | Sub Class CD | Year Built | Area |
| | BAS | BASE/MAIN FLOOR | 4 | 0 | 2023 | 1472.5 |
| | OP4 | OPEN PORCH W/CEILING-ROOF | 4 | 0 | 2023 | 59.5 |
| | OP4 | OPEN PORCH W/CEILING-ROOF | 4 | 0 | 2023 | 471.0 |
| | DGR | DETACHED GARAGE | 4 | 0 | 2023 | 400.0 |
Sketch
Property Image
Land
| 1 | 32 | AC (03.01-09.99) | 0.0000 | 0.00 | 0.00 | 0.00 | 1.00 | $390,000 | $0 |
Roll Value History
| 2026 | N/A | N/A | N/A | N/A | N/A |
| 2025 | $392,773 | $390,000 | $0 | $782,773 | $782,773 |
| 2024 | $399,914 | $390,000 | $0 | $789,914 | $789,914 |
| 2023 | $42,591 | $180,000 | $0 | $222,591 | $222,591 |
| 2022 | $0 | $170,000 | $0 | $170,000 | $170,000 |
| 2021 | $0 | $135,000 | $0 | $135,000 | $135,000 |
| 2020 | $0 | $135,000 | $0 | $135,000 | $135,000 |
| 2019 | $0 | $135,000 | $0 | $135,000 | $135,000 |
| 2018 | $0 | $130,000 | $0 | $130,000 | $130,000 |
| 2017 | $0 | $130,000 | $0 | $130,000 | $130,000 |
| 2016 | $0 | $130,000 | $0 | $130,000 | $130,000 |
| 2015 | $0 | $130,000 | $0 | $130,000 | $130,000 |
| 2014 | $0 | $114,240 | $0 | $114,240 | $114,240 |
| 2013 | $0 | $117,000 | $0 | $117,000 | $117,000 |
| 2012 | $0 | $117,000 | $0 | $117,000 | $117,000 |
| 2011 | $0 | $117,000 | $0 | $117,000 | $117,000 |
| 2010 | $0 | $130,000 | $0 | $130,000 | $130,000 |
| 2009 | $0 | $200,000 | $0 | $200,000 | $200,000 |
| 2008 | $0 | $170,000 | $0 | $170,000 | $170,000 |
| 2007 | $0 | $105,000 | $0 | $105,000 | $105,000 |
Deed and Sales History
| 1 | 08/27/2021 | QCD | Quit Claim Deed | WOOD, SHAWN | WOOD, SHAWN | | | $155,000.00 | 49836 | 4528005 |
| 2 | 10/19/2020 | WD | Warranty Deed | WOOD, SHAWN | WOOD, SHAWN | | | $0.00 | 47692 | 4515967 |
| 3 | 10/19/2020 | WD | Warranty Deed | PARKS, JOHN | WOOD, SHAWN | | | $310,000.00 | 45337 | 4500156 |
| 4 | 01/05/2016 | QCD | Quit Claim Deed | PARKS, JOHN | PARKS, JOHN | | | $0.00 | 22735 | 4392095 |
| 5 | 12/14/2015 | QCD | Quit Claim Deed | PARKS ET AL, JOHN & DIANA | PARKS, JOHN | | | $0.00 | 22606 | 4391546 |
| 6 | 09/01/2006 | QCD | Quit Claim Deed | WEBSTER, RICHARD M | PARKS ET AL, JOHN & DIANA | | | $55,000.00 | 63808 | 4180706 |
| 7 | 01/01/1982 | CD | DNU - Correction Deed | WEBSTER, M N | WEBSTER, RICHARD M | | | $1.00 | 20164 | 392391 |
| 8 | 01/01/1981 | CD | DNU - Correction Deed | WEBSTER, M N | WEBSTER, M N | | | $0.00 | 10633 | 380102 |
| 9 | 12/01/1980 | CD | DNU - Correction Deed | WEBSTER, M N | WEBSTER, M N | | | $0.00 | 10021 | 377959 |
| 10 | 01/01/1900 | OTHER | Other - Misc. Documents | Unknown | WEBSTER, M N | | | $0.00 | 0 | 0 |
Payout Agreement
| No payout information available.. |