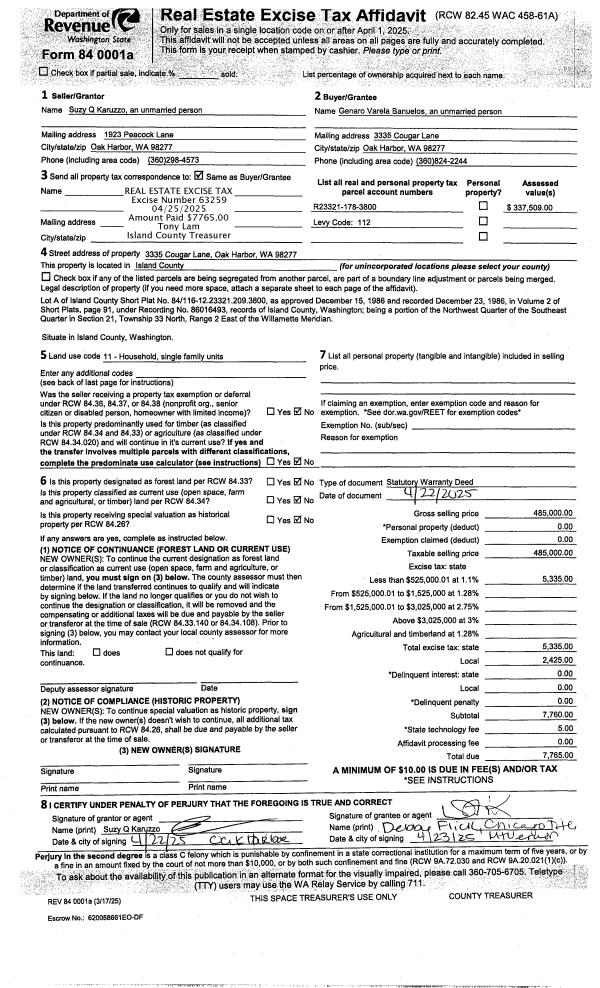
Property
Account |
| Property ID: | 612670 | Abbreviated Legal Description: | LOT A SP 84-116.23321.209-3800 V2 SP P91 AF#86016493 |
| Geographic ID: | R23321-178-3800 | Agent Code: | |
| Type: | Real | | |
| Tax Area: | 112 - APPRAISER-OH Schl Dist, outside OH, improved, greater than 1 acre | Land Use Code | 11 |
| Open Space: | N | DFL | N |
| Historic Property: | N | Remodel Property: | N |
| Multi-Family Redevelopment: | N | | |
| Township: | 33 | Section: | 21 |
| Range: | R2 |
Location |
| Address: | 3335 COUGAR LN OAK HARBOR, WA 98277 | Mapsco: | |
| Neighborhood: | Cycle 6 | Map ID: | 617 |
| Neighborhood CD: | 6 |
Owner |
| Name: | BANUELOS, GENARO VARELA | Owner ID: | 316332 |
| Mailing Address: | 3335 COUGAR LANE OAK HARBOR, WA 98277 | % Ownership: | 100.0000000000% |
| | | Exemptions: | |
Taxes and Assessment Details
Values
| (+) Improvement Homesite Value: | + | $0 | |
| (+) Improvement Non-Homesite Value: | + | $104,041 | |
| (+) Land Homesite Value: | + | $0 | |
| (+) Land Non-Homesite Value: | + | $250,000 | |
| (+) Curr Use (HS): | + | $0 | $0 |
| (+) Curr Use (NHS): | + | $0 | $0 |
| | | -------------------------- | |
| (=) Market Value: | = | $354,041 | |
| (–) Productivity Loss: | – | $0 | |
| | | -------------------------- | |
| (=) Subtotal: | = | $354,041 | |
| (+) Senior Appraised Value: | + | $0 | |
| (+) Non-Senior Appraised Value: | + | $354,041 | |
| | | -------------------------- | |
| (=) Total Appraised Value: | = | $354,041 | |
| (–) Senior Exemption Loss: | – | $0 | |
| (–) Exemption Loss: | – | $0 | |
| | | -------------------------- | |
| (=) Taxable Value: | = | $354,041 | |
Taxing Jurisdiction
| Owner: | BANUELOS, GENARO VARELA | | |
| % Ownership: | 100.0000000000% | | |
| Total Value: | $354,041 | | |
| Tax Area: | 112 - APPRAISER-OH Schl Dist, outside OH, improved, greater than 1 acre |
| CF | Conservation Futures | 0.0313996660 | $354,041 | $354,041 | $11.12 | | |
| CEM1 | Cemetery #1 | 0.0040018856 | $354,041 | $354,041 | $1.42 | | |
| FIRE2 | Fire & Rescue Dist #2 N Whidbey GEN | 0.5381486274 | $354,041 | $354,041 | $190.53 | | |
| HOBOND | Hospital BOND | 0.1893405597 | $354,041 | $354,041 | $67.03 | | |
| HOGEN | Hospital GEN | 0.3848777722 | $354,041 | $354,041 | $136.26 | | |
| CE | County Current Expense | 0.3674210519 | $354,041 | $354,041 | $130.08 | | |
| CR | County Roads | 0.4614296361 | $354,041 | $354,041 | $163.37 | | |
| ISLANDEMS | Hospital GEN (EMS) | 0.4952018576 | $354,041 | $354,041 | $175.32 | | |
| LIB | Library Sno-Isle GEN | 0.3039084203 | $354,041 | $354,041 | $107.60 | | |
| NWHIDPRMT | P & R N Whidbey GEN | 0.1990272349 | $354,041 | $354,041 | $70.46 | | |
| SCH201MO | School 201 Enrichment | 2.3851112745 | $354,041 | $354,041 | $844.43 | | |
| ST | State School | 1.4761226122 | $354,041 | $354,041 | $522.61 | | |
| ST2 | State School Part 2 | 0.7953803475 | $354,041 | $354,041 | $281.60 | | |
| | Total Tax Rate: | 7.6313709459 | | | | | |
| | | | | Taxes w/Current Exemptions: | $2,701.83 | | |
| | | | | Taxes w/o Exemptions: | $2,701.83 | | |
Improvement / Building
| Improvement #1: | MANUFACTURED HOME | State Code: | Y | 1260.0 sqft | Value: | $104,041 |
| Bathrooms: | 2 | Bedrooms: | 3 | | Ceiling: | PLASTER PAINTED | Cooling: | EVAP NO DUCT | | Exterior Wall/Cover: | VINYL | Floor Covering: | CARPET 100% | | Floor Structure: | SLAB ON GRADE | Foundation: | SLAB | | Heating: | FHA ELECTRIC | Interior Finish: | PLASTER | | Plumbing Fixture Cnt: | 4 | Roof Slope: | FLAT | | Roof Structure/Cover: | CJ ALUMINIUM HEAVY |   |   |
|
| | Type | Description | Class CD | Sub Class CD | Year Built | Area |
| | BAS | BASE/MAIN FLOOR | 4 | 0 | 1998 | 1260.0 |
| | OWP | OPEN WOOD PORCH W/STEPS | 4 | 0 | 1998 | 186.0 |
| | OWR | OPEN WOOD PORCH W/STEPS/ROOF | 4 | 0 | 1998 | 205.0 |
| | ENP | ENCLOSED PORCH | 4 | 0 | 1998 | 240.0 |
Sketch
Property Image
Land
| 1 | 18 | AC (02.01-03.00) | 2.4500 | 106722.00 | 0.00 | 0.00 | 1.00 | $250,000 | $0 |
Roll Value History
| 2026 | N/A | N/A | N/A | N/A | N/A |
| 2025 | $104,041 | $250,000 | $0 | $354,041 | $354,041 |
| 2024 | $107,509 | $230,000 | $0 | $337,509 | $120,989 |
| 2023 | $96,505 | $220,000 | $0 | $316,505 | $120,989 |
| 2022 | $159,478 | $210,000 | $0 | $369,478 | $120,989 |
| 2021 | $142,472 | $160,000 | $0 | $302,472 | $120,989 |
| 2020 | $115,146 | $130,000 | $0 | $245,146 | $245,146 |
| 2019 | $93,067 | $180,000 | $0 | $273,067 | $273,067 |
| 2018 | $57,907 | $170,000 | $0 | $227,907 | $227,907 |
| 2017 | $59,336 | $120,000 | $0 | $179,336 | $179,336 |
| 2016 | $60,766 | $120,000 | $0 | $180,766 | $180,766 |
| 2015 | $55,450 | $90,000 | $0 | $145,450 | $145,450 |
| 2014 | $56,875 | $80,000 | $0 | $136,875 | $136,875 |
| 2013 | $58,300 | $80,750 | $0 | $139,050 | $139,050 |
| 2012 | $59,726 | $80,750 | $0 | $140,476 | $140,476 |
| 2011 | $61,151 | $95,000 | $0 | $156,151 | $156,151 |
| 2010 | $69,052 | $95,000 | $0 | $164,052 | $164,052 |
| 2009 | $88,911 | $105,000 | $0 | $193,911 | $193,911 |
| 2008 | $90,269 | $99,825 | $0 | $190,094 | $190,094 |
| 2007 | $92,374 | $99,825 | $0 | $192,199 | $192,199 |
Deed and Sales History
| 1 | 04/22/2025 | WD | Warranty Deed | KARUZZO, SUZY Q | BANUELOS, GENARO VARELA | | | $485,000.00 | 63259 | 4584978 |
| 2 | 03/01/2021 | WD | Warranty Deed | INTINI, ANTHONY P | KARUZZO, SUZY Q | | | $375,000.00 | 47313 | 4513371 |
| 3 | 10/26/2018 | WD | Warranty Deed | RUZINOK, SCOTT | INTINI, ANTHONY P | | | $270,000.00 | 36471 | 4454240 |
| 4 | 08/11/2018 | QCD | Quit Claim Deed | RUZINOK, SCOTT G | RUZINOK, SCOTT | | | $0.00 | 35490 | 4450006 |
| 5 | 10/19/2015 | WD | Warranty Deed | HAGSTROM, JOSEPH | RUZINOK, SCOTT G | | | $217,000.00 | 21829 | 4388049 |
| 6 | 06/25/2010 | WD | Warranty Deed | D'ANNUNZIO, BONNIE J | HAGSTROM, JOSEPH | | | $155,500.00 | 1575 | 4276234 |
| 7 | 02/15/2007 | PRD | Personal Representatives Deed | POPKEN, RODNEY R | D'ANNUNZIO, BONNIE J | | | $0.00 | 70531 | 4194406 |
| 8 | 09/01/1990 | WD | Warranty Deed | DICKSON, J W | POPKEN, RODNEY R | | | $14,500.00 | 5486 | 90018327 |
| 9 | 01/01/1900 | OTHER | Other - Misc. Documents | Unknown | DICKSON, J W | | | $0.00 | 84290 | 339103 |
Payout Agreement
| No payout information available.. |