Property
Account |
| Property ID: | 612698 | Abbreviated Legal Description: | LOT C SP 84-116.23321.209-3800 V2 SP P91 AF#86016493 |
| Geographic ID: | R23321-245-3780 | Agent Code: | |
| Type: | Real | | |
| Tax Area: | 112 - APPRAISER-OH Schl Dist, outside OH, improved, greater than 1 acre | Land Use Code | 11 |
| Open Space: | N | DFL | N |
| Historic Property: | N | Remodel Property: | N |
| Multi-Family Redevelopment: | N | | |
| Township: | 33 | Section: | 21 |
| Range: | R2 |
Location |
| Address: | 3373 COUGAR LN OAK HARBOR, WA 98277 | Mapsco: | |
| Neighborhood: | Cycle 6 | Map ID: | 617 |
| Neighborhood CD: | 6 |
Owner |
| Name: | BURGOYNE, DANIEL RICHARD | Owner ID: | 287470 |
| Mailing Address: | ANNALEE A BURGOYNE 3373 COUGAR LN OAK HARBOR, WA 98277 | % Ownership: | 100.0000000000% |
| | | Exemptions: | |
Taxes and Assessment Details
Values
| (+) Improvement Homesite Value: | + | $0 | |
| (+) Improvement Non-Homesite Value: | + | $126,551 | |
| (+) Land Homesite Value: | + | $0 | |
| (+) Land Non-Homesite Value: | + | $250,000 | |
| (+) Curr Use (HS): | + | $0 | $0 |
| (+) Curr Use (NHS): | + | $0 | $0 |
| | | -------------------------- | |
| (=) Market Value: | = | $376,551 | |
| (–) Productivity Loss: | – | $0 | |
| | | -------------------------- | |
| (=) Subtotal: | = | $376,551 | |
| (+) Senior Appraised Value: | + | $0 | |
| (+) Non-Senior Appraised Value: | + | $376,551 | |
| | | -------------------------- | |
| (=) Total Appraised Value: | = | $376,551 | |
| (–) Senior Exemption Loss: | – | $0 | |
| (–) Exemption Loss: | – | $0 | |
| | | -------------------------- | |
| (=) Taxable Value: | = | $376,551 | |
Taxing Jurisdiction
| Owner: | BURGOYNE, DANIEL RICHARD | | |
| % Ownership: | 100.0000000000% | | |
| Total Value: | $376,551 | | |
| Tax Area: | 112 - APPRAISER-OH Schl Dist, outside OH, improved, greater than 1 acre |
| CF | Conservation Futures | 0.0313996660 | $376,551 | $376,551 | $11.82 | | |
| CEM1 | Cemetery #1 | 0.0040018856 | $376,551 | $376,551 | $1.51 | | |
| FIRE2 | Fire & Rescue Dist #2 N Whidbey GEN | 0.5381486274 | $376,551 | $376,551 | $202.64 | | |
| HOBOND | Hospital BOND | 0.1893405597 | $376,551 | $376,551 | $71.30 | | |
| HOGEN | Hospital GEN | 0.3848777722 | $376,551 | $376,551 | $144.93 | | |
| CE | County Current Expense | 0.3674210519 | $376,551 | $376,551 | $138.35 | | |
| CR | County Roads | 0.4614296361 | $376,551 | $376,551 | $173.75 | | |
| ISLANDEMS | Hospital GEN (EMS) | 0.4952018576 | $376,551 | $376,551 | $186.47 | | |
| LIB | Library Sno-Isle GEN | 0.3039084203 | $376,551 | $376,551 | $114.44 | | |
| NWHIDPRMT | P & R N Whidbey GEN | 0.1990272349 | $376,551 | $376,551 | $74.94 | | |
| SCH201MO | School 201 Enrichment | 2.3851112745 | $376,551 | $376,551 | $898.12 | | |
| ST | State School | 1.4761226122 | $376,551 | $376,551 | $555.84 | | |
| ST2 | State School Part 2 | 0.7953803475 | $376,551 | $376,551 | $299.50 | | |
| | Total Tax Rate: | 7.6313709459 | | | | | |
| | | | | Taxes w/Current Exemptions: | $2,873.61 | | |
| | | | | Taxes w/o Exemptions: | $2,873.61 | | |
Improvement / Building
| Improvement #1: | MANUFACTURED HOME | State Code: | Y | 1728.0 sqft | Value: | $126,551 |
| Bathrooms: | 0 | Bedrooms: | 0 | | Ceiling: | PLASTER PAINTED | Exterior Wall/Cover: | VINYL | | Floor Covering: | CARPET 100% | Floor Structure: | SLAB ON GRADE | | Foundation: | SLAB | Heating: | FHA ELECTRIC | | Interior Finish: | PLASTER | Plumbing Fixture Cnt: | 1 | | Roof Slope: | FLAT | Roof Structure/Cover: | CJ ALUMINIUM HEAVY |
|
| | Type | Description | Class CD | Sub Class CD | Year Built | Area |
| | BAS | BASE/MAIN FLOOR | 4 | 0 | 1998 | 1728.0 |
| | OCP | OPEN CARPORT | 4 | 0 | 1998 | 336.0 |
| | OWP | OPEN WOOD PORCH W/STEPS | 4 | 0 | 1998 | 904.0 |
| | UTY | STORAGE/UTILITY | 4 | 0 | 1998 | 168.0 |
Sketch
Property Image
Land
| 1 | 18 | AC (02.01-03.00) | 2.7300 | 118918.80 | 0.00 | 0.00 | 1.00 | $250,000 | $0 |
Roll Value History
| 2026 | N/A | N/A | N/A | N/A | N/A |
| 2025 | $126,551 | $250,000 | $0 | $376,551 | $376,551 |
| 2024 | $130,505 | $230,000 | $0 | $360,505 | $360,505 |
| 2023 | $116,917 | $220,000 | $0 | $336,917 | $336,917 |
| 2022 | $127,912 | $210,000 | $0 | $337,912 | $337,912 |
| 2021 | $114,812 | $160,000 | $0 | $274,812 | $274,812 |
| 2020 | $114,947 | $130,000 | $0 | $244,947 | $244,947 |
| 2019 | $93,296 | $180,000 | $0 | $273,296 | $273,296 |
| 2018 | $60,026 | $170,000 | $0 | $230,026 | $230,026 |
| 2017 | $61,740 | $150,000 | $0 | $211,740 | $211,740 |
| 2016 | $65,412 | $120,000 | $0 | $185,412 | $185,412 |
| 2015 | $67,140 | $90,000 | $0 | $157,140 | $157,140 |
| 2014 | $68,866 | $80,000 | $0 | $148,866 | $148,866 |
| 2013 | $70,592 | $80,750 | $0 | $151,342 | $151,342 |
| 2012 | $72,319 | $80,750 | $0 | $153,069 | $153,069 |
| 2011 | $74,045 | $95,000 | $0 | $169,045 | $169,045 |
| 2010 | $80,265 | $95,000 | $0 | $175,265 | $175,265 |
| 2009 | $100,467 | $105,000 | $0 | $205,467 | $205,467 |
| 2008 | $102,149 | $99,825 | $0 | $201,974 | $201,974 |
| 2007 | $104,476 | $99,825 | $0 | $204,301 | $204,301 |
Deed and Sales History
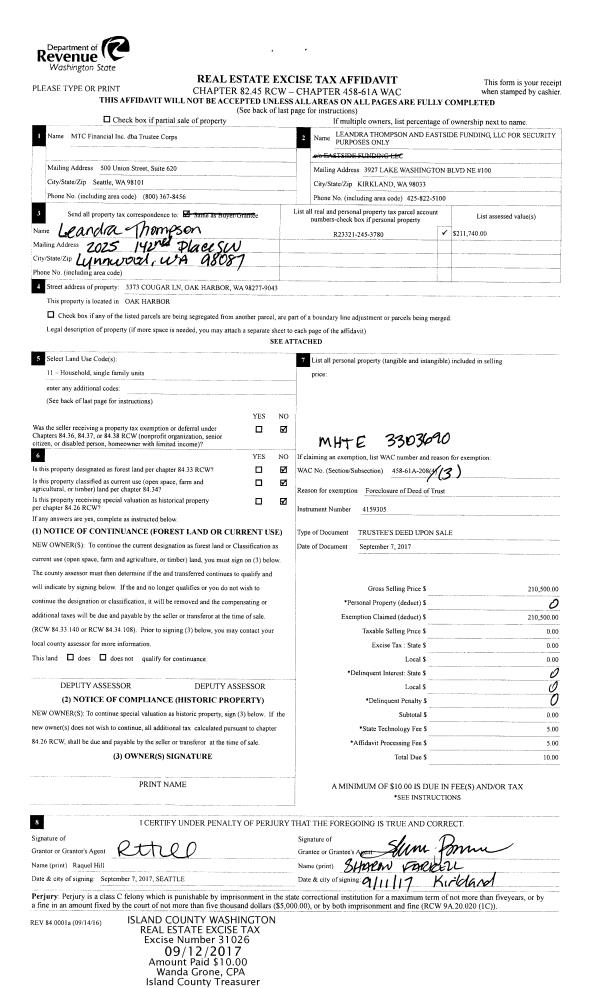
| 1 | 10/08/2018 | WD | Warranty Deed | THOMPSON, LEANDRA | BURGOYNE, DANIEL RICHARD | | | $300,000.00 | 36258 | 4453284 |
| 2 | 09/07/2017 | TRUSTEED | Trustee's Deed | RICE, TERRANCE J | THOMPSON, LEANDRA | | | $210,500.00 | 31026 | 4429906 |
| 3 | 12/12/2006 | PRD | Personal Representatives Deed | RICE, TERRANCE J | RICE, TERRANCE J | | | $0.00 | 65171 | 4189086 |
| 4 | 01/05/2006 | ESTSEPPROP | Establish Separate Property | RICE, TERRANCE J | RICE, TERRANCE J | | | $0.00 | 60082 | 4159213 |
| 5 | 01/05/2006 | WD | Warranty Deed | BYRAM, SHAWN C | RICE, TERRANCE J | | | $247,000.00 | 60081 | 4159212 |
| 6 | 08/23/2002 | WD | Warranty Deed | HENSLEY, MICHAEL M | BYRAM, SHAWN C | | | $158,000.00 | 23343 | 4029329 |
| 7 | 06/30/1998 | WD | Warranty Deed | PATTERSON, JOHN S | HENSLEY, MICHAEL M | | | $25,000.00 | 82718 | 98014041 |
| 8 | 11/01/1989 | WD | Warranty Deed | HENSLEY, MICHAEL M | PATTERSON, JOHN S | | | $9,000.00 | 95520 | 89017683 |
| 9 | 01/01/1900 | OTHER | Other - Misc. Documents | Unknown | DICKSON, J W | | | $0.00 | 84290 | 339103 |
| 10 | 01/01/1900 | OTHER | Other - Misc. Documents | DICKSON, J W | HENSLEY, MICHAEL M | | | $0.00 | 82718 | 98014041 |
| 11 | 01/01/1900 | OTHER | Other - Misc. Documents | HENSLEY, MICHAEL M | HENSLEY, MICHAEL M | | | $0.00 | 0 | 0 |
Payout Agreement
| No payout information available.. |