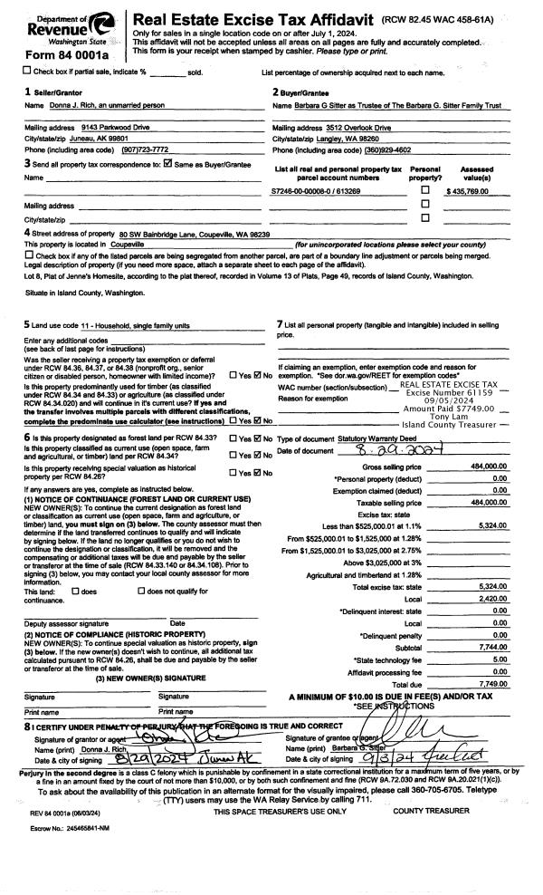
Property
Account |
| Property ID: | 613269 | Abbreviated Legal Description: | JENNE'S HOMESITE LOT 8 |
| Geographic ID: | S7246-00-00008-0 | Agent Code: | |
| Type: | Real | | |
| Tax Area: | 300 - APPRAISER-Cpvl Schl Dist, in Cpvl | Land Use Code | 11 |
| Open Space: | N | DFL | N |
| Historic Property: | N | Remodel Property: | N |
| Multi-Family Redevelopment: | N | | |
| Township: | | Section: | |
| Range: | |
Location |
| Address: | 80 SW BAINBRIDGE LN COUPEVILLE, WA 98239 | Mapsco: | |
| Neighborhood: | Cycle 2 | Map ID: | 32 |
| Neighborhood CD: | 2 |
Owner |
| Name: | SITTER TTEE, BARBARA G | Owner ID: | 313759 |
| Mailing Address: | 3512 OVERLOOK DR LANGLEY, WA 98260 | % Ownership: | 100.0000000000% |
| | | Exemptions: | |
Taxes and Assessment Details
Values
| (+) Improvement Homesite Value: | + | $0 | |
| (+) Improvement Non-Homesite Value: | + | $269,366 | |
| (+) Land Homesite Value: | + | $0 | |
| (+) Land Non-Homesite Value: | + | $220,000 | |
| (+) Curr Use (HS): | + | $0 | $0 |
| (+) Curr Use (NHS): | + | $0 | $0 |
| | | -------------------------- | |
| (=) Market Value: | = | $489,366 | |
| (–) Productivity Loss: | – | $0 | |
| | | -------------------------- | |
| (=) Subtotal: | = | $489,366 | |
| (+) Senior Appraised Value: | + | $0 | |
| (+) Non-Senior Appraised Value: | + | $489,366 | |
| | | -------------------------- | |
| (=) Total Appraised Value: | = | $489,366 | |
| (–) Senior Exemption Loss: | – | $0 | |
| (–) Exemption Loss: | – | $0 | |
| | | -------------------------- | |
| (=) Taxable Value: | = | $489,366 | |
Taxing Jurisdiction
| Owner: | SITTER TTEE, BARBARA G | | |
| % Ownership: | 100.0000000000% | | |
| Total Value: | $489,366 | | |
| Tax Area: | 300 - APPRAISER-Cpvl Schl Dist, in Cpvl |
| CF | Conservation Futures | 0.0313996660 | $489,366 | $489,366 | $15.37 | | |
| CEM2 | Cemetery #2 | 0.0092609791 | $489,366 | $489,366 | $4.53 | | |
| COUP | City: Town of Coupeville | 0.8188663519 | $489,366 | $489,366 | $400.73 | | |
| FIRE5 | Fire & Rescue Dist #5 C Whidbey GEN | 1.1892169230 | $489,366 | $489,366 | $581.96 | | |
| FIRE5BOND | Fire & Rescue Dist #5 C Whidbey BOND | 0.1394359503 | $489,366 | $489,366 | $68.24 | | |
| HOBOND | Hospital BOND | 0.1893405597 | $489,366 | $489,366 | $92.66 | | |
| HOGEN | Hospital GEN | 0.3848777722 | $489,366 | $489,366 | $188.35 | | |
| CE | County Current Expense | 0.3674210519 | $489,366 | $489,366 | $179.80 | | |
| ISLANDEMS | Hospital GEN (EMS) | 0.4952018576 | $489,366 | $489,366 | $242.33 | | |
| LIB | Library Sno-Isle GEN | 0.3039084203 | $489,366 | $489,366 | $148.72 | | |
| LIBCAP | Library Sno-Isle BOND (Cap Fac Imp Area) | 0.0528562629 | $489,366 | $489,366 | $25.87 | | |
| POCOUP | Port of Coupeville GEN | 0.1065226063 | $489,366 | $489,366 | $52.13 | | |
| POCOUPIDD | Port of Coupeville IDD | 0.3353038577 | $489,366 | $489,366 | $164.09 | | |
| COUPSDTECH | School 204 CP (TECH) | 0.1215123397 | $489,366 | $489,366 | $59.46 | | |
| SCH204MO | School 204 Enrichment | 0.6416662518 | $489,366 | $489,366 | $314.01 | | |
| ST | State School | 1.4761226122 | $489,366 | $489,366 | $722.36 | | |
| ST2 | State School Part 2 | 0.7953803475 | $489,366 | $489,366 | $389.23 | | |
| | Total Tax Rate: | 7.4582938101 | | | | | |
| | | | | Taxes w/Current Exemptions: | $3,649.84 | | |
| | | | | Taxes w/o Exemptions: | $3,649.84 | | |
Improvement / Building
| Improvement #1: | RESIDENTIAL | State Code: | Y | 1608.8 sqft | Value: | $269,366 |
| Bathrooms: | 2 | Bedrooms: | 3 | | Ceiling: | DRYWALL PAINTED | Exterior Wall/Cover: | PLY/HARDBOARD T-111 | | Floor Covering: | CARPET/VINYL 60-40 | Floor Structure: | WOOD W/SUBFLOOR | | Foundation: | CONCRETE | Heating: | WALL HEAT ELECTRIC | | Interior Finish: | DRYWALL PAINT | Plumbing Fixture Cnt: | 10 | | Roof Slope: | 6" IN 12" | Roof Structure/Cover: | CJ ASPHALT |
|
| | Type | Description | Class CD | Sub Class CD | Year Built | Area |
| | BAS | BASE/MAIN FLOOR | 3 | 0 | 1989 | 1608.8 |
| | AGR | ATTACHED GARAGE | 3 | 0 | 1989 | 490.6 |
| | OWP | OPEN WOOD PORCH W/STEPS | 3 | 0 | 1989 | 46.0 |
| | OWP | OPEN WOOD PORCH W/STEPS | 3 | 0 | 1989 | 501.8 |
| | OWC | OPEN WOOD PORCH W/STEPS/ROOF/C | 3 | 0 | 1989 | 9.2 |
Sketch
| No sketches available for this property. |
Property Image
Land
| 1 | 14 | SQ (08001-12000) | 0.2400 | 10454.40 | 0.00 | 0.00 | 1.00 | $220,000 | $0 |
Roll Value History
| 2026 | N/A | N/A | N/A | N/A | N/A |
| 2025 | $269,366 | $220,000 | $0 | $489,366 | $489,366 |
| 2024 | $235,769 | $200,000 | $0 | $435,769 | $435,769 |
| 2023 | $239,115 | $200,000 | $0 | $439,115 | $439,115 |
| 2022 | $219,609 | $180,000 | $0 | $399,609 | $399,609 |
| 2021 | $193,691 | $140,000 | $0 | $333,691 | $333,691 |
| 2020 | $189,089 | $110,000 | $0 | $299,089 | $299,089 |
| 2019 | $138,590 | $140,000 | $0 | $278,590 | $278,590 |
| 2018 | $132,850 | $130,000 | $0 | $262,850 | $262,850 |
| 2017 | $133,728 | $110,000 | $0 | $243,728 | $243,728 |
| 2016 | $135,601 | $85,000 | $0 | $220,601 | $220,601 |
| 2015 | $137,475 | $85,000 | $0 | $222,475 | $222,475 |
| 2014 | $139,348 | $85,000 | $0 | $224,348 | $224,348 |
| 2013 | $141,223 | $85,000 | $0 | $226,223 | $226,223 |
| 2012 | $145,472 | $89,250 | $0 | $234,722 | $234,722 |
| 2011 | $147,343 | $105,000 | $0 | $252,343 | $252,343 |
| 2010 | $154,769 | $105,000 | $0 | $259,769 | $259,769 |
| 2009 | $161,433 | $125,000 | $0 | $286,433 | $286,433 |
| 2008 | $163,654 | $133,898 | $0 | $297,552 | $297,552 |
| 2007 | $165,685 | $60,000 | $0 | $225,685 | $225,685 |
Deed and Sales History
| 1 | 08/29/2024 | WD | Warranty Deed | RICH, DONNA J | SITTER TTEE, BARBARA G | | | $484,000.00 | 61159 | 4576658 |
| 2 | 01/23/2017 | TRUSTEED | Trustee's Deed | CHURCHILL, GEORGE B | RICH, DONNA J | | | $185,000.00 | 27858 | 4415899 |
| 3 | 08/18/2008 | WD | Warranty Deed | BOAZ-HOMGREN, ROBIN LYNN | CHURCHILL, GEORGE B | | | $307,500.00 | 82193 | 4235384 |
| 4 | 12/28/2007 | PRD | Personal Representatives Deed | RIDGE, MARILYN G | BOAZ-HOMGREN, ROBIN LYNN | | | $0.00 | 80023 | 4219116 |
| 5 | 10/13/2004 | WD | Warranty Deed | ROBERTS, JAY M | RIDGE, MARILYN G | | | $206,000.00 | 44884 | 4115759 |
| 6 | 12/29/2003 | DECREE | Divorce Decree/Legal Separation | ROBERTS, JAY M | ROBERTS, JAY M | | | $0.00 | 41019 | 4094386 |
| 7 | 12/01/1997 | WD | Warranty Deed | KAELIN, SUSAN M | ROBERTS, JAY M | | | $144,000.00 | 74351 | 97020892 |
| 8 | 07/01/1992 | WD | Warranty Deed | MCLEOD, GEORGE A | KAELIN, SUSAN M | | | $124,000.00 | 22967 | 92014471 |
| 9 | 05/01/1990 | WD | Warranty Deed | DAVIS, ROBERT L | MCLEOD, GEORGE A | | | $94,000.00 | 3027 | 90009861 |
| 10 | 01/01/1990 | WD | Warranty Deed | BENNETT, DELMOND N | DAVIS, ROBERT L | | | $15,950.00 | 45 | 90000157 |
Payout Agreement
| No payout information available.. |