Property
Account |
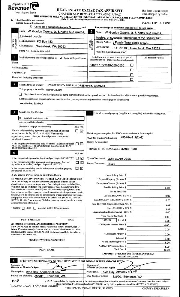
| Property ID: | 61612 | Abbreviated Legal Description: | 39 - IN GL1: BG SECR OF SW E660' N13*W343.20' TPB N13*W137.3' E PARA/W SEC LN TO ELN SD GL1 S23*E145.4' ALG SD ELN TP PARA/W SEC LN E FR TPB W ALG SD LN TPB EX FOLL DESC: BG SECR SW E ALG SEC 660' N13*W343.20' E PARA/W S SEC LN 331.36' TP BG N70*E35.03' |
| Geographic ID: | R23016-039-3500 | Agent Code: | |
| Type: | Real | | |
| Tax Area: | 312 - APPRAISER-Cpvl Schl Dist, outside Cpvl, improved, greater than 1 acre | Land Use Code | 11 |
| Open Space: | N | DFL | N |
| Historic Property: | N | Remodel Property: | N |
| Multi-Family Redevelopment: | N | | |
| Township: | 30 | Section: | 16 |
| Range: | R2 |
Location |
| Address: | 1053 SERENITY PINES LN GREENBANK, WA 98253 | Mapsco: | |
| Neighborhood: | Cycle 3 | Map ID: | 382 |
| Neighborhood CD: | 3 |
Owner |
| Name: | OWENS JR TTEE, GORDON W | Owner ID: | 297643 |
| Mailing Address: | KATHY SUE OWENS TTEE PO BOX 183 GREENBANK, WA 98253 | % Ownership: | 100.0000000000% |
| | | Exemptions: | |
Taxes and Assessment Details
Values
| (+) Improvement Homesite Value: | + | $0 | |
| (+) Improvement Non-Homesite Value: | + | $256,342 | |
| (+) Land Homesite Value: | + | $0 | |
| (+) Land Non-Homesite Value: | + | $676,600 | |
| (+) Curr Use (HS): | + | $0 | $0 |
| (+) Curr Use (NHS): | + | $0 | $0 |
| | | -------------------------- | |
| (=) Market Value: | = | $932,942 | |
| (–) Productivity Loss: | – | $0 | |
| | | -------------------------- | |
| (=) Subtotal: | = | $932,942 | |
| (+) Senior Appraised Value: | + | $0 | |
| (+) Non-Senior Appraised Value: | + | $932,942 | |
| | | -------------------------- | |
| (=) Total Appraised Value: | = | $932,942 | |
| (–) Senior Exemption Loss: | – | $0 | |
| (–) Exemption Loss: | – | $0 | |
| | | -------------------------- | |
| (=) Taxable Value: | = | $932,942 | |
Taxing Jurisdiction
| Owner: | OWENS JR TTEE, GORDON W | | |
| % Ownership: | 100.0000000000% | | |
| Total Value: | $932,942 | | |
| Tax Area: | 312 - APPRAISER-Cpvl Schl Dist, outside Cpvl, improved, greater than 1 acre |
| CF | Conservation Futures | 0.0313996660 | $932,942 | $932,942 | $29.29 | | |
| CEM2 | Cemetery #2 | 0.0092609791 | $932,942 | $932,942 | $8.64 | | |
| FIRE5 | Fire & Rescue Dist #5 C Whidbey GEN | 1.1892169230 | $932,942 | $932,942 | $1,109.47 | | |
| FIRE5BOND | Fire & Rescue Dist #5 C Whidbey BOND | 0.1394359503 | $932,942 | $932,942 | $130.09 | | |
| HOBOND | Hospital BOND | 0.1893405597 | $932,942 | $932,942 | $176.64 | | |
| HOGEN | Hospital GEN | 0.3848777722 | $932,942 | $932,942 | $359.07 | | |
| CE | County Current Expense | 0.3674210519 | $932,942 | $932,942 | $342.78 | | |
| CR | County Roads | 0.4614296361 | $932,942 | $932,942 | $430.49 | | |
| ISLANDEMS | Hospital GEN (EMS) | 0.4952018576 | $932,942 | $932,942 | $461.99 | | |
| LIB | Library Sno-Isle GEN | 0.3039084203 | $932,942 | $932,942 | $283.53 | | |
| LIBCAP | Library Sno-Isle BOND (Cap Fac Imp Area) | 0.0528562629 | $932,942 | $932,942 | $49.31 | | |
| POCOUP | Port of Coupeville GEN | 0.1065226063 | $932,942 | $932,942 | $99.38 | | |
| POCOUPIDD | Port of Coupeville IDD | 0.3353038577 | $932,942 | $932,942 | $312.82 | | |
| COUPSDTECH | School 204 CP (TECH) | 0.1215123397 | $932,942 | $932,942 | $113.36 | | |
| SCH204MO | School 204 Enrichment | 0.6416662518 | $932,942 | $932,942 | $598.64 | | |
| ST | State School | 1.4761226122 | $932,942 | $932,942 | $1,377.14 | | |
| ST2 | State School Part 2 | 0.7953803475 | $932,942 | $932,942 | $742.04 | | |
| | Total Tax Rate: | 7.1008570943 | | | | | |
| | | | | Taxes w/Current Exemptions: | $6,624.68 | | |
| | | | | Taxes w/o Exemptions: | $6,624.68 | | |
Improvement / Building
| Improvement #1: | RESIDENTIAL | State Code: | Y | 1226.0 sqft | Value: | $256,342 |
| Bathrooms: | 2 | Bedrooms: | 2 | | Ceiling: | DRYWALL PAINTED | Exterior Wall/Cover: | VINYL | | Floor Covering: | HARDWOOD/CARP 20-80 | Floor Structure: | WOOD W/SUBFLOOR | | Foundation: | CONCRETE | Heating: | FHA GAS | | Interior Finish: | DRYWALL PAINT | Plumbing Fixture Cnt: | 10 | | Roof Slope: | 5" IN 12" | Roof Structure/Cover: | CJ ASPHALT |
|
| | Type | Description | Class CD | Sub Class CD | Year Built | Area |
| | BAS | BASE/MAIN FLOOR | 3 | 0 | 1995 | 926.0 |
| | BIG | BUILT IN GARAGE | 3 | 0 | 1995 | 843.0 |
| | UTY | STORAGE/UTILITY | 3 | 0 | 1995 | 143.0 |
| | OWP | OPEN WOOD PORCH W/STEPS | 3 | 0 | 1995 | 9.0 |
| | OWP | OPEN WOOD PORCH W/STEPS | 3 | 0 | 1995 | 963.0 |
| | OWP | OPEN WOOD PORCH W/STEPS | 3 | 0 | 1995 | 429.0 |
| | LOF | LOFT | 3 | 0 | 1995 | 300.0 |
Sketch
Property Image
Land
| 1 | 55 | TIDES | 0.0000 | 0.00 | 130.00 | 0.00 | 1.00 | $1,300 | $0 |
| 2 | 54 | WASTE LAND | 0.0000 | 0.00 | 0.00 | 0.00 | 1.00 | $300 | $0 |
| 3 | HB | HIGH BLUFF | 1.8600 | 81021.60 | 100.00 | 0.00 | 1.00 | $675,000 | $0 |
Roll Value History
| 2026 | N/A | N/A | N/A | N/A | N/A |
| 2025 | $256,342 | $676,600 | $0 | $932,942 | $932,942 |
| 2024 | $259,661 | $651,600 | $0 | $911,261 | $911,261 |
| 2023 | $262,981 | $576,600 | $0 | $839,581 | $839,581 |
| 2022 | $241,135 | $576,600 | $0 | $817,735 | $817,735 |
| 2021 | $212,304 | $401,600 | $0 | $613,904 | $613,904 |
| 2020 | $206,453 | $351,600 | $0 | $558,053 | $558,053 |
| 2019 | $133,947 | $436,600 | $0 | $570,547 | $570,547 |
| 2018 | $134,385 | $351,600 | $0 | $485,985 | $485,985 |
| 2017 | $135,264 | $351,600 | $0 | $486,864 | $486,864 |
| 2016 | $137,021 | $351,600 | $0 | $488,621 | $488,621 |
| 2015 | $138,778 | $351,600 | $0 | $490,378 | $490,378 |
| 2014 | $140,534 | $351,600 | $0 | $492,134 | $492,134 |
| 2013 | $147,336 | $294,678 | $0 | $442,014 | $442,014 |
| 2012 | $149,141 | $294,678 | $0 | $443,819 | $443,819 |
| 2011 | $150,947 | $294,678 | $0 | $445,625 | $445,625 |
| 2010 | $156,612 | $294,678 | $0 | $451,290 | $451,290 |
| 2009 | $163,367 | $392,371 | $0 | $555,738 | $555,738 |
| 2008 | $165,430 | $392,371 | $0 | $557,801 | $557,801 |
| 2007 | $160,434 | $389,185 | $0 | $549,619 | $549,619 |
Deed and Sales History
| 1 | 06/08/2020 | QCD | Quit Claim Deed | OWENS, GORDON | OWENS JR TTEE, GORDON W | | | $0.00 | 43629 | 4490393 |
| 2 | 06/05/2008 | BLA | DNU - Boundary Line Adjustment | OWENS, GORDON | OWENS, GORDON | | | $0.00 | 80765 | 4186825 |
| 3 | 03/01/1990 | WD | Warranty Deed | OWENS, GORDON | OWENS, GORDON | | | $139,500.00 | 1330 | 90004235 |
| 4 | 03/01/1990 | WD | Warranty Deed | ROYSE, WILLIAM J | OWENS, GORDON | | | $0.00 | 2643 | 90008590 |
| 5 | 06/01/1988 | WD | Warranty Deed | DAY, DONOVAN D | ROYSE, WILLIAM J | | | $27,900.00 | 81773 | 88006605 |
| 6 | 11/01/1980 | CD | DNU - Correction Deed | DAY, DONOVAN D | DAY, DONOVAN D | | | $0.00 | 10073 | 379878 |
| 7 | 01/01/1963 | TRUSTEED | Trustee's Deed | CLEMENT, ANDREW W | DAY, DONOVAN D | | | $0.00 | 13466 | 0 |
| 8 | 01/01/1900 | OTHER | Other - Misc. Documents | Unknown | CLEMENT, ANDREW W | | | $0.00 | 0 | 0 |
Payout Agreement
| No payout information available.. |