Property
Account |
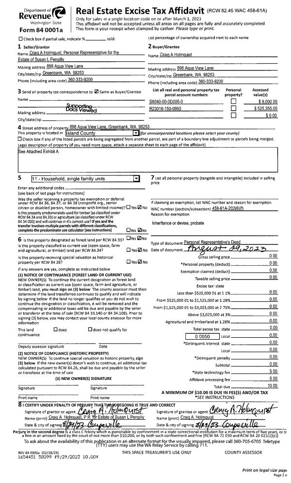
| Property ID: | 61756 | Abbreviated Legal Description: | 22 - S/2 NW SW E OF CO RD EX N333.38' EX PT TO STATE OF WASH AF#96000660 |
| Geographic ID: | R23016-150-0950 | Agent Code: | |
| Type: | Real | | |
| Tax Area: | 312 - APPRAISER-Cpvl Schl Dist, outside Cpvl, improved, greater than 1 acre | Land Use Code | 11 |
| Open Space: | N | DFL | N |
| Historic Property: | N | Remodel Property: | N |
| Multi-Family Redevelopment: | N | | |
| Township: | 30 | Section: | 16 |
| Range: | R2 |
Location |
| Address: | 898 AQUA VIEW LN GREENBANK, WA 98253 | Mapsco: | |
| Neighborhood: | Cycle 3 | Map ID: | 381 |
| Neighborhood CD: | 3 |
Owner |
| Name: | HOLMQUIST, CRAIG A | Owner ID: | 201142 |
| Mailing Address: | 898 AQUA VIEW LN GREENBANK, WA 98253 | % Ownership: | 100.0000000000% |
| | | Exemptions: | |
Taxes and Assessment Details
Values
| (+) Improvement Homesite Value: | + | $0 | |
| (+) Improvement Non-Homesite Value: | + | $283,083 | |
| (+) Land Homesite Value: | + | $0 | |
| (+) Land Non-Homesite Value: | + | $350,000 | |
| (+) Curr Use (HS): | + | $0 | $0 |
| (+) Curr Use (NHS): | + | $0 | $0 |
| | | -------------------------- | |
| (=) Market Value: | = | $633,083 | |
| (–) Productivity Loss: | – | $0 | |
| | | -------------------------- | |
| (=) Subtotal: | = | $633,083 | |
| (+) Senior Appraised Value: | + | $0 | |
| (+) Non-Senior Appraised Value: | + | $633,083 | |
| | | -------------------------- | |
| (=) Total Appraised Value: | = | $633,083 | |
| (–) Senior Exemption Loss: | – | $0 | |
| (–) Exemption Loss: | – | $0 | |
| | | -------------------------- | |
| (=) Taxable Value: | = | $633,083 | |
Taxing Jurisdiction
| Owner: | HOLMQUIST, CRAIG A | | |
| % Ownership: | 100.0000000000% | | |
| Total Value: | $633,083 | | |
| Tax Area: | 312 - APPRAISER-Cpvl Schl Dist, outside Cpvl, improved, greater than 1 acre |
| CF | Conservation Futures | 0.0313996660 | $633,083 | $633,083 | $19.88 | | |
| CEM2 | Cemetery #2 | 0.0092609791 | $633,083 | $633,083 | $5.86 | | |
| FIRE5 | Fire & Rescue Dist #5 C Whidbey GEN | 1.1892169230 | $633,083 | $633,083 | $752.87 | | |
| FIRE5BOND | Fire & Rescue Dist #5 C Whidbey BOND | 0.1394359503 | $633,083 | $633,083 | $88.27 | | |
| HOBOND | Hospital BOND | 0.1893405597 | $633,083 | $633,083 | $119.87 | | |
| HOGEN | Hospital GEN | 0.3848777722 | $633,083 | $633,083 | $243.66 | | |
| CE | County Current Expense | 0.3674210519 | $633,083 | $633,083 | $232.61 | | |
| CR | County Roads | 0.4614296361 | $633,083 | $633,083 | $292.12 | | |
| ISLANDEMS | Hospital GEN (EMS) | 0.4952018576 | $633,083 | $633,083 | $313.50 | | |
| LIB | Library Sno-Isle GEN | 0.3039084203 | $633,083 | $633,083 | $192.40 | | |
| LIBCAP | Library Sno-Isle BOND (Cap Fac Imp Area) | 0.0528562629 | $633,083 | $633,083 | $33.46 | | |
| POCOUP | Port of Coupeville GEN | 0.1065226063 | $633,083 | $633,083 | $67.44 | | |
| POCOUPIDD | Port of Coupeville IDD | 0.3353038577 | $633,083 | $633,083 | $212.28 | | |
| COUPSDTECH | School 204 CP (TECH) | 0.1215123397 | $633,083 | $633,083 | $76.93 | | |
| SCH204MO | School 204 Enrichment | 0.6416662518 | $633,083 | $633,083 | $406.23 | | |
| ST | State School | 1.4761226122 | $633,083 | $633,083 | $934.51 | | |
| ST2 | State School Part 2 | 0.7953803475 | $633,083 | $633,083 | $503.54 | | |
| | Total Tax Rate: | 7.1008570943 | | | | | |
| | | | | Taxes w/Current Exemptions: | $4,495.43 | | |
| | | | | Taxes w/o Exemptions: | $4,495.43 | | |
Improvement / Building
| Improvement #1: | RESIDENTIAL | State Code: | Y | 1560.0 sqft | Value: | $283,083 |
| Bathrooms: | 2 | Bedrooms: | 1 | | Ceiling: | DRYWALL PAINTED | Cooling: | HEAT PUMP/CONV/V | | Exterior Wall/Cover: | VINYL | Floor Covering: | SOFTWOOD 100% | | Floor Structure: | WOOD W/SUBFLOOR | Foundation: | SLAB | | Heating: | RADIANT FLOOR | Interior Finish: | DRYWALL PAINT | | Plumbing Fixture Cnt: | 9 | Roof Slope: | 6" IN 12" | | Roof Structure/Cover: | BEAM ALUMINUM HEAVY |   |   |
|
| | Type | Description | Class CD | Sub Class CD | Year Built | Area |
| | BAS | BASE/MAIN FLOOR | 3 | 0 | 2005 | 600.0 |
| | UPH | HALF STORY | 3 | 0 | 2005 | 960.0 |
| | BIG | BUILT IN GARAGE | 3 | 0 | 2005 | 840.0 |
| | OWP | OPEN WOOD PORCH W/STEPS | 3 | 0 | 2005 | 116.0 |
Sketch
Property Image
Land
| 1 | 32 | AC (03.01-09.99) | 6.2700 | 0.00 | 0.00 | 0.00 | 1.00 | $350,000 | $0 |
Roll Value History
| 2026 | N/A | N/A | N/A | N/A | N/A |
| 2025 | $283,083 | $350,000 | $0 | $633,083 | $633,083 |
| 2024 | $286,403 | $340,000 | $0 | $626,403 | $626,403 |
| 2023 | $289,723 | $320,000 | $0 | $609,723 | $609,723 |
| 2022 | $265,355 | $260,000 | $0 | $525,355 | $525,355 |
| 2021 | $233,346 | $230,000 | $0 | $463,346 | $463,346 |
| 2020 | $226,835 | $180,000 | $0 | $406,835 | $406,835 |
| 2019 | $87,160 | $230,000 | $0 | $317,160 | $317,160 |
| 2018 | $87,160 | $220,000 | $0 | $307,160 | $307,160 |
| 2017 | $87,160 | $160,000 | $0 | $247,160 | $247,160 |
| 2016 | $87,160 | $165,000 | $0 | $252,160 | $252,160 |
| 2015 | $87,160 | $130,000 | $0 | $217,160 | $217,160 |
| 2014 | $87,160 | $125,000 | $0 | $212,160 | $212,160 |
| 2013 | $91,160 | $152,361 | $0 | $243,521 | $243,521 |
| 2012 | $91,160 | $152,361 | $0 | $243,521 | $243,521 |
| 2011 | $91,160 | $169,290 | $0 | $260,450 | $260,450 |
| 2010 | $57,997 | $169,290 | $0 | $227,287 | $227,287 |
| 2009 | $59,094 | $187,980 | $0 | $247,074 | $247,074 |
| 2008 | $60,112 | $211,613 | $0 | $271,725 | $271,725 |
Deed and Sales History
| 1 | 08/29/2023 | PRD | Personal Representatives Deed | HOLMQUIST, CRAIG A | HOLMQUIST, CRAIG A | | | $0.00 | 58099 | 4565171 |
| 2 | 02/24/2015 | CCOMPROP | Create Community Property | HOLMQUIST, CRAIG A | HOLMQUIST, CRAIG A | | | $0.00 | 18654 | 4374268 |
| 3 | 03/25/2009 | QCD | Quit Claim Deed | HOLMQUIST, MARGARET J | HOLMQUIST, CRAIG A | | | $0.00 | 90663 | 4247396 |
| 4 | 08/27/2007 | WD | Warranty Deed | GLASEN, GAIL A | HOLMQUIST, MARGARET J | | | $272,272.00 | 72918 | 4210576 |
| 5 | 08/06/2003 | WD | Warranty Deed | NIELSON, JEROME S | GLASEN, GAIL A | | | $50,991.00 | 33770 | 4072655 |
| 6 | 12/01/1995 | WD | Warranty Deed | NIELSON, JEROME S | NIELSON, JEROME S | | | $1,300.00 | 60143 | 96000660 |
| 7 | 01/01/1977 | CD | DNU - Correction Deed | Unknown | NIELSON, JEROME S | | | $0.00 | 70121 | 0 |
Payout Agreement
| No payout information available.. |