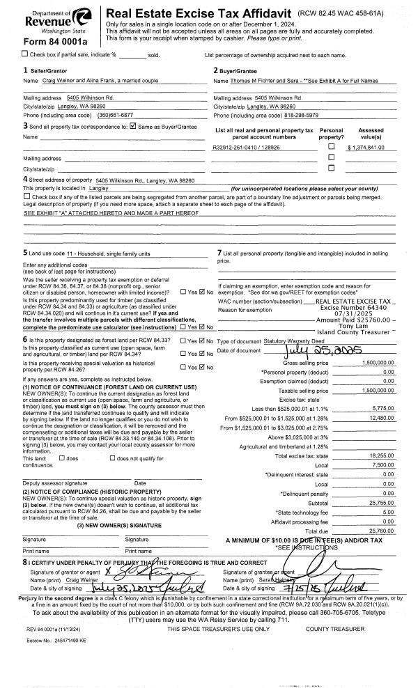
Property
Account |
| Property ID: | 62005 | Abbreviated Legal Description: | 54 - PT S/2 SW NW OF GL 3 DESC: BG NECR S/2 SW NW E450' S250' W450'TP WLN GL3 250'S OF TPB W PARA/W & 250 SLY FR NLN S/W SW NW 342' M/L TO ELN ST HWY 1-D NLY 270'M/L E407.6'M/L TPB TGW 1/2 INT IN WATER SYSTEM EX PT TO ST OF WA AF#96013460 |
| Geographic ID: | R23016-317-1460 | Agent Code: | |
| Type: | Real | | |
| Tax Area: | 312 - APPRAISER-Cpvl Schl Dist, outside Cpvl, improved, greater than 1 acre | Land Use Code | 11 |
| Open Space: | N | DFL | N |
| Historic Property: | N | Remodel Property: | N |
| Multi-Family Redevelopment: | N | | |
| Township: | 30 | Section: | 16 |
| Range: | R2 |
Location |
| Address: | 24386 SR525 GREENBANK, WA 98253 | Mapsco: | |
| Neighborhood: | Cycle 3 | Map ID: | 383 |
| Neighborhood CD: | 3 |
Owner |
| Name: | CHEESEMAN JTWROS, NANCY FRANCES | Owner ID: | 286569 |
| Mailing Address: | KELLY LINN CHEESEMAN JTWROS PO BOX 253 GREENBANK, WA 98253 | % Ownership: | 100.0000000000% |
| | | Exemptions: | |
Taxes and Assessment Details
Values
| (+) Improvement Homesite Value: | + | $0 | |
| (+) Improvement Non-Homesite Value: | + | $375,928 | |
| (+) Land Homesite Value: | + | $0 | |
| (+) Land Non-Homesite Value: | + | $350,000 | |
| (+) Curr Use (HS): | + | $0 | $0 |
| (+) Curr Use (NHS): | + | $0 | $0 |
| | | -------------------------- | |
| (=) Market Value: | = | $725,928 | |
| (–) Productivity Loss: | – | $0 | |
| | | -------------------------- | |
| (=) Subtotal: | = | $725,928 | |
| (+) Senior Appraised Value: | + | $0 | |
| (+) Non-Senior Appraised Value: | + | $725,928 | |
| | | -------------------------- | |
| (=) Total Appraised Value: | = | $725,928 | |
| (–) Senior Exemption Loss: | – | $0 | |
| (–) Exemption Loss: | – | $0 | |
| | | -------------------------- | |
| (=) Taxable Value: | = | $725,928 | |
Taxing Jurisdiction
| Owner: | CHEESEMAN JTWROS, NANCY FRANCES | | |
| % Ownership: | 100.0000000000% | | |
| Total Value: | $725,928 | | |
| Tax Area: | 312 - APPRAISER-Cpvl Schl Dist, outside Cpvl, improved, greater than 1 acre |
| CF | Conservation Futures | 0.0313996660 | $725,928 | $725,928 | $22.79 | | |
| CEM2 | Cemetery #2 | 0.0092609791 | $725,928 | $725,928 | $6.72 | | |
| FIRE5 | Fire & Rescue Dist #5 C Whidbey GEN | 1.1892169230 | $725,928 | $725,928 | $863.29 | | |
| FIRE5BOND | Fire & Rescue Dist #5 C Whidbey BOND | 0.1394359503 | $725,928 | $725,928 | $101.22 | | |
| HOBOND | Hospital BOND | 0.1893405597 | $725,928 | $725,928 | $137.45 | | |
| HOGEN | Hospital GEN | 0.3848777722 | $725,928 | $725,928 | $279.39 | | |
| CE | County Current Expense | 0.3674210519 | $725,928 | $725,928 | $266.72 | | |
| CR | County Roads | 0.4614296361 | $725,928 | $725,928 | $334.96 | | |
| ISLANDEMS | Hospital GEN (EMS) | 0.4952018576 | $725,928 | $725,928 | $359.48 | | |
| LIB | Library Sno-Isle GEN | 0.3039084203 | $725,928 | $725,928 | $220.62 | | |
| LIBCAP | Library Sno-Isle BOND (Cap Fac Imp Area) | 0.0528562629 | $725,928 | $725,928 | $38.37 | | |
| POCOUP | Port of Coupeville GEN | 0.1065226063 | $725,928 | $725,928 | $77.33 | | |
| POCOUPIDD | Port of Coupeville IDD | 0.3353038577 | $725,928 | $725,928 | $243.41 | | |
| COUPSDTECH | School 204 CP (TECH) | 0.1215123397 | $725,928 | $725,928 | $88.21 | | |
| SCH204MO | School 204 Enrichment | 0.6416662518 | $725,928 | $725,928 | $465.80 | | |
| ST | State School | 1.4761226122 | $725,928 | $725,928 | $1,071.56 | | |
| ST2 | State School Part 2 | 0.7953803475 | $725,928 | $725,928 | $577.39 | | |
| | Total Tax Rate: | 7.1008570943 | | | | | |
| | | | | Taxes w/Current Exemptions: | $5,154.71 | | |
| | | | | Taxes w/o Exemptions: | $5,154.71 | | |
Improvement / Building
| Improvement #1: | RESIDENTIAL | State Code: | Y | 1835.2 sqft | Value: | $375,928 |
| Bathrooms: | 3 | Bedrooms: | 2 | | Ceiling: | DRYWALL PAINTED | Exterior Wall/Cover: | SHINGLE | | Floor Covering: | CARPET/VINYL 80-20 | Floor Structure: | WOOD W/SUBFLOOR | | Foundation: | CONCRETE | Heating: | WALL HEAT ELECTRIC | | Interior Finish: | DRYWALL PAINT | Plumbing Fixture Cnt: | 12 | | Roof Slope: | 6" IN 12" | Roof Structure/Cover: | CJ ASPHALT |
|
| | Type | Description | Class CD | Sub Class CD | Year Built | Area |
| | BAS | BASE/MAIN FLOOR | 4 | 0 | 1927 | 1835.2 |
| | OP1 | OPEN PORCH SLAB | 4 | 0 | 1927 | 508.5 |
| | OWP | OPEN WOOD PORCH W/STEPS | 4 | 0 | 1927 | 96.0 |
| | ENP | ENCLOSED PORCH | 4 | 0 | 1927 | 71.5 |
| | ATU | ATTIC UNFINISHED | 4 | 0 | 1927 | 216.0 |
| | UTY | STORAGE/UTILITY | 4 | 0 | 1927 | 630.0 |
| | ATF | ATTIC FINISHED | 4 | 0 | 1927 | 486.0 |
Sketch
Property Image
Land
| 1 | 32 | AC (03.01-09.99) | 4.6100 | 0.00 | 0.00 | 0.00 | 1.00 | $350,000 | $0 |
Roll Value History
| 2026 | N/A | N/A | N/A | N/A | N/A |
| 2025 | $375,928 | $350,000 | $0 | $725,928 | $725,928 |
| 2024 | $381,355 | $340,000 | $0 | $721,355 | $721,355 |
| 2023 | $386,784 | $320,000 | $0 | $706,784 | $706,784 |
| 2022 | $355,152 | $260,000 | $0 | $615,152 | $615,152 |
| 2021 | $313,102 | $230,000 | $0 | $543,102 | $543,102 |
| 2020 | $305,037 | $180,000 | $0 | $485,037 | $485,037 |
| 2019 | $224,704 | $220,000 | $0 | $444,704 | $444,704 |
| 2018 | $103,119 | $170,000 | $0 | $273,119 | $273,119 |
| 2017 | $104,122 | $160,000 | $0 | $264,122 | $264,122 |
| 2016 | $106,123 | $120,000 | $0 | $226,123 | $226,123 |
| 2015 | $108,125 | $130,000 | $0 | $238,125 | $238,125 |
| 2014 | $110,128 | $125,000 | $0 | $235,128 | $235,128 |
| 2013 | $95,995 | $112,023 | $0 | $208,018 | $208,018 |
| 2012 | $97,879 | $112,023 | $0 | $209,902 | $209,902 |
| 2011 | $99,760 | $124,470 | $0 | $224,230 | $224,230 |
| 2010 | $113,615 | $124,470 | $0 | $238,085 | $238,085 |
| 2009 | $117,109 | $179,790 | $0 | $296,899 | $296,899 |
| 2008 | $119,094 | $155,588 | $0 | $274,682 | $274,682 |
| 2007 | $116,121 | $142,910 | $0 | $259,031 | $259,031 |
Deed and Sales History
| 1 | 08/20/2018 | WD | Warranty Deed | HILL, PAULETTE | CHEESEMAN JTWROS, NANCY FRANCES | | | $470,000.00 | 35574 | 4450415 |
| 2 | 04/10/2015 | WD | Warranty Deed | MARTINEZ-LAPOINT, MARY | HILL, PAULETTE | | | $259,000.00 | 19161 | 4376609 |
| 3 | 09/06/2000 | WD | Warranty Deed | O'BRIEN, JOHN C | MARTINEZ-LAPOINT, MARY | | | $115,000.00 | 3929 | 20017954 |
| 4 | 07/01/1996 | WD | Warranty Deed | O'BRIEN, JOHN C | O'BRIEN, JOHN C | | | $7,150.00 | 62753 | 96013460 |
| 5 | 03/01/1996 | PRD | Personal Representatives Deed | O'BRIEN, JOHN C | O'BRIEN, JOHN C | | | $0.00 | 60907 | 96004763 |
| 6 | 01/01/1900 | OTHER | Other - Misc. Documents | Unknown | O'BRIEN, JOHN C | | | $0.00 | 0 | 0 |
Payout Agreement
| No payout information available.. |