| 1 | 04/29/2024 | WD | Warranty Deed | CEDAR PARK WAREHOUSE & STORAGE, LLC | REILAN COMMERCIAL HOUSING LLC | | | $650,000.00 | 59793 | 4571815 |
|   | |
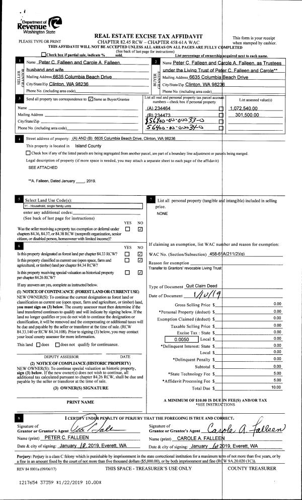
| 2 | 01/29/2019 | WD | Warranty Deed | ALLEN FAMILY INVESTMENTS, LLC | CEDAR PARK WAREHOUSE & STORAGE, LLC | | | $510,000.00 | 37469 | 4458611 |
|   | |
| 3 | 12/01/2017 | QCD | Quit Claim Deed | ALLEN, THOMAS L | ALLEN FAMILY INVESTMENTS, LLC | | | $0.00 | 32249 | 4435650 |
| 4 | 05/17/2010 | WD | Warranty Deed | MARSHALL, DAVID R | ALLEN, THOMAS L & PAMELA J | | | $61,352.00 | 1707 | 4276925 |
| 5 | 05/19/2003 | WD | Warranty Deed | PALMER, J D | MARSHALL, DAVID R | | | $55,110.00 | 32234 | 4060561 |
| 6 | 11/01/1994 | QCD | Quit Claim Deed | PALMER, J D | PALMER, J D | | | $0.00 | 44939 | 94025143 |
| 7 | 03/01/1992 | QCD | Quit Claim Deed | PALMER, J D | PALMER, J D | | | $0.00 | 20923 | 92004732 |
| 8 | 08/01/1987 | WD | Warranty Deed | ALPHA, GROUP, I | PALMER, J D | | | $36,250.00 | 72707 | 87012226 |
| 9 | 04/01/1983 | OTHER | Other - Misc. Documents | Unknown | ALPHA, GROUP, I | | | $0.00 | 31076 | 408757 |