Property
Account |
| Property ID: | 620947 | Abbreviated Legal Description: | LOT D SP 81-89.13232.070-3710 V2 SP P125 AF#87008836 |
| Geographic ID: | R13232-073-3880 | Agent Code: | |
| Type: | Real | | |
| Tax Area: | 319 - APPRAISER-Cpvl Schl Dist, outside Cpvl, vacant & 50 acres or less | Land Use Code | 91 |
| Open Space: | N | DFL | N |
| Historic Property: | N | Remodel Property: | N |
| Multi-Family Redevelopment: | N | | |
| Township: | 32 | Section: | 32 |
| Range: | R1 |
Location |
| Address: | | Mapsco: | |
| Neighborhood: | Cycle 2 | Map ID: | 171 |
| Neighborhood CD: | 2 |
Owner |
| Name: | JAMES, MICHAEL LEE | Owner ID: | 303249 |
| Mailing Address: | HAILEY JAMES 1742 WHALES RUN PL COUPEVILLE, WA 98239 | % Ownership: | 100.0000000000% |
| | | Exemptions: | |
Taxes and Assessment Details
Values
| (+) Improvement Homesite Value: | + | $0 | |
| (+) Improvement Non-Homesite Value: | + | $0 | |
| (+) Land Homesite Value: | + | $0 | |
| (+) Land Non-Homesite Value: | + | $17,000 | |
| (+) Curr Use (HS): | + | $0 | $0 |
| (+) Curr Use (NHS): | + | $0 | $0 |
| | | -------------------------- | |
| (=) Market Value: | = | $17,000 | |
| (–) Productivity Loss: | – | $0 | |
| | | -------------------------- | |
| (=) Subtotal: | = | $17,000 | |
| (+) Senior Appraised Value: | + | $0 | |
| (+) Non-Senior Appraised Value: | + | $17,000 | |
| | | -------------------------- | |
| (=) Total Appraised Value: | = | $17,000 | |
| (–) Senior Exemption Loss: | – | $0 | |
| (–) Exemption Loss: | – | $0 | |
| | | -------------------------- | |
| (=) Taxable Value: | = | $17,000 | |
Taxing Jurisdiction
| Owner: | JAMES, MICHAEL LEE | | |
| % Ownership: | 100.0000000000% | | |
| Total Value: | $17,000 | | |
| Tax Area: | 319 - APPRAISER-Cpvl Schl Dist, outside Cpvl, vacant & 50 acres or less |
| CF | Conservation Futures | 0.0313996660 | $17,000 | $17,000 | $0.53 | | |
| CEM2 | Cemetery #2 | 0.0092609791 | $17,000 | $17,000 | $0.16 | | |
| HOBOND | Hospital BOND | 0.1893405597 | $17,000 | $17,000 | $3.22 | | |
| HOGEN | Hospital GEN | 0.3848777722 | $17,000 | $17,000 | $6.54 | | |
| CE | County Current Expense | 0.3674210519 | $17,000 | $17,000 | $6.25 | | |
| CR | County Roads | 0.4614296361 | $17,000 | $17,000 | $7.84 | | |
| ISLANDEMS | Hospital GEN (EMS) | 0.4952018576 | $17,000 | $17,000 | $8.42 | | |
| LIB | Library Sno-Isle GEN | 0.3039084203 | $17,000 | $17,000 | $5.17 | | |
| LIBCAP | Library Sno-Isle BOND (Cap Fac Imp Area) | 0.0528562629 | $17,000 | $17,000 | $0.90 | | |
| POCOUP | Port of Coupeville GEN | 0.1065226063 | $17,000 | $17,000 | $1.81 | | |
| POCOUPIDD | Port of Coupeville IDD | 0.3353038577 | $17,000 | $17,000 | $5.70 | | |
| COUPSDTECH | School 204 CP (TECH) | 0.1215123397 | $17,000 | $17,000 | $2.07 | | |
| SCH204MO | School 204 Enrichment | 0.6416662518 | $17,000 | $17,000 | $10.91 | | |
| ST | State School | 1.4761226122 | $17,000 | $17,000 | $25.09 | | |
| ST2 | State School Part 2 | 0.7953803475 | $17,000 | $17,000 | $13.52 | | |
| | Total Tax Rate: | 5.7722042210 | | | | | |
| | | | | Taxes w/Current Exemptions: | $98.13 | | |
| | | | | Taxes w/o Exemptions: | $98.13 | | |
Improvement / Building
Sketch
| No sketches available for this property. |
Property Image
Land
| 1 | 91 | UNDEVELOPED LAND-METES AND BOUNDS | 0.3800 | 16552.80 | 0.00 | 0.00 | 1.00 | $17,000 | $0 |
Roll Value History
| 2026 | N/A | N/A | N/A | N/A | N/A |
| 2025 | $0 | $17,000 | $0 | $17,000 | $17,000 |
| 2024 | $0 | $17,000 | $0 | $17,000 | $17,000 |
| 2023 | $0 | $15,000 | $0 | $15,000 | $15,000 |
| 2022 | $0 | $15,000 | $0 | $15,000 | $15,000 |
| 2021 | $0 | $15,000 | $0 | $15,000 | $15,000 |
| 2020 | $0 | $15,000 | $0 | $15,000 | $15,000 |
| 2019 | $0 | $15,000 | $0 | $15,000 | $15,000 |
| 2018 | $0 | $15,000 | $0 | $15,000 | $15,000 |
| 2017 | $0 | $30,000 | $0 | $30,000 | $30,000 |
| 2016 | $0 | $30,000 | $0 | $30,000 | $30,000 |
| 2015 | $0 | $25,000 | $0 | $25,000 | $25,000 |
| 2014 | $0 | $20,000 | $0 | $20,000 | $20,000 |
| 2013 | $0 | $20,000 | $0 | $20,000 | $20,000 |
| 2012 | $0 | $18,750 | $0 | $18,750 | $18,750 |
| 2011 | $0 | $18,750 | $0 | $18,750 | $18,750 |
| 2010 | $0 | $18,750 | $0 | $18,750 | $18,750 |
| 2009 | $0 | $21,250 | $0 | $21,250 | $21,250 |
| 2008 | $0 | $22,500 | $0 | $22,500 | $22,500 |
| 2007 | $0 | $23,253 | $0 | $23,253 | $23,253 |
Deed and Sales History
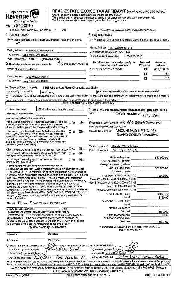
| 1 | 02/18/2022 | WD | Warranty Deed | MISHASEK, JOHN | JAMES, MICHAEL LEE | | | $32,000.00 | 52032 | 4540093 |
| 2 | 05/01/2014 | WD | Warranty Deed | MCKINNEY, JANET R | MISHASEK, JOHN | | | $26,000.00 | 15139 | 4358801 |
| 3 | 04/01/1992 | DECREE | Divorce Decree/Legal Separation | CUSTER, CHRIS L | MCKINNEY, JANET R | | | $0.00 | 64817 | 0 |
| 4 | 04/01/1990 | WD | Warranty Deed | NOBLE, FRANCIS J | CUSTER, CHRIS L | | | $36,500.00 | 2258 | 90007341 |
| 5 | 07/01/1989 | WD | Warranty Deed | SHERMAN, EDWIN R | NOBLE, FRANCIS J | | | $16,000.00 | 92738 | 89009277 |
| 6 | 08/01/1983 | OTHER | Other - Misc. Documents | Unknown | SHERMAN, EDWIN R | | | $500.00 | 32320 | 413647 |
Payout Agreement
| No payout information available.. |