Property
Account |
| Property ID: | 622570 | Abbreviated Legal Description: | MIDWAY TRADERS VILLAGE CONDO APT 38 |
| Geographic ID: | S7507-00-00038-0 | Agent Code: | |
| Type: | Real | | |
| Tax Area: | 100 - APPRAISER-OH Schl Dist, in OH | Land Use Code | 50 |
| Open Space: | N | DFL | N |
| Historic Property: | N | Remodel Property: | N |
| Multi-Family Redevelopment: | N | | |
| Township: | | Section: | |
| Range: | |
Location |
| Address: | 390 NE MIDWAY BLVD UNIT 38 OAK HARBOR, WA 98277 | Mapsco: | |
| Neighborhood: | 6BcOH-ne midway | Map ID: | 257 |
| Neighborhood CD: | 6BcOHnemid |
Owner |
| Name: | ATKINS-CHAPEL, VALERIE GAY | Owner ID: | 311088 |
| Mailing Address: | 273 NW CALISTA COURT OAK HARBOR, WA 98277 | % Ownership: | 100.0000000000% |
| | | Exemptions: | |
Taxes and Assessment Details
Values
| (+) Improvement Homesite Value: | + | N/A | |
| (+) Improvement Non-Homesite Value: | + | N/A | |
| (+) Land Homesite Value: | + | N/A | |
| (+) Land Non-Homesite Value: | + | N/A | Ag / Timber Use Value |
| (+) Curr Use (HS): | + | N/A | N/A |
| (+) Curr Use (NHS): | + | N/A | N/A |
| | | -------------------------- | |
| (=) Market Value: | = | N/A | |
| (–) Productivity Loss: | – | N/A | |
| | | -------------------------- | |
| (=) Subtotal: | = | N/A | |
| (+) Senior Appraised Value: | + | N/A | |
| (+) Non-Senior Appraised Value: | + | N/A | |
| | | -------------------------- | |
| (=) Total Appraised Value: | = | N/A | |
| (–) Senior Exemption Loss: | – | N/A | |
| (–) Exemption Loss: | – | N/A | |
| | | -------------------------- | |
| (=) Taxable Value: | = | N/A | |
Taxing Jurisdiction
| Owner: | ATKINS-CHAPEL, VALERIE GAY | | |
| % Ownership: | 100.0000000000% | | |
| Total Value: | N/A | | |
| Tax Area: | 100 - APPRAISER-OH Schl Dist, in OH |
| CF | Conservation Futures | N/A | N/A | N/A | N/A | | |
| WCD | Whidbey Conservation District | N/A | N/A | N/A | N/A | | |
| CEM1 | Cemetery #1 | N/A | N/A | N/A | N/A | | |
| COH | City of Oak Harbor | N/A | N/A | N/A | N/A | | |
| HOBOND | Hospital BOND | N/A | N/A | N/A | N/A | | |
| HOGEN | Hospital GEN | N/A | N/A | N/A | N/A | | |
| CE | County Current Expense | N/A | N/A | N/A | N/A | | |
| ISLANDEMS | Hospital GEN (EMS) | N/A | N/A | N/A | N/A | | |
| LIB | Library Sno-Isle GEN | N/A | N/A | N/A | N/A | | |
| NWHIDPRMT | P & R N Whidbey GEN | N/A | N/A | N/A | N/A | | |
| SCH201MO | School 201 Enrichment | N/A | N/A | N/A | N/A | | |
| ST | State School | N/A | N/A | N/A | N/A | | |
| ST2 | State School Part 2 | N/A | N/A | N/A | N/A | | |
| | Total Tax Rate: | N/A | | | | | |
| | | | | Taxes w/Current Exemptions: | N/A | | |
| | | | | Taxes w/o Exemptions: | N/A | | |
Improvement / Building
| Improvement #1: | COMMERCIAL | State Code: | F1 | 435.0 sqft | Value: | N/A |
| | Type | Description | Class CD | Sub Class CD | Year Built | Area |
| | UB8 | BASEMENT UNFINISHED 8" | 3 | 0 | 1986 | 97.5 |
| | COMA | Common Area Improvement | 3 | 0 | 1986 | 0.0 |
| | DWN | DOWNSTAIRS LIVING AREA | 3 | 0 | 1986 | 435.0 |
Sketch
Property Image
Land
| 1 | 68 | COMMERCIAL RETAIL | 0.0000 | 299.00 | 0.00 | 0.00 | 1.00 | N/A | N/A |
Roll Value History
| 2026 | N/A | N/A | N/A | N/A | N/A |
| 2025 | $9,685 | $5,000 | $0 | $14,685 | $14,685 |
| 2024 | $10,983 | $5,000 | $0 | $15,983 | $15,983 |
| 2023 | $11,849 | $5,000 | $0 | $16,849 | $16,849 |
| 2022 | $9,033 | $5,000 | $0 | $14,033 | $14,033 |
| 2021 | $9,033 | $5,000 | $0 | $14,033 | $14,033 |
| 2020 | $9,033 | $5,000 | $0 | $14,033 | $14,033 |
| 2019 | $15,055 | $6,880 | $0 | $21,935 | $21,935 |
| 2018 | $5,269 | $4,685 | $0 | $9,954 | $9,954 |
| 2017 | $5,269 | $4,685 | $0 | $9,954 | $9,954 |
| 2016 | $1,275 | $4,685 | $0 | $5,960 | $5,960 |
| 2015 | $1,275 | $4,685 | $0 | $5,960 | $5,960 |
| 2014 | $1,275 | $4,685 | $0 | $5,960 | $5,960 |
| 2013 | $3,644 | $4,685 | $0 | $8,329 | $8,329 |
| 2012 | $3,644 | $4,685 | $0 | $8,329 | $8,329 |
| 2011 | $3,644 | $4,685 | $0 | $8,329 | $8,329 |
| 2010 | $3,644 | $4,685 | $0 | $8,329 | $8,329 |
| 2009 | $3,644 | $5,382 | $0 | $9,026 | $9,026 |
| 2008 | $3,328 | $5,430 | $0 | $8,758 | $8,758 |
| 2007 | $3,664 | $5,965 | $0 | $9,629 | $9,629 |
Deed and Sales History
| 1 | 01/03/2024 | QCD | Quit Claim Deed | ATKINS, AVON | ATKINS-CHAPEL, VALERIE GAY | | | $0.00 | 58917 | 4568214 |
| 2 | 02/17/2021 | QCD | Quit Claim Deed | ATKINS, CARMELITA BATULA | ATKINS, AVON | | | $0.00 | 48122 | 4518338 |
| 3 | 02/25/2021 | QCD | Quit Claim Deed | ATKINS, CARMELITA BATULA | ATKINS, AVON | | | $0.00 | 47090 | 4511969 |
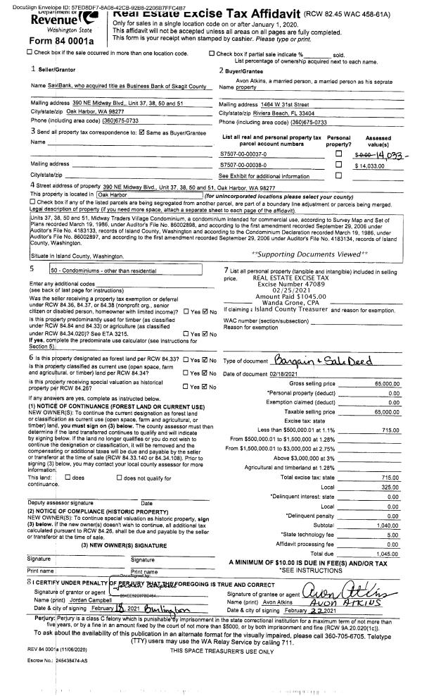
| 4 | 02/18/2021 | BARGSLD | Bargain And Sale Deed | BUSINESS BANK OF SKAGIT COUNTY | ATKINS, AVON | | | $65,000.00 | 47089 | 4511968 |
|   | |
| 5 | 04/19/2013 | DEEDINLIEU | Deed In Lieu Of Foreclosure | SEATREE PROPERTIES LLC | BUSINESS BANK OF SKAGIT COUNTY | | | $0.00 | 11085 | 4338350 |
| 6 | 03/29/2003 | WD | Warranty Deed | WILLIS, JOHN H | SEATREE PROPERTIES LLC, | | | $2,750.00 | 31362 | 4053426 |
| 7 | 02/01/1990 | TRUSTEED | Trustee's Deed | MIDWAY, TRADERS V | WILLIS, JOHN H | | | $0.00 | 1266 | 90004059 |
| 8 | 02/01/1990 | TRUSTEED | Trustee's Deed | WILLIS, JOHN H | WILLIS, JOHN H | | | $0.00 | 1569 | 90005062 |
| 9 | 01/01/1900 | OTHER | Other - Misc. Documents | Unknown | MIDWAY, TRADERS V | | | $0.00 | 0 | 0 |
Payout Agreement
| No payout information available.. |