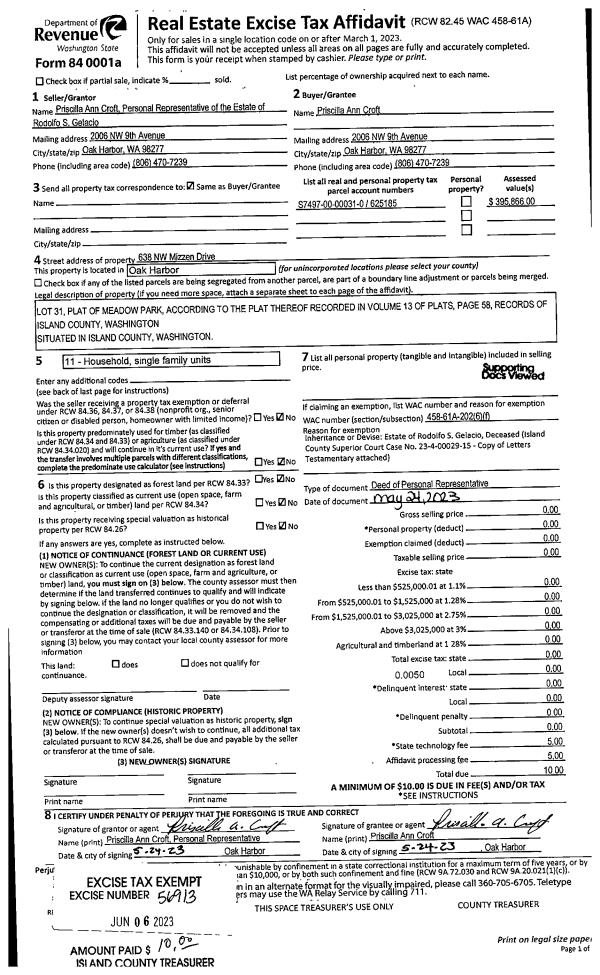
Property
Account |
| Property ID: | 625185 | Abbreviated Legal Description: | MEADOW PARK LOT 31 |
| Geographic ID: | S7497-00-00031-0 | Agent Code: | |
| Type: | Real | | |
| Tax Area: | 100 - APPRAISER-OH Schl Dist, in OH | Land Use Code | 11 |
| Open Space: | N | DFL | N |
| Historic Property: | N | Remodel Property: | N |
| Multi-Family Redevelopment: | N | | |
| Township: | | Section: | |
| Range: | |
Location |
| Address: | 638 NW MIZZEN DR OAK HARBOR, WA 98277 | Mapsco: | |
| Neighborhood: | Cycle 1 | Map ID: | 252 |
| Neighborhood CD: | 1 |
Owner |
| Name: | CROFT, PRISCILLA ANN | Owner ID: | 308870 |
| Mailing Address: | 2006 NW 9TH AVE OAK HARBOR, WA 98277 | % Ownership: | 100.0000000000% |
| | | Exemptions: | |
Taxes and Assessment Details
Values
| (+) Improvement Homesite Value: | + | $0 | |
| (+) Improvement Non-Homesite Value: | + | $235,259 | |
| (+) Land Homesite Value: | + | $0 | |
| (+) Land Non-Homesite Value: | + | $200,000 | |
| (+) Curr Use (HS): | + | $0 | $0 |
| (+) Curr Use (NHS): | + | $0 | $0 |
| | | -------------------------- | |
| (=) Market Value: | = | $435,259 | |
| (–) Productivity Loss: | – | $0 | |
| | | -------------------------- | |
| (=) Subtotal: | = | $435,259 | |
| (+) Senior Appraised Value: | + | $0 | |
| (+) Non-Senior Appraised Value: | + | $435,259 | |
| | | -------------------------- | |
| (=) Total Appraised Value: | = | $435,259 | |
| (–) Senior Exemption Loss: | – | $0 | |
| (–) Exemption Loss: | – | $0 | |
| | | -------------------------- | |
| (=) Taxable Value: | = | $435,259 | |
Taxing Jurisdiction
| Owner: | CROFT, PRISCILLA ANN | | |
| % Ownership: | 100.0000000000% | | |
| Total Value: | $435,259 | | |
| Tax Area: | 100 - APPRAISER-OH Schl Dist, in OH |
| CF | Conservation Futures | 0.0313996660 | $435,259 | $435,259 | $13.67 | | |
| CEM1 | Cemetery #1 | 0.0040018856 | $435,259 | $435,259 | $1.74 | | |
| COH | City of Oak Harbor | 2.3090730572 | $435,259 | $435,259 | $1,005.04 | | |
| OAKBOND | City of Oak Harbor BOND | 0.1902260131 | $435,259 | $435,259 | $82.80 | | |
| HOBOND | Hospital BOND | 0.1893405597 | $435,259 | $435,259 | $82.41 | | |
| HOGEN | Hospital GEN | 0.3848777722 | $435,259 | $435,259 | $167.52 | | |
| CE | County Current Expense | 0.3674210519 | $435,259 | $435,259 | $159.92 | | |
| ISLANDEMS | Hospital GEN (EMS) | 0.4952018576 | $435,259 | $435,259 | $215.54 | | |
| LIB | Library Sno-Isle GEN | 0.3039084203 | $435,259 | $435,259 | $132.28 | | |
| NWHIDPRMT | P & R N Whidbey GEN | 0.1990272349 | $435,259 | $435,259 | $86.63 | | |
| SCH201MO | School 201 Enrichment | 2.3851112745 | $435,259 | $435,259 | $1,038.14 | | |
| ST | State School | 1.4761226122 | $435,259 | $435,259 | $642.50 | | |
| ST2 | State School Part 2 | 0.7953803475 | $435,259 | $435,259 | $346.20 | | |
| | Total Tax Rate: | 9.1310917527 | | | | | |
| | | | | Taxes w/Current Exemptions: | $3,974.39 | | |
| | | | | Taxes w/o Exemptions: | $3,974.39 | | |
Improvement / Building
| Improvement #1: | RESIDENTIAL | State Code: | Y | 1304.3 sqft | Value: | $235,259 |
| Bathrooms: | 2 | Bedrooms: | 3 | | Ceiling: | DRYWALL PAINTED | Exterior Wall/Cover: | WOOD SIDING | | Floor Covering: | CARPET/VINYL 80-20 | Floor Structure: | WOOD W/SUBFLOOR | | Foundation: | CONCRETE | Heating: | FHA GAS | | Interior Finish: | DRYWALL PAINT | Plumbing Fixture Cnt: | 9 | | Roof Slope: | 5" IN 12" | Roof Structure/Cover: | CJ ASPHALT |
|
| | Type | Description | Class CD | Sub Class CD | Year Built | Area |
| | BAS | BASE/MAIN FLOOR | 3 | 0 | 1988 | 1304.3 |
| | AGR | ATTACHED GARAGE | 3 | 0 | 1988 | 527.0 |
| | OWP | OPEN WOOD PORCH W/STEPS | 3 | 0 | 1988 | 274.4 |
Sketch
Property Image
Land
| 1 | 14 | SQ (08001-12000) | 0.0000 | 0.00 | 0.00 | 0.00 | 1.00 | $200,000 | $0 |
Roll Value History
| 2026 | N/A | N/A | N/A | N/A | N/A |
| 2025 | $235,259 | $200,000 | $0 | $435,259 | $435,259 |
| 2024 | $238,385 | $190,000 | $0 | $428,385 | $428,385 |
| 2023 | $235,259 | $190,000 | $0 | $425,259 | $425,259 |
| 2022 | $215,866 | $180,000 | $0 | $395,866 | $395,866 |
| 2021 | $190,173 | $120,000 | $0 | $310,173 | $310,173 |
| 2020 | $185,270 | $100,000 | $0 | $285,270 | $285,270 |
| 2019 | $132,824 | $150,000 | $0 | $282,824 | $282,824 |
| 2018 | $133,243 | $130,000 | $0 | $263,243 | $263,243 |
| 2017 | $123,192 | $110,000 | $0 | $233,192 | $233,192 |
| 2016 | $124,904 | $90,000 | $0 | $214,904 | $214,904 |
| 2015 | $126,615 | $70,000 | $0 | $196,615 | $196,615 |
| 2014 | $128,326 | $55,000 | $0 | $183,326 | $183,326 |
| 2013 | $130,037 | $55,000 | $0 | $185,037 | $185,037 |
| 2012 | $131,747 | $60,000 | $0 | $191,747 | $191,747 |
| 2011 | $128,617 | $50,000 | $0 | $178,617 | $178,617 |
| 2010 | $134,305 | $50,000 | $0 | $184,305 | $184,305 |
| 2009 | $140,093 | $75,000 | $0 | $215,093 | $215,093 |
| 2008 | $141,795 | $90,000 | $0 | $231,795 | $231,795 |
| 2007 | $143,497 | $90,000 | $0 | $233,497 | $233,497 |
Deed and Sales History
| 1 | 05/24/2023 | PRD | Personal Representatives Deed | GELACIO, RODOLFO S | CROFT, PRISCILLA ANN | | | $0.00 | 56913 | 4560673 |
| 2 | 05/01/1988 | WD | Warranty Deed | HARBOR, CONSTRUCTION I | GELACIO, RODOLFO S | | | $83,881.00 | 81580 | 88005975 |
| 3 | 03/01/1988 | WD | Warranty Deed | MASSEY, WILLIAM L | HARBOR, CONSTRUCTION I | | | $19,600.00 | 80858 | 88003371 |
| 4 | 01/01/1900 | OTHER | Other - Misc. Documents | Unknown | MASSEY, WILLIAM L | | | $0.00 | 70736 | 87003996 |
Payout Agreement
| No payout information available.. |