Property
Account |
| Property ID: | 625443 | Abbreviated Legal Description: | CEDAR GLEN #2 LOT 55 |
| Geographic ID: | S6352-02-00055-0 | Agent Code: | |
| Type: | Real | | |
| Tax Area: | 100 - APPRAISER-OH Schl Dist, in OH | Land Use Code | 11 |
| Open Space: | N | DFL | N |
| Historic Property: | N | Remodel Property: | N |
| Multi-Family Redevelopment: | N | | |
| Township: | | Section: | |
| Range: | |
Location |
| Address: | 94 SW ROEDER DR OAK HARBOR, WA 98277 | Mapsco: | |
| Neighborhood: | Cycle 1 | Map ID: | 252 |
| Neighborhood CD: | 1 |
Owner |
| Name: | EATON, KEVIN | Owner ID: | 313123 |
| Mailing Address: | MORGAN EATON 94 SW ROEDER DR OAK HARBOR, WA 98277 | % Ownership: | 100.0000000000% |
| | | Exemptions: | |
Taxes and Assessment Details
Values
| (+) Improvement Homesite Value: | + | $0 | |
| (+) Improvement Non-Homesite Value: | + | $242,813 | |
| (+) Land Homesite Value: | + | $0 | |
| (+) Land Non-Homesite Value: | + | $210,000 | |
| (+) Curr Use (HS): | + | $0 | $0 |
| (+) Curr Use (NHS): | + | $0 | $0 |
| | | -------------------------- | |
| (=) Market Value: | = | $452,813 | |
| (–) Productivity Loss: | – | $0 | |
| | | -------------------------- | |
| (=) Subtotal: | = | $452,813 | |
| (+) Senior Appraised Value: | + | $0 | |
| (+) Non-Senior Appraised Value: | + | $452,813 | |
| | | -------------------------- | |
| (=) Total Appraised Value: | = | $452,813 | |
| (–) Senior Exemption Loss: | – | $0 | |
| (–) Exemption Loss: | – | $0 | |
| | | -------------------------- | |
| (=) Taxable Value: | = | $452,813 | |
Taxing Jurisdiction
| Owner: | EATON, KEVIN | | |
| % Ownership: | 100.0000000000% | | |
| Total Value: | $452,813 | | |
| Tax Area: | 100 - APPRAISER-OH Schl Dist, in OH |
| CF | Conservation Futures | 0.0313996660 | $452,813 | $452,813 | $14.22 | | |
| CEM1 | Cemetery #1 | 0.0040018856 | $452,813 | $452,813 | $1.81 | | |
| COH | City of Oak Harbor | 2.3090730572 | $452,813 | $452,813 | $1,045.58 | | |
| OAKBOND | City of Oak Harbor BOND | 0.1902260131 | $452,813 | $452,813 | $86.14 | | |
| HOBOND | Hospital BOND | 0.1893405597 | $452,813 | $452,813 | $85.74 | | |
| HOGEN | Hospital GEN | 0.3848777722 | $452,813 | $452,813 | $174.28 | | |
| CE | County Current Expense | 0.3674210519 | $452,813 | $452,813 | $166.37 | | |
| ISLANDEMS | Hospital GEN (EMS) | 0.4952018576 | $452,813 | $452,813 | $224.23 | | |
| LIB | Library Sno-Isle GEN | 0.3039084203 | $452,813 | $452,813 | $137.61 | | |
| NWHIDPRMT | P & R N Whidbey GEN | 0.1990272349 | $452,813 | $452,813 | $90.12 | | |
| SCH201MO | School 201 Enrichment | 2.3851112745 | $452,813 | $452,813 | $1,080.01 | | |
| ST | State School | 1.4761226122 | $452,813 | $452,813 | $668.41 | | |
| ST2 | State School Part 2 | 0.7953803475 | $452,813 | $452,813 | $360.16 | | |
| | Total Tax Rate: | 9.1310917527 | | | | | |
| | | | | Taxes w/Current Exemptions: | $4,134.68 | | |
| | | | | Taxes w/o Exemptions: | $4,134.68 | | |
Improvement / Building
| Improvement #1: | RESIDENTIAL | State Code: | Y | 1802.2 sqft | Value: | $242,813 |
| Bathrooms: | 2 | Bedrooms: | 3 | | Ceiling: | DRYWALL PAINTED | Exterior Wall/Cover: | PLY/HARDBOARD T-111 | | Floor Covering: | CARPET/VINYL 80-20 | Floor Structure: | WOOD W/SUBFLOOR | | Foundation: | CONCRETE | Heating: | FHA GAS | | Interior Finish: | DRYWALL PAINT | Plumbing Fixture Cnt: | 9 | | Roof Slope: | 4" IN 12" | Roof Structure/Cover: | CJ WOOD SHAKES |
|
| | Type | Description | Class CD | Sub Class CD | Year Built | Area |
| | BAS | BASE/MAIN FLOOR | 3 | 0 | 1990 | 1802.2 |
| | BIG | BUILT IN GARAGE | 3 | 0 | 1990 | 520.0 |
| | OWP | OPEN WOOD PORCH W/STEPS | 3 | 0 | 1990 | 149.0 |
Sketch
Property Image
Land
| 1 | 15 | SQ (12001-21780) | 0.0000 | 0.00 | 0.00 | 0.00 | 1.00 | $210,000 | $0 |
Roll Value History
| 2026 | N/A | N/A | N/A | N/A | N/A |
| 2025 | $242,813 | $210,000 | $0 | $452,813 | $452,813 |
| 2024 | $246,371 | $190,000 | $0 | $436,371 | $436,371 |
| 2023 | $249,929 | $190,000 | $0 | $439,929 | $439,929 |
| 2022 | $229,532 | $180,000 | $0 | $409,532 | $409,532 |
| 2021 | $202,397 | $120,000 | $0 | $322,397 | $322,397 |
| 2020 | $197,786 | $100,000 | $0 | $297,786 | $297,786 |
| 2019 | $147,814 | $150,000 | $0 | $297,814 | $297,814 |
| 2018 | $148,313 | $130,000 | $0 | $278,313 | $278,313 |
| 2017 | $142,378 | $110,000 | $0 | $252,378 | $252,378 |
| 2016 | $144,354 | $90,000 | $0 | $234,354 | $234,354 |
| 2015 | $146,332 | $70,000 | $0 | $216,332 | $216,332 |
| 2014 | $148,312 | $55,000 | $0 | $203,312 | $203,312 |
| 2013 | $150,289 | $55,000 | $0 | $205,289 | $205,289 |
| 2012 | $152,266 | $60,000 | $0 | $212,266 | $212,266 |
| 2011 | $154,304 | $50,000 | $0 | $204,304 | $204,304 |
| 2010 | $161,922 | $50,000 | $0 | $211,922 | $211,922 |
| 2009 | $168,818 | $75,000 | $0 | $243,818 | $243,818 |
| 2008 | $170,810 | $100,000 | $0 | $270,810 | $270,810 |
| 2007 | $172,831 | $100,000 | $0 | $272,831 | $272,831 |
Deed and Sales History
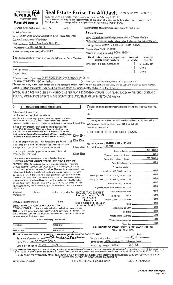
| 1 | 07/08/2024 | WD | Warranty Deed | FANNIE MAE AKA FEDERAL NATIONAL MORTGAGE | EATON, KEVIN | | | $0.00 | 60607 | 4574459 |
| 2 | 02/15/2023 | TRUSTEED | Trustee's Deed | QUALITY LOAN SERVICE CORPORATION | FANNIE MAE | | | $0.00 | 55869 | 4556782 |
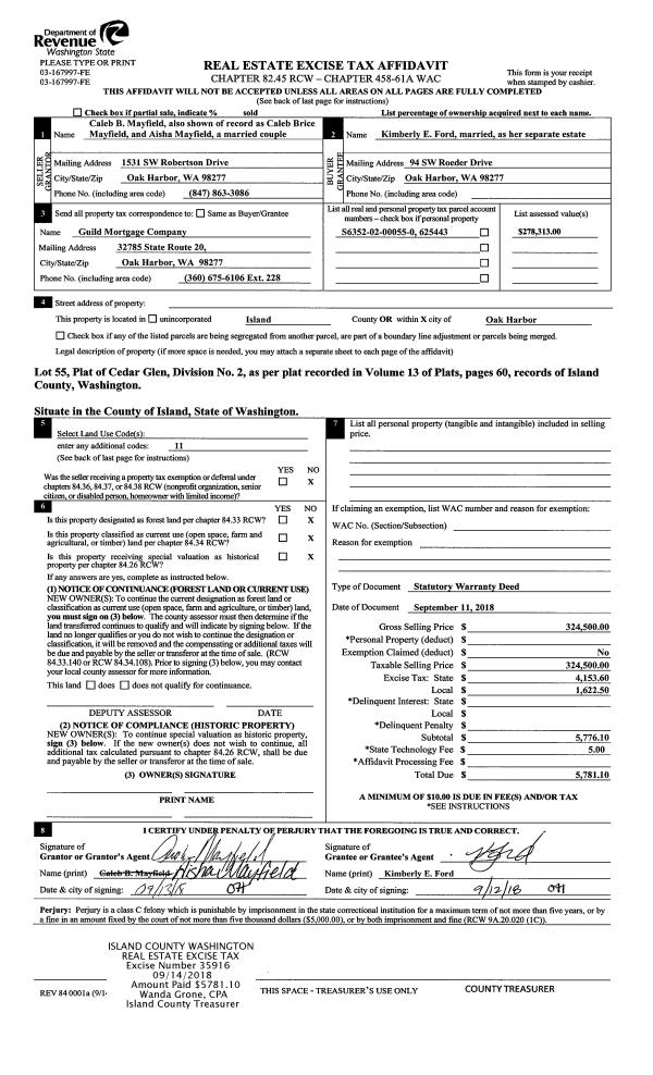
| 3 | 09/11/2018 | QCD | Quit Claim Deed | FORD, KIMBERLY E | FORD, KIMBERLY E | | | $0.00 | 35917 | 4451794 |
| 4 | 09/11/2018 | WD | Warranty Deed | MAYFIELD, CALEB B | FORD, KIMBERLY E | | | $324,500.00 | 35916 | 4451793 |
| 5 | 08/28/2009 | ESTSEPPROP | Establish Separate Property | MAYFIELD, CALEB B | MAYFIELD, CALEB B | | | $0.00 | 92048 | 4259334 |
| 6 | 08/28/2009 | WD | Warranty Deed | SCHLOSSER, MICHAEL A | MAYFIELD, CALEB B | | | $243,000.00 | 92047 | 4259333 |
| 7 | 04/01/1991 | WD | Warranty Deed | MERIT-YOUNG, INC | SCHLOSSER, MICHAEL A | | | $101,850.00 | 11273 | 91005502 |
| 8 | 10/01/1990 | WD | Warranty Deed | MERIT, HOMES I | MERIT-YOUNG, INC | | | $28,200.00 | 5788 | 90019461 |
| 9 | 03/01/1990 | WD | Warranty Deed | BILGA, CORPORATION & | MERIT, HOMES I | | | $21,100.00 | 1716 | 90005544 |
| 10 | 01/01/1900 | OTHER | Other - Misc. Documents | Unknown | BILGA, CORPORATION & | | | $0.00 | 33179 | 416826 |
Payout Agreement
| No payout information available.. |