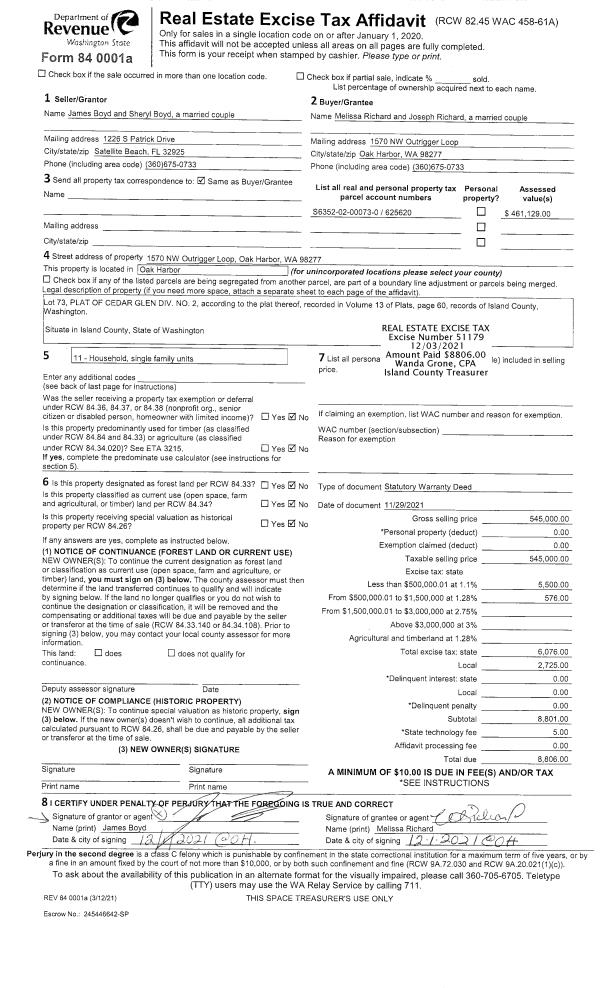
Property
Account |
| Property ID: | 625620 | Abbreviated Legal Description: | CEDAR GLEN #2 LOT 73 |
| Geographic ID: | S6352-02-00073-0 | Agent Code: | |
| Type: | Real | | |
| Tax Area: | 100 - APPRAISER-OH Schl Dist, in OH | Land Use Code | 11 |
| Open Space: | N | DFL | N |
| Historic Property: | N | Remodel Property: | N |
| Multi-Family Redevelopment: | N | | |
| Township: | | Section: | |
| Range: | |
Location |
| Address: | 1570 NW OUTRIGGER LOOP OAK HARBOR, WA 98277 | Mapsco: | |
| Neighborhood: | Cycle 1 | Map ID: | 252 |
| Neighborhood CD: | 1 |
Owner |
| Name: | RICHARD, MELISSA | Owner ID: | 302225 |
| Mailing Address: | JOSEPH RICHARD 1570 NW OUTRIGGER LP OAK HARBOR, WA 98277 | % Ownership: | 100.0000000000% |
| | | Exemptions: | |
Taxes and Assessment Details
Values
| (+) Improvement Homesite Value: | + | $0 | |
| (+) Improvement Non-Homesite Value: | + | $432,280 | |
| (+) Land Homesite Value: | + | $0 | |
| (+) Land Non-Homesite Value: | + | $210,000 | |
| (+) Curr Use (HS): | + | $0 | $0 |
| (+) Curr Use (NHS): | + | $0 | $0 |
| | | -------------------------- | |
| (=) Market Value: | = | $642,280 | |
| (–) Productivity Loss: | – | $0 | |
| | | -------------------------- | |
| (=) Subtotal: | = | $642,280 | |
| (+) Senior Appraised Value: | + | $0 | |
| (+) Non-Senior Appraised Value: | + | $642,280 | |
| | | -------------------------- | |
| (=) Total Appraised Value: | = | $642,280 | |
| (–) Senior Exemption Loss: | – | $0 | |
| (–) Exemption Loss: | – | $0 | |
| | | -------------------------- | |
| (=) Taxable Value: | = | $642,280 | |
Taxing Jurisdiction
| Owner: | RICHARD, MELISSA | | |
| % Ownership: | 100.0000000000% | | |
| Total Value: | $642,280 | | |
| Tax Area: | 100 - APPRAISER-OH Schl Dist, in OH |
| CF | Conservation Futures | 0.0313996660 | $642,280 | $642,280 | $20.17 | | |
| CEM1 | Cemetery #1 | 0.0040018856 | $642,280 | $642,280 | $2.57 | | |
| COH | City of Oak Harbor | 2.3090730572 | $642,280 | $642,280 | $1,483.07 | | |
| OAKBOND | City of Oak Harbor BOND | 0.1902260131 | $642,280 | $642,280 | $122.18 | | |
| HOBOND | Hospital BOND | 0.1893405597 | $642,280 | $642,280 | $121.61 | | |
| HOGEN | Hospital GEN | 0.3848777722 | $642,280 | $642,280 | $247.20 | | |
| CE | County Current Expense | 0.3674210519 | $642,280 | $642,280 | $235.99 | | |
| ISLANDEMS | Hospital GEN (EMS) | 0.4952018576 | $642,280 | $642,280 | $318.06 | | |
| LIB | Library Sno-Isle GEN | 0.3039084203 | $642,280 | $642,280 | $195.19 | | |
| NWHIDPRMT | P & R N Whidbey GEN | 0.1990272349 | $642,280 | $642,280 | $127.83 | | |
| SCH201MO | School 201 Enrichment | 2.3851112745 | $642,280 | $642,280 | $1,531.91 | | |
| ST | State School | 1.4761226122 | $642,280 | $642,280 | $948.08 | | |
| ST2 | State School Part 2 | 0.7953803475 | $642,280 | $642,280 | $510.86 | | |
| | Total Tax Rate: | 9.1310917527 | | | | | |
| | | | | Taxes w/Current Exemptions: | $5,864.72 | | |
| | | | | Taxes w/o Exemptions: | $5,864.72 | | |
Improvement / Building
| Improvement #1: | RESIDENTIAL | State Code: | Y | 2601.0 sqft | Value: | $432,280 |
| Bathrooms: | 3.5 | Bedrooms: | 5 | | Ceiling: | DRYWALL PAINTED | Exterior Wall/Cover: | WOOD SIDING | | Floor Covering: | CARPET/VINYL 80-20 | Floor Structure: | WOOD W/SUBFLOOR | | Foundation: | CONCRETE | Heating: | FHA GAS | | Interior Finish: | DRYWALL PAINT | Plumbing Fixture Cnt: | 16 | | Roof Slope: | 5" IN 12" | Roof Structure/Cover: | CJ ASPHALT |
|
| | Type | Description | Class CD | Sub Class CD | Year Built | Area |
| | BAS | BASE/MAIN FLOOR | 3 | 0 | 1988 | 1757.0 |
| | OP3 | OPEN PORCH W/ROOF | 3 | 0 | 1988 | 56.0 |
| | AGR | ATTACHED GARAGE | 3 | 0 | 1988 | 484.0 |
| | UPS | UPPER STORY | 3 | 0 | 1988 | 844.0 |
| | OWP | OPEN WOOD PORCH W/STEPS | 3 | 0 | 1988 | 302.0 |
Sketch
Property Image
Land
| 1 | 15 | SQ (12001-21780) | 0.0000 | 0.00 | 0.00 | 0.00 | 1.00 | $210,000 | $0 |
Roll Value History
| 2026 | N/A | N/A | N/A | N/A | N/A |
| 2025 | $432,280 | $210,000 | $0 | $642,280 | $642,280 |
| 2024 | $437,351 | $190,000 | $0 | $627,351 | $627,351 |
| 2023 | $442,422 | $190,000 | $0 | $632,422 | $632,422 |
| 2022 | $405,214 | $180,000 | $0 | $585,214 | $585,214 |
| 2021 | $341,129 | $120,000 | $0 | $461,129 | $461,129 |
| 2020 | $332,218 | $100,000 | $0 | $432,218 | $432,218 |
| 2019 | $262,052 | $150,000 | $0 | $412,052 | $412,052 |
| 2018 | $245,169 | $130,000 | $0 | $375,169 | $375,169 |
| 2017 | $205,356 | $110,000 | $0 | $315,356 | $315,356 |
| 2016 | $208,289 | $90,000 | $0 | $298,289 | $298,289 |
| 2015 | $211,222 | $70,000 | $0 | $281,222 | $281,222 |
| 2014 | $214,157 | $55,000 | $0 | $269,157 | $269,157 |
| 2013 | $217,090 | $55,000 | $0 | $272,090 | $272,090 |
| 2012 | $220,025 | $60,000 | $0 | $280,025 | $280,025 |
| 2011 | $228,198 | $50,000 | $0 | $278,198 | $278,198 |
| 2010 | $238,692 | $50,000 | $0 | $288,692 | $288,692 |
| 2009 | $248,750 | $75,000 | $0 | $323,750 | $323,750 |
| 2008 | $251,709 | $100,000 | $0 | $351,709 | $351,709 |
| 2007 | $254,669 | $100,000 | $0 | $354,669 | $354,669 |
Deed and Sales History
| 1 | 11/29/2021 | WD | Warranty Deed | BOYD, JAMES | RICHARD, MELISSA | | | $545,000.00 | 51179 | 4535108 |
| 2 | 04/24/2019 | WD | Warranty Deed | SENDAYDIEGO, ODELON D | BOYD, JAMES | | | $415,000.00 | 38180 | 4461918 |
| 3 | 11/01/1991 | WD | Warranty Deed | BARTKOWSKI, MICHAEL S | SENDAYDIEGO, ODELON D | | | $141,000.00 | 14055 | 91017359 |
| 4 | 07/01/1988 | WD | Warranty Deed | BILGA, CORPORATION & | BARTKOWSKI, MICHAEL S | | | $99,900.00 | 82410 | 88009120 |
| 5 | 01/01/1900 | OTHER | Other - Misc. Documents | Unknown | BILGA, CORPORATION & | | | $0.00 | 33179 | 416826 |
Payout Agreement
| No payout information available.. |