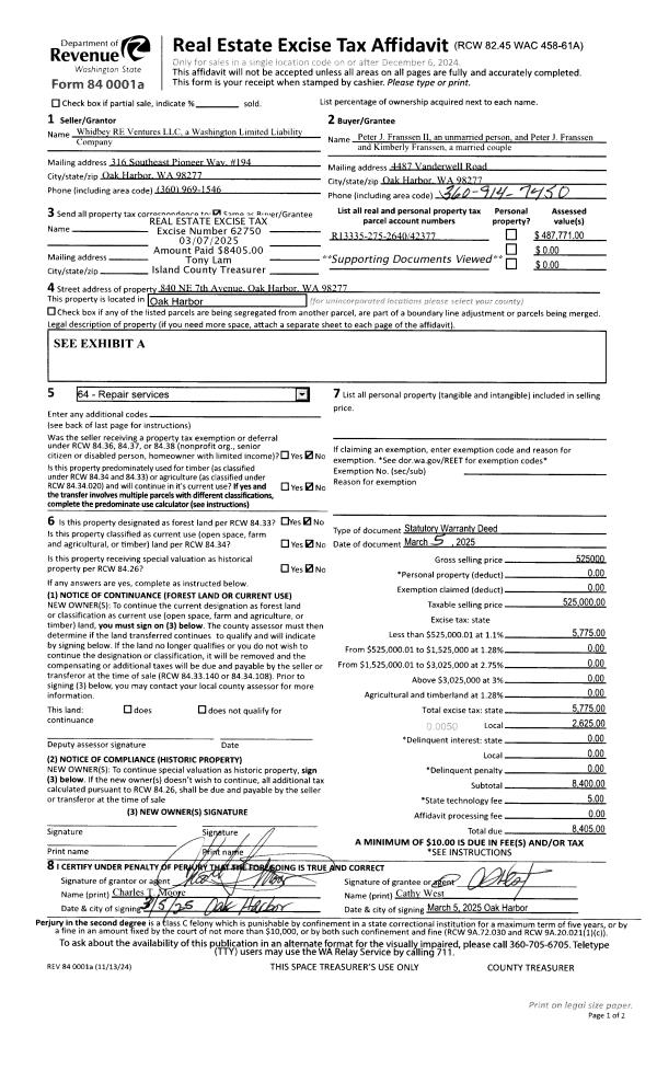
Property
Account |
| Property ID: | 625906 | Abbreviated Legal Description: | PENN MEADOWS LOT 1 |
| Geographic ID: | S7737-00-00001-0 | Agent Code: | |
| Type: | Real | | |
| Tax Area: | 300 - APPRAISER-Cpvl Schl Dist, in Cpvl | Land Use Code | 11 |
| Open Space: | N | DFL | N |
| Historic Property: | N | Remodel Property: | N |
| Multi-Family Redevelopment: | N | | |
| Township: | | Section: | |
| Range: | |
Location |
| Address: | 502 NE 6TH ST COUPEVILLE, WA 98239 | Mapsco: | |
| Neighborhood: | Cycle 2 | Map ID: | 179 |
| Neighborhood CD: | 2 |
Owner |
| Name: | WECHNER, DAVID L | Owner ID: | 291781 |
| Mailing Address: | MELINDA E GOUVEIA, TTEE 502 NE 6TH ST COUPEVILLE, WA 98239 | % Ownership: | 100.0000000000% |
| | | Exemptions: | |
Taxes and Assessment Details
Values
| (+) Improvement Homesite Value: | + | $0 | |
| (+) Improvement Non-Homesite Value: | + | $250,782 | |
| (+) Land Homesite Value: | + | $0 | |
| (+) Land Non-Homesite Value: | + | $260,000 | |
| (+) Curr Use (HS): | + | $0 | $0 |
| (+) Curr Use (NHS): | + | $0 | $0 |
| | | -------------------------- | |
| (=) Market Value: | = | $510,782 | |
| (–) Productivity Loss: | – | $0 | |
| | | -------------------------- | |
| (=) Subtotal: | = | $510,782 | |
| (+) Senior Appraised Value: | + | $0 | |
| (+) Non-Senior Appraised Value: | + | $510,782 | |
| | | -------------------------- | |
| (=) Total Appraised Value: | = | $510,782 | |
| (–) Senior Exemption Loss: | – | $0 | |
| (–) Exemption Loss: | – | $0 | |
| | | -------------------------- | |
| (=) Taxable Value: | = | $510,782 | |
Taxing Jurisdiction
| Owner: | WECHNER, DAVID L | | |
| % Ownership: | 100.0000000000% | | |
| Total Value: | $510,782 | | |
| Tax Area: | 300 - APPRAISER-Cpvl Schl Dist, in Cpvl |
| CF | Conservation Futures | 0.0313996660 | $510,782 | $510,782 | $16.04 | | |
| CEM2 | Cemetery #2 | 0.0092609791 | $510,782 | $510,782 | $4.73 | | |
| COUP | City: Town of Coupeville | 0.8188663519 | $510,782 | $510,782 | $418.26 | | |
| FIRE5 | Fire & Rescue Dist #5 C Whidbey GEN | 1.1892169230 | $510,782 | $510,782 | $607.43 | | |
| FIRE5BOND | Fire & Rescue Dist #5 C Whidbey BOND | 0.1394359503 | $510,782 | $510,782 | $71.22 | | |
| HOBOND | Hospital BOND | 0.1893405597 | $510,782 | $510,782 | $96.71 | | |
| HOGEN | Hospital GEN | 0.3848777722 | $510,782 | $510,782 | $196.59 | | |
| CE | County Current Expense | 0.3674210519 | $510,782 | $510,782 | $187.67 | | |
| ISLANDEMS | Hospital GEN (EMS) | 0.4952018576 | $510,782 | $510,782 | $252.94 | | |
| LIB | Library Sno-Isle GEN | 0.3039084203 | $510,782 | $510,782 | $155.23 | | |
| LIBCAP | Library Sno-Isle BOND (Cap Fac Imp Area) | 0.0528562629 | $510,782 | $510,782 | $27.00 | | |
| POCOUP | Port of Coupeville GEN | 0.1065226063 | $510,782 | $510,782 | $54.41 | | |
| POCOUPIDD | Port of Coupeville IDD | 0.3353038577 | $510,782 | $510,782 | $171.27 | | |
| COUPSDTECH | School 204 CP (TECH) | 0.1215123397 | $510,782 | $510,782 | $62.07 | | |
| SCH204MO | School 204 Enrichment | 0.6416662518 | $510,782 | $510,782 | $327.75 | | |
| ST | State School | 1.4761226122 | $510,782 | $510,782 | $753.98 | | |
| ST2 | State School Part 2 | 0.7953803475 | $510,782 | $510,782 | $406.27 | | |
| | Total Tax Rate: | 7.4582938101 | | | | | |
| | | | | Taxes w/Current Exemptions: | $3,809.57 | | |
| | | | | Taxes w/o Exemptions: | $3,809.57 | | |
Improvement / Building
| Improvement #1: | RESIDENTIAL | State Code: | Y | 1500.5 sqft | Value: | $250,782 |
| Bathrooms: | 1.5 | Bedrooms: | 3 | | Ceiling: | DRYWALL PAINTED | Exterior Wall/Cover: | PLY/HARDBOARD T-111 | | Floor Covering: | CARPET/VINYL 80-20 | Floor Structure: | WOOD W/SUBFLOOR | | Foundation: | CONCRETE | Heating: | FHA GAS | | Interior Finish: | DRYWALL PAINT | Plumbing Fixture Cnt: | 8 | | Roof Slope: | 5" IN 12" | Roof Structure/Cover: | CJ ASPHALT |
|
| | Type | Description | Class CD | Sub Class CD | Year Built | Area |
| | BAS | BASE/MAIN FLOOR | 3 | 0 | 1990 | 1500.5 |
| | AGR | ATTACHED GARAGE | 3 | 0 | 1990 | 480.0 |
| | OWP | OPEN WOOD PORCH W/STEPS | 3 | 0 | 1990 | 304.2 |
| | OWR | OPEN WOOD PORCH W/STEPS/ROOF | 3 | 0 | 1990 | 54.0 |
Sketch
Property Image
Land
| 1 | 14 | SQ (08001-12000) | 0.2200 | 9583.20 | 0.00 | 0.00 | 1.00 | $260,000 | $0 |
Roll Value History
| 2026 | N/A | N/A | N/A | N/A | N/A |
| 2025 | $250,782 | $260,000 | $0 | $510,782 | $510,782 |
| 2024 | $250,561 | $240,000 | $0 | $490,561 | $490,561 |
| 2023 | $253,847 | $240,000 | $0 | $493,847 | $493,847 |
| 2022 | $232,839 | $200,000 | $0 | $432,839 | $432,839 |
| 2021 | $205,050 | $150,000 | $0 | $355,050 | $355,050 |
| 2020 | $200,054 | $130,000 | $0 | $330,054 | $330,054 |
| 2019 | $146,191 | $170,000 | $0 | $316,191 | $316,191 |
| 2018 | $144,629 | $150,000 | $0 | $294,629 | $294,629 |
| 2017 | $145,576 | $125,000 | $0 | $270,576 | $270,576 |
| 2016 | $147,465 | $115,000 | $0 | $262,465 | $262,465 |
| 2015 | $149,357 | $90,000 | $0 | $239,357 | $239,357 |
| 2014 | $151,247 | $85,000 | $0 | $236,247 | $236,247 |
| 2013 | $153,137 | $85,000 | $0 | $238,137 | $238,137 |
| 2012 | $154,502 | $90,950 | $0 | $245,452 | $81,869 |
| 2011 | $156,392 | $107,000 | $0 | $263,392 | $81,869 |
| 2010 | $163,510 | $107,000 | $0 | $270,510 | $81,869 |
| 2009 | $170,463 | $125,000 | $0 | $295,463 | $81,869 |
| 2008 | $172,655 | $145,000 | $0 | $317,655 | $81,869 |
| 2007 | $174,917 | $145,000 | $0 | $319,917 | $81,869 |
Deed and Sales History
| 1 | 09/03/2019 | QCD | Quit Claim Deed | WECHNER, DAVID L | WECHNER, DAVID L | | | $0.00 | 40265 | 4471430 |
| 2 | 07/24/2013 | WD | Warranty Deed | CHANDLER, BETH L | WECHNER, DAVID L | | | $241,000.00 | 12140 | 4344827 |
| 3 | 08/26/2004 | WD | Warranty Deed | GRAFFWEG, HERBERT A | CHANDLER, BETH L | | | $215,700.00 | 44202 | 4112313 |
| 4 | 07/29/2002 | WD | Warranty Deed | SIMONSON, TIMOTHY P | GRAFFWEG, HERBERT A | | | $182,000.00 | 23007 | 4027170 |
| 5 | 06/01/1994 | WD | Warranty Deed | KEENOY, ANN M | SIMONSON, TIMOTHY P | | | $115,000.00 | 42436 | 94013611 |
| 6 | 11/01/1990 | WD | Warranty Deed | EDENHOLM, ROY | KEENOY, ANN M | | | $65,000.00 | 10174 | 91000864 |
| 7 | 06/01/1990 | WD | Warranty Deed | LANDMARK, INVESTMENTS | EDENHOLM, ROY | | | $13,000.00 | 3827 | 90012517 |
| 8 | 01/01/1900 | OTHER | Other - Misc. Documents | Unknown | LANDMARK, INVESTMENTS | | | $0.00 | 60820 | 86003823 |
Payout Agreement
| No payout information available.. |