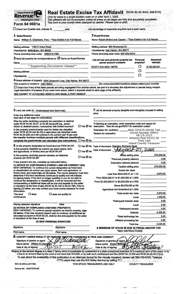
Property
Account |
| Property ID: | 627478 | Abbreviated Legal Description: | 1967 ARTCRAFT 10X56 VIN# 60104683C L# VO1455 FROM K-609167 |
| Geographic ID: | M913000000090 | Agent Code: | |
| Type: | Mobile Home | | |
| Tax Area: | 300 - APPRAISER-Cpvl Schl Dist, in Cpvl | Land Use Code | 11 |
| Open Space: | N | DFL | N |
| Historic Property: | N | Remodel Property: | N |
| Multi-Family Redevelopment: | N | | |
| Township: | | Section: | |
| Range: | |
Location |
| Address: | 204 SW TERRY RD # 9 COUPEVILLE, WA 98239 | Mapsco: | |
| Neighborhood: | Cycle 2 | Map ID: | |
| Neighborhood CD: | 2 |
Owner |
| Name: | MARTINZEZ DE JESUS, ADELAIDO | Owner ID: | 297395 |
| Mailing Address: | 204 SW TERRY RD #9 COUPEVILLE, WA 98239 | % Ownership: | 100.0000000000% |
| | | Exemptions: | |
Taxes and Assessment Details
Values
| (+) Improvement Homesite Value: | + | $0 | |
| (+) Improvement Non-Homesite Value: | + | $15,868 | |
| (+) Land Homesite Value: | + | $0 | |
| (+) Land Non-Homesite Value: | + | $0 | |
| (+) Curr Use (HS): | + | $0 | $0 |
| (+) Curr Use (NHS): | + | $0 | $0 |
| | | -------------------------- | |
| (=) Market Value: | = | $15,868 | |
| (–) Productivity Loss: | – | $0 | |
| | | -------------------------- | |
| (=) Subtotal: | = | $15,868 | |
| (+) Senior Appraised Value: | + | $0 | |
| (+) Non-Senior Appraised Value: | + | $15,868 | |
| | | -------------------------- | |
| (=) Total Appraised Value: | = | $15,868 | |
| (–) Senior Exemption Loss: | – | $0 | |
| (–) Exemption Loss: | – | $0 | |
| | | -------------------------- | |
| (=) Taxable Value: | = | $15,868 | |
Taxing Jurisdiction
| Owner: | MARTINZEZ DE JESUS, ADELAIDO | | |
| % Ownership: | 100.0000000000% | | |
| Total Value: | $15,868 | | |
| Tax Area: | 300 - APPRAISER-Cpvl Schl Dist, in Cpvl |
| CF | Conservation Futures | 0.0313996660 | $15,868 | $15,868 | $0.50 | | |
| CEM2 | Cemetery #2 | 0.0092609791 | $15,868 | $15,868 | $0.15 | | |
| COUP | City: Town of Coupeville | 0.8188663519 | $15,868 | $15,868 | $12.99 | | |
| FIRE5 | Fire & Rescue Dist #5 C Whidbey GEN | 1.1892169230 | $15,868 | $15,868 | $18.87 | | |
| FIRE5BOND | Fire & Rescue Dist #5 C Whidbey BOND | 0.1394359503 | $15,868 | $15,868 | $2.21 | | |
| HOBOND | Hospital BOND | 0.1893405597 | $15,868 | $15,868 | $3.00 | | |
| HOGEN | Hospital GEN | 0.3848777722 | $15,868 | $15,868 | $6.11 | | |
| CE | County Current Expense | 0.3674210519 | $15,868 | $15,868 | $5.83 | | |
| ISLANDEMS | Hospital GEN (EMS) | 0.4952018576 | $15,868 | $15,868 | $7.86 | | |
| LIB | Library Sno-Isle GEN | 0.3039084203 | $15,868 | $15,868 | $4.82 | | |
| LIBCAP | Library Sno-Isle BOND (Cap Fac Imp Area) | 0.0528562629 | $15,868 | $15,868 | $0.84 | | |
| POCOUP | Port of Coupeville GEN | 0.1065226063 | $15,868 | $15,868 | $1.69 | | |
| POCOUPIDD | Port of Coupeville IDD | 0.3353038577 | $15,868 | $15,868 | $5.32 | | |
| COUPSDTECH | School 204 CP (TECH) | 0.1215123397 | $15,868 | $15,868 | $1.93 | | |
| SCH204MO | School 204 Enrichment | 0.6416662518 | $15,868 | $15,868 | $10.18 | | |
| ST | State School | 1.4761226122 | $15,868 | $15,868 | $23.42 | | |
| ST2 | State School Part 2 | 0.7953803475 | $15,868 | $15,868 | $12.62 | | |
| | Total Tax Rate: | 7.4582938101 | | | | | |
| | | | | Taxes w/Current Exemptions: | $118.34 | | |
| | | | | Taxes w/o Exemptions: | $118.34 | | |
Improvement / Building
| Improvement #1: | MANUFACTURED HOME | State Code: | Y | 652.0 sqft | Value: | $15,868 |
| Bathrooms: | 1 | Bedrooms: | 2 | | Ceiling: | PLASTER PAINTED | Cooling: | EVAP NO DUCT | | Exterior Wall/Cover: | VINYL | Floor Covering: | CARPET 100% | | Floor Structure: | SLAB ON GRADE | Foundation: | SLAB | | Heating: | FHA ELECTRIC | Interior Finish: | PLASTER | | Plumbing Fixture Cnt: | 1 | Roof Slope: | FLAT | | Roof Structure/Cover: | CJ ALUMINIUM HEAVY |   |   |
|
Sketch
Property Image
Land
No land segments exist for this property.
Roll Value History
| 2026 | N/A | N/A | N/A | N/A | N/A |
| 2025 | $15,868 | $0 | $0 | $15,868 | $15,868 |
| 2024 | $14,281 | $0 | $0 | $14,281 | $14,281 |
| 2023 | $5,682 | $0 | $0 | $5,682 | $5,682 |
| 2022 | $5,513 | $0 | $0 | $5,513 | $5,513 |
| 2021 | $4,954 | $0 | $0 | $4,954 | $4,954 |
| 2020 | $5,119 | $0 | $0 | $5,119 | $5,119 |
| 2019 | $4,277 | $0 | $0 | $4,277 | $4,277 |
| 2018 | $2,268 | $0 | $0 | $2,268 | $2,268 |
| 2017 | $2,495 | $0 | $0 | $2,495 | $2,495 |
| 2016 | $2,722 | $0 | $0 | $2,722 | $2,722 |
| 2015 | $2,836 | $0 | $0 | $2,836 | $2,836 |
| 2014 | $3,062 | $0 | $0 | $3,062 | $3,062 |
| 2013 | $3,176 | $0 | $0 | $3,176 | $3,176 |
| 2012 | $3,433 | $0 | $0 | $3,433 | $3,433 |
| 2011 | $3,455 | $0 | $0 | $3,455 | $3,455 |
| 2010 | $3,516 | $0 | $0 | $3,516 | $3,516 |
| 2009 | $3,697 | $0 | $0 | $3,697 | $3,697 |
| 2008 | $3,702 | $0 | $0 | $3,702 | $3,702 |
| 2007 | $3,709 | $0 | $0 | $3,709 | $3,709 |
Deed and Sales History
| 1 | 03/26/2019 | MANHOME | Manufactured Home | ALVAREZ, XARARIAS DE JESUS | MARTINZEZ DE JESUS, ADELAIDO | | | $2,500.00 | 46088 | |
| 2 | 12/31/2005 | OTHER | Other - Misc. Documents | BARAJAS-FLORES, JOSE MIGUEL | ALVAREZ, XARARIAS DE JESUS | | | $4,000.00 | 60075 | 0 |
| 3 | 06/04/2004 | OTHER | Other - Misc. Documents | PORTILLO, ALEJANDRO G | BARAJAS-FLORES, JOSE MIGUEL | | | $0.00 | 12353 | 0 |
| 4 | 02/01/1997 | OTHER | Other - Misc. Documents | HUNT, TRAYNOR / | PORTILLO, ALEJANDRO G | | | $6,995.00 | 70568 | 0 |
| 5 | 02/01/1993 | OTHER | Other - Misc. Documents | FRAWLEY, MICHAEL P | HUNT, TRAYNOR / | | | $1,000.00 | 30435 | 0 |
| 6 | 05/01/1991 | OTHER | Other - Misc. Documents | ALDRIDGE, WILL / | FRAWLEY, MICHAEL P | | | $1,000.00 | 11776 | 0 |
| 7 | 07/01/1986 | OTHER | Other - Misc. Documents | Unknown | ALDRIDGE, WILL / | | | $4,500.00 | 61659 | 0 |
Payout Agreement
| No payout information available.. |