Property
Account |
| Property ID: | 629412 | Abbreviated Legal Description: | PT GL3 SEC 22-33-2E LY SWLY GREEN RD AS EXISTED 4-22-1988 TGW PT NESW SEC 22-33-2E LY NLY DEVRIES RD & SWLY GREEN RD AS EXISTED 4-22-1988 |
| Geographic ID: | R23322-246-1730 | Agent Code: | |
| Type: | Real | | |
| Tax Area: | 112 - APPRAISER-OH Schl Dist, outside OH, improved, greater than 1 acre | Land Use Code | 11 |
| Open Space: | N | DFL | N |
| Historic Property: | N | Remodel Property: | N |
| Multi-Family Redevelopment: | N | | |
| Township: | 33 | Section: | 22 |
| Range: | R2 |
Location |
| Address: | 1335 DEVRIES RD OAK HARBOR, WA 98277 | Mapsco: | |
| Neighborhood: | Cycle 6 | Map ID: | 620 |
| Neighborhood CD: | 6 |
Owner |
| Name: | KRECH, KENNETH G | Owner ID: | 311920 |
| Mailing Address: | 1335 DEVRIES RD OAK HARBOR, WA 98277 | % Ownership: | 100.0000000000% |
| | | Exemptions: | |
Taxes and Assessment Details
Values
| (+) Improvement Homesite Value: | + | $0 | |
| (+) Improvement Non-Homesite Value: | + | $385,078 | |
| (+) Land Homesite Value: | + | $0 | |
| (+) Land Non-Homesite Value: | + | $340,000 | |
| (+) Curr Use (HS): | + | $0 | $0 |
| (+) Curr Use (NHS): | + | $0 | $0 |
| | | -------------------------- | |
| (=) Market Value: | = | $725,078 | |
| (–) Productivity Loss: | – | $0 | |
| | | -------------------------- | |
| (=) Subtotal: | = | $725,078 | |
| (+) Senior Appraised Value: | + | $0 | |
| (+) Non-Senior Appraised Value: | + | $725,078 | |
| | | -------------------------- | |
| (=) Total Appraised Value: | = | $725,078 | |
| (–) Senior Exemption Loss: | – | $0 | |
| (–) Exemption Loss: | – | $0 | |
| | | -------------------------- | |
| (=) Taxable Value: | = | $725,078 | |
Taxing Jurisdiction
| Owner: | KRECH, KENNETH G | | |
| % Ownership: | 100.0000000000% | | |
| Total Value: | $725,078 | | |
| Tax Area: | 112 - APPRAISER-OH Schl Dist, outside OH, improved, greater than 1 acre |
| CF | Conservation Futures | 0.0313996660 | $725,078 | $725,078 | $22.77 | | |
| CEM1 | Cemetery #1 | 0.0040018856 | $725,078 | $725,078 | $2.90 | | |
| FIRE2 | Fire & Rescue Dist #2 N Whidbey GEN | 0.5381486274 | $725,078 | $725,078 | $390.20 | | |
| HOBOND | Hospital BOND | 0.1893405597 | $725,078 | $725,078 | $137.29 | | |
| HOGEN | Hospital GEN | 0.3848777722 | $725,078 | $725,078 | $279.07 | | |
| CE | County Current Expense | 0.3674210519 | $725,078 | $725,078 | $266.41 | | |
| CR | County Roads | 0.4614296361 | $725,078 | $725,078 | $334.57 | | |
| ISLANDEMS | Hospital GEN (EMS) | 0.4952018576 | $725,078 | $725,078 | $359.06 | | |
| LIB | Library Sno-Isle GEN | 0.3039084203 | $725,078 | $725,078 | $220.36 | | |
| NWHIDPRMT | P & R N Whidbey GEN | 0.1990272349 | $725,078 | $725,078 | $144.31 | | |
| SCH201MO | School 201 Enrichment | 2.3851112745 | $725,078 | $725,078 | $1,729.39 | | |
| ST | State School | 1.4761226122 | $725,078 | $725,078 | $1,070.30 | | |
| ST2 | State School Part 2 | 0.7953803475 | $725,078 | $725,078 | $576.71 | | |
| | Total Tax Rate: | 7.6313709459 | | | | | |
| | | | | Taxes w/Current Exemptions: | $5,533.34 | | |
| | | | | Taxes w/o Exemptions: | $5,533.34 | | |
Improvement / Building
| Improvement #1: | RESIDENTIAL | State Code: | Y | 2344.0 sqft | Value: | $385,078 |
| Bathrooms: | 2.5 | Bedrooms: | 4 | | Ceiling: | DRYWALL PAINTED | Exterior Wall/Cover: | CEMENT FIBER | | Floor Covering: | CARPET/VINYL 60-40 | Floor Structure: | WOOD W/SUBFLOOR | | Foundation: | CONCRETE | Heating: | FHA ELECTRIC | | Interior Finish: | DRYWALL PAINT | Plumbing Fixture Cnt: | 12 | | Roof Slope: | 4" IN 12" | Roof Structure/Cover: | CJ ALUMINIUM HEAVY |
|
| | Type | Description | Class CD | Sub Class CD | Year Built | Area |
| | BAS | BASE/MAIN FLOOR | 3 | 0 | 1989 | 1212.0 |
| | OP4 | OPEN PORCH W/CEILING-ROOF | 3 | 0 | 1989 | 390.0 |
| | AGR | ATTACHED GARAGE | 3 | 0 | 1989 | 624.0 |
| | UPS | UPPER STORY | 3 | 0 | 1989 | 1132.0 |
| | OWP | OPEN WOOD PORCH W/STEPS | 3 | 0 | 1989 | 801.0 |
Sketch
Property Image
Land
| 1 | 35 | AC (10.00-30.99) | 13.5400 | 589802.40 | 0.00 | 0.00 | 1.00 | $340,000 | $0 |
Roll Value History
| 2026 | N/A | N/A | N/A | N/A | N/A |
| 2025 | $385,078 | $340,000 | $0 | $725,078 | $725,078 |
| 2024 | $389,876 | $300,000 | $0 | $689,876 | $689,876 |
| 2023 | $394,675 | $280,000 | $0 | $674,675 | $674,675 |
| 2022 | $355,186 | $270,000 | $0 | $625,186 | $625,186 |
| 2021 | $312,616 | $210,000 | $0 | $522,616 | $522,616 |
| 2020 | $304,979 | $200,000 | $0 | $504,979 | $504,979 |
| 2019 | $235,266 | $250,000 | $0 | $485,266 | $485,266 |
| 2018 | $235,956 | $220,000 | $0 | $455,956 | $455,956 |
| 2017 | $237,336 | $200,000 | $0 | $437,336 | $437,336 |
| 2016 | $178,167 | $200,450 | $0 | $378,617 | $378,617 |
| 2015 | $180,643 | $200,000 | $0 | $380,643 | $380,643 |
| 2014 | $183,118 | $230,180 | $0 | $413,298 | $413,298 |
| 2013 | $185,592 | $230,180 | $0 | $415,772 | $415,772 |
| 2012 | $188,066 | $96,060 | $0 | $284,126 | $284,126 |
| 2011 | $190,540 | $106,600 | $0 | $297,140 | $297,140 |
| 2010 | $193,486 | $106,600 | $0 | $300,086 | $300,086 |
| 2009 | $201,865 | $233,080 | $0 | $434,945 | $434,945 |
| 2008 | $209,331 | $169,840 | $0 | $379,171 | $379,171 |
| 2007 | $211,820 | $138,789 | $0 | $350,609 | $350,609 |
Deed and Sales History
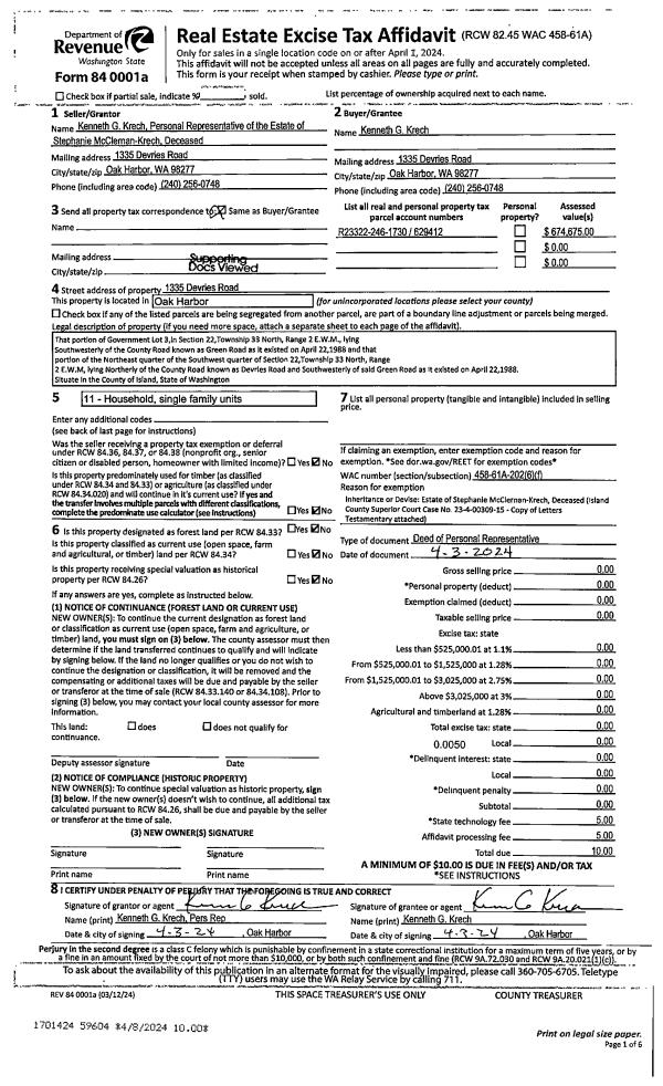
| 1 | 04/03/2024 | PRD | Personal Representatives Deed | KRECH, KENNETH | KRECH, KENNETH G | | | $0.00 | 59604 | 4571037 |
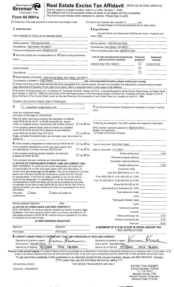
| 2 | 11/11/2021 | QCD | Quit Claim Deed | KRECH, KENNETH G | KRECH, KENNETH | | | $0.00 | 50959 | 4534120 |
| 3 | 12/06/2010 | ESTSEPPROP | Establish Separate Property | KRECH, KENNETH G | KRECH, KENNETH G | | | $0.00 | 3176 | 4287088 |
| 4 | 06/01/1988 | WD | Warranty Deed | GREEN, HAZEL | KRECH, KENNETH G | | | $75,000.00 | 81994 | 88007411 |
| 5 | 05/01/1988 | OTHER | Other - Misc. Documents | GREEN, HAZEL | GREEN, HAZEL | | | $0.00 | 62601 | 0 |
| 6 | 02/01/1971 | OTHER | Other - Misc. Documents | Unknown | GREEN, HAZEL | | | $0.00 | 40646 | 0 |
Payout Agreement
| No payout information available.. |