Property
Account |
| Property ID: | 630455 | Abbreviated Legal Description: | LOT A L-SP 994.33034.057-3770 V2 SP P158 AF#88004251 |
| Geographic ID: | R33034-060-3820 | Agent Code: | |
| Type: | Real | | |
| Tax Area: | 700 - APPRAISER-S Whid Schl Dist, in town of Langley | Land Use Code | 11 |
| Open Space: | N | DFL | N |
| Historic Property: | N | Remodel Property: | N |
| Multi-Family Redevelopment: | N | | |
| Township: | 30 | Section: | 34 |
| Range: | R3 |
Location |
| Address: | 333 CASCADE AVE LANGLEY, WA 98260 | Mapsco: | |
| Neighborhood: | City of Langley | Map ID: | 913 |
| Neighborhood CD: | 04-L |
Owner |
| Name: | WESCOTT, ANNIE B | Owner ID: | 313854 |
| Mailing Address: | PRASHANT KUCHI 333 CASCADE AVE LANGLEY, WA 98260 | % Ownership: | 100.0000000000% |
| | | Exemptions: | |
Taxes and Assessment Details
Values
| (+) Improvement Homesite Value: | + | $0 | |
| (+) Improvement Non-Homesite Value: | + | $244,717 | |
| (+) Land Homesite Value: | + | $0 | |
| (+) Land Non-Homesite Value: | + | $430,000 | |
| (+) Curr Use (HS): | + | $0 | $0 |
| (+) Curr Use (NHS): | + | $0 | $0 |
| | | -------------------------- | |
| (=) Market Value: | = | $674,717 | |
| (–) Productivity Loss: | – | $0 | |
| | | -------------------------- | |
| (=) Subtotal: | = | $674,717 | |
| (+) Senior Appraised Value: | + | $0 | |
| (+) Non-Senior Appraised Value: | + | $674,717 | |
| | | -------------------------- | |
| (=) Total Appraised Value: | = | $674,717 | |
| (–) Senior Exemption Loss: | – | $0 | |
| (–) Exemption Loss: | – | $0 | |
| | | -------------------------- | |
| (=) Taxable Value: | = | $674,717 | |
Taxing Jurisdiction
| Owner: | WESCOTT, ANNIE B | | |
| % Ownership: | 100.0000000000% | | |
| Total Value: | $674,717 | | |
| Tax Area: | 700 - APPRAISER-S Whid Schl Dist, in town of Langley |
| CF | Conservation Futures | 0.0313996660 | $674,717 | $674,717 | $21.19 | | |
| LANG | City of Langley | 1.0106798199 | $674,717 | $674,717 | $681.92 | | |
| LANGBOND | City of Langley BOND | 0.0000000000 | $674,717 | $674,717 | $0.00 | | |
| FIRE3 | Fire & Rescue Dist #3 S Whidbey GEN | 1.2130821753 | $674,717 | $674,717 | $818.49 | | |
| HOBOND | Hospital BOND | 0.1893405597 | $674,717 | $674,717 | $127.75 | | |
| HOGEN | Hospital GEN | 0.3848777722 | $674,717 | $674,717 | $259.68 | | |
| CE | County Current Expense | 0.3674210519 | $674,717 | $674,717 | $247.91 | | |
| ISLANDEMS | Hospital GEN (EMS) | 0.4952018576 | $674,717 | $674,717 | $334.12 | | |
| LIB | Library Sno-Isle GEN | 0.3039084203 | $674,717 | $674,717 | $205.05 | | |
| PORTWHID | Port of S Whidbey GEN | 0.1086004714 | $674,717 | $674,717 | $73.27 | | |
| SCH206BOND | School 206 BOND | 0.5960237832 | $674,717 | $674,717 | $402.15 | | |
| SCH206CAP | School 206 CP | 0.3066144020 | $674,717 | $674,717 | $206.88 | | |
| SCH206MO | School 206 Enrichment | 0.4808755445 | $674,717 | $674,717 | $324.45 | | |
| ST | State School | 1.4761226122 | $674,717 | $674,717 | $995.97 | | |
| ST2 | State School Part 2 | 0.7953803475 | $674,717 | $674,717 | $536.66 | | |
| SWHIDPRBD | P & R S Whidbey BOND | 0.0144185398 | $674,717 | $674,717 | $9.73 | | |
| SWHIDPRBD3 | P & R S Whidbey BOND3 | 0.1483535547 | $674,717 | $674,717 | $100.10 | | |
| SWHIDPRMT | P & R S Whidbey GEN | 0.4600000000 | $674,717 | $674,717 | $310.37 | | |
| | Total Tax Rate: | 8.3823005782 | | | | | |
| | | | | Taxes w/Current Exemptions: | $5,655.69 | | |
| | | | | Taxes w/o Exemptions: | $5,655.69 | | |
Improvement / Building
| Improvement #1: | RESIDENTIAL | State Code: | Y | 1893.0 sqft | Value: | $244,717 |
| Bathrooms: | 2 | Bedrooms: | 1 | | Ceiling: | DRYWALL PAINTED | Exterior Wall/Cover: | SHINGLE | | Floor Covering: | VINYL 100% | Floor Structure: | WOOD W/SUBFLOOR | | Foundation: | CONCRETE | Heating: | WALL HEAT ELECTRIC | | Interior Finish: | DRYWALL PAINT | Plumbing Fixture Cnt: | 8 | | Roof Slope: | 6" IN 12" | Roof Structure/Cover: | CJ ASPHALT |
|
| | Type | Description | Class CD | Sub Class CD | Year Built | Area |
| | BAS | BASE/MAIN FLOOR | 3 | 0 | 1988 | 941.0 |
| | OWP | OPEN WOOD PORCH W/STEPS | 3 | 0 | 1988 | 184.0 |
| | OWP | OPEN WOOD PORCH W/STEPS | 3 | 0 | 1988 | 79.0 |
| | OWR | OPEN WOOD PORCH W/STEPS/ROOF | 3 | 0 | 1988 | 96.0 |
| | DWN | DOWNSTAIRS LIVING AREA | 3 | 0 | 1988 | 952.0 |
| | CPD | OPEN CARPORT DIRT FLOOR | 3 | 0 | 1988 | 200.0 |
Sketch
| No sketches available for this property. |
Property Image
Land
| 1 | 13 | SQ (06001-08000) | 0.0000 | 0.00 | 0.00 | 0.00 | 1.00 | $430,000 | $0 |
Roll Value History
| 2026 | N/A | N/A | N/A | N/A | N/A |
| 2025 | $244,717 | $430,000 | $0 | $674,717 | $674,717 |
| 2024 | $247,704 | $430,000 | $0 | $677,704 | $677,704 |
| 2023 | $250,954 | $430,000 | $0 | $680,954 | $680,954 |
| 2022 | $230,176 | $360,000 | $0 | $590,176 | $590,176 |
| 2021 | $202,716 | $320,000 | $0 | $522,716 | $522,716 |
| 2020 | $188,225 | $320,000 | $0 | $508,225 | $508,225 |
| 2019 | $143,155 | $290,000 | $0 | $433,155 | $433,155 |
| 2018 | $143,617 | $255,000 | $0 | $398,617 | $398,617 |
| 2017 | $134,411 | $255,000 | $0 | $389,411 | $389,411 |
| 2016 | $136,135 | $255,000 | $0 | $391,135 | $391,135 |
| 2015 | $137,858 | $255,000 | $0 | $392,858 | $392,858 |
| 2014 | $128,482 | $195,960 | $0 | $324,442 | $324,442 |
| 2013 | $130,208 | $195,960 | $0 | $326,168 | $326,168 |
| 2012 | $131,933 | $195,960 | $0 | $327,893 | $327,893 |
| 2011 | $133,658 | $213,000 | $0 | $346,658 | $346,658 |
| 2010 | $147,639 | $213,000 | $0 | $360,639 | $360,639 |
| 2009 | $154,047 | $300,000 | $0 | $454,047 | $454,047 |
| 2008 | $155,994 | $293,088 | $0 | $449,082 | $449,082 |
| 2007 | $157,951 | $293,089 | $0 | $451,040 | $451,040 |
Deed and Sales History
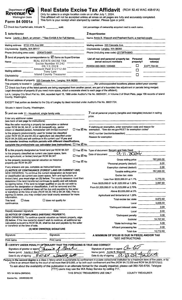
| 1 | 09/11/2024 | BARGSLD | Bargain And Sale Deed | BACH, LAURIE J | WESCOTT, ANNIE B | | | $767,000.00 | 61242 | 4577000 |
| 2 | 07/22/2019 | PRD | Personal Representatives Deed | BACH, GERARD V | BACH, LAURIE J | | | $0.00 | 40804 | 4473968 |
| 3 | 07/22/2019 | PRD | Personal Representatives Deed | BACH, GERARD V | BACH, LAURIE J | | | $0.00 | 39696 | 4468587 |
| 4 | 02/01/1988 | QCD | Quit Claim Deed | Unknown | BACH, GERARD V | | | $0.00 | 80410 | 88001724 |
Payout Agreement
| No payout information available.. |