Property
Account |
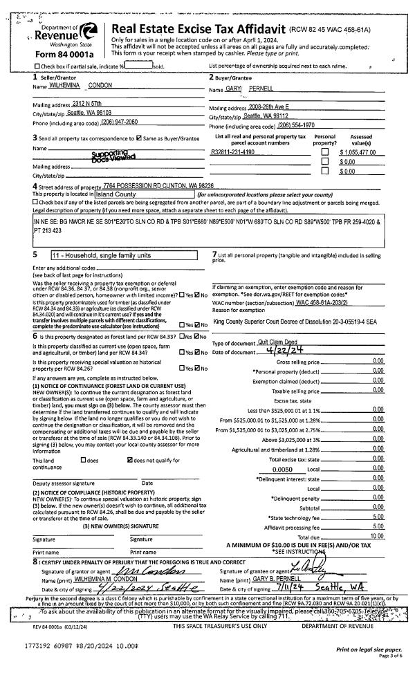
| Property ID: | 630874 | Abbreviated Legal Description: | IN NE SE: BG NWCR NE SE S01*E20'TO SLN CO RD & TPB S01*E680' N89*E500' N01*W 680'TO SLN CO RD S89*W500' TPB FR 259-4020 & PT 213 423 |
| Geographic ID: | R32811-231-4190 | Agent Code: | |
| Type: | Real | | |
| Tax Area: | 712 - APPRAISER-S Whid Schl Dist, outside Langley, improved, greater than 1 acre | Land Use Code | 11 |
| Open Space: | N | DFL | N |
| Historic Property: | N | Remodel Property: | N |
| Multi-Family Redevelopment: | N | | |
| Township: | 28 | Section: | 11 |
| Range: | R3 |
Location |
| Address: | 7764 POSSESSION RD CLINTON, WA 98236 | Mapsco: | |
| Neighborhood: | Cycle 4 | Map ID: | 702 |
| Neighborhood CD: | 4 |
Owner |
| Name: | PERNELL, GARY | Owner ID: | 313560 |
| Mailing Address: | 2008- 26TH AVE E SEATTLE, WA 98112 | % Ownership: | 100.0000000000% |
| | | Exemptions: | |
Taxes and Assessment Details
Values
| (+) Improvement Homesite Value: | + | $0 | |
| (+) Improvement Non-Homesite Value: | + | $687,847 | |
| (+) Land Homesite Value: | + | $0 | |
| (+) Land Non-Homesite Value: | + | $390,000 | |
| (+) Curr Use (HS): | + | $0 | $0 |
| (+) Curr Use (NHS): | + | $0 | $0 |
| | | -------------------------- | |
| (=) Market Value: | = | $1,077,847 | |
| (–) Productivity Loss: | – | $0 | |
| | | -------------------------- | |
| (=) Subtotal: | = | $1,077,847 | |
| (+) Senior Appraised Value: | + | $0 | |
| (+) Non-Senior Appraised Value: | + | $1,077,847 | |
| | | -------------------------- | |
| (=) Total Appraised Value: | = | $1,077,847 | |
| (–) Senior Exemption Loss: | – | $0 | |
| (–) Exemption Loss: | – | $0 | |
| | | -------------------------- | |
| (=) Taxable Value: | = | $1,077,847 | |
Taxing Jurisdiction
| Owner: | PERNELL, GARY | | |
| % Ownership: | 100.0000000000% | | |
| Total Value: | $1,077,847 | | |
| Tax Area: | 712 - APPRAISER-S Whid Schl Dist, outside Langley, improved, greater than 1 acre |
| CF | Conservation Futures | 0.0313996660 | $1,077,847 | $1,077,847 | $33.84 | | |
| FIRE3 | Fire & Rescue Dist #3 S Whidbey GEN | 1.2130821753 | $1,077,847 | $1,077,847 | $1,307.52 | | |
| HOBOND | Hospital BOND | 0.1893405597 | $1,077,847 | $1,077,847 | $204.08 | | |
| HOGEN | Hospital GEN | 0.3848777722 | $1,077,847 | $1,077,847 | $414.84 | | |
| CE | County Current Expense | 0.3674210519 | $1,077,847 | $1,077,847 | $396.02 | | |
| CR | County Roads | 0.4614296361 | $1,077,847 | $1,077,847 | $497.35 | | |
| ISLANDEMS | Hospital GEN (EMS) | 0.4952018576 | $1,077,847 | $1,077,847 | $533.75 | | |
| LIB | Library Sno-Isle GEN | 0.3039084203 | $1,077,847 | $1,077,847 | $327.57 | | |
| PORTWHID | Port of S Whidbey GEN | 0.1086004714 | $1,077,847 | $1,077,847 | $117.05 | | |
| SCH206BOND | School 206 BOND | 0.5960237832 | $1,077,847 | $1,077,847 | $642.42 | | |
| SCH206CAP | School 206 CP | 0.3066144020 | $1,077,847 | $1,077,847 | $330.48 | | |
| SCH206MO | School 206 Enrichment | 0.4808755445 | $1,077,847 | $1,077,847 | $518.31 | | |
| ST | State School | 1.4761226122 | $1,077,847 | $1,077,847 | $1,591.03 | | |
| ST2 | State School Part 2 | 0.7953803475 | $1,077,847 | $1,077,847 | $857.30 | | |
| SWHIDPRBD | P & R S Whidbey BOND | 0.0144185398 | $1,077,847 | $1,077,847 | $15.54 | | |
| SWHIDPRBD3 | P & R S Whidbey BOND3 | 0.1483535547 | $1,077,847 | $1,077,847 | $159.90 | | |
| SWHIDPRMT | P & R S Whidbey GEN | 0.4600000000 | $1,077,847 | $1,077,847 | $495.81 | | |
| | Total Tax Rate: | 7.8330503944 | | | | | |
| | | | | Taxes w/Current Exemptions: | $8,442.81 | | |
| | | | | Taxes w/o Exemptions: | $8,442.81 | | |
Improvement / Building
| Improvement #1: | RESIDENTIAL | State Code: | Y | 5496.1 sqft | Value: | $687,847 |
| Bathrooms: | 3 | Bedrooms: | 4 | | Ceiling: | DRY WALL SPRAYED | Exterior Wall/Cover: | CEMENT FIBER | | Floor Covering: | HARDWOOD/CARP 20-80 | Floor Structure: | WOOD W/SUBFLOOR | | Foundation: | CONCRETE | Heating: | FHA ELECTRIC | | Interior Finish: | DRYWALL PAINT | Plumbing Fixture Cnt: | 12 | | Roof Slope: | 8" IN 12" | Roof Structure/Cover: | CJ ASPHALT |
|
| | Type | Description | Class CD | Sub Class CD | Year Built | Area |
| | BAS | BASE/MAIN FLOOR | 5 | 0 | 1960 | 2728.0 |
| | AGR | ATTACHED GARAGE | 5 | 0 | 1960 | 528.0 |
| | UPS | UPPER STORY | 5 | 0 | 1960 | 1136.1 |
| | OWP | OPEN WOOD PORCH W/STEPS | 5 | 0 | 1960 | 823.0 |
| | ENP | ENCLOSED PORCH | 5 | 0 | 1960 | 120.0 |
| | UPH | HALF STORY | 5 | 0 | 1960 | 1200.0 |
| | oTP1 | TREAD POOL 1/BELOW | 5 | 0 | 1960 | 0.0 |
| | LOF | LOFT | 5 | 0 | 1960 | 432.0 |
Sketch
| No sketches available for this property. |
Property Image
Land
| 1 | 32 | AC (03.01-09.99) | 7.8100 | 340203.60 | 0.00 | 0.00 | 1.00 | $390,000 | $0 |
Roll Value History
| 2026 | N/A | N/A | N/A | N/A | N/A |
| 2025 | $687,847 | $390,000 | $0 | $1,077,847 | $1,077,847 |
| 2024 | $696,663 | $360,000 | $0 | $1,056,663 | $1,056,663 |
| 2023 | $705,477 | $350,000 | $0 | $1,055,477 | $1,055,477 |
| 2022 | $647,447 | $350,000 | $0 | $997,447 | $997,447 |
| 2021 | $570,799 | $280,000 | $0 | $850,799 | $850,799 |
| 2020 | $376,807 | $260,000 | $0 | $636,807 | $636,807 |
| 2019 | $326,187 | $280,000 | $0 | $606,187 | $606,187 |
| 2018 | $327,198 | $230,000 | $0 | $557,198 | $557,198 |
| 2017 | $329,211 | $200,000 | $0 | $529,211 | $529,211 |
| 2016 | $333,260 | $200,000 | $0 | $533,260 | $533,260 |
| 2015 | $337,308 | $180,000 | $0 | $517,308 | $517,308 |
| 2014 | $261,755 | $171,820 | $0 | $433,575 | $433,575 |
| 2013 | $265,803 | $171,820 | $0 | $437,623 | $437,623 |
| 2012 | $269,852 | $171,820 | $0 | $441,672 | $441,672 |
| 2011 | $273,902 | $171,820 | $0 | $445,722 | $445,722 |
| 2010 | $288,597 | $171,820 | $0 | $460,417 | $460,417 |
| 2009 | $302,564 | $312,400 | $0 | $614,964 | $614,964 |
| 2008 | $308,212 | $390,500 | $0 | $698,712 | $698,712 |
| 2007 | $313,861 | $390,500 | $0 | $704,361 | $704,361 |
Deed and Sales History
| 1 | 04/22/2024 | QCD | Quit Claim Deed | CONDON, WILHEMINA | PERNELL, GARY | | | $0.00 | 60987 | 4576018 |
| 2 | 01/05/1998 | WD | Warranty Deed | CHAPMAN, LAWRENCE | PERNELL, GARY B | | | $595,000.00 | 84146 | 98022395 |
| 3 | 08/01/1988 | OTHER | Other - Misc. Documents | CHAPMAN, LAWRENCE | CHAPMAN, LAWRENCE | | | $0.00 | 62802 | 88009613 |
| 4 | 06/01/1979 | EXECUTORD | Executor Deed | Unknown | CHAPMAN, LAWRENCE | | | $127,000.00 | 93163 | 0 |
Payout Agreement
| No payout information available.. |