Property
Account |
| Property ID: | 631659 | Abbreviated Legal Description: | W/2 E/2 NW NE EX SLEEPER RD FR 469 3690 |
| Geographic ID: | R23320-469-3520 | Agent Code: | |
| Type: | Real | | |
| Tax Area: | 112 - APPRAISER-OH Schl Dist, outside OH, improved, greater than 1 acre | Land Use Code | 11 |
| Open Space: | N | DFL | N |
| Historic Property: | N | Remodel Property: | N |
| Multi-Family Redevelopment: | N | | |
| Township: | 33 | Section: | 20 |
| Range: | R2 |
Location |
| Address: | 660 E SLEEPER RD OAK HARBOR, WA 98277 | Mapsco: | |
| Neighborhood: | Cycle 6 | Map ID: | 615 |
| Neighborhood CD: | 6 |
Owner |
| Name: | BARRAILLER, JAMES MICHAEL | Owner ID: | 283797 |
| Mailing Address: | 660 E SLEEPER RD OAK HARBOR, WA 98277 | % Ownership: | 100.0000000000% |
| | | Exemptions: | |
Taxes and Assessment Details
Values
| (+) Improvement Homesite Value: | + | $0 | |
| (+) Improvement Non-Homesite Value: | + | $508,728 | |
| (+) Land Homesite Value: | + | $0 | |
| (+) Land Non-Homesite Value: | + | $300,000 | |
| (+) Curr Use (HS): | + | $0 | $0 |
| (+) Curr Use (NHS): | + | $0 | $0 |
| | | -------------------------- | |
| (=) Market Value: | = | $808,728 | |
| (–) Productivity Loss: | – | $0 | |
| | | -------------------------- | |
| (=) Subtotal: | = | $808,728 | |
| (+) Senior Appraised Value: | + | $0 | |
| (+) Non-Senior Appraised Value: | + | $808,728 | |
| | | -------------------------- | |
| (=) Total Appraised Value: | = | $808,728 | |
| (–) Senior Exemption Loss: | – | $0 | |
| (–) Exemption Loss: | – | $0 | |
| | | -------------------------- | |
| (=) Taxable Value: | = | $808,728 | |
Taxing Jurisdiction
| Owner: | BARRAILLER, JAMES MICHAEL | | |
| % Ownership: | 100.0000000000% | | |
| Total Value: | $808,728 | | |
| Tax Area: | 112 - APPRAISER-OH Schl Dist, outside OH, improved, greater than 1 acre |
| CF | Conservation Futures | 0.0313996660 | $808,728 | $808,728 | $25.39 | | |
| CEM1 | Cemetery #1 | 0.0040018856 | $808,728 | $808,728 | $3.24 | | |
| FIRE2 | Fire & Rescue Dist #2 N Whidbey GEN | 0.5381486274 | $808,728 | $808,728 | $435.22 | | |
| HOBOND | Hospital BOND | 0.1893405597 | $808,728 | $808,728 | $153.13 | | |
| HOGEN | Hospital GEN | 0.3848777722 | $808,728 | $808,728 | $311.26 | | |
| CE | County Current Expense | 0.3674210519 | $808,728 | $808,728 | $297.14 | | |
| CR | County Roads | 0.4614296361 | $808,728 | $808,728 | $373.17 | | |
| ISLANDEMS | Hospital GEN (EMS) | 0.4952018576 | $808,728 | $808,728 | $400.48 | | |
| LIB | Library Sno-Isle GEN | 0.3039084203 | $808,728 | $808,728 | $245.78 | | |
| NWHIDPRMT | P & R N Whidbey GEN | 0.1990272349 | $808,728 | $808,728 | $160.96 | | |
| SCH201MO | School 201 Enrichment | 2.3851112745 | $808,728 | $808,728 | $1,928.91 | | |
| ST | State School | 1.4761226122 | $808,728 | $808,728 | $1,193.78 | | |
| ST2 | State School Part 2 | 0.7953803475 | $808,728 | $808,728 | $643.25 | | |
| | Total Tax Rate: | 7.6313709459 | | | | | |
| | | | | Taxes w/Current Exemptions: | $6,171.71 | | |
| | | | | Taxes w/o Exemptions: | $6,171.71 | | |
Improvement / Building
| Improvement #1: | RESIDENTIAL | State Code: | Y | 2305.5 sqft | Value: | $508,728 |
| Bathrooms: | 2.5 | Bedrooms: | 4 | | Ceiling: | DRYWALL PAINTED | Cooling: | HEAT PUMP/CONV/V | | Exterior Wall/Cover: | WOOD SIDING | Floor Covering: | HARDWOOD/CARP 60-40 | | Floor Structure: | WOOD W/SUBFLOOR | Foundation: | CONCRETE | | Interior Finish: | DRYWALL PAINT | Plumbing Fixture Cnt: | 11 | | Roof Slope: | 12" IN 12" | Roof Structure/Cover: | CJ ASPHALT |
|
| | Type | Description | Class CD | Sub Class CD | Year Built | Area |
| | BAS | BASE/MAIN FLOOR | 4 | 0 | 1998 | 1465.4 |
| | OP1 | OPEN PORCH SLAB | 4 | 0 | 1998 | 171.1 |
| | OP4 | OPEN PORCH W/CEILING-ROOF | 4 | 0 | 1998 | 108.5 |
| | OP4 | OPEN PORCH W/CEILING-ROOF | 4 | 0 | 1998 | 137.2 |
| | UPS | UPPER STORY | 4 | 0 | 1998 | 840.1 |
| | ATU | ATTIC UNFINISHED | 4 | 0 | 1998 | 541.4 |
| | DGR | DETACHED GARAGE | 4 | 0 | 2019 | 792.0 |
Sketch
Property Image
Land
| 1 | 32 | AC (03.01-09.99) | 9.7000 | 422532.00 | 0.00 | 0.00 | 1.00 | $300,000 | $0 |
Roll Value History
| 2026 | N/A | N/A | N/A | N/A | N/A |
| 2025 | $508,728 | $300,000 | $0 | $808,728 | $808,728 |
| 2024 | $515,147 | $280,000 | $0 | $795,147 | $795,147 |
| 2023 | $521,566 | $270,000 | $0 | $791,566 | $791,566 |
| 2022 | $466,455 | $240,000 | $0 | $706,455 | $706,455 |
| 2021 | $410,681 | $175,000 | $0 | $585,681 | $585,681 |
| 2020 | $400,926 | $150,000 | $0 | $550,926 | $550,926 |
| 2019 | $285,986 | $220,000 | $0 | $505,986 | $505,986 |
| 2018 | $277,419 | $220,000 | $0 | $497,419 | $497,419 |
| 2017 | $322,548 | $200,000 | $0 | $522,548 | $522,548 |
| 2016 | $219,402 | $150,000 | $0 | $369,402 | $369,402 |
| 2015 | $176,659 | $155,000 | $0 | $331,659 | $331,659 |
| 2014 | $128,134 | $165,000 | $0 | $293,134 | $293,134 |
| 2013 | $129,679 | $164,900 | $0 | $294,579 | $294,579 |
| 2012 | $131,222 | $87,300 | $0 | $218,522 | $218,522 |
| 2011 | $190,095 | $97,000 | $0 | $287,095 | $287,095 |
| 2010 | $132,855 | $97,000 | $0 | $229,855 | $229,855 |
| 2009 | $139,879 | $213,400 | $0 | $353,279 | $353,279 |
| 2008 | $148,464 | $120,998 | $0 | $269,462 | $269,462 |
| 2007 | $151,464 | $120,998 | $0 | $272,462 | $272,462 |
Deed and Sales History
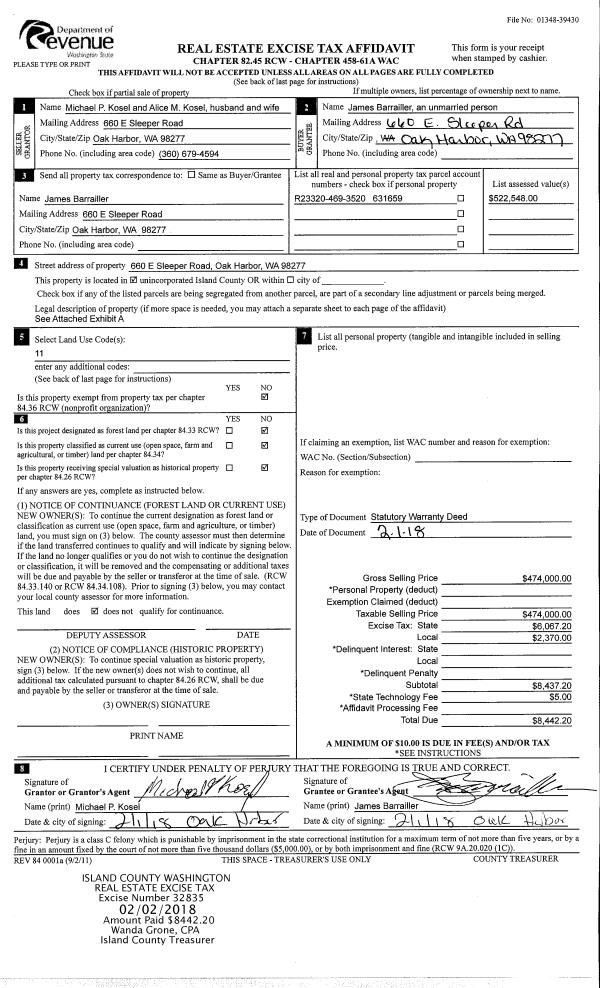
| 1 | 02/01/2018 | WD | Warranty Deed | KOSEL, MICHAEL P / ALICE M | BARRAILLER, JAMES MICHAEL | | | $474,000.00 | 32835 | 4438543 |
| 2 | 04/01/1996 | WD | Warranty Deed | COLEMAN, TERRY L | KOSEL, MICHAEL P | | | $52,000.00 | 61541 | 96007675 |
| 3 | 11/01/1988 | WD | Warranty Deed | Y, D I | COLEMAN, TERRY L | | | $35,800.00 | 83873 | 88014479 |
| 4 | 10/01/1988 | OTHER | Other - Misc. Documents | Y, D I | Y, D I | | | $0.00 | 62907 | 0 |
| 5 | 01/01/1900 | OTHER | Other - Misc. Documents | Unknown | Y, D I | | | $0.00 | 20720 | 394631 |
Payout Agreement
| No payout information available.. |