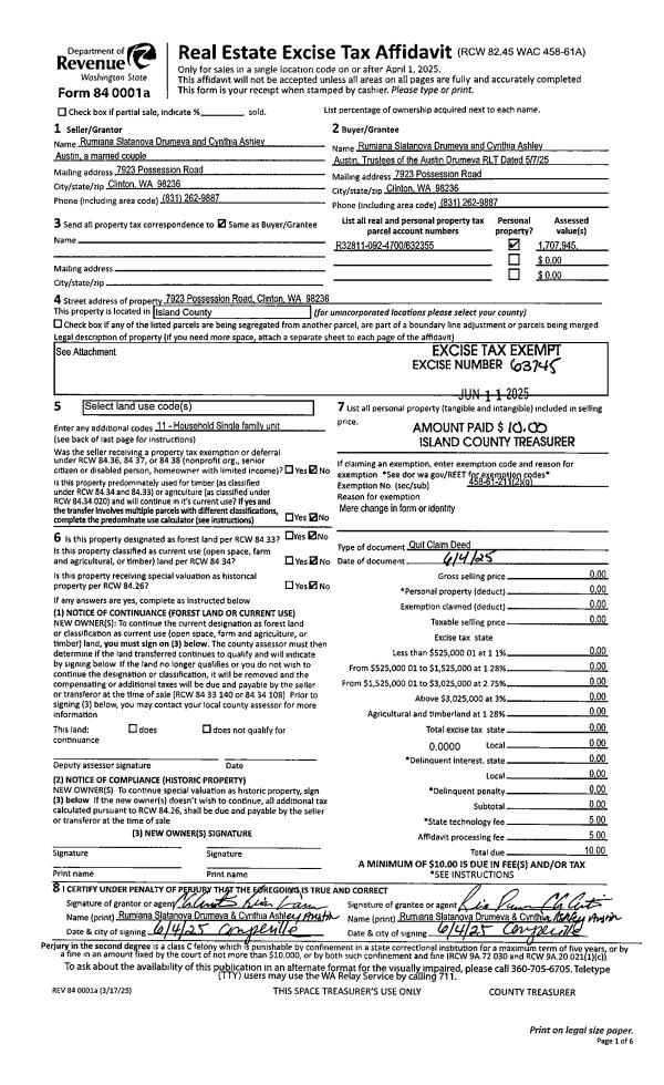
Property
Account |
| Property ID: | 632355 | Abbreviated Legal Description: | TRS B & C SP 81-55.32811.106-4620 V1 SP P133 AF#395172 COMB 12/88 TGW EZ PARTIAL SITE PLAN SPR 45-92 |
| Geographic ID: | R32811-092-4700 | Agent Code: | |
| Type: | Real | | |
| Tax Area: | 712 - APPRAISER-S Whid Schl Dist, outside Langley, improved, greater than 1 acre | Land Use Code | 11 |
| Open Space: | N | DFL | N |
| Historic Property: | N | Remodel Property: | N |
| Multi-Family Redevelopment: | N | | |
| Township: | 28 | Section: | 11 |
| Range: | R3 |
Location |
| Address: | 7923 POSSESSION RD CLINTON, WA 98236 | Mapsco: | |
| Neighborhood: | Cycle 4 | Map ID: | 702 |
| Neighborhood CD: | 4 |
Owner |
| Name: | DRUMEVA TTEE, RUMIANA SLATANOVA | Owner ID: | 316880 |
| Mailing Address: | CYNTHIA ASHLEY AUSTIN TTEE 7923 POSSESSION RD CLINTON, WA 98236 | % Ownership: | 100.0000000000% |
| | | Exemptions: | |
Taxes and Assessment Details
Values
| (+) Improvement Homesite Value: | + | $0 | |
| (+) Improvement Non-Homesite Value: | + | $1,019,399 | |
| (+) Land Homesite Value: | + | $0 | |
| (+) Land Non-Homesite Value: | + | $700,000 | |
| (+) Curr Use (HS): | + | $0 | $0 |
| (+) Curr Use (NHS): | + | $0 | $0 |
| | | -------------------------- | |
| (=) Market Value: | = | $1,719,399 | |
| (–) Productivity Loss: | – | $0 | |
| | | -------------------------- | |
| (=) Subtotal: | = | $1,719,399 | |
| (+) Senior Appraised Value: | + | $0 | |
| (+) Non-Senior Appraised Value: | + | $1,719,399 | |
| | | -------------------------- | |
| (=) Total Appraised Value: | = | $1,719,399 | |
| (–) Senior Exemption Loss: | – | $0 | |
| (–) Exemption Loss: | – | $0 | |
| | | -------------------------- | |
| (=) Taxable Value: | = | $1,719,399 | |
Taxing Jurisdiction
| Owner: | DRUMEVA TTEE, RUMIANA SLATANOVA | | |
| % Ownership: | 100.0000000000% | | |
| Total Value: | $1,719,399 | | |
| Tax Area: | 712 - APPRAISER-S Whid Schl Dist, outside Langley, improved, greater than 1 acre |
| CF | Conservation Futures | 0.0313996660 | $1,719,399 | $1,719,399 | $53.99 | | |
| FIRE3 | Fire & Rescue Dist #3 S Whidbey GEN | 1.2130821753 | $1,719,399 | $1,719,399 | $2,085.77 | | |
| HOBOND | Hospital BOND | 0.1893405597 | $1,719,399 | $1,719,399 | $325.55 | | |
| HOGEN | Hospital GEN | 0.3848777722 | $1,719,399 | $1,719,399 | $661.76 | | |
| CE | County Current Expense | 0.3674210519 | $1,719,399 | $1,719,399 | $631.74 | | |
| CR | County Roads | 0.4614296361 | $1,719,399 | $1,719,399 | $793.38 | | |
| ISLANDEMS | Hospital GEN (EMS) | 0.4952018576 | $1,719,399 | $1,719,399 | $851.45 | | |
| LIB | Library Sno-Isle GEN | 0.3039084203 | $1,719,399 | $1,719,399 | $522.54 | | |
| PORTWHID | Port of S Whidbey GEN | 0.1086004714 | $1,719,399 | $1,719,399 | $186.73 | | |
| SCH206BOND | School 206 BOND | 0.5960237832 | $1,719,399 | $1,719,399 | $1,024.80 | | |
| SCH206CAP | School 206 CP | 0.3066144020 | $1,719,399 | $1,719,399 | $527.19 | | |
| SCH206MO | School 206 Enrichment | 0.4808755445 | $1,719,399 | $1,719,399 | $826.82 | | |
| ST | State School | 1.4761226122 | $1,719,399 | $1,719,399 | $2,538.04 | | |
| ST2 | State School Part 2 | 0.7953803475 | $1,719,399 | $1,719,399 | $1,367.58 | | |
| SWHIDPRBD | P & R S Whidbey BOND | 0.0144185398 | $1,719,399 | $1,719,399 | $24.79 | | |
| SWHIDPRBD3 | P & R S Whidbey BOND3 | 0.1483535547 | $1,719,399 | $1,719,399 | $255.08 | | |
| SWHIDPRMT | P & R S Whidbey GEN | 0.4600000000 | $1,719,399 | $1,719,399 | $790.92 | | |
| | Total Tax Rate: | 7.8330503944 | | | | | |
| | | | | Taxes w/Current Exemptions: | $13,468.13 | | |
| | | | | Taxes w/o Exemptions: | $13,468.13 | | |
Improvement / Building
| Improvement #1: | RESIDENTIAL | State Code: | Y | 4804.0 sqft | Value: | $1,019,399 |
| Bathrooms: | 4 | Bedrooms: | 0 | | Ceiling: | DRYWALL PAINTED | Exterior Wall/Cover: | STUCCO | | Floor Covering: | CARPET/VINYL 80-20 | Floor Structure: | WOOD W/SUBFLOOR | | Foundation: | CONCRETE | Heating: | FHA GAS | | Interior Finish: | DRYWALL PAINT | Plumbing Fixture Cnt: | 23 | | Roof Slope: | 8" IN 12" | Roof Structure/Cover: | CJ ASPHALT |
|
| | Type | Description | Class CD | Sub Class CD | Year Built | Area |
| | BAS | BASE/MAIN FLOOR | 6 | 0 | 1989 | 4184.0 |
| | UB8 | BASEMENT UNFINISHED 8" | 6 | 0 | 1989 | 873.0 |
| | UPS | UPPER STORY | 6 | 0 | 1989 | 620.0 |
| | OWP | OPEN WOOD PORCH W/STEPS | 6 | 0 | 1989 | 192.0 |
| | DGR | DETACHED GARAGE | 6 | 0 | 1989 | 704.0 |
| | BGR | BASEMENT GARAGE | 6 | 0 | 1989 | 256.0 |
| | OWP | OPEN WOOD PORCH W/STEPS | 6 | 0 | 1989 | 88.0 |
| | OCP | OPEN CARPORT | 6 | 0 | 1989 | 440.0 |
Sketch
Property Image
Land
| 1 | HB | HIGH BLUFF | 10.3900 | 452588.40 | 421.00 | 0.00 | 1.00 | $700,000 | $0 |
Roll Value History
| 2026 | N/A | N/A | N/A | N/A | N/A |
| 2025 | $1,019,399 | $700,000 | $0 | $1,719,399 | $1,719,399 |
| 2024 | $1,032,945 | $675,000 | $0 | $1,707,945 | $1,707,945 |
| 2023 | $1,046,492 | $675,000 | $0 | $1,721,492 | $1,721,492 |
| 2022 | $959,881 | $675,000 | $0 | $1,634,881 | $1,634,881 |
| 2021 | $845,352 | $575,000 | $0 | $1,420,352 | $1,420,352 |
| 2020 | $800,919 | $525,000 | $0 | $1,325,919 | $1,325,919 |
| 2019 | $698,968 | $575,000 | $0 | $1,273,968 | $1,273,968 |
| 2018 | $701,100 | $410,000 | $0 | $1,111,100 | $1,111,100 |
| 2017 | $705,365 | $400,000 | $0 | $1,105,365 | $1,105,365 |
| 2016 | $713,890 | $400,000 | $0 | $1,113,890 | $1,113,890 |
| 2015 | $722,418 | $400,000 | $0 | $1,122,418 | $1,122,418 |
| 2014 | $712,327 | $400,000 | $0 | $1,112,327 | $1,112,327 |
| 2013 | $721,124 | $403,930 | $0 | $1,125,054 | $1,125,054 |
| 2012 | $729,916 | $403,930 | $0 | $1,133,846 | $1,133,846 |
| 2011 | $738,712 | $403,930 | $0 | $1,142,642 | $1,142,642 |
| 2010 | $753,076 | $403,930 | $0 | $1,157,006 | $1,157,006 |
| 2009 | $784,346 | $484,715 | $0 | $1,269,061 | $1,269,061 |
| 2008 | $734,069 | $484,715 | $0 | $1,218,784 | $1,218,784 |
| 2007 | $743,941 | $484,037 | $0 | $1,227,978 | $1,227,978 |
Deed and Sales History
| 1 | 06/04/2025 | QCD | Quit Claim Deed | DRUMEVA, RUMIANA SLATANOVA | DRUMEVA TTEE, RUMIANA SLATANOVA | | | $0.00 | 63745 | 4586811 |
| 2 | 11/30/2020 | WD | Warranty Deed | DEXTER, PETER W | DRUMEVA, RUMIANA SLATANOVA | | | $1,450,000.00 | 46103 | 4505020 |
| 3 | 11/01/1991 | WD | Warranty Deed | KOSSIAN, WILLIAM E | DEXTER, PETER W | | | $595,000.00 | 14093 | 91017559 |
| 4 | 05/01/1989 | EZ | Easement | KOSSIAN, WILLIAM E | KOSSIAN, WILLIAM E | | | $500.00 | 91843 | 89006430 |
| 5 | 12/01/1988 | OTHER | Other - Misc. Documents | KOSSIAN, WILLIAM E | KOSSIAN, WILLIAM E | | | $0.00 | 62975 | 88016119 |
| 6 | 06/01/1988 | WD | Warranty Deed | Unknown | KOSSIAN, WILLIAM E | | | $80,000.00 | 81822 | 88006754 |
Payout Agreement
| No payout information available.. |