Property
Account |
| Property ID: | 633434 | Abbreviated Legal Description: | NW NW EX E348' & EX W450' OF N968' & N700' OF E330' OF W780' EX RD FR 455-073 |
| Geographic ID: | R13208-425-0650 | Agent Code: | |
| Type: | Real | | |
| Tax Area: | 112 - APPRAISER-OH Schl Dist, outside OH, improved, greater than 1 acre | Land Use Code | 83 |
| Open Space: | Y | DFL | N |
| Historic Property: | N | Remodel Property: | N |
| Multi-Family Redevelopment: | N | | |
| Township: | 32 | Section: | 08 |
| Range: | R1 |
Location |
| Address: | 1943 FORT NUGENT DR OAK HARBOR, WA 98277 | Mapsco: | |
| Neighborhood: | Cycle 1 | Map ID: | 110 |
| Neighborhood CD: | 1 |
Owner |
| Name: | HABECK, KARI AMANADA | Owner ID: | 303189 |
| Mailing Address: | TRAVIS ALLEN HABECK 1943 FORT NUGENT RD OAK HARBOR, WA 98277-8885 | % Ownership: | 100.0000000000% |
| | | Exemptions: | |
Taxes and Assessment Details
Values
| (+) Improvement Homesite Value: | + | $0 | |
| (+) Improvement Non-Homesite Value: | + | $597,264 | |
| (+) Land Homesite Value: | + | $0 | |
| (+) Land Non-Homesite Value: | + | $0 | |
| (+) Curr Use (HS): | + | $0 | $0 |
| (+) Curr Use (NHS): | + | $350,000 | $3,332 |
| | | -------------------------- | |
| (=) Market Value: | = | $947,264 | |
| (–) Productivity Loss: | – | $346,668 | |
| | | -------------------------- | |
| (=) Subtotal: | = | $600,596 | |
| (+) Senior Appraised Value: | + | $0 | |
| (+) Non-Senior Appraised Value: | + | $600,596 | |
| | | -------------------------- | |
| (=) Total Appraised Value: | = | $600,596 | |
| (–) Senior Exemption Loss: | – | $0 | |
| (–) Exemption Loss: | – | $0 | |
| | | -------------------------- | |
| (=) Taxable Value: | = | $600,596 | |
Taxing Jurisdiction
| Owner: | HABECK, KARI AMANADA | | |
| % Ownership: | 100.0000000000% | | |
| Total Value: | $947,264 | | |
| Tax Area: | 112 - APPRAISER-OH Schl Dist, outside OH, improved, greater than 1 acre |
| CF | Conservation Futures | 0.0313996660 | $600,596 | $600,596 | $18.86 | | |
| CEM1 | Cemetery #1 | 0.0040018856 | $600,596 | $600,596 | $2.40 | | |
| FIRE2 | Fire & Rescue Dist #2 N Whidbey GEN | 0.5381486274 | $600,596 | $600,596 | $323.21 | | |
| HOBOND | Hospital BOND | 0.1893405597 | $600,596 | $600,596 | $113.72 | | |
| HOGEN | Hospital GEN | 0.3848777722 | $600,596 | $600,596 | $231.16 | | |
| CE | County Current Expense | 0.3674210519 | $600,596 | $600,596 | $220.67 | | |
| CR | County Roads | 0.4614296361 | $600,596 | $600,596 | $277.13 | | |
| ISLANDEMS | Hospital GEN (EMS) | 0.4952018576 | $600,596 | $600,596 | $297.42 | | |
| LIB | Library Sno-Isle GEN | 0.3039084203 | $600,596 | $600,596 | $182.53 | | |
| NWHIDPRMT | P & R N Whidbey GEN | 0.1990272349 | $600,596 | $600,596 | $119.53 | | |
| SCH201MO | School 201 Enrichment | 2.3851112745 | $600,596 | $600,596 | $1,432.49 | | |
| ST | State School | 1.4761226122 | $600,596 | $600,596 | $886.55 | | |
| ST2 | State School Part 2 | 0.7953803475 | $600,596 | $600,596 | $477.70 | | |
| | Total Tax Rate: | 7.6313709459 | | | | | |
| | | | | Taxes w/Current Exemptions: | $4,583.37 | | |
| | | | | Taxes w/o Exemptions: | $4,583.37 | | |
Improvement / Building
| Improvement #1: | RESIDENTIAL | State Code: | Y | 2637.0 sqft | Value: | $597,264 |
| Bathrooms: | 2.5 | Bedrooms: | 4 | | Ceiling: | DRYWALL PAINTED | Exterior Wall/Cover: | CEMENT FIBER | | Floor Covering: | VINYL 100% | Floor Structure: | SLAB ON GRADE | | Foundation: | CONCRETE | Heating: | RADIANT FLOOR | | Interior Finish: | DRYWALL PAINT | Plumbing Fixture Cnt: | 15 | | Roof Slope: | 6" IN 12" | Roof Structure/Cover: | CJ ASPHALT |
|
| | Type | Description | Class CD | Sub Class CD | Year Built | Area |
| | BAS | BASE/MAIN FLOOR | 4 | 0 | 2021 | 2637.0 |
| | AGR | ATTACHED GARAGE | 4 | 0 | 2021 | 915.0 |
| | OP4 | OPEN PORCH W/CEILING-ROOF | 4 | 0 | 2021 | 175.5 |
| | OP3 | OPEN PORCH W/ROOF | 4 | 0 | 2021 | 198.0 |
| | UTY | STORAGE/UTILITY | 4 | 0 | 2021 | 120.0 |
Sketch
Property Image
Land
| 1 | 83 | OPEN AGRICULTURE | 12.7100 | 553647.60 | 0.00 | 0.00 | 1.00 | $130,000 | $3,090 |
| 2 | HS | HOMESITE | 1.0000 | 43560.00 | 0.00 | 0.00 | 1.00 | $220,000 | $242 |
Roll Value History
| 2026 | N/A | N/A | N/A | N/A | N/A |
| 2025 | $597,264 | $350,000 | $3,332 | $600,596 | $600,596 |
| 2024 | $602,005 | $310,000 | $3,330 | $605,335 | $605,335 |
| 2023 | $608,325 | $290,000 | $3,330 | $611,655 | $611,655 |
| 2022 | $560,883 | $270,000 | $3,330 | $564,213 | $564,213 |
| 2021 | $106,695 | $255,000 | $3,330 | $110,025 | $110,025 |
| 2020 | $0 | $160,000 | $3,330 | $3,330 | $3,330 |
| 2019 | $0 | $160,000 | $3,330 | $3,330 | $3,330 |
| 2018 | $0 | $150,000 | $3,330 | $3,330 | $3,330 |
| 2017 | $0 | $150,000 | $3,330 | $3,330 | $3,330 |
| 2016 | $0 | $130,000 | $3,330 | $3,330 | $3,330 |
| 2015 | $0 | $130,000 | $3,330 | $3,330 | $3,330 |
| 2014 | $0 | $120,000 | $3,330 | $3,330 | $3,330 |
| 2013 | $0 | $151,496 | $3,330 | $3,330 | $3,330 |
| 2012 | $0 | $151,496 | $3,330 | $3,330 | $3,330 |
| 2011 | $0 | $178,230 | $3,330 | $3,330 | $3,330 |
| 2010 | $0 | $178,230 | $3,330 | $3,330 | $3,330 |
| 2009 | $0 | $205,650 | $3,330 | $3,330 | $3,330 |
| 2008 | $0 | $171,375 | $3,330 | $3,330 | $3,330 |
| 2007 | $0 | $143,955 | $3,330 | $3,330 | $3,330 |
Deed and Sales History
| 1 | 02/26/2021 | QCD | Quit Claim Deed | HABECK, KARI A | HABECK, KARI AMANADA | | | $0.00 | 52001 | 4539985 |
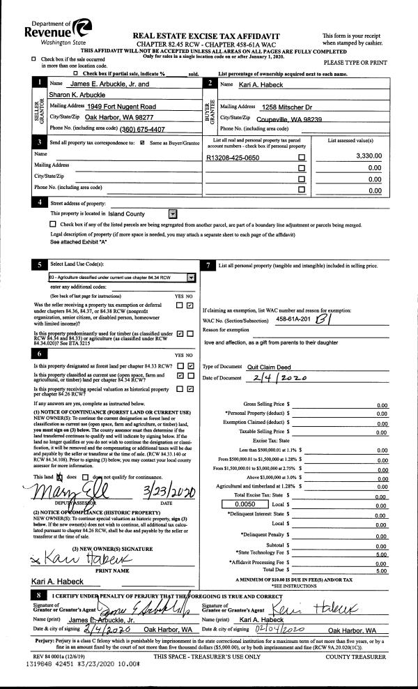
| 2 | 02/04/2020 | QCD | Quit Claim Deed | ARBUCKLE, SHARON K | HABECK, KARI A | | | $0.00 | 42451 | 4483453 |
| 3 | 12/01/1991 | WD | Warranty Deed | LAFERRIERE, BETTY A | ARBUCKLE, JAMES E | | | $0.00 | 14336 | 91019008 |
| 4 | 02/01/1989 | OTHER | Other - Misc. Documents | LAFERRIERE, BETTY A | LAFERRIERE, BETTY A | | | $0.00 | 63037 | 89000540 |
| 5 | 06/01/1986 | OTHER | Other - Misc. Documents | Unknown | LAFERRIERE, BETTY A | | | $0.00 | 61632 | 86003939 |
Payout Agreement
| No payout information available.. |