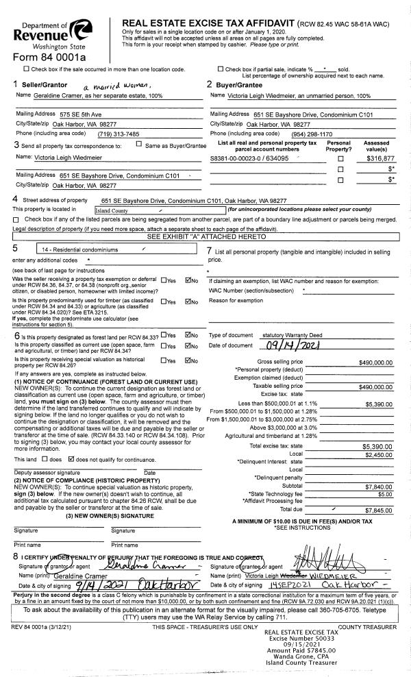
Property
Account |
| Property ID: | 634095 | Abbreviated Legal Description: | WATERSIDE CONDO APT 23 2.61% INT |
| Geographic ID: | S8381-00-00023-0 | Agent Code: | |
| Type: | Real | | |
| Tax Area: | 100 - APPRAISER-OH Schl Dist, in OH | Land Use Code | 14 |
| Open Space: | N | DFL | N |
| Historic Property: | N | Remodel Property: | N |
| Multi-Family Redevelopment: | N | | |
| Township: | | Section: | |
| Range: | |
Location |
| Address: | 651 SE BAYSHORE DR UNIT C101 OAK HARBOR, WA 98277 | Mapsco: | |
| Neighborhood: | 12*OH-waterside | Map ID: | 86 |
| Neighborhood CD: | 12*OHwtrsd |
Owner |
| Name: | WIEDMEIER, VICTORIA LEIGH | Owner ID: | 301161 |
| Mailing Address: | 1509 ADELAIDE ST WESTLAKE, OH 44145-2469 | % Ownership: | 100.0000000000% |
| | | Exemptions: | |
Taxes and Assessment Details
Values
| (+) Improvement Homesite Value: | + | $0 | |
| (+) Improvement Non-Homesite Value: | + | $320,307 | |
| (+) Land Homesite Value: | + | $0 | |
| (+) Land Non-Homesite Value: | + | $130,000 | |
| (+) Curr Use (HS): | + | $0 | $0 |
| (+) Curr Use (NHS): | + | $0 | $0 |
| | | -------------------------- | |
| (=) Market Value: | = | $450,307 | |
| (–) Productivity Loss: | – | $0 | |
| | | -------------------------- | |
| (=) Subtotal: | = | $450,307 | |
| (+) Senior Appraised Value: | + | $0 | |
| (+) Non-Senior Appraised Value: | + | $450,307 | |
| | | -------------------------- | |
| (=) Total Appraised Value: | = | $450,307 | |
| (–) Senior Exemption Loss: | – | $0 | |
| (–) Exemption Loss: | – | $0 | |
| | | -------------------------- | |
| (=) Taxable Value: | = | $450,307 | |
Taxing Jurisdiction
| Owner: | WIEDMEIER, VICTORIA LEIGH | | |
| % Ownership: | 100.0000000000% | | |
| Total Value: | $450,307 | | |
| Tax Area: | 100 - APPRAISER-OH Schl Dist, in OH |
| CF | Conservation Futures | 0.0313996660 | $450,307 | $450,307 | $14.14 | | |
| CEM1 | Cemetery #1 | 0.0040018856 | $450,307 | $450,307 | $1.80 | | |
| COH | City of Oak Harbor | 2.3090730572 | $450,307 | $450,307 | $1,039.79 | | |
| OAKBOND | City of Oak Harbor BOND | 0.1902260131 | $450,307 | $450,307 | $85.66 | | |
| HOBOND | Hospital BOND | 0.1893405597 | $450,307 | $450,307 | $85.26 | | |
| HOGEN | Hospital GEN | 0.3848777722 | $450,307 | $450,307 | $173.31 | | |
| CE | County Current Expense | 0.3674210519 | $450,307 | $450,307 | $165.45 | | |
| ISLANDEMS | Hospital GEN (EMS) | 0.4952018576 | $450,307 | $450,307 | $222.99 | | |
| LIB | Library Sno-Isle GEN | 0.3039084203 | $450,307 | $450,307 | $136.85 | | |
| NWHIDPRMT | P & R N Whidbey GEN | 0.1990272349 | $450,307 | $450,307 | $89.62 | | |
| SCH201MO | School 201 Enrichment | 2.3851112745 | $450,307 | $450,307 | $1,074.03 | | |
| ST | State School | 1.4761226122 | $450,307 | $450,307 | $664.71 | | |
| ST2 | State School Part 2 | 0.7953803475 | $450,307 | $450,307 | $358.17 | | |
| | Total Tax Rate: | 9.1310917527 | | | | | |
| | | | | Taxes w/Current Exemptions: | $4,111.78 | | |
| | | | | Taxes w/o Exemptions: | $4,111.78 | | |
Improvement / Building
| Improvement #1: | RESIDENTIAL | State Code: | Y | 1984.0 sqft | Value: | $320,307 |
| Bathrooms: | 2 | Bedrooms: | 2 | | Ceiling: | DRYWALL PAINTED | Exterior Wall/Cover: | WOOD SIDING | | Floor Covering: | CARPET/VINYL 80-20 | Floor Structure: | WOOD W/SUBFLOOR | | Foundation: | SLAB/CONCRETE | Heating: | FHA GAS | | Interior Finish: | DRYWALL PAINT | Plumbing Fixture Cnt: | 10 | | Roof Slope: | 5" IN 12" | Roof Structure/Cover: | CJ ASPHALT |
|
| | Type | Description | Class CD | Sub Class CD | Year Built | Area |
| | BAS | BASE/MAIN FLOOR | 3 | 0 | 1988 | 1984.0 |
| | BIG | BUILT IN GARAGE | 3 | 0 | 1988 | 0.0 |
| | OWP | OPEN WOOD PORCH W/STEPS | 3 | 0 | 1988 | 32.0 |
| | oELV | ELEVATOR | 3 | 0 | 1988 | 0.0 |
| | OWP | OPEN WOOD PORCH W/STEPS | 3 | 0 | 1988 | 0.0 |
| | oPV1 | PV/ASPH 2" | 3 | 0 | 1988 | 0.0 |
Sketch
Property Image
Land
| 1 | 61 | MULTIPLE RESIDENCES | 0.0000 | 1627.00 | 0.00 | 0.00 | 1.00 | $130,000 | $0 |
Roll Value History
| 2026 | N/A | N/A | N/A | N/A | N/A |
| 2025 | $320,307 | $130,000 | $0 | $450,307 | $450,307 |
| 2024 | $323,891 | $130,000 | $0 | $453,891 | $453,891 |
| 2023 | $313,139 | $130,000 | $0 | $443,139 | $443,139 |
| 2022 | $288,864 | $110,000 | $0 | $398,864 | $398,864 |
| 2021 | $256,877 | $60,000 | $0 | $316,877 | $316,877 |
| 2020 | $251,056 | $70,000 | $0 | $321,056 | $321,056 |
| 2019 | $196,362 | $85,000 | $0 | $281,362 | $281,362 |
| 2018 | $196,873 | $65,000 | $0 | $261,873 | $261,873 |
| 2017 | $196,935 | $21,688 | $0 | $218,623 | $218,623 |
| 2016 | $199,597 | $21,688 | $0 | $221,285 | $221,285 |
| 2015 | $202,258 | $21,688 | $0 | $223,946 | $223,946 |
| 2014 | $204,921 | $21,688 | $0 | $226,609 | $226,609 |
| 2013 | $162,735 | $21,688 | $0 | $184,423 | $184,423 |
| 2012 | $162,735 | $21,688 | $0 | $184,423 | $184,423 |
| 2011 | $162,735 | $21,688 | $0 | $184,423 | $184,423 |
| 2010 | $160,334 | $21,688 | $0 | $182,022 | $182,022 |
| 2009 | $215,935 | $38,641 | $0 | $254,576 | $254,576 |
| 2008 | $213,576 | $57,498 | $0 | $271,074 | $271,074 |
| 2007 | $216,243 | $57,498 | $0 | $273,741 | $273,741 |
Deed and Sales History
| 1 | 09/14/2021 | WD | Warranty Deed | CRAMER, GERALDINE | WIEDMEIER, VICTORIA LEIGH | | | $490,000.00 | 50033 | 4529133 |
| 2 | 07/03/2019 | QCD | Quit Claim Deed | MORRIS, LEMUEL E | CRAMER, GERALDINE | | | $0.00 | 39416 | 4467296 |
| 3 | 10/27/2017 | WD | Warranty Deed | SWASS TRUSTEE, HELEN R | MORRIS, LEMUEL E | | | $265,000.00 | 31737 | 4433191 |
| 4 | 09/27/2002 | QCD | Quit Claim Deed | SWASS, HELEN R | SWASS TRUSTEE, HELEN R | | | $0.00 | 23905 | 4032909 |
| 5 | 03/10/2000 | WD | Warranty Deed | SHELDON, JAMES E | SWASS, HELEN R | | | $210,000.00 | 972 | 2000474 |
| 6 | 03/10/2000 | WD | Warranty Deed | SHELDON, JAMES E | SHELDON, JAMES E | | | $210,000.00 | 972 | 20004741 |
| 7 | 10/01/1988 | WD | Warranty Deed | PROMINENT, PROPERTIES | SHELDON, JAMES E | | | $133,500.00 | 83554 | 88013306 |
| 8 | 01/01/1900 | OTHER | Other - Misc. Documents | Unknown | PROMINENT, PROPERTIES | | | $0.00 | 0 | 0 |
Payout Agreement
| No payout information available.. |