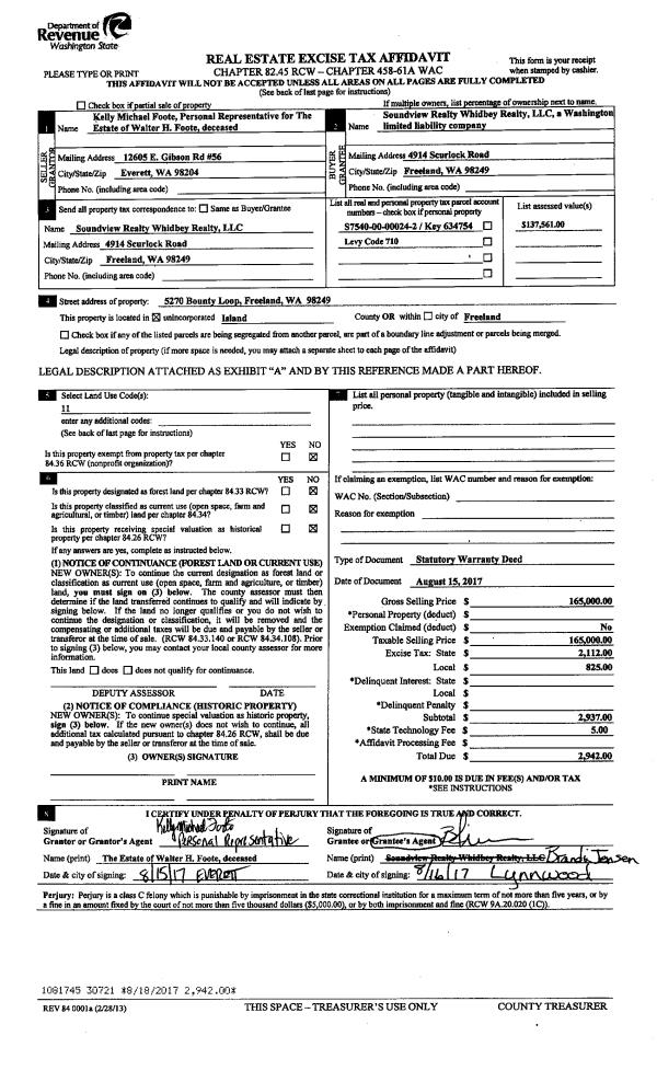
Property
Account |
| Property ID: | 634754 | Abbreviated Legal Description: | MUTINY BAY PK 1 LOT 2 SP 88-24.S7540.00-00024-0 V2 SP P193 AF#89003403 EX: BG SWCR SD LOT 2 N89*E40' N9*W271.29' TO NWCR SD LOT 2 S268.14' TPB |
| Geographic ID: | S7540-00-00024-2 | Agent Code: | |
| Type: | Real | | |
| Tax Area: | 710 - APPRAISER-S Whid Schl Dist, outside Langley, improved & 1 acre or less | Land Use Code | 11 |
| Open Space: | N | DFL | N |
| Historic Property: | N | Remodel Property: | N |
| Multi-Family Redevelopment: | N | | |
| Township: | | Section: | |
| Range: | |
Location |
| Address: | 5270 BOUNTY LOOP FREELAND, WA 98249 | Mapsco: | |
| Neighborhood: | Cycle 3 | Map ID: | 291 |
| Neighborhood CD: | 3 |
Owner |
| Name: | JONES, KENNETH A | Owner ID: | 257111 |
| Mailing Address: | BOX 572 LANGLEY, WA 98260 | % Ownership: | 100.0000000000% |
| | | Exemptions: | |
Taxes and Assessment Details
Values
| (+) Improvement Homesite Value: | + | $0 | |
| (+) Improvement Non-Homesite Value: | + | $86,750 | |
| (+) Land Homesite Value: | + | $0 | |
| (+) Land Non-Homesite Value: | + | $250,000 | |
| (+) Curr Use (HS): | + | $0 | $0 |
| (+) Curr Use (NHS): | + | $0 | $0 |
| | | -------------------------- | |
| (=) Market Value: | = | $336,750 | |
| (–) Productivity Loss: | – | $0 | |
| | | -------------------------- | |
| (=) Subtotal: | = | $336,750 | |
| (+) Senior Appraised Value: | + | $0 | |
| (+) Non-Senior Appraised Value: | + | $336,750 | |
| | | -------------------------- | |
| (=) Total Appraised Value: | = | $336,750 | |
| (–) Senior Exemption Loss: | – | $0 | |
| (–) Exemption Loss: | – | $0 | |
| | | -------------------------- | |
| (=) Taxable Value: | = | $336,750 | |
Taxing Jurisdiction
| Owner: | JONES, KENNETH A | | |
| % Ownership: | 100.0000000000% | | |
| Total Value: | $336,750 | | |
| Tax Area: | 710 - APPRAISER-S Whid Schl Dist, outside Langley, improved & 1 acre or less |
| CF | Conservation Futures | 0.0313996660 | $336,750 | $336,750 | $10.57 | | |
| FIRE3 | Fire & Rescue Dist #3 S Whidbey GEN | 1.2130821753 | $336,750 | $336,750 | $408.51 | | |
| HOBOND | Hospital BOND | 0.1893405597 | $336,750 | $336,750 | $63.76 | | |
| HOGEN | Hospital GEN | 0.3848777722 | $336,750 | $336,750 | $129.61 | | |
| CE | County Current Expense | 0.3674210519 | $336,750 | $336,750 | $123.73 | | |
| CR | County Roads | 0.4614296361 | $336,750 | $336,750 | $155.39 | | |
| ISLANDEMS | Hospital GEN (EMS) | 0.4952018576 | $336,750 | $336,750 | $166.76 | | |
| LIB | Library Sno-Isle GEN | 0.3039084203 | $336,750 | $336,750 | $102.34 | | |
| PORTWHID | Port of S Whidbey GEN | 0.1086004714 | $336,750 | $336,750 | $36.57 | | |
| SCH206BOND | School 206 BOND | 0.5960237832 | $336,750 | $336,750 | $200.71 | | |
| SCH206CAP | School 206 CP | 0.3066144020 | $336,750 | $336,750 | $103.25 | | |
| SCH206MO | School 206 Enrichment | 0.4808755445 | $336,750 | $336,750 | $161.93 | | |
| ST | State School | 1.4761226122 | $336,750 | $336,750 | $497.08 | | |
| ST2 | State School Part 2 | 0.7953803475 | $336,750 | $336,750 | $267.84 | | |
| SWHIDPRBD | P & R S Whidbey BOND | 0.0144185398 | $336,750 | $336,750 | $4.86 | | |
| SWHIDPRBD3 | P & R S Whidbey BOND3 | 0.1483535547 | $336,750 | $336,750 | $49.96 | | |
| SWHIDPRMT | P & R S Whidbey GEN | 0.4600000000 | $336,750 | $336,750 | $154.91 | | |
| | Total Tax Rate: | 7.8330503944 | | | | | |
| | | | | Taxes w/Current Exemptions: | $2,637.78 | | |
| | | | | Taxes w/o Exemptions: | $2,637.78 | | |
Improvement / Building
| Improvement #1: | MANUFACTURED HOME | State Code: | Y | 960.0 sqft | Value: | $86,750 |
| Bathrooms: | 0 | Bedrooms: | 0 | | Ceiling: | PLASTER PAINTED | Cooling: | EVAP NO DUCT | | Exterior Wall/Cover: | VINYL | Floor Covering: | CARPET 100% | | Floor Structure: | SLAB ON GRADE | Foundation: | SLAB | | Heating: | FHA ELECTRIC | Interior Finish: | PLASTER | | Plumbing Fixture Cnt: | 1 | Roof Slope: | FLAT | | Roof Structure/Cover: | CJ ALUMINIUM HEAVY |   |   |
|
| | Type | Description | Class CD | Sub Class CD | Year Built | Area |
| | BAS | BASE/MAIN FLOOR | 3 | 0 | 1989 | 960.0 |
| | OWR | OPEN WOOD PORCH W/STEPS/ROOF | 3 | 0 | 1989 | 180.0 |
| | DGR | DETACHED GARAGE | 3 | 0 | 1989 | 616.0 |
| | OWR | OPEN WOOD PORCH W/STEPS/ROOF | 3 | 0 | 1989 | 180.0 |
| | UTY | STORAGE/UTILITY | 3 | 0 | 1989 | 256.0 |
Sketch
Property Image
Land
| 1 | 17 | AC (01.01-02.00) | 0.0000 | 0.00 | 0.00 | 0.00 | 1.00 | $250,000 | $0 |
Roll Value History
| 2026 | N/A | N/A | N/A | N/A | N/A |
| 2025 | $86,750 | $250,000 | $0 | $336,750 | $336,750 |
| 2024 | $89,462 | $230,000 | $0 | $319,462 | $319,462 |
| 2023 | $92,172 | $230,000 | $0 | $322,172 | $322,172 |
| 2022 | $85,924 | $200,000 | $0 | $285,924 | $285,924 |
| 2021 | $76,851 | $150,000 | $0 | $226,851 | $226,851 |
| 2020 | $75,639 | $135,000 | $0 | $210,639 | $210,639 |
| 2019 | $61,212 | $190,000 | $0 | $251,212 | $251,212 |
| 2018 | $62,843 | $120,000 | $0 | $182,843 | $182,843 |
| 2017 | $36,558 | $100,000 | $0 | $136,558 | $136,558 |
| 2016 | $37,561 | $100,000 | $0 | $137,561 | $137,561 |
| 2015 | $38,563 | $100,000 | $0 | $138,563 | $45,606 |
| 2014 | $40,066 | $100,000 | $0 | $140,066 | $45,606 |
| 2013 | $56,843 | $65,000 | $0 | $121,843 | $45,606 |
| 2012 | $57,803 | $72,250 | $0 | $130,053 | $45,606 |
| 2011 | $58,764 | $85,000 | $0 | $143,764 | $45,606 |
| 2010 | $55,926 | $85,000 | $0 | $140,926 | $45,606 |
| 2009 | $57,981 | $100,000 | $0 | $157,981 | $45,606 |
| 2008 | $59,083 | $100,600 | $0 | $159,683 | $45,606 |
| 2007 | $49,820 | $100,000 | $0 | $149,820 | $41,409 |
Deed and Sales History
| 1 | 05/14/2018 | WD | Warranty Deed | SOUNDVIEW REALTY WHIDBEY REALTY, LLC | JONES, KENNETH A | | | $260,000.00 | 34162 | 4444721 |
| 2 | 08/15/2017 | WD | Warranty Deed | FOOTE, WALTER H | SOUNDVIEW REALTY WHIDBEY REALTY, LLC | | | $165,000.00 | 30721 | 4428501 |
| 3 | 07/23/1999 | BLA | DNU - Boundary Line Adjustment | FOOTE, WALTER H | FOOTE, WALTER H | | | $0.00 | 68377 | 99001530 |
| 4 | 12/30/1998 | ESTSEPPROP | Establish Separate Property | FOOTE, WALTER H | FOOTE, WALTER H | | | $0.00 | 90505 | 99003439 |
| 5 | 10/01/1996 | OTHER | Other - Misc. Documents | FOOTE, WALTER H | FOOTE, WALTER H | | | $26,975.00 | 63522 | 0 |
| 6 | 09/01/1996 | WD | Warranty Deed | JOHNSON, NANCY G | FOOTE, WALTER H | | | $78,025.00 | 63520 | 96017231 |
| 7 | 09/01/1996 | ESTSEPPROP | Establish Separate Property | FOOTE, WALTER H | FOOTE, WALTER H | | | $0.00 | 63521 | 96017232 |
| 8 | 12/01/1991 | WD | Warranty Deed | LOEVER, HANS K | JOHNSON, NANCY G | | | $43,500.00 | 14583 | 91020044 |
| 9 | 08/01/1990 | WD | Warranty Deed | DYNGEN, JOHN | LOEVER, HANS K | | | $42,500.00 | 4437 | 90014617 |
| 10 | 01/01/1900 | OTHER | Other - Misc. Documents | Unknown | DYNGEN, JOHN | | | $0.00 | 4017 | 376992 |
Payout Agreement
| No payout information available.. |