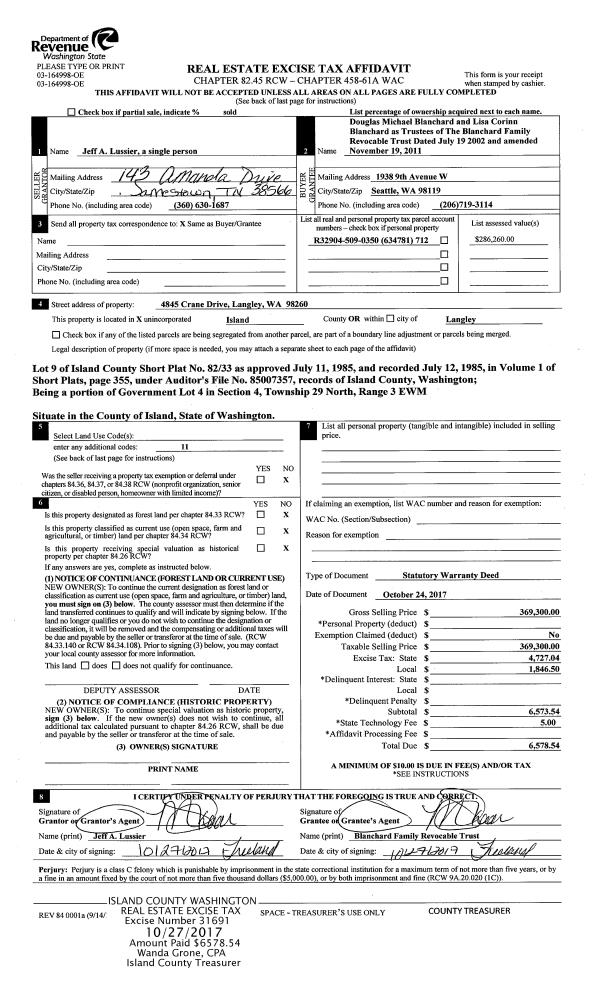
Property
Account |
| Property ID: | 634781 | Abbreviated Legal Description: | REPLACES 32905-509-0350 LOT 9 SP 82-33.32905.503-5230 V1 SP P355 AF#85007357 |
| Geographic ID: | R32904-509-0350 | Agent Code: | |
| Type: | Real | | |
| Tax Area: | 712 - APPRAISER-S Whid Schl Dist, outside Langley, improved, greater than 1 acre | Land Use Code | 11 |
| Open Space: | N | DFL | N |
| Historic Property: | N | Remodel Property: | N |
| Multi-Family Redevelopment: | N | | |
| Township: | 29 | Section: | 04 |
| Range: | R3 |
Location |
| Address: | 4845 CRANE DR LANGLEY, WA 98260 | Mapsco: | |
| Neighborhood: | Cycle 4 | Map ID: | 730 |
| Neighborhood CD: | 4 |
Owner |
| Name: | BLANCHARD TRUSTEE, DOUGLAS MICHAEL | Owner ID: | 282686 |
| Mailing Address: | LISA CORINN BLANCHARD TRUSTEE 4845 CRANE DR LANGLEY, WA 98260 | % Ownership: | 100.0000000000% |
| | | Exemptions: | |
Taxes and Assessment Details
Values
| (+) Improvement Homesite Value: | + | $0 | |
| (+) Improvement Non-Homesite Value: | + | $279,766 | |
| (+) Land Homesite Value: | + | $0 | |
| (+) Land Non-Homesite Value: | + | $310,000 | |
| (+) Curr Use (HS): | + | $0 | $0 |
| (+) Curr Use (NHS): | + | $0 | $0 |
| | | -------------------------- | |
| (=) Market Value: | = | $589,766 | |
| (–) Productivity Loss: | – | $0 | |
| | | -------------------------- | |
| (=) Subtotal: | = | $589,766 | |
| (+) Senior Appraised Value: | + | $0 | |
| (+) Non-Senior Appraised Value: | + | $589,766 | |
| | | -------------------------- | |
| (=) Total Appraised Value: | = | $589,766 | |
| (–) Senior Exemption Loss: | – | $0 | |
| (–) Exemption Loss: | – | $0 | |
| | | -------------------------- | |
| (=) Taxable Value: | = | $589,766 | |
Taxing Jurisdiction
| Owner: | BLANCHARD TRUSTEE, DOUGLAS MICHAEL | | |
| % Ownership: | 100.0000000000% | | |
| Total Value: | $589,766 | | |
| Tax Area: | 712 - APPRAISER-S Whid Schl Dist, outside Langley, improved, greater than 1 acre |
| CF | Conservation Futures | 0.0313996660 | $589,766 | $589,766 | $18.52 | | |
| FIRE3 | Fire & Rescue Dist #3 S Whidbey GEN | 1.2130821753 | $589,766 | $589,766 | $715.43 | | |
| HOBOND | Hospital BOND | 0.1893405597 | $589,766 | $589,766 | $111.67 | | |
| HOGEN | Hospital GEN | 0.3848777722 | $589,766 | $589,766 | $226.99 | | |
| CE | County Current Expense | 0.3674210519 | $589,766 | $589,766 | $216.69 | | |
| CR | County Roads | 0.4614296361 | $589,766 | $589,766 | $272.14 | | |
| ISLANDEMS | Hospital GEN (EMS) | 0.4952018576 | $589,766 | $589,766 | $292.05 | | |
| LIB | Library Sno-Isle GEN | 0.3039084203 | $589,766 | $589,766 | $179.23 | | |
| PORTWHID | Port of S Whidbey GEN | 0.1086004714 | $589,766 | $589,766 | $64.05 | | |
| SCH206BOND | School 206 BOND | 0.5960237832 | $589,766 | $589,766 | $351.51 | | |
| SCH206CAP | School 206 CP | 0.3066144020 | $589,766 | $589,766 | $180.83 | | |
| SCH206MO | School 206 Enrichment | 0.4808755445 | $589,766 | $589,766 | $283.60 | | |
| ST | State School | 1.4761226122 | $589,766 | $589,766 | $870.57 | | |
| ST2 | State School Part 2 | 0.7953803475 | $589,766 | $589,766 | $469.09 | | |
| SWHIDPRBD | P & R S Whidbey BOND | 0.0144185398 | $589,766 | $589,766 | $8.50 | | |
| SWHIDPRBD3 | P & R S Whidbey BOND3 | 0.1483535547 | $589,766 | $589,766 | $87.49 | | |
| SWHIDPRMT | P & R S Whidbey GEN | 0.4600000000 | $589,766 | $589,766 | $271.29 | | |
| | Total Tax Rate: | 7.8330503944 | | | | | |
| | | | | Taxes w/Current Exemptions: | $4,619.65 | | |
| | | | | Taxes w/o Exemptions: | $4,619.65 | | |
Improvement / Building
| Improvement #1: | RESIDENTIAL | State Code: | Y | 989.0 sqft | Value: | $279,766 |
| Bathrooms: | 2 | Bedrooms: | 2 | | Ceiling: | DRYWALL PAINTED | Exterior Wall/Cover: | WOOD SIDING | | Floor Covering: | SOFTWOOD 100% | Floor Structure: | WOOD W/SUBFLOOR | | Foundation: | CONCRETE | Heating: | WALL HEAT ELECTRIC | | Interior Finish: | DRYWALL PAINT | Plumbing Fixture Cnt: | 9 | | Roof Slope: | 6" IN 12" | Roof Structure/Cover: | CJ ASPHALT |
|
| | Type | Description | Class CD | Sub Class CD | Year Built | Area |
| | BAS | BASE/MAIN FLOOR | 3 | 0 | 1993 | 989.0 |
| | AGR | ATTACHED GARAGE | 3 | 0 | 1993 | 504.0 |
| | OWP | OPEN WOOD PORCH W/STEPS | 3 | 0 | 1993 | 30.0 |
| | OWP | OPEN WOOD PORCH W/STEPS | 3 | 0 | 1993 | 174.0 |
| | OWP | OPEN WOOD PORCH W/STEPS | 3 | 0 | 1993 | 41.3 |
| | CPD | OPEN CARPORT DIRT FLOOR | 3 | 0 | 1993 | 272.0 |
| | UTY | STORAGE/UTILITY | 3 | 0 | 1993 | 396.0 |
| | CPD | OPEN CARPORT DIRT FLOOR | 3 | 0 | 1993 | 256.0 |
| | CPD | OPEN CARPORT DIRT FLOOR | 3 | 0 | 1993 | 256.0 |
| | oPOL | POLE BARN | 3 | 0 | 1993 | 560.0 |
Sketch
Property Image
Land
| 1 | 18 | AC (02.01-03.00) | 0.0000 | 0.00 | 0.00 | 0.00 | 1.00 | $310,000 | $0 |
Roll Value History
| 2026 | N/A | N/A | N/A | N/A | N/A |
| 2025 | $279,766 | $310,000 | $0 | $589,766 | $589,766 |
| 2024 | $282,801 | $300,000 | $0 | $582,801 | $582,801 |
| 2023 | $270,834 | $330,000 | $0 | $600,834 | $600,834 |
| 2022 | $247,305 | $270,000 | $0 | $517,305 | $517,305 |
| 2021 | $216,970 | $190,000 | $0 | $406,970 | $406,970 |
| 2020 | $201,937 | $190,000 | $0 | $391,937 | $391,937 |
| 2019 | $141,776 | $240,000 | $0 | $381,776 | $381,776 |
| 2018 | $142,172 | $180,000 | $0 | $322,172 | $322,172 |
| 2017 | $106,260 | $180,000 | $0 | $286,260 | $286,260 |
| 2016 | $107,638 | $125,000 | $0 | $232,638 | $232,638 |
| 2015 | $109,020 | $100,000 | $0 | $209,020 | $209,020 |
| 2014 | $104,433 | $95,000 | $0 | $199,433 | $199,433 |
| 2013 | $105,771 | $95,000 | $0 | $200,771 | $200,771 |
| 2012 | $107,111 | $97,750 | $0 | $204,861 | $204,861 |
| 2011 | $120,145 | $115,000 | $0 | $235,145 | $235,145 |
| 2010 | $125,869 | $115,000 | $0 | $240,869 | $240,869 |
| 2009 | $131,223 | $155,000 | $0 | $286,223 | $286,223 |
| 2008 | $133,172 | $170,000 | $0 | $303,172 | $303,172 |
| 2007 | $121,944 | $182,917 | $0 | $304,861 | $304,861 |
Deed and Sales History
| 1 | 10/24/2017 | WD | Warranty Deed | LUSSIER, JEFF A | BLANCHARD TRUSTEE, DOUGLAS MICHAEL | | | $369,300.00 | 31691 | 4432946 |
| 2 | 10/03/2011 | ESTSEPPROP | Establish Separate Property | LUSSIER, JEFF A | LUSSIER, JEFF A | | | $0.00 | 5742 | 4302408 |
| 3 | 09/29/2011 | BARGSLD | Bargain And Sale Deed | CITIBANK N A TRUSTEE FOR BEAR STEARNS ALT A TURST 2006-4 | LUSSIER, JEFF A | | | $162,000.00 | 5741 | 4302407 |
| 4 | 01/21/2011 | TRUSTEED | Trustee's Deed | MATHENY, JIM D | CITIBANK N A TRUSTEE FOR BEAR STEARNS ALT A TURST 2006-4 | | | $290,540.00 | 3478 | 4289606 |
| 5 | 05/10/2006 | WD | Warranty Deed | KEVIL, MARY K | MATHENY, JIM D | | | $340,000.00 | 62173 | 4170780 |
| 6 | 11/01/1992 | WD | Warranty Deed | BEATY, KEVIN R | KEVIL, MARY K | | | $40,000.00 | 24703 | 92023156 |
| 7 | 12/01/1989 | WD | Warranty Deed | GUNNAR, KEITH | BEATY, KEVIN R | | | $28,500.00 | 67 | 90000191 |
| 8 | 04/01/1982 | QCD | Quit Claim Deed | Unknown | GUNNAR, KEITH | | | $0.00 | 32636 | 414903 |
Payout Agreement
| No payout information available.. |