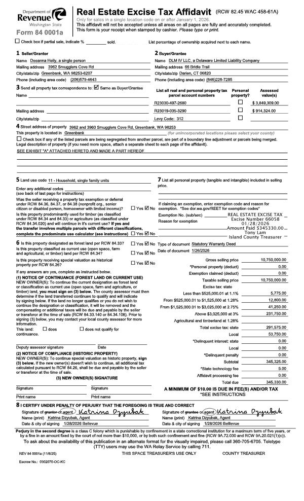
Property
Account |
| Property ID: | 63479 | Abbreviated Legal Description: | 7 - SE SE LY W OF CO RD & S/2 SW SE LY W OF CO RD EX N20' ALSO EX: BG S/4 CR SD SEC 19 N0*E225' N87*E150' S32*E258.06'TO SLN SE & WLY R/W 60'EZ AF#106872 S87*W 291.07'TPB SUB EZS EX CORD |
| Geographic ID: | R23019-035-3290 | Agent Code: | |
| Type: | Real | | |
| Tax Area: | 312 - APPRAISER-Cpvl Schl Dist, outside Cpvl, improved, greater than 1 acre | Land Use Code | 11 |
| Open Space: | N | DFL | N |
| Historic Property: | N | Remodel Property: | N |
| Multi-Family Redevelopment: | N | | |
| Township: | 30 | Section: | 19 |
| Range: | R2 |
Location |
| Address: | 3960 SMUGGLERS COVE RD GREENBANK, WA 98253 | Mapsco: | |
| Neighborhood: | Cycle 3 | Map ID: | 393 |
| Neighborhood CD: | 3 |
Owner |
| Name: | DLM IV LLC | Owner ID: | 319505 |
| Mailing Address: | 66 BRIDLE TRAIL DARIEN, CT 06820 | % Ownership: | 100.0000000000% |
| | | Exemptions: | |
Taxes and Assessment Details
Values
| (+) Improvement Homesite Value: | + | N/A | |
| (+) Improvement Non-Homesite Value: | + | N/A | |
| (+) Land Homesite Value: | + | N/A | |
| (+) Land Non-Homesite Value: | + | N/A | Ag / Timber Use Value |
| (+) Curr Use (HS): | + | N/A | N/A |
| (+) Curr Use (NHS): | + | N/A | N/A |
| | | -------------------------- | |
| (=) Market Value: | = | N/A | |
| (–) Productivity Loss: | – | N/A | |
| | | -------------------------- | |
| (=) Subtotal: | = | N/A | |
| (+) Senior Appraised Value: | + | N/A | |
| (+) Non-Senior Appraised Value: | + | N/A | |
| | | -------------------------- | |
| (=) Total Appraised Value: | = | N/A | |
| (–) Senior Exemption Loss: | – | N/A | |
| (–) Exemption Loss: | – | N/A | |
| | | -------------------------- | |
| (=) Taxable Value: | = | N/A | |
Taxing Jurisdiction
| Owner: | DLM IV LLC | | |
| % Ownership: | 100.0000000000% | | |
| Total Value: | N/A | | |
| Tax Area: | 312 - APPRAISER-Cpvl Schl Dist, outside Cpvl, improved, greater than 1 acre |
| CF | Conservation Futures | N/A | N/A | N/A | N/A | | |
| WCD | Whidbey Conservation District | N/A | N/A | N/A | N/A | | |
| CEM2 | Cemetery #2 | N/A | N/A | N/A | N/A | | |
| FIRE5 | Fire & Rescue Dist #5 C Whidbey GEN | N/A | N/A | N/A | N/A | | |
| FIRE5BOND | Fire & Rescue Dist #5 C Whidbey BOND | N/A | N/A | N/A | N/A | | |
| HOBOND | Hospital BOND | N/A | N/A | N/A | N/A | | |
| HOGEN | Hospital GEN | N/A | N/A | N/A | N/A | | |
| CE | County Current Expense | N/A | N/A | N/A | N/A | | |
| CR | County Roads | N/A | N/A | N/A | N/A | | |
| ISLANDEMS | Hospital GEN (EMS) | N/A | N/A | N/A | N/A | | |
| LIB | Library Sno-Isle GEN | N/A | N/A | N/A | N/A | | |
| LIBCAP | Library Sno-Isle BOND (Cap Fac Imp Area) | N/A | N/A | N/A | N/A | | |
| POCOUP | Port of Coupeville GEN | N/A | N/A | N/A | N/A | | |
| COUPSDTECH | School 204 CP (TECH) | N/A | N/A | N/A | N/A | | |
| SCH204MO | School 204 Enrichment | N/A | N/A | N/A | N/A | | |
| ST | State School | N/A | N/A | N/A | N/A | | |
| ST2 | State School Part 2 | N/A | N/A | N/A | N/A | | |
| | Total Tax Rate: | N/A | | | | | |
| | | | | Taxes w/Current Exemptions: | N/A | | |
| | | | | Taxes w/o Exemptions: | N/A | | |
Improvement / Building
| Improvement #1: | RESIDENTIAL | State Code: | Y | 856.0 sqft | Value: | N/A |
| Bathrooms: | 1 | Bedrooms: | 1 | | Ceiling: | DRYWALL PAINTED | Exterior Wall/Cover: | WOOD SIDING | | Floor Covering: | CARPET/VINYL 80-20 | Floor Structure: | WOOD W/SUBFLOOR | | Foundation: | CONCRETE | Heating: | FHA ELECTRIC | | Interior Finish: | DRYWALL PAINT | Plumbing Fixture Cnt: | 6 | | Roof Slope: | 4" IN 12" | Roof Structure/Cover: | CJ ASPHALT |
|
| | Type | Description | Class CD | Sub Class CD | Year Built | Area |
| | BAS | BASE/MAIN FLOOR | 4 | 0 | 1994 | 856.0 |
| | OWP | OPEN WOOD PORCH W/STEPS | 4 | 0 | 1994 | 240.0 |
| | OWC | OPEN WOOD PORCH W/STEPS/ROOF/C | 4 | 0 | 1994 | 183.0 |
| | DGR | DETACHED GARAGE | 4 | 0 | 1994 | 904.5 |
| | OP4 | OPEN PORCH W/CEILING-ROOF | 4 | 0 | 1994 | 378.0 |
| | ENP | ENCLOSED PORCH | 4 | 0 | 1994 | 1800.0 |
Sketch
Property Image
Land
| 1 | HS | HOMESITE | 1.0000 | 43560.00 | 0.00 | 0.00 | 1.00 | N/A | N/A |
| 2 | 91 | UNDEVELOPED LAND-METES AND BOUNDS | 16.9500 | 738342.00 | 0.00 | 0.00 | 1.00 | N/A | N/A |
Roll Value History
| 2026 | N/A | N/A | N/A | N/A | N/A |
| 2025 | $454,324 | $460,000 | $0 | $914,324 | $914,324 |
| 2024 | $460,206 | $430,000 | $0 | $890,206 | $890,206 |
| 2023 | $466,087 | $390,000 | $0 | $856,087 | $856,087 |
| 2022 | $427,360 | $440,000 | $0 | $867,360 | $867,360 |
| 2021 | $376,272 | $440,000 | $0 | $816,272 | $816,272 |
| 2020 | $302,983 | $300,000 | $0 | $602,983 | $602,983 |
| 2019 | $205,172 | $400,000 | $0 | $605,172 | $605,172 |
| 2018 | $205,475 | $320,000 | $0 | $525,475 | $525,475 |
| 2017 | $206,083 | $285,000 | $0 | $491,083 | $491,083 |
| 2016 | $207,300 | $285,000 | $0 | $492,300 | $492,300 |
| 2015 | $208,516 | $285,000 | $0 | $493,516 | $493,516 |
| 2014 | $209,733 | $274,635 | $0 | $484,368 | $484,368 |
| 2013 | $210,949 | $274,635 | $0 | $485,584 | $485,584 |
| 2012 | $212,166 | $274,635 | $0 | $486,801 | $486,801 |
| 2011 | $213,383 | $305,150 | $0 | $518,533 | $518,533 |
| 2010 | $215,397 | $305,150 | $0 | $520,547 | $520,547 |
| 2009 | $222,968 | $394,900 | $0 | $617,868 | $617,868 |
| 2008 | $228,431 | $359,000 | $0 | $587,431 | $587,431 |
| 2007 | $218,955 | $359,000 | $0 | $577,955 | $577,955 |
Deed and Sales History
| 1 | 01/26/2026 | WD | Warranty Deed | HEILY, DEEANNA | DLM IV LLC | | | $10,750,000.00 | 66058 | 4596210 |
|   | |
| 2 | 09/09/2020 | WD | Warranty Deed | HEG, DEBORAH S | HEILY, DEEANNA | | | $5,435,000.00 | 44747 | 4496573 |
|   | |
| 3 | 07/07/2020 | QCD | Quit Claim Deed | HEG, DEBORAH S | HEG, DEBORAH S | | | $0.00 | 43689 | 4490739 |
| 4 | 08/01/1993 | OTHER | Other - Misc. Documents | HEG, DEBORAH S | HEG, DEBORAH S | | | $0.00 | 65508 | 93014840 |
| 5 | 03/01/1993 | WD | Warranty Deed | HEG, DEBORAH S | HEG, DEBORAH S | | | $200,000.00 | 30820 | 93004232 |
| 6 | 03/01/1993 | QCD | Quit Claim Deed | THOMAS, DONALD P | HEG, DEBORAH S | | | $0.00 | 30821 | 93004233 |
| 7 | 12/01/1992 | QCD | Quit Claim Deed | WESTFALL, THERESA | THOMAS, DONALD P | | | $0.00 | 30819 | 93004231 |
| 8 | 12/01/1983 | QCD | Quit Claim Deed | THOMAS, DONALD P | WESTFALL, THERESA | | | $0.00 | 40278 | 420527 |
| 9 | 01/01/1900 | OTHER | Other - Misc. Documents | Unknown | THOMAS, DONALD P | | | $0.00 | 0 | 0 |
Payout Agreement
| No payout information available.. |