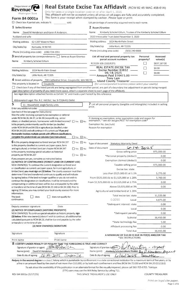
Property
Account |
| Property ID: | 6371 | Abbreviated Legal Description: | 3 RC HILL DC - BG SWCR ENGLE DLC N89*E467.93' ALG NLN SD DLC S9*E370.42' S17*E456.49' N85*E57.29' S73*E243.94' TPB N73*W100 .58' S22*W TO HITDLN SELY ALG SD LN TP S22*W FR TPB N22*E TPB LOT 9 UNREC SHERHILL VISTA |
| Geographic ID: | R13109-108-1550 | Agent Code: | |
| Type: | Real | | |
| Tax Area: | 310 - APPRAISER-Cpvl Schl Dist, outside Cpvl, improved & 1 acre or less | Land Use Code | 11 |
| Open Space: | N | DFL | N |
| Historic Property: | N | Remodel Property: | N |
| Multi-Family Redevelopment: | N | | |
| Township: | 31 | Section: | 09 |
| Range: | R1 |
Location |
| Address: | 730 CATHEDRAL DR COUPEVILLE, WA 98239 | Mapsco: | |
| Neighborhood: | Area 2 Waterfront Westside Residential | Map ID: | 42 |
| Neighborhood CD: | 2WFW01R |
Owner |
| Name: | GILLUM TTEE, KIMBERLY SCHICKEL | Owner ID: | 316986 |
| Mailing Address: | 1024 N PALM ST LITTLE ROCK, AR 72205 | % Ownership: | 100.0000000000% |
| | | Exemptions: | |
Taxes and Assessment Details
Values
| (+) Improvement Homesite Value: | + | $0 | |
| (+) Improvement Non-Homesite Value: | + | $289,741 | |
| (+) Land Homesite Value: | + | $0 | |
| (+) Land Non-Homesite Value: | + | $545,500 | |
| (+) Curr Use (HS): | + | $0 | $0 |
| (+) Curr Use (NHS): | + | $0 | $0 |
| | | -------------------------- | |
| (=) Market Value: | = | $835,241 | |
| (–) Productivity Loss: | – | $0 | |
| | | -------------------------- | |
| (=) Subtotal: | = | $835,241 | |
| (+) Senior Appraised Value: | + | $0 | |
| (+) Non-Senior Appraised Value: | + | $835,241 | |
| | | -------------------------- | |
| (=) Total Appraised Value: | = | $835,241 | |
| (–) Senior Exemption Loss: | – | $0 | |
| (–) Exemption Loss: | – | $0 | |
| | | -------------------------- | |
| (=) Taxable Value: | = | $835,241 | |
Taxing Jurisdiction
| Owner: | GILLUM TTEE, KIMBERLY SCHICKEL | | |
| % Ownership: | 100.0000000000% | | |
| Total Value: | $835,241 | | |
| Tax Area: | 310 - APPRAISER-Cpvl Schl Dist, outside Cpvl, improved & 1 acre or less |
| CF | Conservation Futures | 0.0313996660 | $835,241 | $835,241 | $26.23 | | |
| CEM2 | Cemetery #2 | 0.0092609791 | $835,241 | $835,241 | $7.74 | | |
| FIRE5 | Fire & Rescue Dist #5 C Whidbey GEN | 1.1892169230 | $835,241 | $835,241 | $993.28 | | |
| FIRE5BOND | Fire & Rescue Dist #5 C Whidbey BOND | 0.1394359503 | $835,241 | $835,241 | $116.46 | | |
| HOBOND | Hospital BOND | 0.1893405597 | $835,241 | $835,241 | $158.14 | | |
| HOGEN | Hospital GEN | 0.3848777722 | $835,241 | $835,241 | $321.47 | | |
| CE | County Current Expense | 0.3674210519 | $835,241 | $835,241 | $306.89 | | |
| CR | County Roads | 0.4614296361 | $835,241 | $835,241 | $385.40 | | |
| ISLANDEMS | Hospital GEN (EMS) | 0.4952018576 | $835,241 | $835,241 | $413.61 | | |
| LIB | Library Sno-Isle GEN | 0.3039084203 | $835,241 | $835,241 | $253.84 | | |
| LIBCAP | Library Sno-Isle BOND (Cap Fac Imp Area) | 0.0528562629 | $835,241 | $835,241 | $44.15 | | |
| POCOUP | Port of Coupeville GEN | 0.1065226063 | $835,241 | $835,241 | $88.97 | | |
| POCOUPIDD | Port of Coupeville IDD | 0.3353038577 | $835,241 | $835,241 | $280.06 | | |
| COUPSDTECH | School 204 CP (TECH) | 0.1215123397 | $835,241 | $835,241 | $101.49 | | |
| SCH204MO | School 204 Enrichment | 0.6416662518 | $835,241 | $835,241 | $535.95 | | |
| ST | State School | 1.4761226122 | $835,241 | $835,241 | $1,232.92 | | |
| ST2 | State School Part 2 | 0.7953803475 | $835,241 | $835,241 | $664.33 | | |
| | Total Tax Rate: | 7.1008570943 | | | | | |
| | | | | Taxes w/Current Exemptions: | $5,930.93 | | |
| | | | | Taxes w/o Exemptions: | $5,930.93 | | |
Improvement / Building
| Improvement #1: | RESIDENTIAL | State Code: | Y | 2365.0 sqft | Value: | $289,741 |
| Bathrooms: | 1.5 | Bedrooms: | 2 | | Ceiling: | TONGUE & GROOVE | Cooling: | HEAT PUMP/CONV/V | | Exterior Wall/Cover: | PLY/HARDBOARD T-111 | Floor Covering: | VINYL/HARDWOOD 60-40 | | Floor Structure: | WOOD W/SUBFLOOR | Foundation: | CONCRETE | | Interior Finish: | DRYWALL PAINT | Plumbing Fixture Cnt: | 8 | | Roof Slope: | 5" IN 12" | Roof Structure/Cover: | CJ ASPHALT |
|
| | Type | Description | Class CD | Sub Class CD | Year Built | Area |
| | BAS | BASE/MAIN FLOOR | 3 | 0 | 1967 | 1789.0 |
| | OWP | OPEN WOOD PORCH W/STEPS | 3 | 0 | 1967 | 52.5 |
| | OWP | OPEN WOOD PORCH W/STEPS | 3 | 0 | 1967 | 96.0 |
| | OWR | OPEN WOOD PORCH W/STEPS/ROOF | 3 | 0 | 1967 | 82.8 |
| | OWC | OPEN WOOD PORCH W/STEPS/ROOF/C | 3 | 0 | 1967 | 324.8 |
| | OWC | OPEN WOOD PORCH W/STEPS/ROOF/C | 3 | 0 | 1967 | 24.5 |
| | LOF | LOFT | 3 | 0 | 1967 | 576.0 |
Sketch
Property Image
Land
| 1 | HB | HIGH BLUFF | 0.6600 | 28749.60 | 100.00 | 0.00 | 1.00 | $545,500 | $0 |
Roll Value History
| 2026 | N/A | N/A | N/A | N/A | N/A |
| 2025 | $289,741 | $545,500 | $0 | $835,241 | $835,241 |
| 2024 | $291,687 | $545,500 | $0 | $837,187 | $837,187 |
| 2023 | $295,839 | $519,750 | $0 | $815,589 | $815,589 |
| 2022 | $271,636 | $495,000 | $0 | $766,636 | $766,636 |
| 2021 | $239,481 | $450,000 | $0 | $689,481 | $689,481 |
| 2020 | $234,565 | $450,000 | $0 | $684,565 | $684,565 |
| 2019 | $184,169 | $500,000 | $0 | $684,169 | $684,169 |
| 2018 | $142,198 | $500,000 | $0 | $642,198 | $642,198 |
| 2017 | $143,479 | $500,000 | $0 | $643,479 | $643,479 |
| 2016 | $146,040 | $500,000 | $0 | $646,040 | $646,040 |
| 2015 | $148,603 | $500,000 | $0 | $648,603 | $648,603 |
| 2014 | $151,166 | $500,000 | $0 | $651,166 | $651,166 |
| 2013 | $153,728 | $459,264 | $0 | $612,992 | $612,992 |
| 2012 | $144,008 | $459,264 | $0 | $603,272 | $603,272 |
| 2011 | $146,371 | $540,402 | $0 | $686,773 | $686,773 |
| 2010 | $148,915 | $540,402 | $0 | $689,317 | $689,317 |
| 2009 | $155,795 | $581,210 | $0 | $737,005 | $737,005 |
| 2008 | $155,795 | $562,661 | $0 | $718,456 | $718,456 |
| 2007 | $158,155 | $426,633 | $0 | $584,788 | $584,788 |
Deed and Sales History
| 1 | 06/14/2025 | WD | Warranty Deed | HENDERSON, DAVID M | GILLUM TTEE, KIMBERLY SCHICKEL | | | $975,000.00 | 63832 | 4587110 |
| 2 | 09/23/2005 | WD | Warranty Deed | MACDONALD, NATALIE H | HENDERSON, DAVID M | | | $609,000.00 | 54877 | 4149197 |
| 3 | 02/01/1992 | PRD | Personal Representatives Deed | MACDONALD, W G | MACDONALD, NATALIE H | | | $0.00 | 20680 | 92003338 |
| 4 | 01/01/1900 | OTHER | Other - Misc. Documents | Unknown | MACDONALD, W G | | | $0.00 | 0 | 0 |
Payout Agreement
| No payout information available.. |