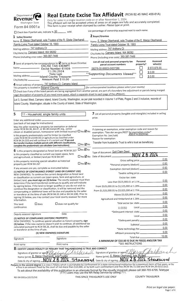
Property
Account |
| Property ID: | 637289 | Abbreviated Legal Description: | SUNSET WEST - PRD LOT 3 |
| Geographic ID: | S8276-00-00003-0 | Agent Code: | |
| Type: | Real | | |
| Tax Area: | 510 - APPRAISER-Stan/Cam Schl Dist, improved & 1 acre or less | Land Use Code | 11 |
| Open Space: | N | DFL | N |
| Historic Property: | N | Remodel Property: | N |
| Multi-Family Redevelopment: | N | | |
| Township: | | Section: | |
| Range: | |
Location |
| Address: | 747 ANTHONY CT CAMANO ISLAND, WA 98282 | Mapsco: | |
| Neighborhood: | North Camano | Map ID: | 571 |
| Neighborhood CD: | 06-C |
Owner |
| Name: | OBERHANSLI TTEE, E MARGO | Owner ID: | 314684 |
| Mailing Address: | 747 ANTHONY CT CAMANO ISLAND, WA 98282 | % Ownership: | 100.0000000000% |
| | | Exemptions: | |
Taxes and Assessment Details
Values
| (+) Improvement Homesite Value: | + | $0 | |
| (+) Improvement Non-Homesite Value: | + | $338,701 | |
| (+) Land Homesite Value: | + | $0 | |
| (+) Land Non-Homesite Value: | + | $230,000 | |
| (+) Curr Use (HS): | + | $0 | $0 |
| (+) Curr Use (NHS): | + | $0 | $0 |
| | | -------------------------- | |
| (=) Market Value: | = | $568,701 | |
| (–) Productivity Loss: | – | $0 | |
| | | -------------------------- | |
| (=) Subtotal: | = | $568,701 | |
| (+) Senior Appraised Value: | + | $0 | |
| (+) Non-Senior Appraised Value: | + | $568,701 | |
| | | -------------------------- | |
| (=) Total Appraised Value: | = | $568,701 | |
| (–) Senior Exemption Loss: | – | $0 | |
| (–) Exemption Loss: | – | $0 | |
| | | -------------------------- | |
| (=) Taxable Value: | = | $568,701 | |
Taxing Jurisdiction
| Owner: | OBERHANSLI TTEE, E MARGO | | |
| % Ownership: | 100.0000000000% | | |
| Total Value: | $568,701 | | |
| Tax Area: | 510 - APPRAISER-Stan/Cam Schl Dist, improved & 1 acre or less |
| CF | Conservation Futures | 0.0313996660 | $568,701 | $568,701 | $17.86 | | |
| EMS1 | Fire & Rescue Dist #1 Camano GEN (EMS) | 0.4998471806 | $568,701 | $568,701 | $284.26 | | |
| FIRE1 | Fire & Rescue Dist #1 Camano GEN | 1.2496603404 | $568,701 | $568,701 | $710.68 | | |
| FIRE1BOND | Fire & Rescue Dist #1 Camano BOND | 0.1630371212 | $568,701 | $568,701 | $92.72 | | |
| CE | County Current Expense | 0.3674210519 | $568,701 | $568,701 | $208.95 | | |
| CR | County Roads | 0.4614296361 | $568,701 | $568,701 | $262.42 | | |
| LIB | Library Sno-Isle GEN | 0.3039084203 | $568,701 | $568,701 | $172.83 | | |
| SCH205_401 | School 205-401 Enrichment | 1.3697998934 | $568,701 | $568,701 | $779.01 | | |
| SCH205BOND | School 205-401 BOND | 0.9354199323 | $568,701 | $568,701 | $531.97 | | |
| ST | State School | 1.4761226122 | $568,701 | $568,701 | $839.47 | | |
| ST2 | State School Part 2 | 0.7953803475 | $568,701 | $568,701 | $452.33 | | |
| | Total Tax Rate: | 7.6534262019 | | | | | |
| | | | | Taxes w/Current Exemptions: | $4,352.50 | | |
| | | | | Taxes w/o Exemptions: | $4,352.50 | | |
Improvement / Building
| Improvement #1: | RESIDENTIAL | State Code: | Y | 2025.0 sqft | Value: | $338,701 |
| Bathrooms: | 2.5 | Bedrooms: | 3 | | Ceiling: | DRYWALL PAINTED | Cooling: | HEAT PUMP/CONV/V | | Exterior Wall/Cover: | CEMENT FIBER | Floor Covering: | CARPET/VINYL 80-20 | | Floor Structure: | WOOD W/SUBFLOOR | Foundation: | CONCRETE | | Interior Finish: | DRYWALL PAINT | Plumbing Fixture Cnt: | 11 | | Roof Slope: | 6" IN 12" | Roof Structure/Cover: | CJ ASPHALT |
|
| | Type | Description | Class CD | Sub Class CD | Year Built | Area |
| | BAS | BASE/MAIN FLOOR | 3 | 0 | 1991 | 2025.0 |
| | OP2 | OPEN PORCH W/STEPS | 3 | 0 | 1991 | 378.0 |
| | OP4 | OPEN PORCH W/CEILING-ROOF | 3 | 0 | 1991 | 30.0 |
| | AGR | ATTACHED GARAGE | 3 | 0 | 1991 | 506.0 |
Sketch
Property Image
Land
| 1 | 15 | SQ (12001-21780) | 0.0000 | 0.00 | 0.00 | 0.00 | 1.00 | $230,000 | $0 |
Roll Value History
| 2026 | N/A | N/A | N/A | N/A | N/A |
| 2025 | $338,701 | $230,000 | $0 | $568,701 | $568,701 |
| 2024 | $342,975 | $230,000 | $0 | $572,975 | $572,975 |
| 2023 | $347,251 | $230,000 | $0 | $577,251 | $577,251 |
| 2022 | $292,407 | $230,000 | $0 | $522,407 | $522,407 |
| 2021 | $257,512 | $150,000 | $0 | $407,512 | $407,512 |
| 2020 | $251,162 | $130,000 | $0 | $381,162 | $381,162 |
| 2019 | $191,195 | $140,000 | $0 | $331,195 | $331,195 |
| 2018 | $191,784 | $120,000 | $0 | $311,784 | $311,784 |
| 2017 | $192,962 | $120,000 | $0 | $312,962 | $312,962 |
| 2016 | $190,734 | $100,000 | $0 | $290,734 | $290,734 |
| 2015 | $193,179 | $66,400 | $0 | $259,579 | $259,579 |
| 2014 | $195,624 | $66,400 | $0 | $262,024 | $262,024 |
| 2013 | $198,068 | $66,400 | $0 | $264,468 | $264,468 |
| 2012 | $200,515 | $66,400 | $0 | $266,915 | $266,915 |
| 2011 | $202,960 | $83,000 | $0 | $285,960 | $285,960 |
| 2010 | $208,350 | $83,000 | $0 | $291,350 | $291,350 |
| 2009 | $217,285 | $100,000 | $0 | $317,285 | $317,285 |
| 2008 | $220,041 | $100,000 | $0 | $320,041 | $320,041 |
| 2007 | $222,819 | $100,000 | $0 | $322,819 | $322,819 |
Deed and Sales History
| 1 | 11/26/2024 | QCD | Quit Claim Deed | OBERHANSLI TTEE, E MARGO | OBERHANSLI TTEE, E MARGO | | | $0.00 | 61939 | 4579845 |
| 2 | 05/24/1999 | QCD | Quit Claim Deed | OBERHANSLI, R GLADE | OBERHANSLI, R GLADE | | | $0.00 | 92246 | 99013896 |
| 3 | 06/04/1998 | WD | Warranty Deed | OBERHANSLI, GLADE R | OBERHANSLI, R GLADE | | | $215,000.00 | 82152 | 98011186 |
| 4 | 12/01/1992 | WD | Warranty Deed | WEIHE, WILLIAM H | WINN, JAMES H | | | $159,500.00 | 24825 | 92023821 |
| 5 | 08/01/1990 | WD | Warranty Deed | WEIHE, WILLIAM H | WEIHE, WILLIAM H | | | $0.00 | 5279 | 90017621 |
| 6 | 07/01/1990 | WD | Warranty Deed | REMINGTON, ALBERT F | WEIHE, WILLIAM H | | | $34,000.00 | 4504 | 90014808 |
| 7 | 10/01/1989 | WD | Warranty Deed | HOLBECK, JEFFREY J | REMINGTON, ALBERT F | | | $20,500.00 | 94275 | 89014021 |
| 8 | 01/01/1900 | OTHER | Other - Misc. Documents | Unknown | HOLBECK, JEFFREY J | | | $0.00 | 62908 | 88013564 |
| 9 | 01/01/1900 | OTHER | Other - Misc. Documents | WINN, JAMES H | OBERHANSLI, GLADE R | | | $0.00 | 82152 | 98011186 |
Payout Agreement
| No payout information available.. |