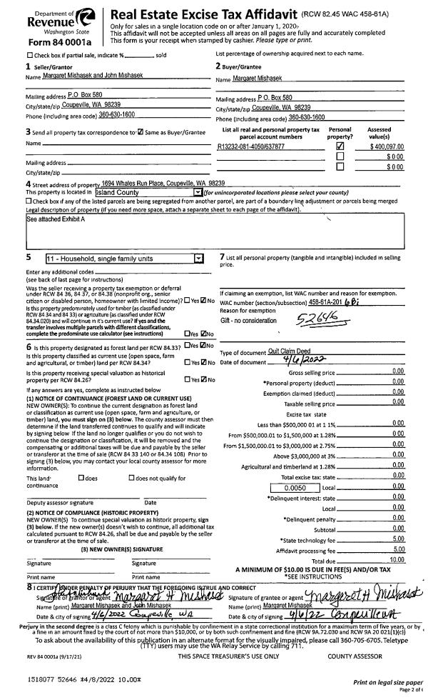
Property
Account |
| Property ID: | 637877 | Abbreviated Legal Description: | LOT 4A SP 87-30.13232.125-4120 V6 SP P200 AF#89007897 AMENDED V2 SP P227 AF#90003270 |
| Geographic ID: | R13232-081-4050 | Agent Code: | |
| Type: | Real | | |
| Tax Area: | 310 - APPRAISER-Cpvl Schl Dist, outside Cpvl, improved & 1 acre or less | Land Use Code | 11 |
| Open Space: | N | DFL | N |
| Historic Property: | N | Remodel Property: | N |
| Multi-Family Redevelopment: | N | | |
| Township: | 32 | Section: | 32 |
| Range: | R1 |
Location |
| Address: | 1694 WHALES RUN PLACE COUPEVILLE, WA 98239 | Mapsco: | |
| Neighborhood: | Cycle 2 | Map ID: | 171 |
| Neighborhood CD: | 2 |
Owner |
| Name: | MISHASEK, MARGARET | Owner ID: | 303728 |
| Mailing Address: | PO BOX 580 COUPEVILLE, WA 98239 | % Ownership: | 100.0000000000% |
| | | Exemptions: | |
Taxes and Assessment Details
Values
| (+) Improvement Homesite Value: | + | $0 | |
| (+) Improvement Non-Homesite Value: | + | $283,971 | |
| (+) Land Homesite Value: | + | $0 | |
| (+) Land Non-Homesite Value: | + | $231,364 | |
| (+) Curr Use (HS): | + | $0 | $0 |
| (+) Curr Use (NHS): | + | $0 | $0 |
| | | -------------------------- | |
| (=) Market Value: | = | $515,335 | |
| (–) Productivity Loss: | – | $0 | |
| | | -------------------------- | |
| (=) Subtotal: | = | $515,335 | |
| (+) Senior Appraised Value: | + | $0 | |
| (+) Non-Senior Appraised Value: | + | $515,335 | |
| | | -------------------------- | |
| (=) Total Appraised Value: | = | $515,335 | |
| (–) Senior Exemption Loss: | – | $0 | |
| (–) Exemption Loss: | – | $0 | |
| | | -------------------------- | |
| (=) Taxable Value: | = | $515,335 | |
Taxing Jurisdiction
| Owner: | MISHASEK, MARGARET | | |
| % Ownership: | 100.0000000000% | | |
| Total Value: | $515,335 | | |
| Tax Area: | 310 - APPRAISER-Cpvl Schl Dist, outside Cpvl, improved & 1 acre or less |
| CF | Conservation Futures | 0.0313996660 | $515,335 | $515,335 | $16.18 | | |
| CEM2 | Cemetery #2 | 0.0092609791 | $515,335 | $515,335 | $4.77 | | |
| FIRE5 | Fire & Rescue Dist #5 C Whidbey GEN | 1.1892169230 | $515,335 | $515,335 | $612.85 | | |
| FIRE5BOND | Fire & Rescue Dist #5 C Whidbey BOND | 0.1394359503 | $515,335 | $515,335 | $71.86 | | |
| HOBOND | Hospital BOND | 0.1893405597 | $515,335 | $515,335 | $97.57 | | |
| HOGEN | Hospital GEN | 0.3848777722 | $515,335 | $515,335 | $198.34 | | |
| CE | County Current Expense | 0.3674210519 | $515,335 | $515,335 | $189.34 | | |
| CR | County Roads | 0.4614296361 | $515,335 | $515,335 | $237.79 | | |
| ISLANDEMS | Hospital GEN (EMS) | 0.4952018576 | $515,335 | $515,335 | $255.19 | | |
| LIB | Library Sno-Isle GEN | 0.3039084203 | $515,335 | $515,335 | $156.61 | | |
| LIBCAP | Library Sno-Isle BOND (Cap Fac Imp Area) | 0.0528562629 | $515,335 | $515,335 | $27.24 | | |
| POCOUP | Port of Coupeville GEN | 0.1065226063 | $515,335 | $515,335 | $54.89 | | |
| POCOUPIDD | Port of Coupeville IDD | 0.3353038577 | $515,335 | $515,335 | $172.79 | | |
| COUPSDTECH | School 204 CP (TECH) | 0.1215123397 | $515,335 | $515,335 | $62.62 | | |
| SCH204MO | School 204 Enrichment | 0.6416662518 | $515,335 | $515,335 | $330.67 | | |
| ST | State School | 1.4761226122 | $515,335 | $515,335 | $760.70 | | |
| ST2 | State School Part 2 | 0.7953803475 | $515,335 | $515,335 | $409.89 | | |
| | Total Tax Rate: | 7.1008570943 | | | | | |
| | | | | Taxes w/Current Exemptions: | $3,659.30 | | |
| | | | | Taxes w/o Exemptions: | $3,659.30 | | |
Improvement / Building
| Improvement #1: | RESIDENTIAL | State Code: | Y | 1752.1 sqft | Value: | $283,971 |
| Bathrooms: | 1.75 | Bedrooms: | 3 | | Ceiling: | DRYWALL PAINTED | Cooling: | HEAT PUMP/CONV/V | | Exterior Wall/Cover: | WOOD SIDING | Floor Covering: | CARPET/VINYL 80-20 | | Floor Structure: | WOOD W/SUBFLOOR | Foundation: | CONCRETE | | Interior Finish: | DRYWALL PAINT | Plumbing Fixture Cnt: | 9 | | Roof Slope: | 5" IN 12" | Roof Structure/Cover: | CJ ASPHALT |
|
| | Type | Description | Class CD | Sub Class CD | Year Built | Area |
| | BAS | BASE/MAIN FLOOR | 3 | 0 | 1990 | 1752.1 |
| | AGR | ATTACHED GARAGE | 3 | 0 | 1990 | 308.0 |
| | OWP | OPEN WOOD PORCH W/STEPS | 3 | 0 | 1990 | 453.7 |
| | OWP | OPEN WOOD PORCH W/STEPS | 3 | 0 | 1990 | 191.2 |
| | OWC | OPEN WOOD PORCH W/STEPS/ROOF/C | 3 | 0 | 1990 | 40.0 |
Sketch
Property Image
Land
| 1 | HS | HOMESITE | 0.2900 | 12632.40 | 0.00 | 0.00 | 1.00 | $231,364 | $0 |
Roll Value History
| 2026 | N/A | N/A | N/A | N/A | N/A |
| 2025 | $283,971 | $231,364 | $0 | $515,335 | $515,335 |
| 2024 | $268,940 | $240,000 | $0 | $508,940 | $508,940 |
| 2023 | $272,466 | $230,000 | $0 | $502,466 | $502,466 |
| 2022 | $249,914 | $210,000 | $0 | $459,914 | $459,914 |
| 2021 | $220,097 | $180,000 | $0 | $400,097 | $400,097 |
| 2020 | $214,789 | $160,000 | $0 | $374,789 | $374,789 |
| 2019 | $159,326 | $220,000 | $0 | $379,326 | $379,326 |
| 2018 | $140,863 | $200,000 | $0 | $340,863 | $340,863 |
| 2017 | $141,821 | $130,000 | $0 | $271,821 | $271,821 |
| 2016 | $143,739 | $125,000 | $0 | $268,739 | $268,739 |
| 2015 | $145,655 | $125,000 | $0 | $270,655 | $270,655 |
| 2014 | $147,572 | $140,250 | $0 | $287,822 | $287,822 |
| 2013 | $149,488 | $140,250 | $0 | $289,738 | $289,738 |
| 2012 | $149,663 | $140,250 | $0 | $289,913 | $289,913 |
| 2011 | $151,598 | $165,000 | $0 | $316,598 | $316,598 |
| 2010 | $157,856 | $165,000 | $0 | $322,856 | $322,856 |
| 2009 | $164,622 | $175,000 | $0 | $339,622 | $339,622 |
| 2008 | $166,608 | $201,250 | $0 | $367,858 | $367,858 |
| 2007 | $168,611 | $185,000 | $0 | $353,611 | $353,611 |
Deed and Sales History
| 1 | 04/06/2022 | QCD | Quit Claim Deed | MISHASEK MARGARET | MISHASEK, MARGARET | | | $0.00 | 52646 | 4543023 |
| 2 | 05/01/2017 | WD | Warranty Deed | WILLIAMS, PEGGY A | MISHASEK MARGARET | | | $313,500.00 | 29148 | 4421851 |
| 3 | 11/01/1993 | WD | Warranty Deed | JELESCHEFF, ROBERT Y | WILLIAMS, PEGGY A | | | $150,000.00 | 34578 | 93023877 |
| 4 | 04/01/1992 | QCD | Quit Claim Deed | JELESCHEFF, ROBERT Y | JELESCHEFF, ROBERT Y | | | $0.00 | 21594 | 92007622 |
| 5 | 08/01/1990 | WD | Warranty Deed | HAMPTON, THOMAS L | JELESCHEFF, ROBERT Y | | | $145,000.00 | 4535 | 90014944 |
| 6 | 03/01/1990 | QCD | Quit Claim Deed | GRAY, PHYLLIS M | SARKISIAN, NATHAN M | | | $0.00 | 1310 | 90004192 |
| 7 | 03/01/1990 | WD | Warranty Deed | SARKISIAN, NATHAN M | HAMPTON, THOMAS L | | | $25,000.00 | 1311 | 90004193 |
| 8 | 04/01/1987 | QCD | Quit Claim Deed | Unknown | GRAY, PHYLLIS M | | | $0.00 | 81118 | 88004234 |
Payout Agreement
| No payout information available.. |