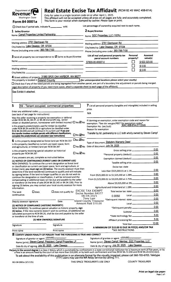
Property
Account |
| Property ID: | 638572 | Abbreviated Legal Description: | OLYMPIC GARDENS LOT 7 BINDING SITE PLAN 3-97 AF#97006766 REVISED AF#20008495 AC ADJ PER SURVEY (OAK TREE VILLAGE) |
| Geographic ID: | S7600-00-00007-0 | Agent Code: | |
| Type: | Real | | |
| Tax Area: | 100 - APPRAISER-OH Schl Dist, in OH | Land Use Code | 64 |
| Open Space: | N | DFL | N |
| Historic Property: | N | Remodel Property: | N |
| Multi-Family Redevelopment: | N | | |
| Township: | | Section: | |
| Range: | |
Location |
| Address: | 31980 SR20 OAK HARBOR, WA 98277 | Mapsco: | |
| Neighborhood: | 12cOH-highway 20 | Map ID: | 88 |
| Neighborhood CD: | 12cOHhwy20 |
Owner |
| Name: | CAMPF PROPERTIES LIMITED PARTNERSHIP | Owner ID: | 298774 |
| Mailing Address: | 2761 SW GLENHAVEN LAKE OSWEGO, OR 97034 | % Ownership: | 100.0000000000% |
| | | Exemptions: | |
Taxes and Assessment Details
Values
| (+) Improvement Homesite Value: | + | $0 | |
| (+) Improvement Non-Homesite Value: | + | $182,255 | |
| (+) Land Homesite Value: | + | $0 | |
| (+) Land Non-Homesite Value: | + | $426,888 | |
| (+) Curr Use (HS): | + | $0 | $0 |
| (+) Curr Use (NHS): | + | $0 | $0 |
| | | -------------------------- | |
| (=) Market Value: | = | $609,143 | |
| (–) Productivity Loss: | – | $0 | |
| | | -------------------------- | |
| (=) Subtotal: | = | $609,143 | |
| (+) Senior Appraised Value: | + | $0 | |
| (+) Non-Senior Appraised Value: | + | $609,143 | |
| | | -------------------------- | |
| (=) Total Appraised Value: | = | $609,143 | |
| (–) Senior Exemption Loss: | – | $0 | |
| (–) Exemption Loss: | – | $0 | |
| | | -------------------------- | |
| (=) Taxable Value: | = | $609,143 | |
Taxing Jurisdiction
| Owner: | CAMPF PROPERTIES LIMITED PARTNERSHIP | | |
| % Ownership: | 100.0000000000% | | |
| Total Value: | $609,143 | | |
| Tax Area: | 100 - APPRAISER-OH Schl Dist, in OH |
| CF | Conservation Futures | 0.0313996660 | $609,143 | $609,143 | $19.13 | | |
| CEM1 | Cemetery #1 | 0.0040018856 | $609,143 | $609,143 | $2.44 | | |
| COH | City of Oak Harbor | 2.3090730572 | $609,143 | $609,143 | $1,406.56 | | |
| OAKBOND | City of Oak Harbor BOND | 0.1902260131 | $609,143 | $609,143 | $115.87 | | |
| HOBOND | Hospital BOND | 0.1893405597 | $609,143 | $609,143 | $115.34 | | |
| HOGEN | Hospital GEN | 0.3848777722 | $609,143 | $609,143 | $234.45 | | |
| CE | County Current Expense | 0.3674210519 | $609,143 | $609,143 | $223.81 | | |
| ISLANDEMS | Hospital GEN (EMS) | 0.4952018576 | $609,143 | $609,143 | $301.65 | | |
| LIB | Library Sno-Isle GEN | 0.3039084203 | $609,143 | $609,143 | $185.12 | | |
| NWHIDPRMT | P & R N Whidbey GEN | 0.1990272349 | $609,143 | $609,143 | $121.24 | | |
| SCH201MO | School 201 Enrichment | 2.3851112745 | $609,143 | $609,143 | $1,452.87 | | |
| ST | State School | 1.4761226122 | $609,143 | $609,143 | $899.17 | | |
| ST2 | State School Part 2 | 0.7953803475 | $609,143 | $609,143 | $484.50 | | |
| | Total Tax Rate: | 9.1310917527 | | | | | |
| | | | | Taxes w/Current Exemptions: | $5,562.15 | | |
| | | | | Taxes w/o Exemptions: | $5,562.15 | | |
Improvement / Building
| Improvement #1: | COMMERCIAL | State Code: | Y | 1705.0 sqft | Value: | $182,255 |
| Bathrooms: | 0 | Bedrooms: | 0 | | Ceiling: | SUSPENDED | Exterior Wall/Cover: | STUCO/WD OR ST STUDS | | Floor Covering: | RUBBER TILE | Floor Structure: | CONCRETE ON GROUND | | Foundation: | CONCRETE | Heating: | HEAT PUMP | | Interior Finish: | SERVICE GARAGE | Plumbing Fixture Cnt: | 1 | | Roof Structure/Cover: | TERNE WOOD JOIST |   |   |
|
| | Type | Description | Class CD | Sub Class CD | Year Built | Area |
| | BAS | BASE/MAIN FLOOR | 3 | 0 | 1997 | 1705.0 |
| | UB8 | BASEMENT UNFINISHED 8" | 3 | 0 | 1997 | 1271.0 |
| | OP1 | OPEN PORCH SLAB | 3 | 0 | 1997 | 1130.0 |
| | OP1 | OPEN PORCH SLAB | 3 | 0 | 1997 | 684.0 |
| | oPV2 | PV/ASPH 3" | 3 | 0 | 1997 | 13060.0 |
Sketch
Property Image
Land
| 1 | 68 | COMMERCIAL RETAIL | 0.2755 | 21344.40 | 0.00 | 0.00 | 1.00 | $426,888 | $0 |
Roll Value History
| 2026 | N/A | N/A | N/A | N/A | N/A |
| 2025 | $182,255 | $426,888 | $0 | $609,143 | $609,143 |
| 2024 | $195,435 | $426,888 | $0 | $622,323 | $622,323 |
| 2023 | $208,618 | $426,888 | $0 | $635,506 | $635,506 |
| 2022 | $176,969 | $426,888 | $0 | $603,857 | $603,857 |
| 2021 | $172,814 | $426,888 | $0 | $599,702 | $599,702 |
| 2020 | $107,683 | $426,888 | $0 | $534,571 | $534,571 |
| 2019 | $107,433 | $384,199 | $0 | $491,632 | $491,632 |
| 2018 | $107,491 | $320,166 | $0 | $427,657 | $427,657 |
| 2017 | $116,909 | $296,066 | $0 | $412,975 | $412,975 |
| 2016 | $116,909 | $296,066 | $0 | $412,975 | $412,975 |
| 2015 | $122,995 | $296,066 | $0 | $419,061 | $419,061 |
| 2014 | $128,573 | $481,600 | $0 | $610,173 | $610,173 |
| 2013 | $125,591 | $481,600 | $0 | $607,191 | $607,191 |
| 2012 | $193,460 | $481,600 | $0 | $675,060 | $675,060 |
| 2011 | $193,460 | $481,600 | $0 | $675,060 | $675,060 |
| 2010 | $218,194 | $481,600 | $0 | $699,794 | $699,794 |
| 2009 | $223,155 | $525,460 | $0 | $748,615 | $748,615 |
| 2008 | $228,515 | $553,195 | $0 | $781,710 | $781,710 |
| 2007 | $233,874 | $553,195 | $0 | $787,069 | $787,069 |
Deed and Sales History
| 1 | 07/24/2025 | WD | Warranty Deed | CAMPF PROPERTIES LIMITED PARTNERSHIP | SGC PROPERTIES, LLC | | | $0.00 | 64377 | 4589155 |
| 2 | 04/02/2021 | WD | Warranty Deed | EUGENE E THOMPSON MANGEMENT, LLC | CAMPF PROPERTIES LIMITED PARTNERSHIP | | | $1,720,000.00 | 47631 | 4515468 |
| 3 | 09/09/1999 | WD | Warranty Deed | EJT INCORPORATED, | EUGENE THOMPSON MANAGEMENT, | | | $0.00 | 94134 | 99022644 |
| 4 | 04/29/1998 | QCD | Quit Claim Deed | E.J.T., INCORPORATED | EJT INCORPORATED, | | | $0.00 | 81636 | 98008730 |
| 5 | 08/01/1997 | BLA | DNU - Boundary Line Adjustment | OAK, TREE I | OAK, TREE I | | | $0.00 | 67569 | 97006766 |
| 6 | 05/01/1997 | WD | Warranty Deed | OAK, TREE I | EJT, INC | | | $258,000.00 | 71497 | 97006868 |
| 7 | 01/01/1900 | OTHER | Other - Misc. Documents | Unknown | OAK, TREE I | | | $0.00 | 82269 | 88008374 |
| 8 | 01/01/1900 | OTHER | Other - Misc. Documents | EJT, INC | E.J.T., INCORPORATED | | | $0.00 | 81636 | 98008730 |
Payout Agreement
| No payout information available.. |