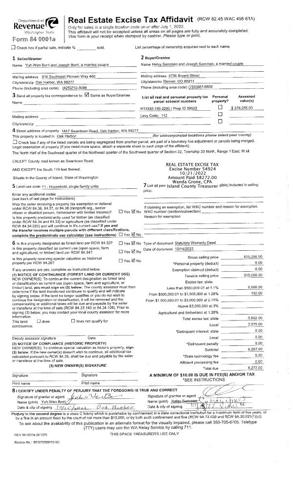
Property
Account |
| Property ID: | 639081 | Abbreviated Legal Description: | LOT 1 SPR 24-86.13323.071-2140, 13323.076.2310, 7625.00. 00002-0 & 7625.00.00010-0 AF#89014098 TGW PT LOT 1 OTTESEN'S LY W OF FOLL DESC LN: BG SWCR TR AF#198871 PT ON NLN SD LOT 1 LY S77*W 191.45'FR NECR S01*W159.70' TO SWCR LOT 4 OTTESENS |
| Geographic ID: | R13323-072-2250 | Agent Code: | |
| Type: | Real | | |
| Tax Area: | 112 - APPRAISER-OH Schl Dist, outside OH, improved, greater than 1 acre | Land Use Code | 69 |
| Open Space: | N | DFL | N |
| Historic Property: | N | Remodel Property: | N |
| Multi-Family Redevelopment: | N | | |
| Township: | 33 | Section: | 23 |
| Range: | R1 |
Location |
| Address: | 3250 GOLDIE RD OAK HARBOR, WA 98277 | Mapsco: | |
| Neighborhood: | 6AcOH-goldie rd | Map ID: | 218 |
| Neighborhood CD: | 6AcOHgolde |
Owner |
| Name: | PORTER GATE PROPERTIES LLC | Owner ID: | 189783 |
| Mailing Address: | 2457 MATSEN LANE OAK HARBOR, WA 98277 | % Ownership: | 100.0000000000% |
| | | Exemptions: | |
Taxes and Assessment Details
Values
| (+) Improvement Homesite Value: | + | $0 | |
| (+) Improvement Non-Homesite Value: | + | $517,524 | |
| (+) Land Homesite Value: | + | $0 | |
| (+) Land Non-Homesite Value: | + | $437,125 | |
| (+) Curr Use (HS): | + | $0 | $0 |
| (+) Curr Use (NHS): | + | $0 | $0 |
| | | -------------------------- | |
| (=) Market Value: | = | $954,649 | |
| (–) Productivity Loss: | – | $0 | |
| | | -------------------------- | |
| (=) Subtotal: | = | $954,649 | |
| (+) Senior Appraised Value: | + | $0 | |
| (+) Non-Senior Appraised Value: | + | $954,649 | |
| | | -------------------------- | |
| (=) Total Appraised Value: | = | $954,649 | |
| (–) Senior Exemption Loss: | – | $0 | |
| (–) Exemption Loss: | – | $0 | |
| | | -------------------------- | |
| (=) Taxable Value: | = | $954,649 | |
Taxing Jurisdiction
| Owner: | PORTER GATE PROPERTIES LLC | | |
| % Ownership: | 100.0000000000% | | |
| Total Value: | $954,649 | | |
| Tax Area: | 112 - APPRAISER-OH Schl Dist, outside OH, improved, greater than 1 acre |
| CF | Conservation Futures | 0.0313996660 | $954,649 | $954,649 | $29.98 | | |
| CEM1 | Cemetery #1 | 0.0040018856 | $954,649 | $954,649 | $3.82 | | |
| FIRE2 | Fire & Rescue Dist #2 N Whidbey GEN | 0.5381486274 | $954,649 | $954,649 | $513.74 | | |
| HOBOND | Hospital BOND | 0.1893405597 | $954,649 | $954,649 | $180.75 | | |
| HOGEN | Hospital GEN | 0.3848777722 | $954,649 | $954,649 | $367.42 | | |
| CE | County Current Expense | 0.3674210519 | $954,649 | $954,649 | $350.76 | | |
| CR | County Roads | 0.4614296361 | $954,649 | $954,649 | $440.50 | | |
| ISLANDEMS | Hospital GEN (EMS) | 0.4952018576 | $954,649 | $954,649 | $472.74 | | |
| LIB | Library Sno-Isle GEN | 0.3039084203 | $954,649 | $954,649 | $290.13 | | |
| NWHIDPRMT | P & R N Whidbey GEN | 0.1990272349 | $954,649 | $954,649 | $190.00 | | |
| SCH201MO | School 201 Enrichment | 2.3851112745 | $954,649 | $954,649 | $2,276.94 | | |
| ST | State School | 1.4761226122 | $954,649 | $954,649 | $1,409.18 | | |
| ST2 | State School Part 2 | 0.7953803475 | $954,649 | $954,649 | $759.31 | | |
| | Total Tax Rate: | 7.6313709459 | | | | | |
| | | | | Taxes w/Current Exemptions: | $7,285.27 | | |
| | | | | Taxes w/o Exemptions: | $7,285.27 | | |
Improvement / Building
| Improvement #1: | COMMERCIAL | State Code: | F1 | 5382.0 sqft | Value: | $75,798 |
| Bathrooms: | 0 | Bedrooms: | 0 | | Ceiling: | PAINT OPEN FLOOR BAS | Exterior Wall/Cover: | 8" CON BLK/BEAR WALL | | Floor Covering: | CONCRETE SEALER | Floor Structure: | CONCRETE ON GROUND | | Foundation: | SLAB | Interior Finish: | MINI-WAREHOUSE | | Plumbing Fixture Cnt: | 1 | Roof Structure/Cover: | METAL/OPEN WOOD |
|
| | Type | Description | Class CD | Sub Class CD | Year Built | Area |
| | BAS | BASE/MAIN FLOOR | 3 | 0 | 1991 | 5382.0 |
| | oFN8 | CHN LK 6' | 3 | 0 | 1991 | 0.0 |
| | oELG | ELECT GATE | 3 | 0 | 1991 | 0.0 |
| Improvement #2: | COMMERCIAL | State Code: | F1 | 4928.0 sqft | Value: | $67,675 |
| Bathrooms: | 0 | Bedrooms: | 0 | | Ceiling: | PAINT OPEN FLOOR BAS | Exterior Wall/Cover: | 8" CON BLK/BEAR WALL | | Floor Covering: | CONCRETE SEALER | Floor Structure: | CONCRETE ON GROUND | | Foundation: | SLAB | Interior Finish: | MINI-WAREHOUSE | | Plumbing Fixture Cnt: | 1 | Roof Structure/Cover: | METAL/OPEN WOOD |
|
| Improvement #3: | COMMERCIAL | State Code: | F1 | 4300.0 sqft | Value: | $59,928 |
| Bathrooms: | 0 | Bedrooms: | 0 | | Ceiling: | PAINT OPEN FLOOR BAS | Exterior Wall/Cover: | 8" CON BLK/BEAR WALL | | Floor Covering: | CONCRETE SEALER | Floor Structure: | CONCRETE ON GROUND | | Foundation: | SLAB | Interior Finish: | MINI-WAREHOUSE | | Plumbing Fixture Cnt: | 1 | Roof Structure/Cover: | METAL/OPEN WOOD |
|
| Improvement #4: | COMMERCIAL | State Code: | F1 | 4136.0 sqft | Value: | $57,980 |
| Bathrooms: | 0 | Bedrooms: | 0 | | Ceiling: | PAINT OPEN FLOOR BAS | Exterior Wall/Cover: | 8" CON BLK/BEAR WALL | | Floor Covering: | CONCRETE SEALER | Floor Structure: | CONCRETE ON GROUND | | Foundation: | SLAB | Interior Finish: | MINI-WAREHOUSE | | Plumbing Fixture Cnt: | 1 | Roof Structure/Cover: | METAL/OPEN WOOD |
|
| Improvement #5: | COMMERCIAL | State Code: | F1 | 3427.1 sqft | Value: | $49,291 |
| Bathrooms: | 0 | Bedrooms: | 0 | | Ceiling: | PAINT OPEN FLOOR BAS | Exterior Wall/Cover: | 8" CON BLK/BEAR WALL | | Floor Covering: | CONCRETE SEALER | Floor Structure: | CONCRETE ON GROUND | | Foundation: | SLAB | Interior Finish: | MINI-WAREHOUSE | | Plumbing Fixture Cnt: | 1 | Roof Structure/Cover: | METAL/OPEN WOOD |
|
| Improvement #6: | COMMERCIAL | State Code: | F1 | 3220.0 sqft | Value: | $46,677 |
| Bathrooms: | 0 | Bedrooms: | 0 | | Ceiling: | PAINT OPEN FLOOR BAS | Exterior Wall/Cover: | 8" CON BLK/BEAR WALL | | Floor Covering: | CONCRETE SEALER | Floor Structure: | CONCRETE ON GROUND | | Foundation: | SLAB | Interior Finish: | MINI-WAREHOUSE | | Plumbing Fixture Cnt: | 1 | Roof Structure/Cover: | METAL/OPEN WOOD |
|
| Improvement #7: | MANUFACTURED HOME | State Code: | F1 | 1368.0 sqft | Value: | $160,175 |
| Bathrooms: | 0 | Bedrooms: | 0 | | Ceiling: | PLASTER PAINTED | Cooling: | EVAP NO DUCT | | Exterior Wall/Cover: | VINYL | Floor Covering: | CARPET 100% | | Floor Structure: | SLAB ON GRADE | Foundation: | SLAB | | Heating: | FHA ELECTRIC | Interior Finish: | PLASTER | | Plumbing Fixture Cnt: | 1 | Roof Slope: | FLAT | | Roof Structure/Cover: | CJ ALUMINIUM HEAVY |   |   |
|
| | Type | Description | Class CD | Sub Class CD | Year Built | Area |
| | BAS | BASE/MAIN FLOOR | 4 | 0 | 2001 | 1368.0 |
| | oPV2 | PV/ASPH 3" | 3 | 0 | 2001 | 6084.0 |
| | oPV2 | PV/ASPH 3" | 3 | 0 | 2001 | 4446.0 |
| | oPV2 | PV/ASPH 3" | 3 | 0 | 2001 | 4104.0 |
| | oPV2 | PV/ASPH 3" | 3 | 0 | 2001 | 3800.0 |
| | oPV2 | PV/ASPH 3" | 3 | 0 | 2001 | 4500.0 |
| | oPV2 | PV/ASPH 3" | 3 | 0 | 2001 | 2800.0 |
| | oPV2 | PV/ASPH 3" | 3 | 0 | 2001 | 1400.0 |
| | oPV2 | PV/ASPH 3" | 3 | 0 | 2001 | 10680.0 |
| | OWP | OPEN WOOD PORCH W/STEPS | 3 | 0 | 2001 | 192.0 |
| | OWP | OPEN WOOD PORCH W/STEPS | 3 | 0 | 2001 | 52.0 |
Sketch
Property Image
Land
| 1 | 72 | INDUSTRIAL STORAGE | 2.2300 | 97138.80 | 0.00 | 0.00 | 1.00 | $437,125 | $0 |
Roll Value History
| 2026 | N/A | N/A | N/A | N/A | N/A |
| 2025 | $517,524 | $437,125 | $0 | $954,649 | $954,649 |
| 2024 | $535,527 | $437,125 | $0 | $972,652 | $972,652 |
| 2023 | $538,413 | $388,555 | $0 | $926,968 | $926,968 |
| 2022 | $441,558 | $291,416 | $0 | $732,974 | $732,974 |
| 2021 | $433,645 | $291,416 | $0 | $725,061 | $725,061 |
| 2020 | $433,542 | $291,416 | $0 | $724,958 | $724,958 |
| 2019 | $466,256 | $291,416 | $0 | $757,672 | $757,672 |
| 2018 | $467,733 | $242,847 | $0 | $710,580 | $710,580 |
| 2017 | $469,207 | $145,708 | $0 | $614,915 | $614,915 |
| 2016 | $524,070 | $145,708 | $0 | $669,778 | $669,778 |
| 2015 | $558,097 | $339,986 | $0 | $898,083 | $898,083 |
| 2014 | $579,116 | $339,986 | $0 | $919,102 | $919,102 |
| 2013 | $830,890 | $270,260 | $0 | $1,101,150 | $1,101,150 |
| 2012 | $830,890 | $270,260 | $0 | $1,101,150 | $1,101,150 |
| 2011 | $830,890 | $270,260 | $0 | $1,101,150 | $1,101,150 |
| 2010 | $993,130 | $270,260 | $0 | $1,263,390 | $1,263,390 |
| 2009 | $1,028,810 | $295,537 | $0 | $1,324,347 | $1,324,347 |
| 2008 | $1,060,293 | $311,091 | $0 | $1,371,384 | $1,371,384 |
| 2007 | $1,095,017 | $311,091 | $0 | $1,406,108 | $1,406,108 |
Deed and Sales History
| 1 | 06/01/2009 | WD | Warranty Deed | NIENHUIS, PHILIP J | GOLDIE ROAD PROPERTIES , LLC, | | | $0.00 | 90026 | 4242299 |
| 2 | 02/24/2009 | WD | Warranty Deed | GOLDIE ROAD PROPERTIES , LLC, | GOLDIE ROAD PROPERTIES , LLC, | | | $0.00 | 90370 | 4245215 |
| 3 | 01/29/2002 | QCD | Quit Claim Deed | NIENHUIS, PHILIP/KATHRYN | NIENHUIS, PHILIP J | | | $0.00 | 30991 | 4054169 |
| 4 | 06/01/1993 | QCD | Quit Claim Deed | NIENHUIS, PHILIP & | NIENHUIS, PHILIP/KATHRYN | | | $0.00 | 31990 | 93010305 |
| 5 | 03/01/1991 | WD | Warranty Deed | NIENHUIS, PHILIP / | NIENHUIS, PHILIP & | | | $7,476.00 | 11038 | 91004441 |
| 6 | 11/01/1987 | OTHER | Other - Misc. Documents | NIENHUIS, PHILIP & | NIENHUIS, PHILIP / | | | $0.00 | 11111111 | 0 |
| 7 | 01/01/1900 | OTHER | Other - Misc. Documents | Unknown | NIENHUIS, PHILIP & | | | $0.00 | 62319 | 86010612 |
Payout Agreement
| No payout information available.. |