Property
Account |
| Property ID: | 640391 | Abbreviated Legal Description: | TR A SP 05-89.13332.328-4630 V2 SP P219 AF#90000480 |
| Geographic ID: | R13332-380-4690 | Agent Code: | |
| Type: | Real | | |
| Tax Area: | 112 - APPRAISER-OH Schl Dist, outside OH, improved, greater than 1 acre | Land Use Code | 11 |
| Open Space: | N | DFL | N |
| Historic Property: | N | Remodel Property: | N |
| Multi-Family Redevelopment: | N | | |
| Township: | 33 | Section: | 32 |
| Range: | R1 |
Location |
| Address: | 1647 CROSBY RD OAK HARBOR, WA 98277 | Mapsco: | |
| Neighborhood: | Cycle 1 | Map ID: | 247 |
| Neighborhood CD: | 1 |
Owner |
| Name: | VANDER LAAN, KEITH | Owner ID: | 312988 |
| Mailing Address: | LORI VANDER LAAN 1647 CROSBY RD OAK HARBOR, WA 98277 | % Ownership: | 100.0000000000% |
| | | Exemptions: | |
Taxes and Assessment Details
Values
| (+) Improvement Homesite Value: | + | $0 | |
| (+) Improvement Non-Homesite Value: | + | $460,358 | |
| (+) Land Homesite Value: | + | $0 | |
| (+) Land Non-Homesite Value: | + | $290,000 | |
| (+) Curr Use (HS): | + | $0 | $0 |
| (+) Curr Use (NHS): | + | $0 | $0 |
| | | -------------------------- | |
| (=) Market Value: | = | $750,358 | |
| (–) Productivity Loss: | – | $0 | |
| | | -------------------------- | |
| (=) Subtotal: | = | $750,358 | |
| (+) Senior Appraised Value: | + | $0 | |
| (+) Non-Senior Appraised Value: | + | $750,358 | |
| | | -------------------------- | |
| (=) Total Appraised Value: | = | $750,358 | |
| (–) Senior Exemption Loss: | – | $0 | |
| (–) Exemption Loss: | – | $0 | |
| | | -------------------------- | |
| (=) Taxable Value: | = | $750,358 | |
Taxing Jurisdiction
| Owner: | VANDER LAAN, KEITH | | |
| % Ownership: | 100.0000000000% | | |
| Total Value: | $750,358 | | |
| Tax Area: | 112 - APPRAISER-OH Schl Dist, outside OH, improved, greater than 1 acre |
| CF | Conservation Futures | 0.0313996660 | $750,358 | $750,358 | $23.56 | | |
| CEM1 | Cemetery #1 | 0.0040018856 | $750,358 | $750,358 | $3.00 | | |
| FIRE2 | Fire & Rescue Dist #2 N Whidbey GEN | 0.5381486274 | $750,358 | $750,358 | $403.80 | | |
| HOBOND | Hospital BOND | 0.1893405597 | $750,358 | $750,358 | $142.07 | | |
| HOGEN | Hospital GEN | 0.3848777722 | $750,358 | $750,358 | $288.80 | | |
| CE | County Current Expense | 0.3674210519 | $750,358 | $750,358 | $275.70 | | |
| CR | County Roads | 0.4614296361 | $750,358 | $750,358 | $346.24 | | |
| ISLANDEMS | Hospital GEN (EMS) | 0.4952018576 | $750,358 | $750,358 | $371.58 | | |
| LIB | Library Sno-Isle GEN | 0.3039084203 | $750,358 | $750,358 | $228.04 | | |
| NWHIDPRMT | P & R N Whidbey GEN | 0.1990272349 | $750,358 | $750,358 | $149.34 | | |
| SCH201MO | School 201 Enrichment | 2.3851112745 | $750,358 | $750,358 | $1,789.69 | | |
| ST | State School | 1.4761226122 | $750,358 | $750,358 | $1,107.62 | | |
| ST2 | State School Part 2 | 0.7953803475 | $750,358 | $750,358 | $596.82 | | |
| | Total Tax Rate: | 7.6313709459 | | | | | |
| | | | | Taxes w/Current Exemptions: | $5,726.26 | | |
| | | | | Taxes w/o Exemptions: | $5,726.26 | | |
Improvement / Building
| Improvement #1: | RESIDENTIAL | State Code: | Y | 2530.0 sqft | Value: | $460,358 |
| Bathrooms: | 2.5 | Bedrooms: | 3 | | Ceiling: | DRYWALL PAINTED | Exterior Wall/Cover: | ASBESTOES/ASPHALT | | Floor Covering: | CERAMIC TILE/HWD 40/60 | Floor Structure: | WOOD W/SUBFLOOR | | Foundation: | CONCRETE BLOCKS | Heating: | FHA OIL | | Interior Finish: | DRYWALL PAINT | Plumbing Fixture Cnt: | 11 | | Roof Slope: | 8" IN 12" | Roof Structure/Cover: | CJ ALUMINIUM HEAVY |
|
| | Type | Description | Class CD | Sub Class CD | Year Built | Area |
| | BAS | BASE/MAIN FLOOR | 4 | 0 | 1922 | 1066.0 |
| | UPS | UPPER STORY | 4 | 0 | 1922 | 440.0 |
| | DWN | DOWNSTAIRS LIVING AREA | 4 | 0 | 1922 | 416.0 |
| | OP2 | OPEN PORCH W/STEPS | 4 | 0 | 1922 | 30.6 |
| | OP2 | OPEN PORCH W/STEPS | 4 | 0 | 1922 | 107.5 |
| | DGR | DETACHED GARAGE | 4 | 0 | 1922 | 768.0 |
| | UPS | UPPER STORY | 4 | 0 | 1922 | 608.0 |
| | CPD | OPEN CARPORT DIRT FLOOR | 4 | 0 | 1922 | 320.0 |
Sketch
| No sketches available for this property. |
Property Image
Land
| 1 | 18 | AC (02.01-03.00) | 2.5000 | 108900.00 | 0.00 | 0.00 | 1.00 | $290,000 | $0 |
Roll Value History
| 2026 | N/A | N/A | N/A | N/A | N/A |
| 2025 | $460,358 | $290,000 | $0 | $750,358 | $750,358 |
| 2024 | $466,316 | $280,000 | $0 | $746,316 | $746,316 |
| 2023 | $469,701 | $280,000 | $0 | $749,701 | $749,701 |
| 2022 | $351,620 | $250,000 | $0 | $601,620 | $601,620 |
| 2021 | $309,775 | $210,000 | $0 | $519,775 | $519,775 |
| 2020 | $302,898 | $175,000 | $0 | $477,898 | $477,898 |
| 2019 | $237,397 | $230,000 | $0 | $467,397 | $467,397 |
| 2018 | $238,146 | $190,000 | $0 | $428,146 | $428,146 |
| 2017 | $202,244 | $150,000 | $0 | $352,244 | $352,244 |
| 2016 | $204,871 | $105,000 | $0 | $309,871 | $309,871 |
| 2015 | $207,498 | $90,000 | $0 | $297,498 | $297,498 |
| 2014 | $210,123 | $80,000 | $0 | $290,123 | $290,123 |
| 2013 | $133,882 | $80,000 | $0 | $213,882 | $213,882 |
| 2012 | $136,076 | $109,650 | $0 | $245,726 | $245,726 |
| 2011 | $132,533 | $129,000 | $0 | $261,533 | $261,533 |
| 2010 | $139,767 | $129,000 | $0 | $268,767 | $268,767 |
| 2009 | $145,963 | $142,000 | $0 | $287,963 | $287,963 |
| 2008 | $154,352 | $155,150 | $0 | $309,502 | $309,502 |
| 2007 | $156,496 | $155,150 | $0 | $311,646 | $311,646 |
Deed and Sales History
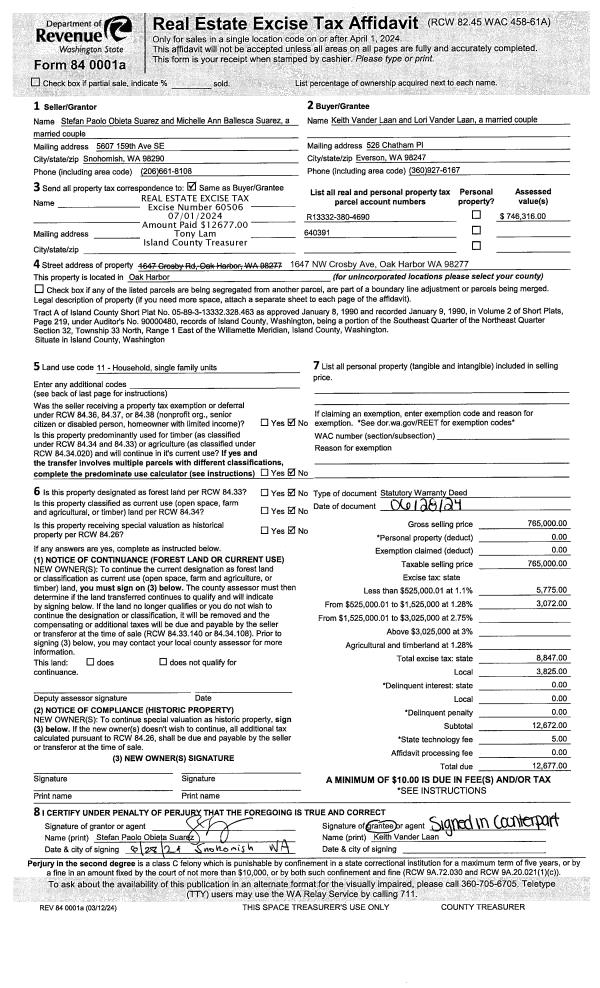
| 1 | 06/28/2024 | WD | Warranty Deed | OBIETA SUAREZ, STEFAN | VANDER LAAN, KEITH | | | $765,000.00 | 60506 | 4574078 |
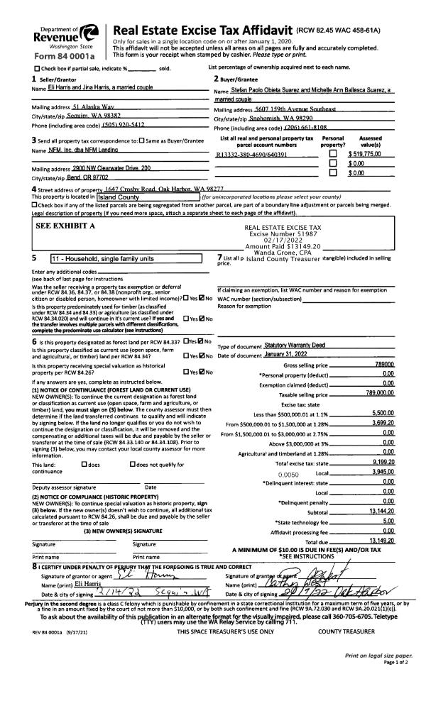
| 2 | 01/31/2022 | WD | Warranty Deed | HARRIS, ELI | OBIETA SUAREZ, STEFAN | | | $789,000.00 | 51987 | 4539910 |
| 3 | 07/06/2021 | QCD | Quit Claim Deed | HARRIS, JINA SONG | HARRIS, ELI | | | $0.00 | 49120 | 4524161 |
| 4 | 07/09/2021 | WD | Warranty Deed | WINTON, MOLLY G | HARRIS, ELI | | | $700,108.00 | 49119 | 4524160 |
| 5 | 09/28/2017 | WD | Warranty Deed | BURNS, MICHAEL A | WINTON, MOLLY G | | | $432,500.00 | 31302 | 4431109 |
| 6 | 04/22/2013 | WD | Warranty Deed | SHELLENBARGER, DAVE L | BURNS, MICHAEL A | | | $375,000.00 | 11278 | 4339678 |
| 7 | 07/08/2005 | WD | Warranty Deed | COMER, TIMOTHY L | SHELLENBARGER, DAVE L | | | $375,000.00 | 53401 | 4140724 |
| 8 | 06/17/2002 | ESTSEPPROP | Establish Separate Property | COMER, TIMOTHY L | COMER, TIMOTHY L | | | $0.00 | 30567 | 4047542 |
| 9 | 07/26/2001 | WD | Warranty Deed | FAKKEMA, RICHARD J | COMER, TIMOTHY L | | | $130,156.00 | 12973 | 20039201 |
| 10 | 01/01/1990 | QCD | Quit Claim Deed | U, S S | FAKKEMA, RICHARD J | | | $0.00 | 453 | 90001371 |
| 11 | 01/01/1900 | OTHER | Other - Misc. Documents | Unknown | U, S S | | | $0.00 | 91203 | 89004205 |
Payout Agreement
| No payout information available.. |