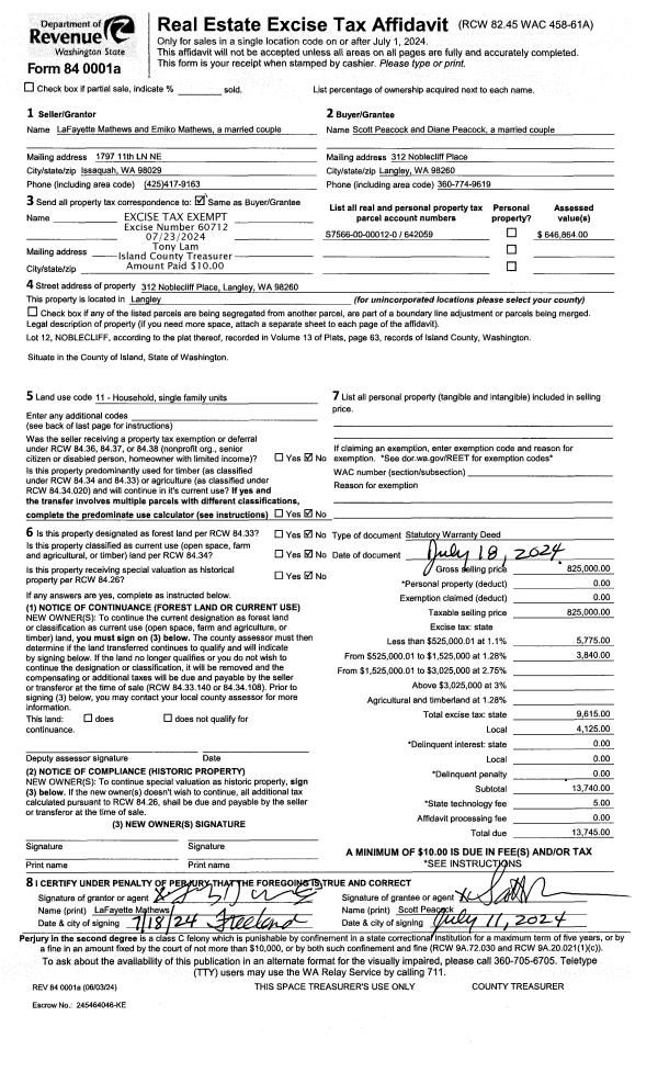
Property
Account |
| Property ID: | 642059 | Abbreviated Legal Description: | NOBLECLIFF LOT 12 |
| Geographic ID: | S7566-00-00012-0 | Agent Code: | |
| Type: | Real | | |
| Tax Area: | 700 - APPRAISER-S Whid Schl Dist, in town of Langley | Land Use Code | 11 |
| Open Space: | N | DFL | N |
| Historic Property: | N | Remodel Property: | N |
| Multi-Family Redevelopment: | N | | |
| Township: | | Section: | |
| Range: | |
Location |
| Address: | 312 NOBLECLIFF PLACE LANGLEY, WA 98260 | Mapsco: | |
| Neighborhood: | City of Langley | Map ID: | 727 |
| Neighborhood CD: | 04-L |
Owner |
| Name: | PEACOCK, SCOTT | Owner ID: | 313248 |
| Mailing Address: | DIANE PEACOCK 312 NOBLE CLIFF PL LANGLEY, WA 98260 | % Ownership: | 100.0000000000% |
| | | Exemptions: | |
Taxes and Assessment Details
Values
| (+) Improvement Homesite Value: | + | $0 | |
| (+) Improvement Non-Homesite Value: | + | $508,908 | |
| (+) Land Homesite Value: | + | $0 | |
| (+) Land Non-Homesite Value: | + | $300,000 | |
| (+) Curr Use (HS): | + | $0 | $0 |
| (+) Curr Use (NHS): | + | $0 | $0 |
| | | -------------------------- | |
| (=) Market Value: | = | $808,908 | |
| (–) Productivity Loss: | – | $0 | |
| | | -------------------------- | |
| (=) Subtotal: | = | $808,908 | |
| (+) Senior Appraised Value: | + | $0 | |
| (+) Non-Senior Appraised Value: | + | $808,908 | |
| | | -------------------------- | |
| (=) Total Appraised Value: | = | $808,908 | |
| (–) Senior Exemption Loss: | – | $0 | |
| (–) Exemption Loss: | – | $0 | |
| | | -------------------------- | |
| (=) Taxable Value: | = | $808,908 | |
Taxing Jurisdiction
| Owner: | PEACOCK, SCOTT | | |
| % Ownership: | 100.0000000000% | | |
| Total Value: | $808,908 | | |
| Tax Area: | 700 - APPRAISER-S Whid Schl Dist, in town of Langley |
| CF | Conservation Futures | 0.0313996660 | $808,908 | $808,908 | $25.40 | | |
| LANG | City of Langley | 1.0106798199 | $808,908 | $808,908 | $817.55 | | |
| LANGBOND | City of Langley BOND | 0.0000000000 | $808,908 | $808,908 | $0.00 | | |
| FIRE3 | Fire & Rescue Dist #3 S Whidbey GEN | 1.2130821753 | $808,908 | $808,908 | $981.27 | | |
| HOBOND | Hospital BOND | 0.1893405597 | $808,908 | $808,908 | $153.16 | | |
| HOGEN | Hospital GEN | 0.3848777722 | $808,908 | $808,908 | $311.33 | | |
| CE | County Current Expense | 0.3674210519 | $808,908 | $808,908 | $297.21 | | |
| ISLANDEMS | Hospital GEN (EMS) | 0.4952018576 | $808,908 | $808,908 | $400.57 | | |
| LIB | Library Sno-Isle GEN | 0.3039084203 | $808,908 | $808,908 | $245.83 | | |
| PORTWHID | Port of S Whidbey GEN | 0.1086004714 | $808,908 | $808,908 | $87.85 | | |
| SCH206BOND | School 206 BOND | 0.5960237832 | $808,908 | $808,908 | $482.13 | | |
| SCH206CAP | School 206 CP | 0.3066144020 | $808,908 | $808,908 | $248.02 | | |
| SCH206MO | School 206 Enrichment | 0.4808755445 | $808,908 | $808,908 | $388.98 | | |
| ST | State School | 1.4761226122 | $808,908 | $808,908 | $1,194.05 | | |
| ST2 | State School Part 2 | 0.7953803475 | $808,908 | $808,908 | $643.39 | | |
| SWHIDPRBD | P & R S Whidbey BOND | 0.0144185398 | $808,908 | $808,908 | $11.66 | | |
| SWHIDPRBD3 | P & R S Whidbey BOND3 | 0.1483535547 | $808,908 | $808,908 | $120.00 | | |
| SWHIDPRMT | P & R S Whidbey GEN | 0.4600000000 | $808,908 | $808,908 | $372.10 | | |
| | Total Tax Rate: | 8.3823005782 | | | | | |
| | | | | Taxes w/Current Exemptions: | $6,780.50 | | |
| | | | | Taxes w/o Exemptions: | $6,780.50 | | |
Improvement / Building
| Improvement #1: | RESIDENTIAL | State Code: | Y | 1854.0 sqft | Value: | $508,908 |
| Bathrooms: | 2 | Bedrooms: | 3 | | Ceiling: | DRYWALL PAINTED | Cooling: | HEAT PUMP/CONV/V | | Exterior Wall/Cover: | CEMENT FIBER | Floor Covering: | TILE CERAMIC | | Floor Structure: | WOOD W/SUBFLOOR | Foundation: | CONCRETE | | Interior Finish: | DRYWALL PAINT | Plumbing Fixture Cnt: | 13 | | Roof Slope: | 8" IN 12" | Roof Structure/Cover: | CJ ASPHALT |
|
| | Type | Description | Class CD | Sub Class CD | Year Built | Area |
| | BAS | BASE/MAIN FLOOR | 4 | 0 | 1992 | 1523.0 |
| | AGR | ATTACHED GARAGE | 4 | 0 | 1992 | 405.0 |
| | UPS | UPPER STORY | 4 | 0 | 1992 | 216.0 |
| | OWP | OPEN WOOD PORCH W/STEPS | 4 | 0 | 1992 | 392.0 |
| | OWC | OPEN WOOD PORCH W/STEPS/ROOF/C | 4 | 0 | 1992 | 49.0 |
| | LOF | LOFT | 4 | 0 | 1992 | 115.0 |
Sketch
| No sketches available for this property. |
Property Image
Land
| 1 | 13 | SQ (06001-08000) | 0.0000 | 0.00 | 0.00 | 0.00 | 1.00 | $300,000 | $0 |
Roll Value History
| 2026 | N/A | N/A | N/A | N/A | N/A |
| 2025 | $508,908 | $300,000 | $0 | $808,908 | $808,908 |
| 2024 | $391,979 | $300,000 | $0 | $691,979 | $691,979 |
| 2023 | $396,864 | $250,000 | $0 | $646,864 | $646,864 |
| 2022 | $363,788 | $210,000 | $0 | $573,788 | $573,788 |
| 2021 | $320,186 | $180,000 | $0 | $500,186 | $500,186 |
| 2020 | $290,251 | $180,000 | $0 | $470,251 | $470,251 |
| 2019 | $216,433 | $190,000 | $0 | $406,433 | $406,433 |
| 2018 | $217,117 | $175,000 | $0 | $392,117 | $392,117 |
| 2017 | $218,481 | $165,000 | $0 | $383,481 | $383,481 |
| 2016 | $221,213 | $150,000 | $0 | $371,213 | $371,213 |
| 2015 | $223,944 | $161,000 | $0 | $384,944 | $384,944 |
| 2014 | $192,811 | $161,000 | $0 | $353,811 | $353,811 |
| 2013 | $195,314 | $161,000 | $0 | $356,314 | $356,314 |
| 2012 | $197,819 | $168,360 | $0 | $366,179 | $366,179 |
| 2011 | $200,322 | $183,000 | $0 | $383,322 | $383,322 |
| 2010 | $206,058 | $183,000 | $0 | $389,058 | $389,058 |
| 2009 | $214,930 | $200,000 | $0 | $414,930 | $414,930 |
| 2008 | $173,358 | $250,000 | $0 | $423,358 | $423,358 |
| 2007 | $175,419 | $250,000 | $0 | $425,419 | $425,419 |
Deed and Sales History
| 1 | 07/18/2024 | WD | Warranty Deed | MATHEWS, LAFAYETTE | PEACOCK, SCOTT | | | $825,000.00 | 60712 | 4574936 |
| 2 | 03/01/2017 | WD | Warranty Deed | SMITH, ROBERT B | MATHEWS, LAFAYETTE | | | $449,460.00 | 28301 | 4418227 |
| 3 | 06/08/1998 | WD | Warranty Deed | SMITH, ROBERT B | SMITH, ROBERT B | | | $209,000.00 | 82299 | 98011988 |
| 4 | 12/01/1990 | WD | Warranty Deed | NEFF, MILES F | SMITH, FAITH N | | | $57,000.00 | 10020 | 91000168 |
| 5 | 10/01/1989 | WD | Warranty Deed | ALBRECHT, THOMAS C | NEFF, MILES F | | | $32,500.00 | 94564 | 89014886 |
| 6 | 01/01/1900 | OTHER | Other - Misc. Documents | Unknown | ALBRECHT, THOMAS C | | | $0.00 | 94199 | 89013819 |
| 7 | 01/01/1900 | OTHER | Other - Misc. Documents | SMITH, FAITH N | SMITH, ROBERT B | | | $0.00 | 82299 | 98011988 |
Payout Agreement
| No payout information available.. |