Property
Account |
| Property ID: | 642157 | Abbreviated Legal Description: | CASCADE VILLAGE #1 LOT 2 |
| Geographic ID: | S6333-00-00002-0 | Agent Code: | |
| Type: | Real | | |
| Tax Area: | 100 - APPRAISER-OH Schl Dist, in OH | Land Use Code | 11 |
| Open Space: | N | DFL | N |
| Historic Property: | N | Remodel Property: | N |
| Multi-Family Redevelopment: | N | | |
| Township: | | Section: | |
| Range: | |
Location |
| Address: | 486 SW ERIE CIR OAK HARBOR, WA 98277 | Mapsco: | |
| Neighborhood: | Cycle 1 | Map ID: | 93 |
| Neighborhood CD: | 1 |
Owner |
| Name: | HAWKINS, JOSEPH | Owner ID: | 303820 |
| Mailing Address: | TRACY HAWKINS PO BOX 99 OAK HARBOR, WA 98277 | % Ownership: | 100.0000000000% |
| | | Exemptions: | |
Taxes and Assessment Details
Values
| (+) Improvement Homesite Value: | + | $0 | |
| (+) Improvement Non-Homesite Value: | + | $281,877 | |
| (+) Land Homesite Value: | + | $0 | |
| (+) Land Non-Homesite Value: | + | $200,000 | |
| (+) Curr Use (HS): | + | $0 | $0 |
| (+) Curr Use (NHS): | + | $0 | $0 |
| | | -------------------------- | |
| (=) Market Value: | = | $481,877 | |
| (–) Productivity Loss: | – | $0 | |
| | | -------------------------- | |
| (=) Subtotal: | = | $481,877 | |
| (+) Senior Appraised Value: | + | $0 | |
| (+) Non-Senior Appraised Value: | + | $481,877 | |
| | | -------------------------- | |
| (=) Total Appraised Value: | = | $481,877 | |
| (–) Senior Exemption Loss: | – | $0 | |
| (–) Exemption Loss: | – | $0 | |
| | | -------------------------- | |
| (=) Taxable Value: | = | $481,877 | |
Taxing Jurisdiction
| Owner: | HAWKINS, JOSEPH | | |
| % Ownership: | 100.0000000000% | | |
| Total Value: | $481,877 | | |
| Tax Area: | 100 - APPRAISER-OH Schl Dist, in OH |
| CF | Conservation Futures | 0.0313996660 | $481,877 | $481,877 | $15.13 | | |
| CEM1 | Cemetery #1 | 0.0040018856 | $481,877 | $481,877 | $1.93 | | |
| COH | City of Oak Harbor | 2.3090730572 | $481,877 | $481,877 | $1,112.69 | | |
| OAKBOND | City of Oak Harbor BOND | 0.1902260131 | $481,877 | $481,877 | $91.67 | | |
| HOBOND | Hospital BOND | 0.1893405597 | $481,877 | $481,877 | $91.24 | | |
| HOGEN | Hospital GEN | 0.3848777722 | $481,877 | $481,877 | $185.46 | | |
| CE | County Current Expense | 0.3674210519 | $481,877 | $481,877 | $177.05 | | |
| ISLANDEMS | Hospital GEN (EMS) | 0.4952018576 | $481,877 | $481,877 | $238.63 | | |
| LIB | Library Sno-Isle GEN | 0.3039084203 | $481,877 | $481,877 | $146.45 | | |
| NWHIDPRMT | P & R N Whidbey GEN | 0.1990272349 | $481,877 | $481,877 | $95.91 | | |
| SCH201MO | School 201 Enrichment | 2.3851112745 | $481,877 | $481,877 | $1,149.33 | | |
| ST | State School | 1.4761226122 | $481,877 | $481,877 | $711.31 | | |
| ST2 | State School Part 2 | 0.7953803475 | $481,877 | $481,877 | $383.28 | | |
| | Total Tax Rate: | 9.1310917527 | | | | | |
| | | | | Taxes w/Current Exemptions: | $4,400.08 | | |
| | | | | Taxes w/o Exemptions: | $4,400.08 | | |
Improvement / Building
| Improvement #1: | RESIDENTIAL | State Code: | Y | 1620.2 sqft | Value: | $281,877 |
| Bathrooms: | 2.5 | Bedrooms: | 3 | | Ceiling: | DRYWALL PAINTED | Exterior Wall/Cover: | CEMENT FIBER | | Floor Covering: | CARPET/VINYL 80-20 | Floor Structure: | WOOD W/SUBFLOOR | | Foundation: | CONCRETE | Heating: | FHA GAS | | Interior Finish: | DRYWALL PAINT | Plumbing Fixture Cnt: | 11 | | Roof Slope: | 6" IN 12" | Roof Structure/Cover: | CJ ASPHALT |
|
| | Type | Description | Class CD | Sub Class CD | Year Built | Area |
| | BAS | BASE/MAIN FLOOR | 3 | 0 | 1996 | 930.2 |
| | AGR | ATTACHED GARAGE | 3 | 0 | 1996 | 462.0 |
| | UPS | UPPER STORY | 3 | 0 | 1996 | 690.0 |
| | OWC | OPEN WOOD PORCH W/STEPS/ROOF/C | 3 | 0 | 1996 | 100.8 |
Sketch
Property Image
Land
| 1 | HS | HOMESITE | 0.1653 | 7200.47 | 0.00 | 0.00 | 1.00 | $200,000 | $0 |
Roll Value History
| 2026 | N/A | N/A | N/A | N/A | N/A |
| 2025 | $281,877 | $200,000 | $0 | $481,877 | $481,877 |
| 2024 | $285,223 | $180,000 | $0 | $465,223 | $465,223 |
| 2023 | $273,773 | $190,000 | $0 | $463,773 | $463,773 |
| 2022 | $250,925 | $180,000 | $0 | $430,925 | $430,925 |
| 2021 | $220,815 | $120,000 | $0 | $340,815 | $340,815 |
| 2020 | $214,892 | $100,000 | $0 | $314,892 | $314,892 |
| 2019 | $146,711 | $150,000 | $0 | $296,711 | $296,711 |
| 2018 | $147,162 | $130,000 | $0 | $277,162 | $277,162 |
| 2017 | $148,260 | $110,000 | $0 | $258,260 | $258,260 |
| 2016 | $150,067 | $90,000 | $0 | $240,067 | $240,067 |
| 2015 | $151,877 | $70,000 | $0 | $221,877 | $221,877 |
| 2014 | $153,685 | $55,000 | $0 | $208,685 | $208,685 |
| 2013 | $155,492 | $55,000 | $0 | $210,492 | $210,492 |
| 2012 | $157,301 | $60,000 | $0 | $217,301 | $217,301 |
| 2011 | $167,525 | $50,000 | $0 | $217,525 | $217,525 |
| 2010 | $172,578 | $50,000 | $0 | $222,578 | $222,578 |
| 2009 | $179,900 | $60,000 | $0 | $239,900 | $239,900 |
| 2008 | $181,920 | $64,000 | $0 | $245,920 | $245,920 |
| 2007 | $183,939 | $64,000 | $0 | $247,939 | $247,939 |
Deed and Sales History
| 1 | 04/13/2022 | WD | Warranty Deed | HOEHNS, SCOTT D | HAWKINS, JOSEPH | | | $515,000.00 | 52731 | 4543463 |
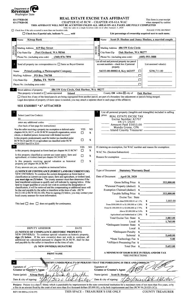
| 2 | 04/20/2020 | WD | Warranty Deed | KITSAP BANK | HOEHNS, SCOTT D | | | $353,000.00 | 42707 | 4485190 |
| 3 | 02/12/2020 | TRUSTEED | Trustee's Deed | HAYWOOD, RODNEY M | KITSAP BANK | | | $0.00 | 42193 | 4481779 |
| 4 | 05/17/2005 | WD | Warranty Deed | HAMMING, GORDON | HAYWOOD, RODNEY M | | | $221,750.00 | 52272 | 4135057 |
| 5 | 03/01/1990 | DECREE | Divorce Decree/Legal Separation | HAMMING, GORDON | HAMMING, GORDON | | | $0.00 | 1659 | 90005373 |
| 6 | 01/01/1900 | OTHER | Other - Misc. Documents | Unknown | HAMMING, GORDON | | | $0.00 | 90683 | 89002392 |
Payout Agreement
| No payout information available.. |