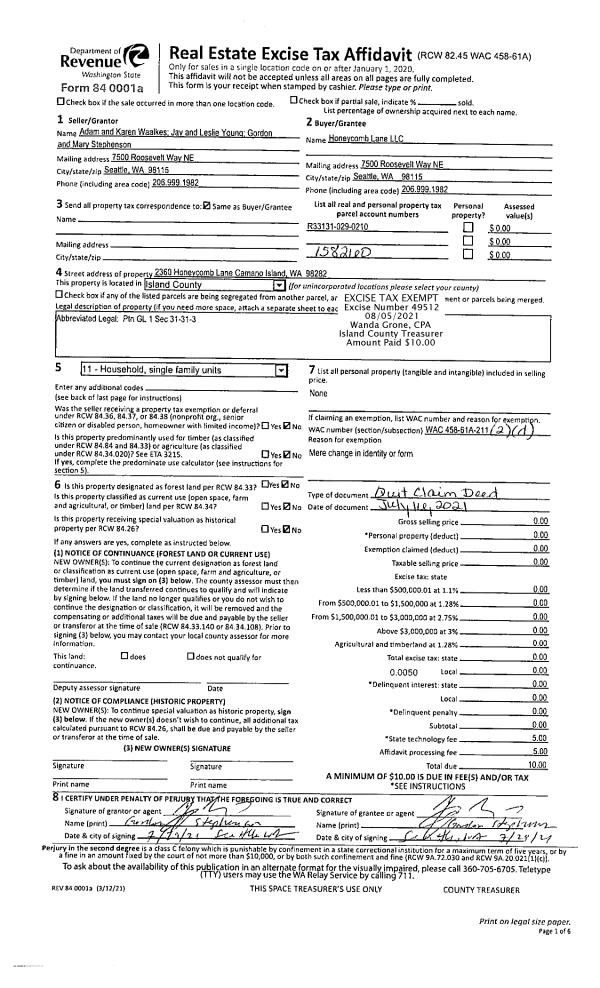
Property
Account |
| Property ID: | 6451 | Abbreviated Legal Description: | 27 R C HILL DC - LOT 14 SHERHILL VISTA (UNREC) BG SW CR ENGLE DLC N89*E467 .93' ALG NLN SD DLC S9*E370 .42' S17*E456.49' S85*W123. 58' N44*W79.79' TPB N44*W82 .75' S35*W TO HIGH TIDE LN SELY ALG HIGH TIDE LN TP S30*W FR TPB N30*E TPB |
| Geographic ID: | R13109-124-1110 | Agent Code: | |
| Type: | Real | | |
| Tax Area: | 310 - APPRAISER-Cpvl Schl Dist, outside Cpvl, improved & 1 acre or less | Land Use Code | 11 |
| Open Space: | N | DFL | N |
| Historic Property: | N | Remodel Property: | N |
| Multi-Family Redevelopment: | N | | |
| Township: | 31 | Section: | 09 |
| Range: | R1 |
Location |
| Address: | 702 CATHEDRAL DR COUPEVILLE, WA 98239 | Mapsco: | |
| Neighborhood: | Area 2 Waterfront Westside Residential | Map ID: | 42 |
| Neighborhood CD: | 2WFW01R |
Owner |
| Name: | WALLHOFF-LAMPRECHT, MAGDALENA S. | Owner ID: | 300797 |
| Mailing Address: | 702 CATHEDRAL DRIVE COUPEVILLE, WA 98239 | % Ownership: | 100.0000000000% |
| | | Exemptions: | |
Taxes and Assessment Details
Values
| (+) Improvement Homesite Value: | + | $0 | |
| (+) Improvement Non-Homesite Value: | + | $211,223 | |
| (+) Land Homesite Value: | + | $0 | |
| (+) Land Non-Homesite Value: | + | $545,500 | |
| (+) Curr Use (HS): | + | $0 | $0 |
| (+) Curr Use (NHS): | + | $0 | $0 |
| | | -------------------------- | |
| (=) Market Value: | = | $756,723 | |
| (–) Productivity Loss: | – | $0 | |
| | | -------------------------- | |
| (=) Subtotal: | = | $756,723 | |
| (+) Senior Appraised Value: | + | $0 | |
| (+) Non-Senior Appraised Value: | + | $756,723 | |
| | | -------------------------- | |
| (=) Total Appraised Value: | = | $756,723 | |
| (–) Senior Exemption Loss: | – | $0 | |
| (–) Exemption Loss: | – | $0 | |
| | | -------------------------- | |
| (=) Taxable Value: | = | $756,723 | |
Taxing Jurisdiction
| Owner: | WALLHOFF-LAMPRECHT, MAGDALENA S. | | |
| % Ownership: | 100.0000000000% | | |
| Total Value: | $756,723 | | |
| Tax Area: | 310 - APPRAISER-Cpvl Schl Dist, outside Cpvl, improved & 1 acre or less |
| CF | Conservation Futures | 0.0313996660 | $756,723 | $756,723 | $23.76 | | |
| CEM2 | Cemetery #2 | 0.0092609791 | $756,723 | $756,723 | $7.01 | | |
| FIRE5 | Fire & Rescue Dist #5 C Whidbey GEN | 1.1892169230 | $756,723 | $756,723 | $899.91 | | |
| FIRE5BOND | Fire & Rescue Dist #5 C Whidbey BOND | 0.1394359503 | $756,723 | $756,723 | $105.51 | | |
| HOBOND | Hospital BOND | 0.1893405597 | $756,723 | $756,723 | $143.28 | | |
| HOGEN | Hospital GEN | 0.3848777722 | $756,723 | $756,723 | $291.25 | | |
| CE | County Current Expense | 0.3674210519 | $756,723 | $756,723 | $278.04 | | |
| CR | County Roads | 0.4614296361 | $756,723 | $756,723 | $349.17 | | |
| ISLANDEMS | Hospital GEN (EMS) | 0.4952018576 | $756,723 | $756,723 | $374.73 | | |
| LIB | Library Sno-Isle GEN | 0.3039084203 | $756,723 | $756,723 | $229.97 | | |
| LIBCAP | Library Sno-Isle BOND (Cap Fac Imp Area) | 0.0528562629 | $756,723 | $756,723 | $40.00 | | |
| POCOUP | Port of Coupeville GEN | 0.1065226063 | $756,723 | $756,723 | $80.61 | | |
| POCOUPIDD | Port of Coupeville IDD | 0.3353038577 | $756,723 | $756,723 | $253.73 | | |
| COUPSDTECH | School 204 CP (TECH) | 0.1215123397 | $756,723 | $756,723 | $91.95 | | |
| SCH204MO | School 204 Enrichment | 0.6416662518 | $756,723 | $756,723 | $485.56 | | |
| ST | State School | 1.4761226122 | $756,723 | $756,723 | $1,117.02 | | |
| ST2 | State School Part 2 | 0.7953803475 | $756,723 | $756,723 | $601.88 | | |
| | Total Tax Rate: | 7.1008570943 | | | | | |
| | | | | Taxes w/Current Exemptions: | $5,373.38 | | |
| | | | | Taxes w/o Exemptions: | $5,373.38 | | |
Improvement / Building
| Improvement #1: | RESIDENTIAL | State Code: | Y | 2201.0 sqft | Value: | $211,223 |
| Bathrooms: | 1.5 | Bedrooms: | 2 | | Ceiling: | PLYWOOD PAINTED | Exterior Wall/Cover: | WOOD SIDING | | Floor Covering: | SOFTWOOD/VINYL 60-40 | Floor Structure: | WOOD W/SUBFLOOR | | Foundation: | CONCRETE | Heating: | BASEBOARD ELECTRIC | | Interior Finish: | DRYWALL PAINT | Plumbing Fixture Cnt: | 9 | | Roof Slope: | 5" IN 12" | Roof Structure/Cover: | CJ ALUMINIUM HEAVY |
|
| | Type | Description | Class CD | Sub Class CD | Year Built | Area |
| | BAS | BASE/MAIN FLOOR | 3 | 0 | 1975 | 1641.0 |
| | OWP | OPEN WOOD PORCH W/STEPS | 3 | 0 | 1975 | 28.0 |
| | OWR | OPEN WOOD PORCH W/STEPS/ROOF | 3 | 0 | 1975 | 35.0 |
| | OWC | OPEN WOOD PORCH W/STEPS/ROOF/C | 3 | 0 | 1975 | 100.0 |
| | LOF | LOFT | 3 | 0 | 1975 | 560.0 |
| | OWP | OPEN WOOD PORCH W/STEPS | 3 | 0 | 1975 | 64.0 |
Sketch
Property Image
Land
| 1 | HB | HIGH BLUFF | 0.5200 | 22651.20 | 100.00 | 0.00 | 1.00 | $545,500 | $0 |
Roll Value History
| 2026 | N/A | N/A | N/A | N/A | N/A |
| 2025 | $211,223 | $545,500 | $0 | $756,723 | $756,723 |
| 2024 | $208,411 | $545,500 | $0 | $753,911 | $753,911 |
| 2023 | $211,990 | $519,750 | $0 | $731,740 | $731,740 |
| 2022 | $195,193 | $495,000 | $0 | $690,193 | $690,193 |
| 2021 | $172,557 | $450,000 | $0 | $622,557 | $622,557 |
| 2020 | $169,312 | $450,000 | $0 | $619,312 | $619,312 |
| 2019 | $131,905 | $500,000 | $0 | $631,905 | $631,905 |
| 2018 | $122,702 | $500,000 | $0 | $622,702 | $335,513 |
| 2017 | $123,719 | $500,000 | $0 | $623,719 | $623,719 |
| 2016 | $125,755 | $500,000 | $0 | $625,755 | $134,206 |
| 2015 | $127,789 | $500,000 | $0 | $627,789 | $134,206 |
| 2014 | $129,824 | $500,000 | $0 | $629,824 | $134,206 |
| 2013 | $131,859 | $459,264 | $0 | $591,123 | $134,206 |
| 2012 | $133,894 | $459,264 | $0 | $593,158 | $134,206 |
| 2011 | $135,929 | $540,402 | $0 | $676,331 | $134,206 |
| 2010 | $146,126 | $540,402 | $0 | $686,528 | $134,206 |
| 2009 | $152,604 | $581,210 | $0 | $733,814 | $265,514 |
| 2008 | $157,818 | $559,535 | $0 | $717,353 | $335,513 |
| 2007 | $157,521 | $425,891 | $0 | $583,412 | $335,513 |
Deed and Sales History
| 1 | 08/02/2021 | BARGSLD | Bargain And Sale Deed | MORRIS, MARGARET L | WALLHOFF-LAMPRECHT, MAGDALENA S. | | | $605,000.00 | 49600 | 4526673 |
| 2 | 03/03/2005 | 5 | DNU - Marriage License/Name Change | MORRIS, GEORGE C | MORRIS, MARGARET L | | | $0.00 | 70490 | 0 |
| 3 | 04/01/1973 | EXECUTORD | Executor Deed | Unknown | MORRIS, GEORGE C | | | $14,700.00 | 47164 | 0 |
Payout Agreement
| No payout information available.. |