Property
Account |
| Property ID: | 646304 | Abbreviated Legal Description: | LOT 1 SP 33-89.23036.097-0350 V2 SP P228 AF#90004080 |
| Geographic ID: | R23036-098-0180 | Agent Code: | |
| Type: | Real | | |
| Tax Area: | 712 - APPRAISER-S Whid Schl Dist, outside Langley, improved, greater than 1 acre | Land Use Code | 11 |
| Open Space: | N | DFL | N |
| Historic Property: | N | Remodel Property: | N |
| Multi-Family Redevelopment: | N | | |
| Township: | 30 | Section: | 36 |
| Range: | R2 |
Location |
| Address: | 4741 EAST HARBOR RD FREELAND, WA 98249 | Mapsco: | |
| Neighborhood: | Cycle 3 | Map ID: | 445 |
| Neighborhood CD: | 3 |
Owner |
| Name: | NELSON, SALLY LOUISE | Owner ID: | 295371 |
| Mailing Address: | 4741 E HARBOR RD FREELAND, WA 98249 | % Ownership: | 100.0000000000% |
| | | Exemptions: | |
Taxes and Assessment Details
Values
| (+) Improvement Homesite Value: | + | $0 | |
| (+) Improvement Non-Homesite Value: | + | $427,117 | |
| (+) Land Homesite Value: | + | $0 | |
| (+) Land Non-Homesite Value: | + | $370,000 | |
| (+) Curr Use (HS): | + | $0 | $0 |
| (+) Curr Use (NHS): | + | $0 | $0 |
| | | -------------------------- | |
| (=) Market Value: | = | $797,117 | |
| (–) Productivity Loss: | – | $0 | |
| | | -------------------------- | |
| (=) Subtotal: | = | $797,117 | |
| (+) Senior Appraised Value: | + | $0 | |
| (+) Non-Senior Appraised Value: | + | $797,117 | |
| | | -------------------------- | |
| (=) Total Appraised Value: | = | $797,117 | |
| (–) Senior Exemption Loss: | – | $0 | |
| (–) Exemption Loss: | – | $0 | |
| | | -------------------------- | |
| (=) Taxable Value: | = | $797,117 | |
Taxing Jurisdiction
| Owner: | NELSON, SALLY LOUISE | | |
| % Ownership: | 100.0000000000% | | |
| Total Value: | $797,117 | | |
| Tax Area: | 712 - APPRAISER-S Whid Schl Dist, outside Langley, improved, greater than 1 acre |
| CF | Conservation Futures | 0.0313996660 | $797,117 | $797,117 | $25.03 | | |
| FIRE3 | Fire & Rescue Dist #3 S Whidbey GEN | 1.2130821753 | $797,117 | $797,117 | $966.97 | | |
| HOBOND | Hospital BOND | 0.1893405597 | $797,117 | $797,117 | $150.93 | | |
| HOGEN | Hospital GEN | 0.3848777722 | $797,117 | $797,117 | $306.79 | | |
| CE | County Current Expense | 0.3674210519 | $797,117 | $797,117 | $292.88 | | |
| CR | County Roads | 0.4614296361 | $797,117 | $797,117 | $367.81 | | |
| ISLANDEMS | Hospital GEN (EMS) | 0.4952018576 | $797,117 | $797,117 | $394.73 | | |
| LIB | Library Sno-Isle GEN | 0.3039084203 | $797,117 | $797,117 | $242.25 | | |
| PORTWHID | Port of S Whidbey GEN | 0.1086004714 | $797,117 | $797,117 | $86.57 | | |
| SCH206BOND | School 206 BOND | 0.5960237832 | $797,117 | $797,117 | $475.10 | | |
| SCH206CAP | School 206 CP | 0.3066144020 | $797,117 | $797,117 | $244.41 | | |
| SCH206MO | School 206 Enrichment | 0.4808755445 | $797,117 | $797,117 | $383.31 | | |
| ST | State School | 1.4761226122 | $797,117 | $797,117 | $1,176.64 | | |
| ST2 | State School Part 2 | 0.7953803475 | $797,117 | $797,117 | $634.01 | | |
| SWHIDPRBD | P & R S Whidbey BOND | 0.0144185398 | $797,117 | $797,117 | $11.49 | | |
| SWHIDPRBD3 | P & R S Whidbey BOND3 | 0.1483535547 | $797,117 | $797,117 | $118.26 | | |
| SWHIDPRMT | P & R S Whidbey GEN | 0.4600000000 | $797,117 | $797,117 | $366.67 | | |
| | Total Tax Rate: | 7.8330503944 | | | | | |
| | | | | Taxes w/Current Exemptions: | $6,243.85 | | |
| | | | | Taxes w/o Exemptions: | $6,243.85 | | |
Improvement / Building
| Improvement #1: | RESIDENTIAL | State Code: | Y | 1826.0 sqft | Value: | $216,752 |
| Bathrooms: | 2 | Bedrooms: | 2 | | Ceiling: | DRYWALL PAINTED | Exterior Wall/Cover: | PLY/HARDBOARD T-111 | | Floor Covering: | CARPET/VINYL 80-20 | Floor Structure: | SLAB ON GRADE | | Foundation: | SLAB | Heating: | BASEBOARD ELECTRIC | | Interior Finish: | DRYWALL PAINT | Plumbing Fixture Cnt: | 10 | | Roof Slope: | 3" IN 12" | Roof Structure/Cover: | BEAM BUILT-UP ROCK |
|
| | Type | Description | Class CD | Sub Class CD | Year Built | Area |
| | BAS | BASE/MAIN FLOOR | 3 | 0 | 1959 | 1826.0 |
| | OP1 | OPEN PORCH SLAB | 3 | 0 | 1959 | 560.0 |
| | OP3 | OPEN PORCH W/ROOF | 3 | 0 | 1959 | 176.0 |
| | UTY | STORAGE/UTILITY | 3 | 0 | 1959 | 250.0 |
| | UTY | STORAGE/UTILITY | 3 | 0 | 1959 | 250.0 |
| | OCP | OPEN CARPORT | 3 | 0 | 1959 | 250.0 |
| Improvement #2: | RESIDENTIAL | State Code: | Y | 1030.0 sqft | Value: | $210,365 |
| Bathrooms: | 1 | Bedrooms: | 1 | | Ceiling: | DRYWALL PAINTED | Exterior Wall/Cover: | WOOD SIDING | | Floor Covering: | CERAMIC TILE/CPT 40-60 | Floor Structure: | WOOD W/SUBFLOOR | | Foundation: | CONCRETE | Heating: | FHA GAS | | Interior Finish: | DRYWALL PAINT | Plumbing Fixture Cnt: | 7 | | Roof Slope: | 12" IN 12" | Roof Structure/Cover: | CJ ALUMINIUM HEAVY |
|
| | Type | Description | Class CD | Sub Class CD | Year Built | Area |
| | BAS | BASE/MAIN FLOOR | 3 | 0 | 1999 | 1030.0 |
| | OWC | OPEN WOOD PORCH W/STEPS/ROOF/C | 3 | 0 | 1999 | 105.0 |
| | OWC | OPEN WOOD PORCH W/STEPS/ROOF/C | 3 | 0 | 1999 | 198.0 |
Sketch
Property Image
Land
| 1 | 32 | AC (03.01-09.99) | 4.4400 | 193406.40 | 0.00 | 0.00 | 1.00 | $370,000 | $0 |
Roll Value History
| 2026 | N/A | N/A | N/A | N/A | N/A |
| 2025 | $427,117 | $370,000 | $0 | $797,117 | $797,117 |
| 2024 | $438,457 | $350,000 | $0 | $788,457 | $788,457 |
| 2023 | $444,688 | $330,000 | $0 | $774,688 | $774,688 |
| 2022 | $408,318 | $280,000 | $0 | $688,318 | $688,318 |
| 2021 | $359,971 | $230,000 | $0 | $589,971 | $589,971 |
| 2020 | $351,254 | $190,000 | $0 | $541,254 | $541,254 |
| 2019 | $243,553 | $230,000 | $0 | $473,553 | $473,553 |
| 2018 | $244,427 | $210,000 | $0 | $454,427 | $454,427 |
| 2017 | $246,175 | $180,000 | $0 | $426,175 | $426,175 |
| 2016 | $249,671 | $135,000 | $0 | $384,671 | $384,671 |
| 2015 | $253,166 | $135,000 | $0 | $388,166 | $388,166 |
| 2014 | $256,664 | $85,576 | $0 | $342,240 | $342,240 |
| 2013 | $257,712 | $81,576 | $0 | $339,288 | $339,288 |
| 2012 | $261,063 | $81,576 | $0 | $342,639 | $342,639 |
| 2011 | $264,411 | $81,576 | $0 | $345,987 | $345,987 |
| 2010 | $278,453 | $81,576 | $0 | $360,029 | $360,029 |
| 2009 | $290,257 | $117,576 | $0 | $407,833 | $407,833 |
| 2008 | $328,364 | $134,120 | $0 | $462,484 | $462,484 |
| 2007 | $273,289 | $173,486 | $0 | $446,775 | $446,775 |
Deed and Sales History
| 1 | 05/31/2024 | EZ | Easement | NELSON, SALLY LOUISE | PUGET SOUND ENERGY | | | $4,696.00 | 60705 | 4574849 |
| 2 | 08/11/2020 | QCD | Quit Claim Deed | PARENTE, FRANK J | NELSON, SALLY LOUISE | | | $0.00 | 44208 | 4493718 |
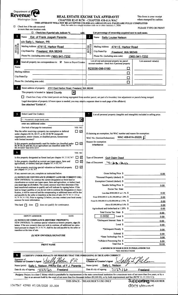
| 3 | 07/23/2020 | QCD | Quit Claim Deed | PARENTE, FRANK J | NELSON, SALLY LOUISE | | | $0.00 | 43980 | 4492396 |
| 4 | 10/01/1993 | WD | Warranty Deed | ESKENAZI, SARAH J | PARENTE, FRANK J | | | $180,000.00 | 34075 | 93021207 |
| 5 | 05/01/1990 | WD | Warranty Deed | BERGER, ERLING | ESKENAZI, SARAH J | | | $123,000.00 | 2402 | 90007804 |
| 6 | 04/01/1990 | QCD | Quit Claim Deed | Unknown | BERGER, ERLING | | | $0.00 | 2401 | 90007803 |
Payout Agreement
| No payout information available.. |