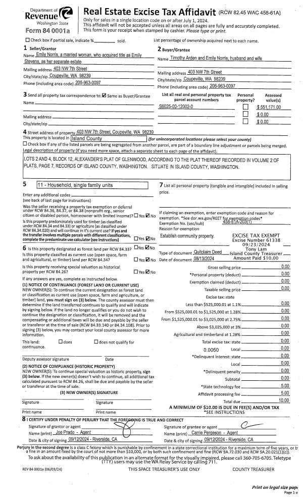
Property
Account |
| Property ID: | 648856 | Abbreviated Legal Description: | ALEX GLEN LOTS 2 & 4 BLK 12 (FR 12001-0) |
| Geographic ID: | S6025-00-12002-0 | Agent Code: | |
| Type: | Real | | |
| Tax Area: | 300 - APPRAISER-Cpvl Schl Dist, in Cpvl | Land Use Code | 11 |
| Open Space: | N | DFL | N |
| Historic Property: | N | Remodel Property: | N |
| Multi-Family Redevelopment: | N | | |
| Township: | | Section: | |
| Range: | |
Location |
| Address: | 403 NW 7TH ST COUPEVILLE, WA 98239 | Mapsco: | |
| Neighborhood: | Cycle 2 | Map ID: | 174 |
| Neighborhood CD: | 2 |
Owner |
| Name: | ARDEN, TIMOTHY | Owner ID: | 313954 |
| Mailing Address: | EMILY NORRIS 403 NW 7TH ST COUPEVILLE, WA 98239 | % Ownership: | 100.0000000000% |
| | | Exemptions: | |
Taxes and Assessment Details
Values
| (+) Improvement Homesite Value: | + | $0 | |
| (+) Improvement Non-Homesite Value: | + | $309,744 | |
| (+) Land Homesite Value: | + | $0 | |
| (+) Land Non-Homesite Value: | + | $260,000 | |
| (+) Curr Use (HS): | + | $0 | $0 |
| (+) Curr Use (NHS): | + | $0 | $0 |
| | | -------------------------- | |
| (=) Market Value: | = | $569,744 | |
| (–) Productivity Loss: | – | $0 | |
| | | -------------------------- | |
| (=) Subtotal: | = | $569,744 | |
| (+) Senior Appraised Value: | + | $0 | |
| (+) Non-Senior Appraised Value: | + | $569,744 | |
| | | -------------------------- | |
| (=) Total Appraised Value: | = | $569,744 | |
| (–) Senior Exemption Loss: | – | $0 | |
| (–) Exemption Loss: | – | $0 | |
| | | -------------------------- | |
| (=) Taxable Value: | = | $569,744 | |
Taxing Jurisdiction
| Owner: | ARDEN, TIMOTHY | | |
| % Ownership: | 100.0000000000% | | |
| Total Value: | $569,744 | | |
| Tax Area: | 300 - APPRAISER-Cpvl Schl Dist, in Cpvl |
| CF | Conservation Futures | 0.0313996660 | $569,744 | $569,744 | $17.89 | | |
| CEM2 | Cemetery #2 | 0.0092609791 | $569,744 | $569,744 | $5.28 | | |
| COUP | City: Town of Coupeville | 0.8188663519 | $569,744 | $569,744 | $466.54 | | |
| FIRE5 | Fire & Rescue Dist #5 C Whidbey GEN | 1.1892169230 | $569,744 | $569,744 | $677.55 | | |
| FIRE5BOND | Fire & Rescue Dist #5 C Whidbey BOND | 0.1394359503 | $569,744 | $569,744 | $79.44 | | |
| HOBOND | Hospital BOND | 0.1893405597 | $569,744 | $569,744 | $107.88 | | |
| HOGEN | Hospital GEN | 0.3848777722 | $569,744 | $569,744 | $219.28 | | |
| CE | County Current Expense | 0.3674210519 | $569,744 | $569,744 | $209.34 | | |
| ISLANDEMS | Hospital GEN (EMS) | 0.4952018576 | $569,744 | $569,744 | $282.14 | | |
| LIB | Library Sno-Isle GEN | 0.3039084203 | $569,744 | $569,744 | $173.15 | | |
| LIBCAP | Library Sno-Isle BOND (Cap Fac Imp Area) | 0.0528562629 | $569,744 | $569,744 | $30.11 | | |
| POCOUP | Port of Coupeville GEN | 0.1065226063 | $569,744 | $569,744 | $60.69 | | |
| POCOUPIDD | Port of Coupeville IDD | 0.3353038577 | $569,744 | $569,744 | $191.04 | | |
| COUPSDTECH | School 204 CP (TECH) | 0.1215123397 | $569,744 | $569,744 | $69.23 | | |
| SCH204MO | School 204 Enrichment | 0.6416662518 | $569,744 | $569,744 | $365.59 | | |
| ST | State School | 1.4761226122 | $569,744 | $569,744 | $841.01 | | |
| ST2 | State School Part 2 | 0.7953803475 | $569,744 | $569,744 | $453.16 | | |
| | Total Tax Rate: | 7.4582938101 | | | | | |
| | | | | Taxes w/Current Exemptions: | $4,249.32 | | |
| | | | | Taxes w/o Exemptions: | $4,249.32 | | |
Improvement / Building
| Improvement #1: | RESIDENTIAL | State Code: | Y | 1619.6 sqft | Value: | $309,744 |
| Bathrooms: | 2 | Bedrooms: | 3 | | Ceiling: | DRYWALL PAINTED | Exterior Wall/Cover: | WOOD SIDING | | Floor Covering: | CARPET/VINYL 80-20 | Floor Structure: | WOOD W/SUBFLOOR | | Foundation: | CONCRETE | Heating: | WALL HEAT ELECTRIC | | Interior Finish: | DRYWALL PAINT | Plumbing Fixture Cnt: | 9 | | Roof Slope: | 12" IN 12" | Roof Structure/Cover: | CJ ASPHALT |
|
| | Type | Description | Class CD | Sub Class CD | Year Built | Area |
| | BAS | BASE/MAIN FLOOR | 3 | 0 | 1991 | 1619.6 |
| | DGR | DETACHED GARAGE | 3 | 0 | 1991 | 576.0 |
| | OWC | OPEN WOOD PORCH W/STEPS/ROOF/C | 3 | 0 | 1991 | 55.9 |
| | OWC | OPEN WOOD PORCH W/STEPS/ROOF/C | 3 | 0 | 1991 | 59.5 |
| Improvement #2: | RESIDENTIAL | State Code: | Y | 2195.6 sqft | Value: | $0 |
| Bathrooms: | 2 | Bedrooms: | 3 | | Ceiling: | DRYWALL PAINTED | Exterior Wall/Cover: | WOOD SIDING | | Floor Covering: | CARPET/VINYL 80-20 | Floor Structure: | WOOD W/SUBFLOOR | | Foundation: | CONCRETE | Heating: | WALL HEAT ELECTRIC | | Interior Finish: | DRYWALL PAINT | Plumbing Fixture Cnt: | 9 | | Roof Slope: | 12" IN 12" | Roof Structure/Cover: | CJ ASPHALT |
|
| | Type | Description | Class CD | Sub Class CD | Year Built | Area |
| | BAS | BASE/MAIN FLOOR | 3 | 0 | 1991 | 2195.6 |
| | DGR | DETACHED GARAGE | 3 | 0 | 1991 | 576.0 |
| | OWC | OPEN WOOD PORCH W/STEPS/ROOF/C | 3 | 0 | 1991 | 55.9 |
| | OWC | OPEN WOOD PORCH W/STEPS/ROOF/C | 3 | 0 | 1991 | 59.5 |
Sketch
Property Image
Land
| 1 | HS | HOMESITE | 0.4600 | 20037.60 | 0.00 | 0.00 | 1.00 | $260,000 | $0 |
Roll Value History
| 2026 | N/A | N/A | N/A | N/A | N/A |
| 2025 | $309,744 | $260,000 | $0 | $569,744 | $569,744 |
| 2024 | $307,342 | $240,000 | $0 | $547,342 | $547,342 |
| 2023 | $311,171 | $240,000 | $0 | $551,171 | $551,171 |
| 2022 | $285,235 | $200,000 | $0 | $485,235 | $485,235 |
| 2021 | $251,052 | $150,000 | $0 | $401,052 | $401,052 |
| 2020 | $244,751 | $130,000 | $0 | $374,751 | $374,751 |
| 2019 | $179,403 | $170,000 | $0 | $349,403 | $349,403 |
| 2018 | $173,783 | $150,000 | $0 | $323,783 | $323,783 |
| 2017 | $174,743 | $125,000 | $0 | $299,743 | $299,743 |
| 2016 | $176,848 | $115,000 | $0 | $291,848 | $291,848 |
| 2015 | $178,955 | $90,000 | $0 | $268,955 | $268,955 |
| 2014 | $163,729 | $85,000 | $0 | $248,729 | $248,729 |
| 2013 | $165,856 | $85,000 | $0 | $250,856 | $250,856 |
| 2012 | $170,811 | $89,250 | $0 | $260,061 | $260,061 |
| 2011 | $172,939 | $105,000 | $0 | $277,939 | $277,939 |
| 2010 | $179,983 | $105,000 | $0 | $284,983 | $284,983 |
| 2009 | $187,791 | $125,000 | $0 | $312,791 | $312,791 |
| 2008 | $190,170 | $134,000 | $0 | $324,170 | $324,170 |
| 2007 | $192,663 | $105,000 | $0 | $297,663 | $297,663 |
Deed and Sales History
| 1 | 08/13/2024 | QCD | Quit Claim Deed | STEVENS, EMILY | ARDEN, TIMOTHY | | | $0.00 | 61338 | 4577343 |
| 2 | 02/12/2020 | QCD | Quit Claim Deed | STEVENS, BRUCE W | STEVENS, EMILY | | | $0.00 | 42138 | 4481551 |
| 3 | 06/03/2014 | WD | Warranty Deed | BURGESS, M ELAINE | STEVENS, BRUCE W | | | $269,000.00 | 15545 | 4360444 |
| 4 | 04/01/1992 | WD | Warranty Deed | LYNCH, DRUSILLA E | BURGESS, M E | | | $142,000.00 | 21417 | 92006851 |
| 5 | 07/01/1991 | WD | Warranty Deed | EDENHOLM, ROY | LYNCH, DRUSILLA E | | | $83,000.00 | 12331 | 91010044 |
| 6 | 08/01/1990 | OTHER | Other - Misc. Documents | EDENHOLM, ROY | EDENHOLM, ROY | | | $0.00 | 63788 | 0 |
| 7 | 01/01/1990 | QCD | Quit Claim Deed | Unknown | EDENHOLM, ROY | | | $0.00 | 287 | 90000858 |
Payout Agreement
| No payout information available.. |