| 1 | 04/25/2024 | QCD | Quit Claim Deed | ABEYRANTE-PERERA, HASHANTHI KOMITIGE | ABEYRATNE, BUDDHIKA RAJEEV | | | $0.00 | 59872 | 4572031 |
| 2 | 04/26/2024 | WD | Warranty Deed | ENCINAS CONTSTRUCTION INC | ABEYRATNE, BUDDHIKA RAJEEV | | | $850,000.00 | 59871 | 4572030 |
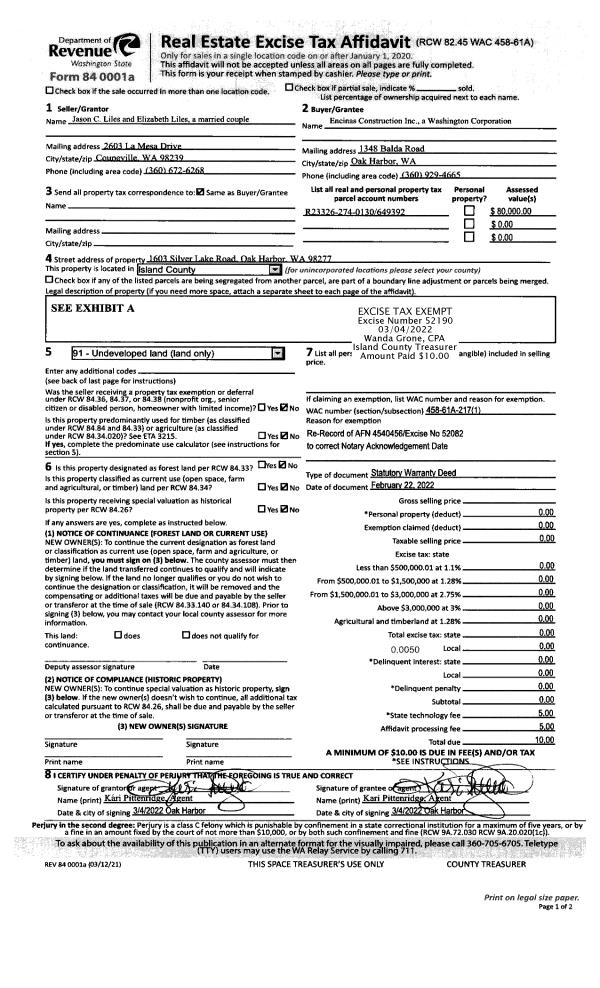
| 3 | 02/22/2022 | WD | Warranty Deed | LILES, JASON C | ENCINAS CONTSTRUCTION INC | | | $0.00 | 52190 | 4540907 |
| 4 | 02/22/2022 | WD | Warranty Deed | LILES, JASON C | ENCINAS CONTSTRUCTION INC | | | $191,000.00 | 52082 | 4540456 |
| 5 | 04/10/2020 | WD | Warranty Deed | HEYENGA, DARYL E | LILES, JASON C | | | $110,000.00 | 42655 | 4484837 |
| 6 | 11/06/2019 | EZ | Easement | HEYENGA, DARYL E | PUGET SOUND ENERGY | | | $1,500.00 | 41289 | 4476624 |
| 7 | 08/06/2002 | ESTSEPPROP | Establish Separate Property | HEYENGA, DARYL E | HEYENGA, DARYL E | | | $0.00 | 23182 | 4028371 |
| 8 | 08/13/2001 | WD | Warranty Deed | MCGREGOR, CAROLINE J | HEYENGA, DARYL E | | | $62,500.00 | 13385 | 20041893 |
| 9 | 12/22/2000 | QCD | Quit Claim Deed | BOWDEN, DOUGLAS R | MCGREGOR, CAROLINE J | | | $0.00 | 4928 | 20022714 |
| 10 | 10/01/1990 | WD | Warranty Deed | FELSER, RICHARD O | BOWDEN, DOUGLAS R | | | $50,000.00 | 6080 | 90020671 |
| 11 | 01/01/1900 | OTHER | Other - Misc. Documents | Unknown | FELSER, RICHARD O | | | $0.00 | 0 | 0 |