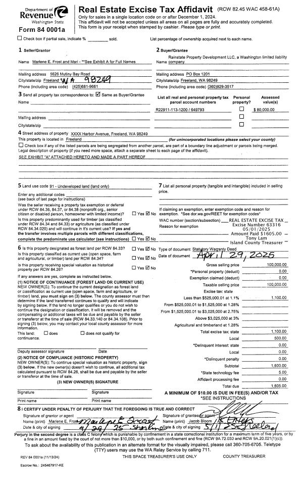
Property
Account |
| Property ID: | 649793 | Abbreviated Legal Description: | LOT 3 EX S20' TGW S20' OF LOT 4 SP 81-26.22911.110-1050 V1 SP P138 AF#396890 |
| Geographic ID: | R22911-113-1200 | Agent Code: | |
| Type: | Real | | |
| Tax Area: | 769 - APPRAISER-S Whid Schl Dist, Special District, vacant & 50 acres or less | Land Use Code | 91 |
| Open Space: | N | DFL | N |
| Historic Property: | N | Remodel Property: | N |
| Multi-Family Redevelopment: | N | | |
| Township: | 29 | Section: | 11 |
| Range: | R2 |
Location |
| Address: | 5515 HARBOR AVE FREELAND, WA 98249 | Mapsco: | |
| Neighborhood: | 34cFR-harbor ave | Map ID: | 313 |
| Neighborhood CD: | 34cFRharbr |
Owner |
| Name: | RAINSTATE PROPERTY DEVELOPMENT LLC | Owner ID: | 316282 |
| Mailing Address: | PO BOX 1201 FREELAND, WA 98249 | % Ownership: | 100.0000000000% |
| | | Exemptions: | |
Taxes and Assessment Details
Values
| (+) Improvement Homesite Value: | + | $0 | |
| (+) Improvement Non-Homesite Value: | + | $0 | |
| (+) Land Homesite Value: | + | $0 | |
| (+) Land Non-Homesite Value: | + | $90,000 | |
| (+) Curr Use (HS): | + | $0 | $0 |
| (+) Curr Use (NHS): | + | $0 | $0 |
| | | -------------------------- | |
| (=) Market Value: | = | $90,000 | |
| (–) Productivity Loss: | – | $0 | |
| | | -------------------------- | |
| (=) Subtotal: | = | $90,000 | |
| (+) Senior Appraised Value: | + | $0 | |
| (+) Non-Senior Appraised Value: | + | $90,000 | |
| | | -------------------------- | |
| (=) Total Appraised Value: | = | $90,000 | |
| (–) Senior Exemption Loss: | – | $0 | |
| (–) Exemption Loss: | – | $0 | |
| | | -------------------------- | |
| (=) Taxable Value: | = | $90,000 | |
Taxing Jurisdiction
| Owner: | RAINSTATE PROPERTY DEVELOPMENT LLC | | |
| % Ownership: | 100.0000000000% | | |
| Total Value: | $90,000 | | |
| Tax Area: | 769 - APPRAISER-S Whid Schl Dist, Special District, vacant & 50 acres or less |
| CF | Conservation Futures | 0.0313996660 | $90,000 | $90,000 | $2.83 | | |
| HOBOND | Hospital BOND | 0.1893405597 | $90,000 | $90,000 | $17.04 | | |
| HOGEN | Hospital GEN | 0.3848777722 | $90,000 | $90,000 | $34.64 | | |
| CE | County Current Expense | 0.3674210519 | $90,000 | $90,000 | $33.07 | | |
| CR | County Roads | 0.4614296361 | $90,000 | $90,000 | $41.53 | | |
| ISLANDEMS | Hospital GEN (EMS) | 0.4952018576 | $90,000 | $90,000 | $44.57 | | |
| LIB | Library Sno-Isle GEN | 0.3039084203 | $90,000 | $90,000 | $27.35 | | |
| PORTWHID | Port of S Whidbey GEN | 0.1086004714 | $90,000 | $90,000 | $9.77 | | |
| SCH206BOND | School 206 BOND | 0.5960237832 | $90,000 | $90,000 | $53.64 | | |
| SCH206CAP | School 206 CP | 0.3066144020 | $90,000 | $90,000 | $27.60 | | |
| SCH206MO | School 206 Enrichment | 0.4808755445 | $90,000 | $90,000 | $43.28 | | |
| ST | State School | 1.4761226122 | $90,000 | $90,000 | $132.85 | | |
| ST2 | State School Part 2 | 0.7953803475 | $90,000 | $90,000 | $71.58 | | |
| SWHIDPRBD | P & R S Whidbey BOND | 0.0144185398 | $90,000 | $90,000 | $1.30 | | |
| SWHIDPRBD3 | P & R S Whidbey BOND3 | 0.1483535547 | $90,000 | $90,000 | $13.35 | | |
| SWHIDPRMT | P & R S Whidbey GEN | 0.4600000000 | $90,000 | $90,000 | $41.40 | | |
| | Total Tax Rate: | 6.6199682191 | | | | | |
| | | | | Taxes w/Current Exemptions: | $595.80 | | |
| | | | | Taxes w/o Exemptions: | $595.80 | | |
Improvement / Building
Sketch
| No sketches available for this property. |
Property Image
Land
| 1 | 15 | SQ (12001-21780) | 0.4400 | 19166.40 | 0.00 | 0.00 | 1.00 | $90,000 | $0 |
Roll Value History
| 2026 | N/A | N/A | N/A | N/A | N/A |
| 2025 | $0 | $90,000 | $0 | $90,000 | $90,000 |
| 2024 | $0 | $80,000 | $0 | $80,000 | $80,000 |
| 2023 | $0 | $134,165 | $0 | $134,165 | $134,165 |
| 2022 | $0 | $134,165 | $0 | $134,165 | $134,165 |
| 2021 | $0 | $134,165 | $0 | $134,165 | $134,165 |
| 2020 | $0 | $134,165 | $0 | $134,165 | $134,165 |
| 2019 | $0 | $134,165 | $0 | $134,165 | $134,165 |
| 2018 | $0 | $134,165 | $0 | $134,165 | $134,165 |
| 2017 | $0 | $105,415 | $0 | $105,415 | $105,415 |
| 2016 | $0 | $105,415 | $0 | $105,415 | $105,415 |
| 2015 | $0 | $105,415 | $0 | $105,415 | $105,415 |
| 2014 | $0 | $105,415 | $0 | $105,415 | $105,415 |
| 2013 | $0 | $215,089 | $0 | $215,089 | $215,089 |
| 2012 | $0 | $215,089 | $0 | $215,089 | $215,089 |
| 2011 | $0 | $215,089 | $0 | $215,089 | $215,089 |
| 2010 | $0 | $215,089 | $0 | $215,089 | $215,089 |
| 2009 | $0 | $215,089 | $0 | $215,089 | $215,089 |
| 2008 | $0 | $215,089 | $0 | $215,089 | $215,089 |
| 2007 | $0 | $142,437 | $0 | $142,437 | $142,437 |
Deed and Sales History
| 1 | 04/29/2025 | WD | Warranty Deed | FURNESS 33.33%INT, RICHARD | RAINSTATE PROPERTY DEVELOPMENT LLC | | | $100,000.00 | 63316 | 4585186 |
| 2 | 10/20/2014 | PRD | Personal Representatives Deed | FURNESS, MARGARET E | FURNESS 33.33%INT, RICHARD | | | $0.00 | 17299 | 4367489 |
| 3 | 10/01/1990 | OTHER | Other - Misc. Documents | Unknown | J, J D | | | $0.00 | 63870 | 90016406 |
| 4 | 07/01/1990 | WD | Warranty Deed | J, J D | FURNESS, MARGARET E | | | $57,357.00 | 4463 | 90014678 |
Payout Agreement
| No payout information available.. |